Скачать Типовой проект 407-3-586.90 Альбом 2. Электротехнические чертежи (вариант со шкафами КРУ серии К-104). Электротехнические чертежи (вариант со шкафами КРУ серий КМ-1М, КМ-1Ф)Дата актуализации: 10.08.2017 Типовой проект 407-3-586.90
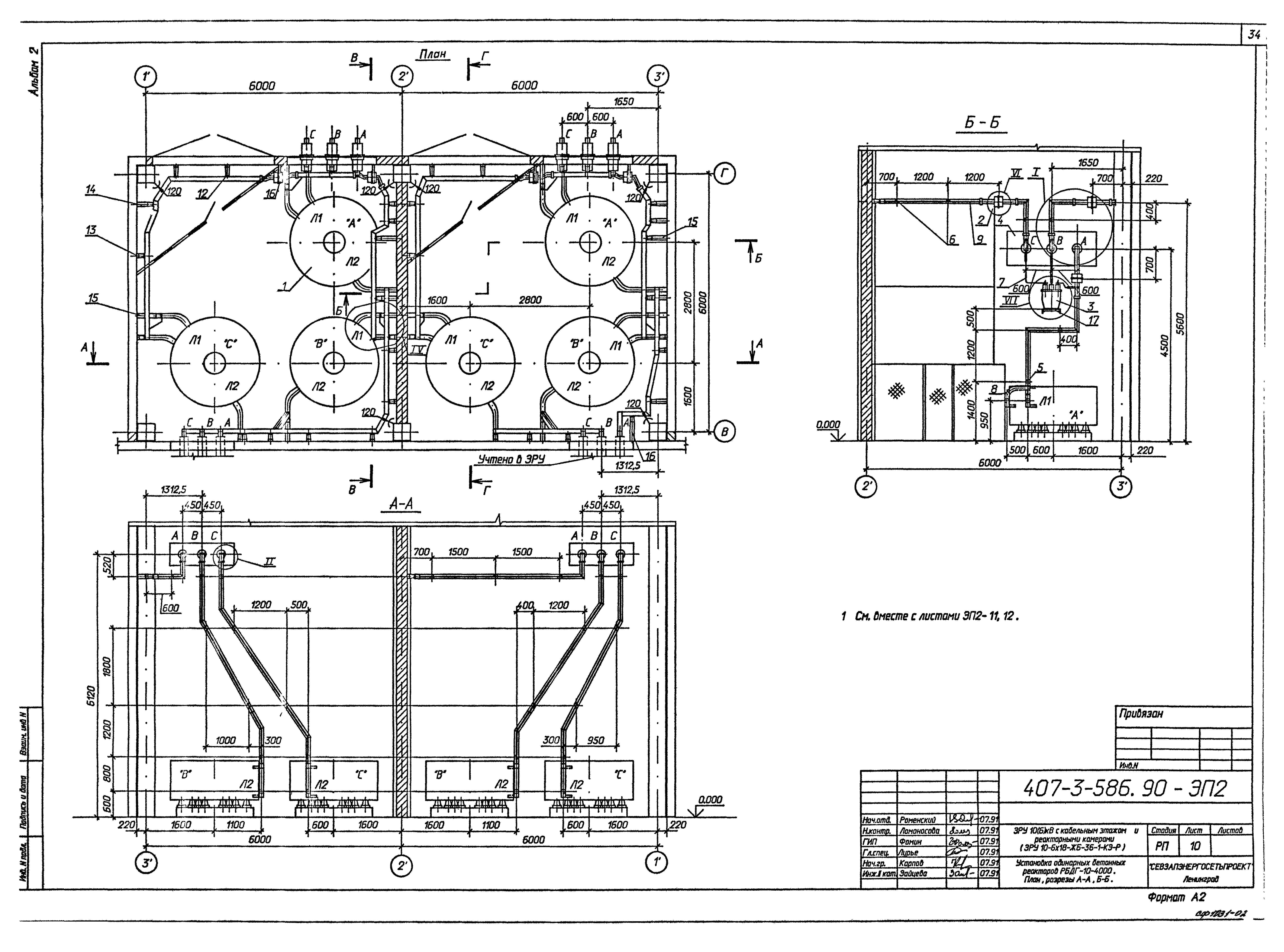
Альбом 2. Электротехнические чертежи (вариант со шкафами КРУ серии К-104). Электротехнические чертежи (вариант со шкафами КРУ серий КМ-1М, КМ-1Ф)Обозначение: | Типовой проект 407-3-586.90 | Обозначение англ: | 407-3-586.90 | Статус: | не определен законодательством | Название рус.: | Альбом 2. Электротехнические чертежи (вариант со шкафами КРУ серии К-104). Электротехнические чертежи (вариант со шкафами КРУ серий КМ-1М, КМ-1Ф) | Дата добавления в базу: | 01.09.2013 | Дата актуализации: | 05.05.2017 | Дата введения: | 08.08.1991 | Оглавление: | Электротехнические чертежи (варианты со шкафами КРУ серии К-104) Общие данные Расстановка шкафов КРУ на ток 1600 А. План, разрезы А-А, Б-Б Установка одинарных бетонных реакторов РБГ-10-1600. План, разрезы А-А, Б-Б Установка одинарных бетонных реакторов РБГ-10-1600. Разрезы В-В, Г-Г Установка одинарных бетонных реакторов РБГ-10-1600. Узлы I…VII Расстановка шкафов КРУ на ток 2600 А. План, разрезы А-А, Б-Б Установка одинарных бетонных реакторов РБГ, РБДГ-10-2500. План, разрезы А-А, Б-Б Установка одинарных бетонных реакторов РБГ, РБДГ-10-2500. Разрезы В-В, Г-Г Установка одинарных бетонных реакторов РБГ, РБДГ-10-2500. Узлы I…VII Установка одинарных бетонных реакторов РБДГ-10-4000. План, разрезы А-А, Б-Б Установка одинарных бетонных реакторов РБДГ-10-4000. Разрезы В-В, Г-Г Установка одинарных бетонных реакторов РБДГ-10-4000. Узлы I…VII Электрическое отопление и вентиляция Освещение Ведомость узлов установки электрического оборудования Журнал силовых кабелей Журнал контрольных кабелей Расстановка кабельных конструкций в кабельном этаже. План, разрезы А-А, Б-Б, В-В Установка проходных изоляторов ИП-20/2000-12,5УХЛ1, ИП-20/3150-12,5УХЛ1, ИП-35/1600-7,5УХЛ1, ИП-35/3150-20УХЛ1 Установка шкафов серии К-104 Схема размещения датчиков пожарной сигнализации Установка шинного ввода Разводка кабелей 10 кВ Схема заполнения шкафов КРУ Полная схема. Шкаф управления вентиляционной установкой реакторной камеры Монтажная схема. Шкаф управления вентиляционной установкой реакторной камеры Электротехнические чертежи (вариант со шкафами КРУ серии КМ-1М, КМ-1ф) Общие данные Расстановка шкафов КРУ на ток 1600 А. План, разрезы А-А, Б-Б Установка одинарных бетонных реакторов РБГ-10-1600. План, разрезы А-А, Б-Б Установка одинарных бетонных реакторов РБГ-10-1600. Разрезы В-В, Г-Г Установка одинарных бетонных реакторов РБГ-10-1600. Узлы I…VII Расстановка шкафов КРУ на ток 3150 А. План, разрезы А-А, Б-Б Установка одинарных бетонных реакторов РБГ, РБДГ-10-2500. План, разрезы А-А, Б-Б Установка одинарных бетонных реакторов РБГ, РБДГ-10-2500. Разрезы В-В, Г-Г Установка одинарных бетонных реакторов РБГ, РБДГ-10-2500. Узлы I…VII Установка одинарных бетонных реакторов РБДГ-10-4000. План, разрезы А-А, Б-Б Установка одинарных бетонных реакторов РБДГ-10-4000. Разрезы В-В, Г-Г Установка одинарных бетонных реакторов РБДГ-10-4000. Узлы I…VII Электрическое отопление и вентиляция Освещение Ведомость узлов установки электрического оборудования Журнал силовых кабелей Журнал контрольных кабелей Расстановка кабельных конструкций в кабельном этаже. План, разрезы А-А, Б-Б, В-В Установка проходных изоляторов ИП-10/2000-12,5УХЛ1, ИП-20/3150-12,5УХЛ1 Установка проходных изоляторов ИП-20/2000-12,5УХЛ1, ИП-20/3150-12,5УХЛ1, ИП-35/1600-7,5УХЛ1, ИП-35/3150-20УХЛ1 Установка шкафов КРУ серии КМ-1ф, КМ-1М Схема размещения датчиков пожарной сигнализации Разводка кабелей 10 кВ Конструкция для крепления шкафа шинного ввода и шкафа шинной перемычки Схема заполнения шкафов КРУ Полная схема. Шкаф управления вентиляционной установкой реакторной камеры Монтажная схема. Шкаф управления вентиляционной установкой реакторной камеры Электротехнические изделия Изделия И1…И9 | Разработан: | Севзапэнергосетьпроект
| Утверждён: | 08.08.1991 Минэнерго СССР (USSR Minenergo 35)
| Расположен в: |
|
                                               
|