Скачать Типовой проект 416-7-281.88 Альбом 1. Пояснительная записка. Технология производства. Архитектурно-строительные решения. Отопление и вентиляция. Внутренний водопровод и канализация. Силовое электрооборудование. Автоматизация отопления и вентиляции. Связь и сигнализацияДата актуализации: 10.08.2017 Типовой проект 416-7-281.88
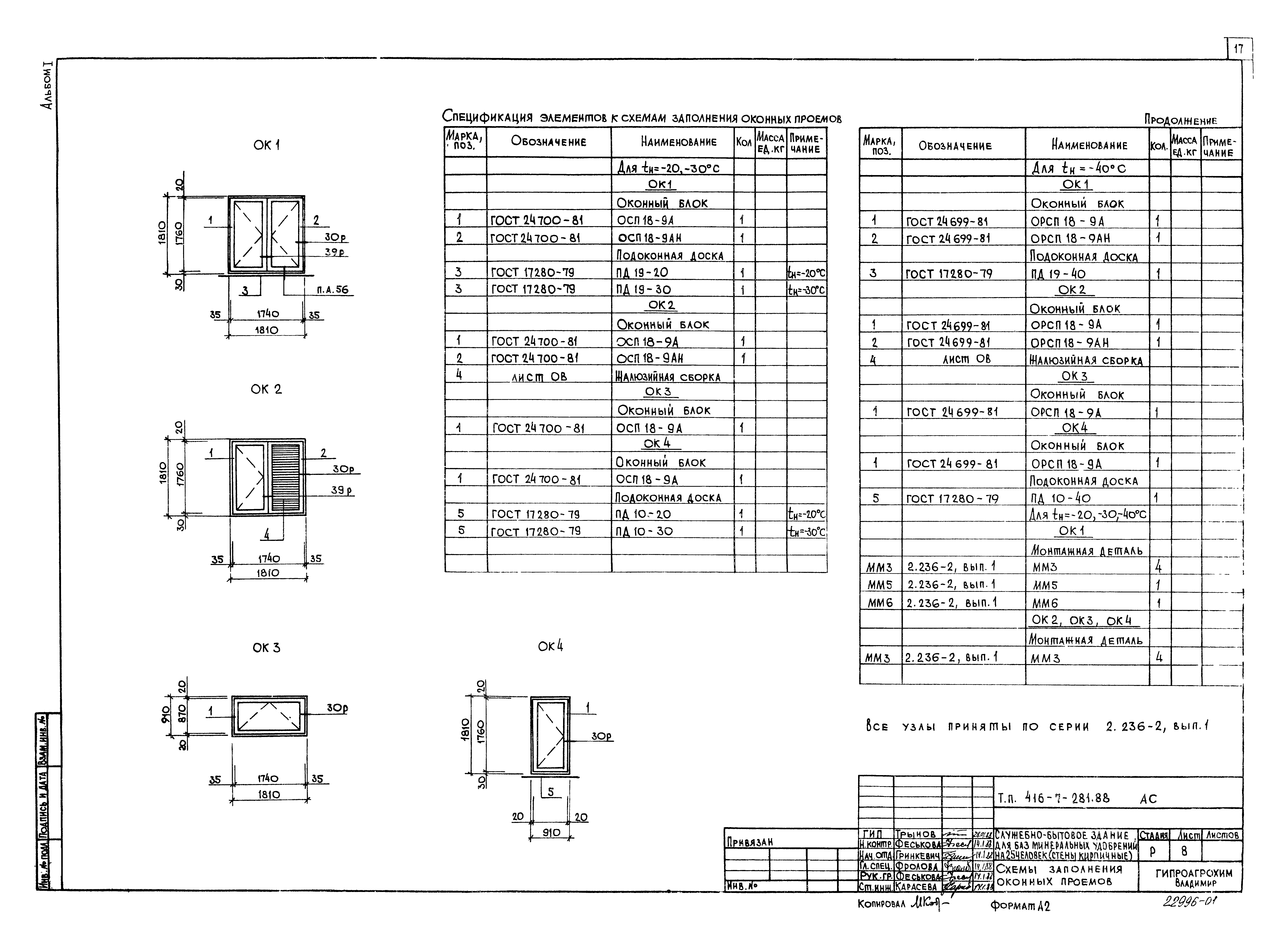
Альбом 1. Пояснительная записка. Технология производства. Архитектурно-строительные решения. Отопление и вентиляция. Внутренний водопровод и канализация. Силовое электрооборудование. Автоматизация отопления и вентиляции. Связь и сигнализацияОбозначение: | Типовой проект 416-7-281.88 | Обозначение англ: | 416-7-281.88 | Статус: | не определен законодательством | Название рус.: | Альбом 1. Пояснительная записка. Технология производства. Архитектурно-строительные решения. Отопление и вентиляция. Внутренний водопровод и канализация. Силовое электрооборудование. Автоматизация отопления и вентиляции. Связь и сигнализация | Дата добавления в базу: | 01.09.2013 | Дата актуализации: | 05.05.2017 | Дата введения: | 29.01.1988 | Оглавление: | Содержание альбома Пояснительная записка Чертежи основного комплекта марки ТХ Общие данные. План на отм. 0.000 План на отм. 3.000 Чертежи основного комплекта марки АС Общие данные Общие данные. Ведомость отделки помещений План на отм. 0.000 План на отм. 3.000 Разрез 1-1 Фасады Ведомость перемычек. Решетка МР1 Схемы заполнения оконных проемов Развертка вентиляционных каналов. План кровли Экспликация полов. Схема расположения элементов фундаментов под оборудование на отм. 3.000 Схема расположения элементов фундаментов Схемы расположения элементов перекрытия и покрытия Схема расположения элементов лестниц Л1, Л2 Чертежи основного комплекта марки ОВ Общие данные Планы на отм. 0.000; 3.000. Схемы систем ВЕ1…ВЕ7, В3, ТВЕ, ТВ1 Схемы систем отопления, теплоснабжения. Схемы систем П1, В1, В2. Узел управления Установки систем П1, В1 Чертежи основного комплекта марки ВК Общие данные Планы на отм. 0.000; 3.000. Маркировочная схема водосточных воронок Схемы систем В1, Т3, Т4 Схемы систем К1, К2, К3 Чертежи основного комплекта марки ЭМ Общие данные Силовое электрооборудование. Планы на отм. 0.000; 3.000 Силовое электрооборудование. Принципиальная расчетная схема Электрическое освещение. Планы на отм. 0.000; 3.000. Тамбур для tн = - 40 градусов Цельсия Ведомость электромонтажных конструкций и деталей, подлежащих изготовлению в МЭЗ Ведомость изделий и материалов для изготовления электромонтажных конструкций и деталей МЭЗ Ведомость объемов строительных и монтажных работ по чертежам Чертежи основного комплекта марки АОВ Общие данные. Система П1. Схема функциональная Система П1. Схема электрическая принципиальная управления Система П1. Схема внешних проводок Система П1. План расположения Чертежи основного комплекта марки СС Общие данные План расположения сетей на отм. 0.000 План расположения сетей на отм. 3.000 | Разработан: | Гипроагрохим
| Утверждён: | 29.01.1988 Институт Гипроагрохим (10-Э)
| Издан: | ЦИТП Госстроя СССР (CITP, Gosstroy (USSR) 1988 г. )
| Расположен в: |
| Заменяет собой: | |
                                            
|