Скачать Типовой проект 294-2-71 Альбом I. Архитектурно-строительные и технологические чертежи, алюминиевые витражиДата актуализации: 10.08.2017 Типовой проект 294-2-71
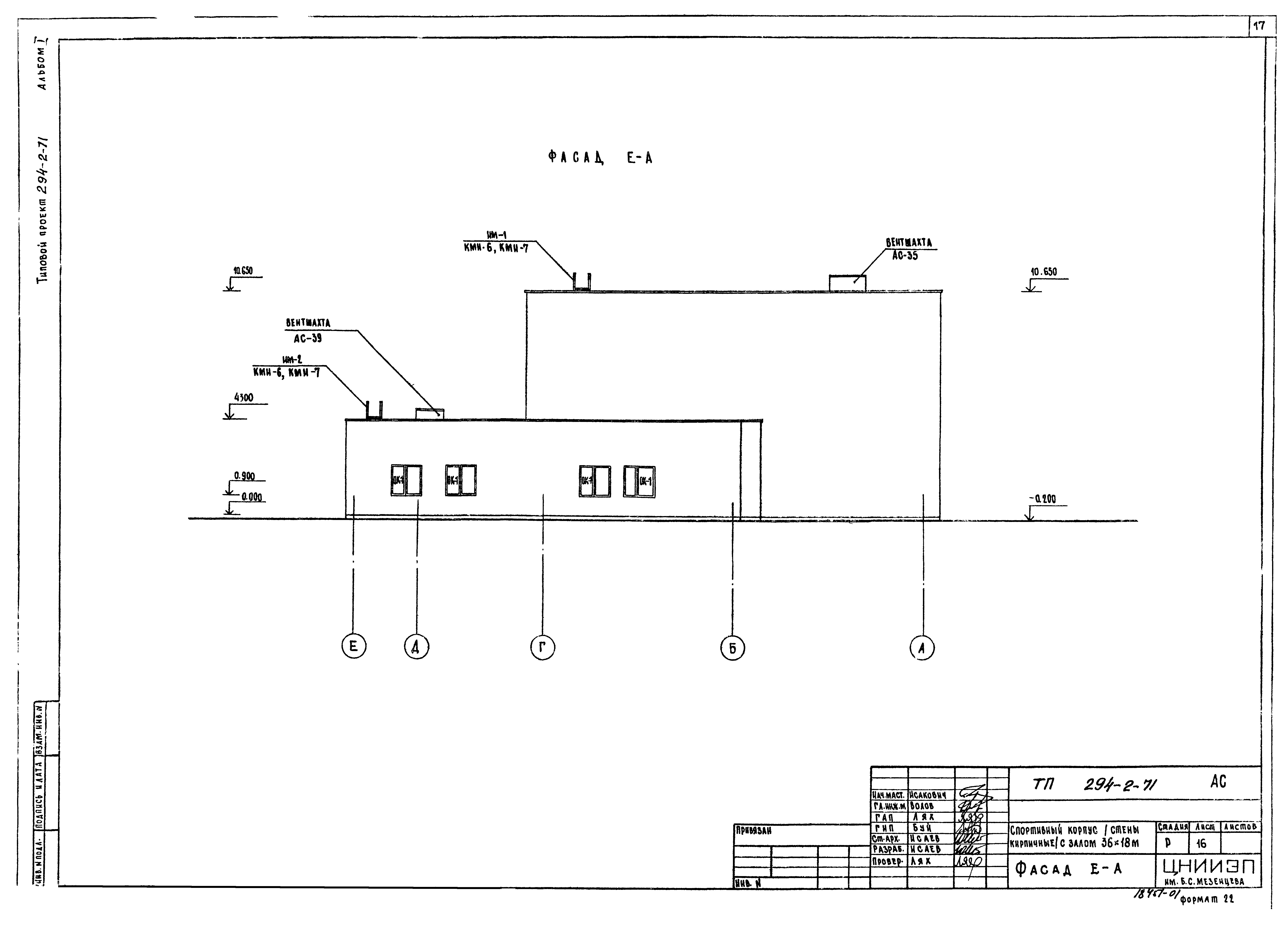
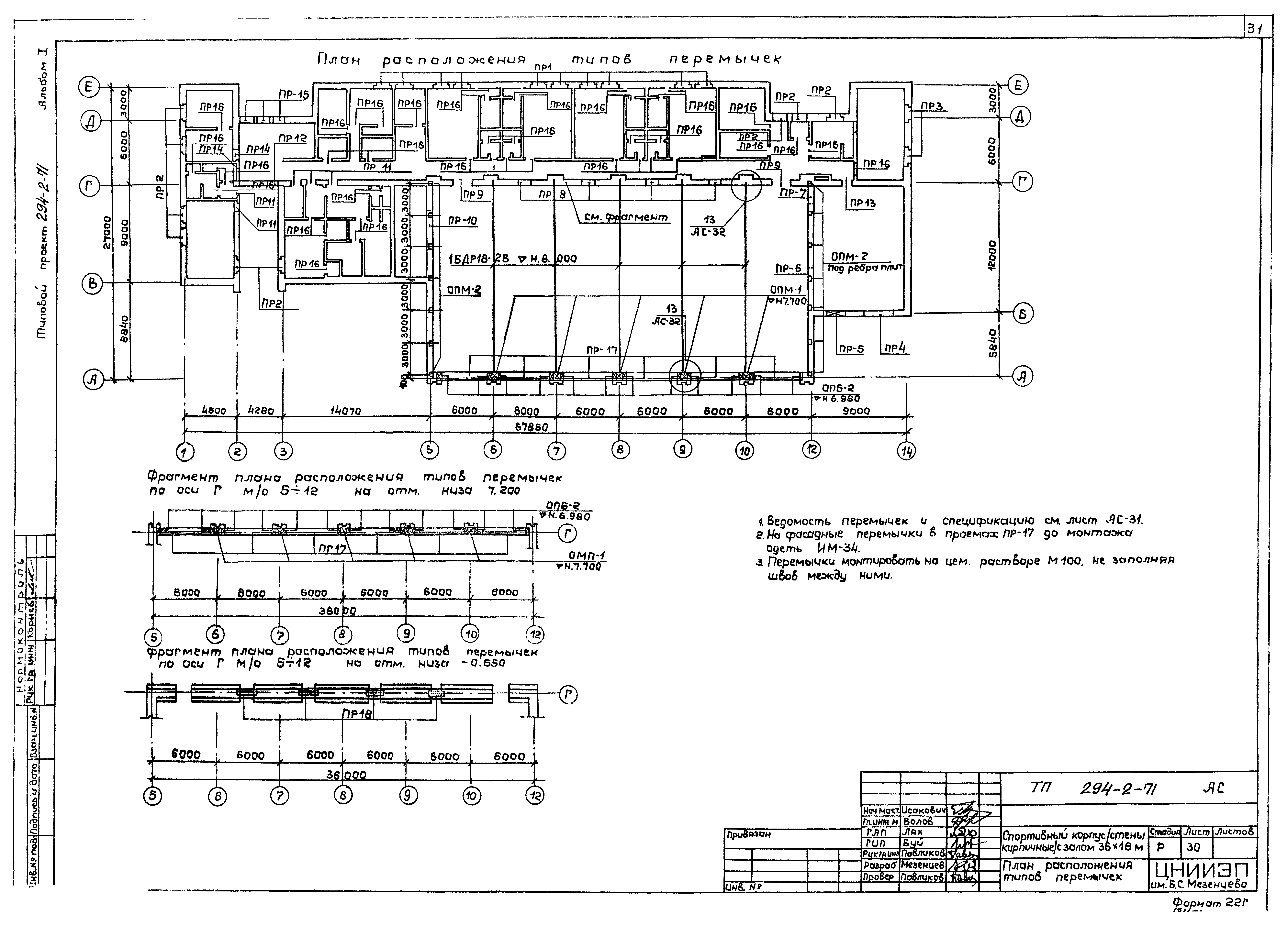
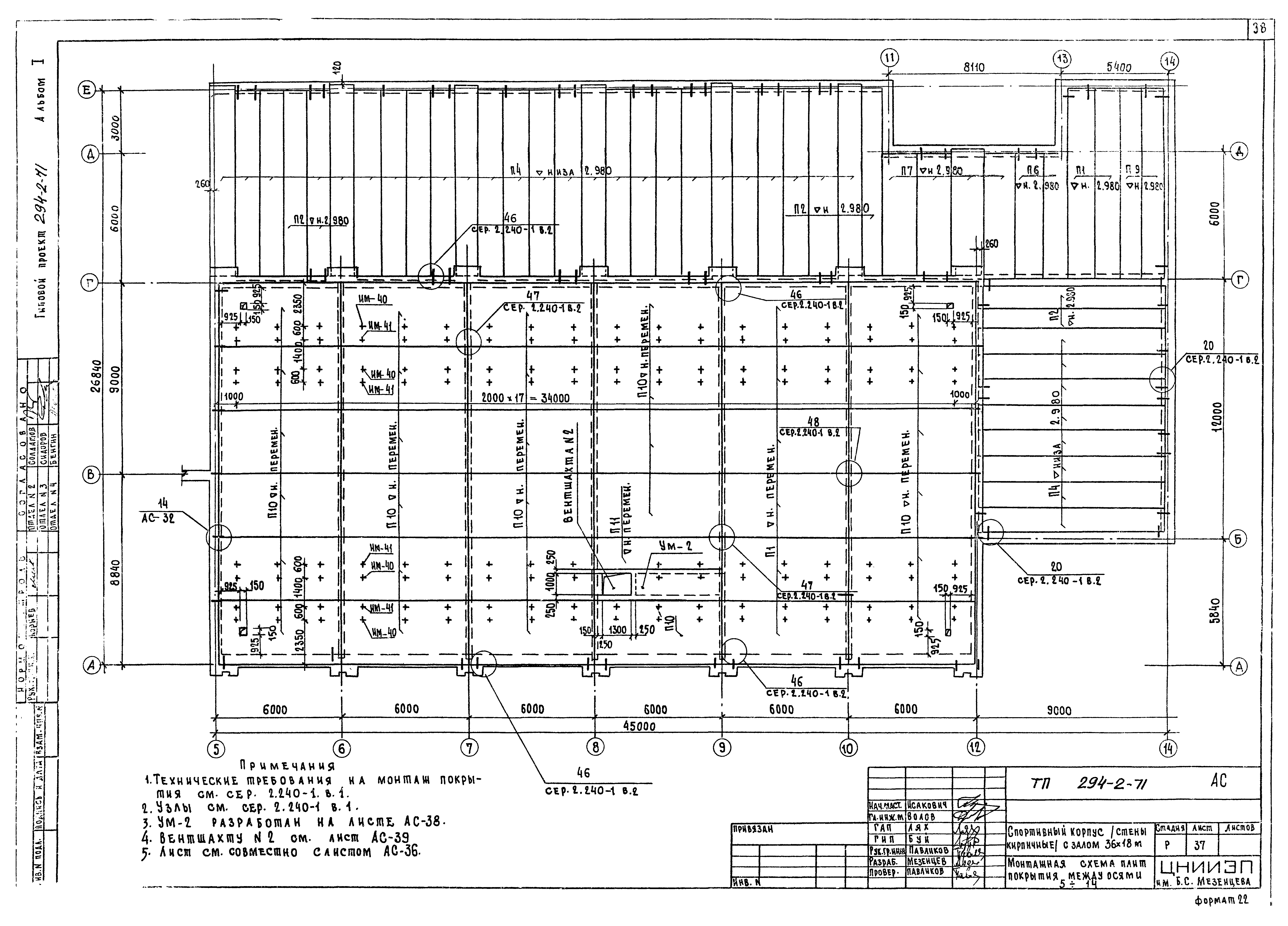
Альбом I. Архитектурно-строительные и технологические чертежи, алюминиевые витражиОбозначение: | Типовой проект 294-2-71 | Обозначение англ: | 294-2-71 | Статус: | не определен законодательством | Название рус.: | Альбом I. Архитектурно-строительные и технологические чертежи, алюминиевые витражи | Дата добавления в базу: | 01.09.2013 | Дата актуализации: | 05.05.2017 | Дата введения: | 17.12.1982 | Оглавление: | Архитектурно-строительные решения Общие данные План на отм. 0.000 между осями 1 - 5 План на отм. 0.000 между осями 5 - 14 Маркировочный план заполнения проемов Маркировочный план полов. Экспликация полов План кровли Разрез 1-1 Разрез 2-2, сечение 3-3 Фасад 1 - 14 Фасад 14 - 1 Фасад А - Е Фасад Е - А Развертка стен спортзала План подвесного потолка План расстановки светильников в спортзале 36х18 Камера сухого жара (планы, разрезы) Камера сухого жара (узлы, спецификация) Деревянные решетки ВР-1, ВР-2 Узлы и сечения по стенам Ведомость отделки помещений План фундаментов между осями 1 - 5 План фундаментов между осями 5 - 14 Приямки №1, №2, №3. Сечения фундаментов 4-4 - 8-8 Подпольный канал. Спецификация элементов Ванна, сауны. Опалубка, армирование План расположения типов перемычек Ведомость перемычек. Спецификация сборных элементов Узлы 1 и 2. Монолитные опорные подушки. Спецификация на плиты покрытия Камера глушителей Венткамера №1 Электрощитовая. Вентшахты №1 Монтажная схема плит покрытия между осями 1 - 5 Монтажная схема плит покрытия между осями 5 - 14 Монолитные участки в покрытии УМ-1, УМ-2 Вентшахта №2 Схема каркаса подвесного потолка Детали крепления спортивного оборудования Сводная спецификация Витражи алюминиевые и металлические изделия Общие данные алюминиевых витражей Монтажная схема витража по оси "А" в осях 5 - 12 и по оси "Г" в осях 12 - 5 Монтажная схема витража в осях 2 - 3 Монтажная схема витража по оси "Д" у оси "11" Монтажная схема витража по оси "Д" в осях 4 - 2 Технологическое оборудование. Спортивная технология Общие данные технологической части План кабинета врача, сауны с расположением технологического оборудования и мебели Спецификация технологического оборудования и мебели Баскетбол. Разметка и оборудование Бадминтон. Разметка и оборудование Теннис. Разметка и оборудование Волейбол. Разметка и оборудование Размещение закладных деталей | Разработан: | ЦНИИЭП им. Б.С. Мезенцева Госгражданстроя
| Утверждён: | 21.09.1981 Госгражданстрой (Gosgrazhdanstroy 273)
| Расположен в: |
|
                                                           
|