Информационная система
«Ёшкин Кот»

Скачать базу одним архивом
Скачать обновления
История создания базы
Карта сайта

Скачать Типовой проект 271-13-120.86 Альбом II. Отопление и вентиляция. Водопровод и канализация. Холодоснабжение. Электроосвещение и силовое электрооборудование. Автоматизация устройств инженерного оборудования. Связь и сигнализация

Дата актуализации: 10.08.2017

Типовой проект 271-13-120.86

Альбом II. Отопление и вентиляция. Водопровод и канализация. Холодоснабжение. Электроосвещение и силовое электрооборудование. Автоматизация устройств инженерного оборудования. Связь и сигнализация

Обозначение: Типовой проект 271-13-120.86
Обозначение англ: 271-13-120.86
Статус:не определен законодательством
Название рус.:Альбом II. Отопление и вентиляция. Водопровод и канализация. Холодоснабжение. Электроосвещение и силовое электрооборудование. Автоматизация устройств инженерного оборудования. Связь и сигнализация
Дата добавления в базу:01.09.2013
Дата актуализации:05.05.2017
Дата введения:28.10.1986
Оглавление:Чертежи основного комплекта марки ОВ
   Общие данные
   План техподполья
   План 1 этажа
   Схема системы отопления. Схема системы теплоснабжения установок П1, П2, У1. Узел управления
   Схема систем П1, П2, В1 - В5, У1, ВЕ1 - ВЕ5
   Установки систем П1, П2, В1, У1
Чертежи основного комплекта марки ОВН
   Содержание
   Конструкция тепловой изоляции
   Воздуховод из асбестоцементных листов
Чертежи основного комплекта марки ВК
   Общие данные
   План техподполья систем В1, В4, В5, Т3, Т4, К1, К2, К3
   План 1 этажа систем В1, В4, В5, Т3, Т4
   План 1 этажа систем К1, К2, К3
   Схема систем В1, Т3, Т4, К1, К2, К3
   Планы, разрезы систем В4, В5
   Схемы систем В4, В5. Спецификация оборудования
Чертежи основного комплекта марки ВКН
   Содержание
   Воронка 1
Чертежи основного комплекта марки ХС
   Общие данные
   Планы охлаждаемых камер 1 этажа. Разрезы 1-1, 2-2, 3-3
   План машинного отделения и охлаждаемых прилавков 1 этажа
   Схемы хладоновых трубопроводов
Чертежи основного комплекта марки ЭОМ
   Общие данные
   Схема питающих сетей. Схема автоматического отключения вентиляции при пожаре
   План осветительных и питающих сетей техподполья
   План осветительных сетей этажа
   План силовых и питающих сетей этажа
   Расчетная схема ЩС1
   Расчетная схема ЩС2, 3
   Опросный лист
Чертежи основного комплекта марки АУ
   Общие данные
   Приточные системы П1, П2. Схема автоматизации
   Приточные системы П1, П2. Схемы электрические принципиальные управления
   Приточные системы П1, П2. Схемы электрические принципиальные регулирования
   Приточные системы П1, П2. Схема соединений внешних проводок
   Завеса У1. Схемы автоматизации, электрическая принципиальная, соединений внешних проводок
   Приточные системы П1, П2. Завеса У1. План расположения
   Узел присоединения калориферов. Схемы автоматизации внешних проводок, план расположения
   Насос приямка. Схемы автоматизации, электрическая принципиальная и соединений внешних проводок
   Бак холодной воды. Схемы автоматизации, электрическая принципиальная и соединений внешних проводок
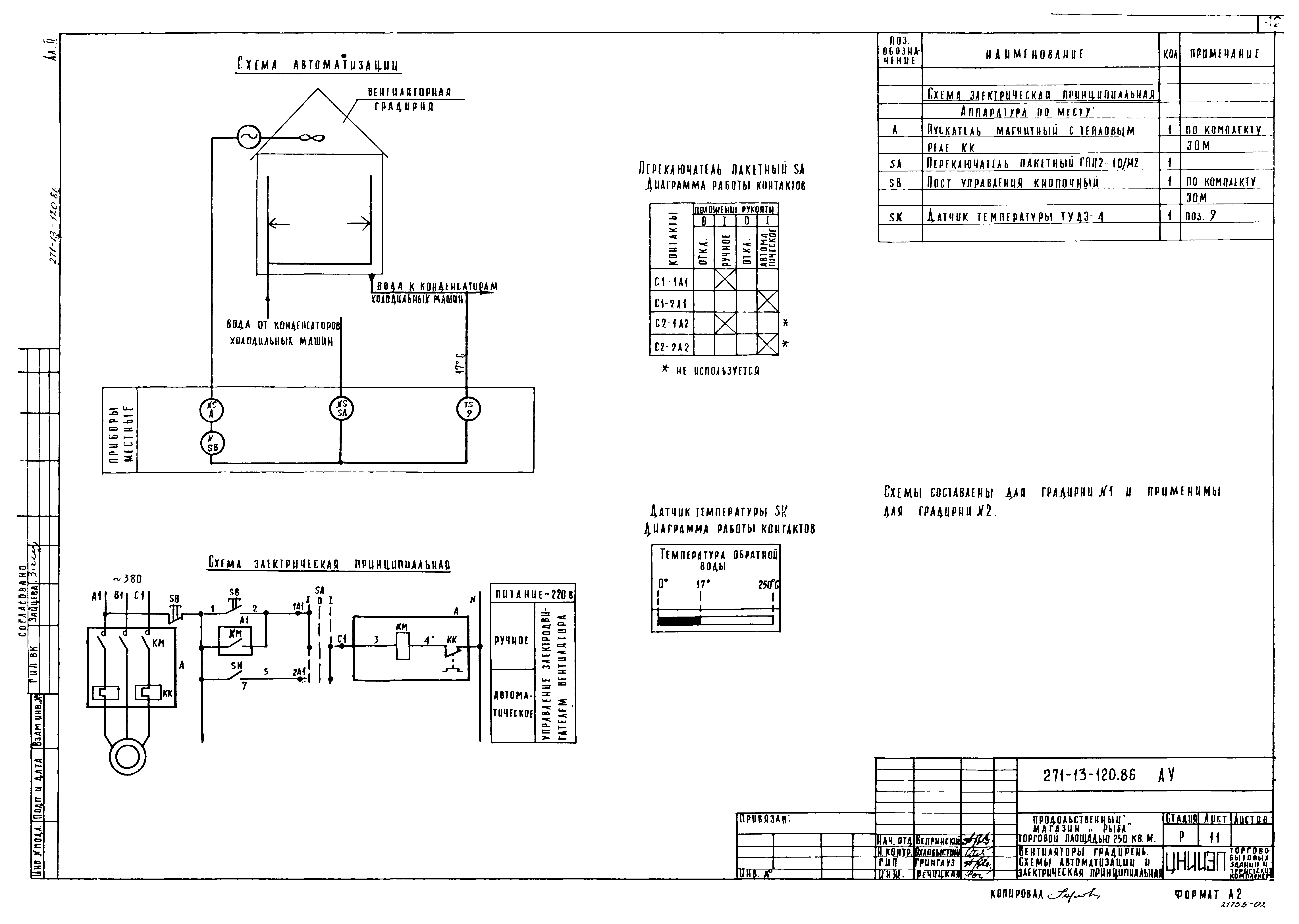
   Вентиляторы градирень. Схемы автоматизации и электрическая принципиальная
   Вентиляторы градирень. Схема соединений внешних проводок
   Насос приямка. Бак холодной воды. План расположения
   Холодильная машина Х1 для камер. Схема соединений внешних проводок
   Холодильные машины Х2, Х3 для камер. Схема соединений внешних проводок
   Холодильные машины Х1 - Х3 для камер. План расположения
Чертежи основного комплекта марки СС
   Общие данные
   План техподполья. Схемы
   План 1 этажа. Экспликация помещений
   Узлы скрытой проводки
Разработан: ЦНИИЭП торгово-бытовых зданий и туристских комплексов
Утверждён:13.07.1984 Госгражданстрой (Gosgrazhdanstroy 195)
Расположен в:Техническая документация Строительство Справочные документы Типовые строительные конструкции, изделия и узлы Общероссийский строительный каталог Общественные здания в городах и поселках городского типа Предприятия торговли и общественного питания. Общественные центры Предприятия торговли Магазины продовольственных товаров, универсамы
Типовой проект 271-13-120.86Типовой проект 271-13-120.86Типовой проект 271-13-120.86Типовой проект 271-13-120.86Типовой проект 271-13-120.86Типовой проект 271-13-120.86Типовой проект 271-13-120.86Типовой проект 271-13-120.86Типовой проект 271-13-120.86Типовой проект 271-13-120.86Типовой проект 271-13-120.86Типовой проект 271-13-120.86Типовой проект 271-13-120.86Типовой проект 271-13-120.86Типовой проект 271-13-120.86Типовой проект 271-13-120.86Типовой проект 271-13-120.86Типовой проект 271-13-120.86Типовой проект 271-13-120.86Типовой проект 271-13-120.86Типовой проект 271-13-120.86Типовой проект 271-13-120.86Типовой проект 271-13-120.86Типовой проект 271-13-120.86Типовой проект 271-13-120.86Типовой проект 271-13-120.86Типовой проект 271-13-120.86Типовой проект 271-13-120.86Типовой проект 271-13-120.86Типовой проект 271-13-120.86Типовой проект 271-13-120.86Типовой проект 271-13-120.86Типовой проект 271-13-120.86Типовой проект 271-13-120.86Типовой проект 271-13-120.86Типовой проект 271-13-120.86Типовой проект 271-13-120.86Типовой проект 271-13-120.86Типовой проект 271-13-120.86Типовой проект 271-13-120.86Типовой проект 271-13-120.86Типовой проект 271-13-120.86Типовой проект 271-13-120.86Типовой проект 271-13-120.86Типовой проект 271-13-120.86Типовой проект 271-13-120.86Типовой проект 271-13-120.86Типовой проект 271-13-120.86Типовой проект 271-13-120.86Типовой проект 271-13-120.86Типовой проект 271-13-120.86Типовой проект 271-13-120.86

© 2013 Ёшкин Кот :-) Карта сайта