Скачать Типовой проект 3.501-26 Проект стандартных опорных частей железобетонных пролетных строений длиной от 7,3 до 34,2 м для железнодорожных мостовДата актуализации: 10.08.2017 Типовой проект 3.501-26
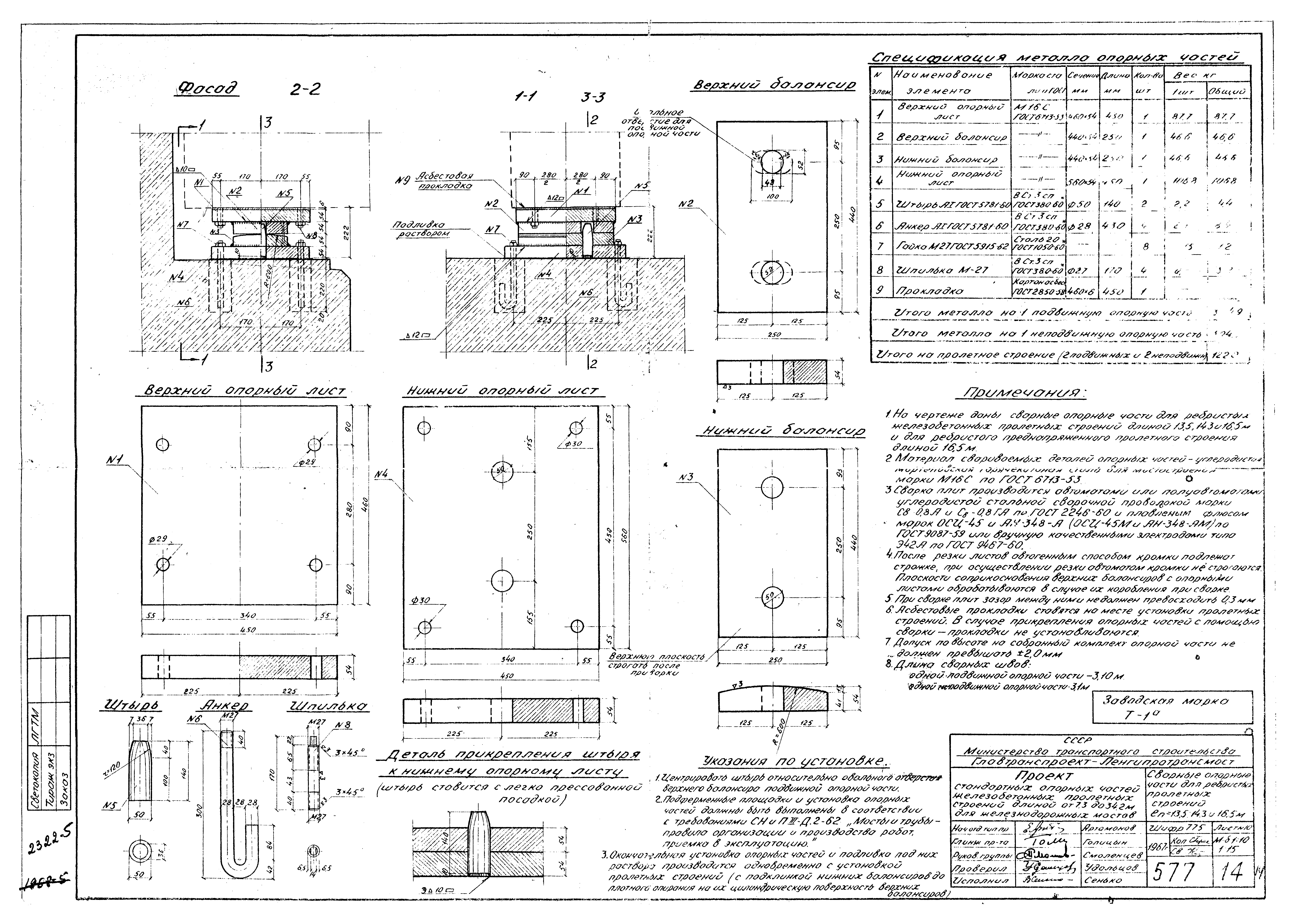
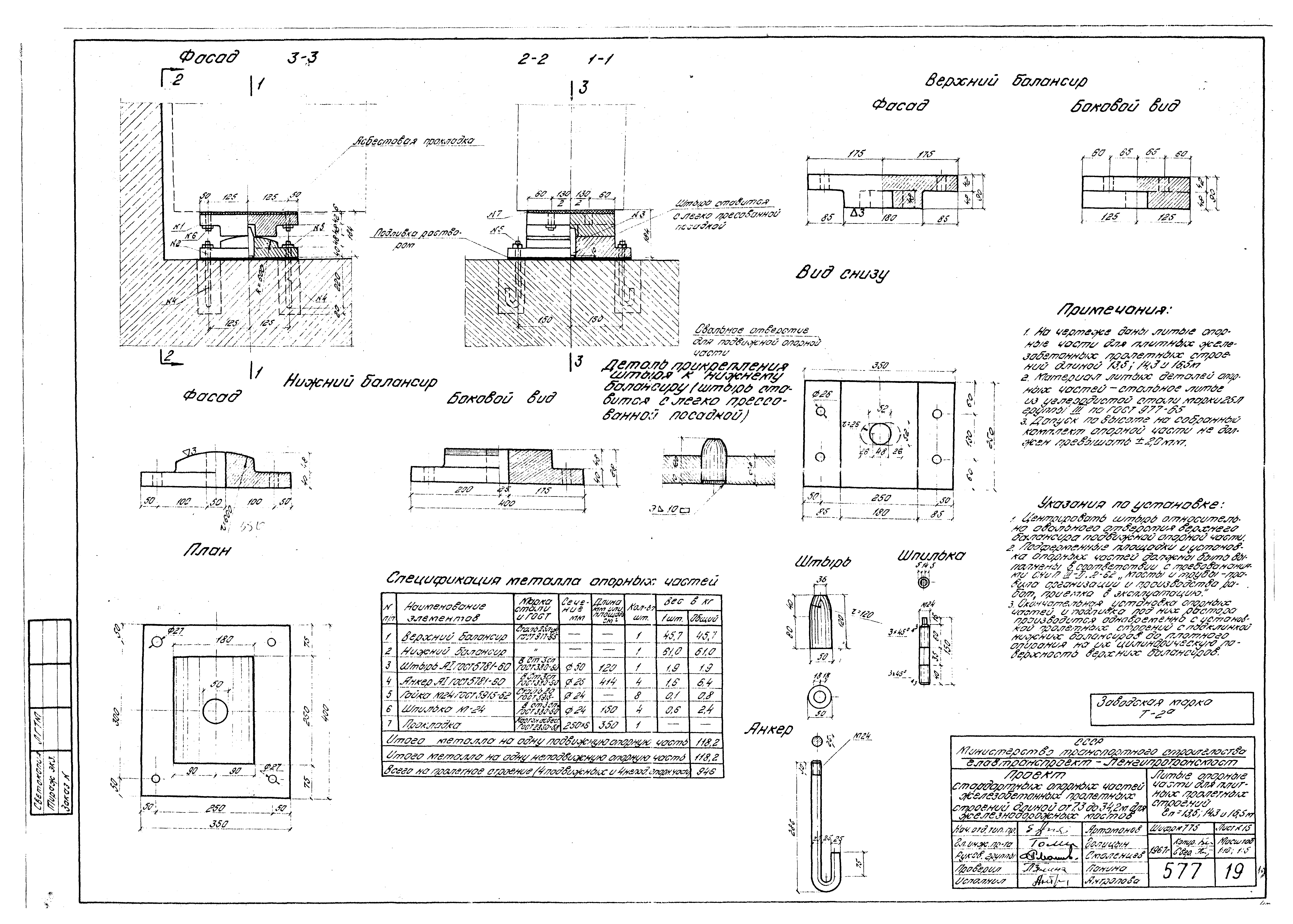
Проект стандартных опорных частей железобетонных пролетных строений длиной от 7,3 до 34,2 м для железнодорожных мостовОбозначение: | Типовой проект 3.501-26 | Обозначение англ: | 3.501-26 | Статус: | не действует | Название рус.: | Проект стандартных опорных частей железобетонных пролетных строений длиной от 7,3 до 34,2 м для железнодорожных мостов | Дата добавления в базу: | 01.09.2013 | Дата актуализации: | 05.05.2017 | Дата окончания срока действия: | 01.03.1982 | Оглавление: | Пояснительная записка I. Общая часть Основные показатели Расчетный лист стандартных опорных частей (плоских и тангенциальных) для железобетонных пролетных строений длиной от 7,3 до 16,5 м и преднапряженного пролетного строения длиной 16,5 м Расчетный лист стандартных опорных частей для преднапряженного пролетного строения длиной 18,7 м (секторных) Расчетный лист стандартных опорных частей для преднапряженных пролетных строений длиной 23,6 и 27,6 м (секторных) Расчетный лист стандартных опорных частей для преднапряженного пролетного строения длиной 34,2 м (секторных) II. Конструкция Стандартные сварные опорные части (П-1) для плитных железобетонных пролетных строений длиной 7,3 и 7,7 м Стандартные сварные опорные части (Т-1) для железобетонных ребристых пролетных строений длиной от 9,3 до 12,2 м Стандартные литые опорные части (Т-1) для железобетонных ребристых пролетных строений длиной от 9,3 до 12,2 м Стандартные сварные опорные части (Т-1а) для железобетонных ребристых пролетных строений длиной от 13,5 до 16,5 м и преднапряженного пролетного строения длиной 16,5 м Стандартные литые опорные части (Т-1а) для железобетонных ребристых пролетных строений длиной от 13,5 до 16,5 м и преднапряженного пролетного строения длиной 16,5 м Стандартные сварные опорные части (Т-2) для железобетонных плитных пролетных строений длиной от 9,3 до 12,2 м Стандартные литые опорные части (Т-2) для железобетонных плитных пролетных строений длиной от 9,3 до 12,2 м Стандартные сварные опорные части (Т-2а) для железобетонных плитных пролетных строений длиной от 13,5 до 16,5 м Стандартные литые опорные части (Т-2а) для железобетонных плитных пролетных строений длиной от 13,5 до 16,5 м Стандартные сварные опорные части (С-2) для преднапряженного ребристого пролетного строения длиной 18,7 м Стандартные литые опорные части (С-2) для преднапряженного ребристого пролетного строения длиной 18,7 м Стандартные литые опорные части (С-2а) для преднапряженных ребристых пролетных строений длиной 23,6 и 27,6 м Стандартные литые опорные части (С-2б) для преднапряженного ребристого пролетного строения длиной 34,2 м | Разработан: | Ленгипротрансмост
| Утверждён: | 01.01.1967 Министерство транспортного строительства СССР (USSR Ministry of Transport Construction )
| Расположен в: |
| Чем заменён: | |
                                 
|