Скачать Типовой проект 284-9-27 Альбом I. Пояснительная записка, рабочие чертежиДата актуализации: 10.08.2017 Типовой проект 284-9-27
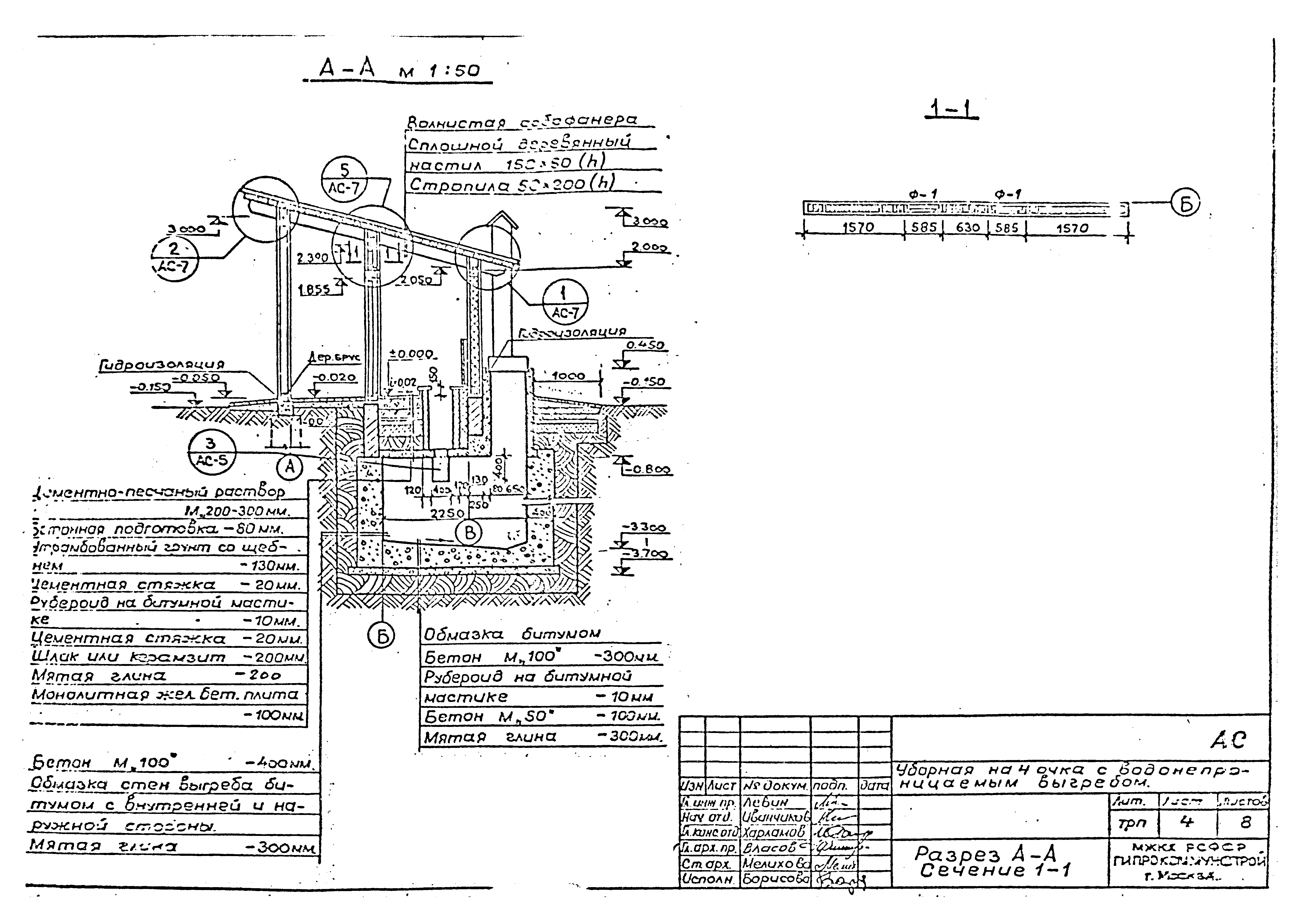
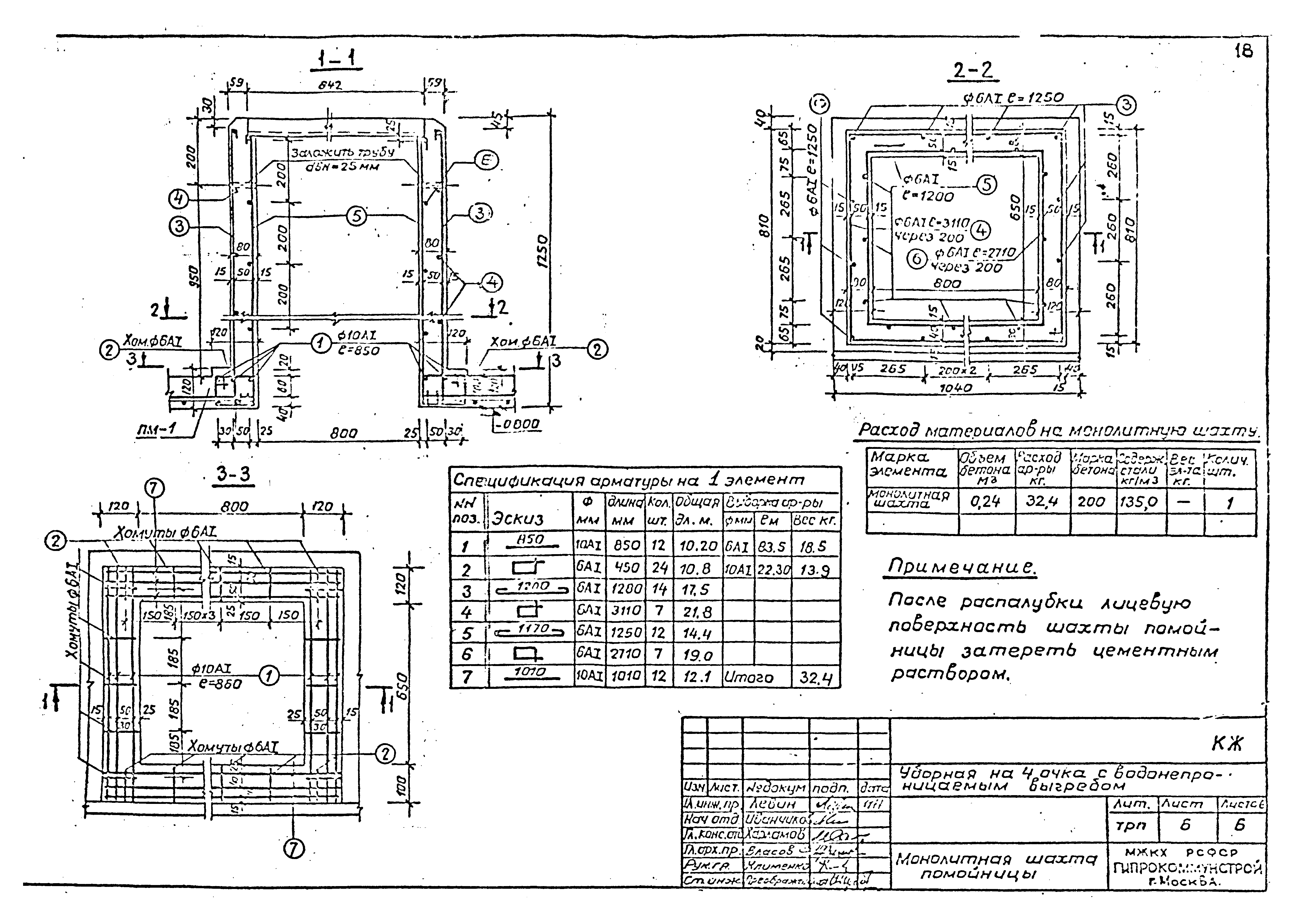
Альбом I. Пояснительная записка, рабочие чертежиОбозначение: | Типовой проект 284-9-27 | Обозначение англ: | 284-9-27 | Статус: | не определен законодательством | Название рус.: | Альбом I. Пояснительная записка, рабочие чертежи | Дата добавления в базу: | 01.09.2013 | Дата актуализации: | 05.05.2017 | Дата введения: | 01.11.1977 | Оглавление: | Пояснительная записка План. Фасады в осях 1 - 2 и А - В (вариант с кирпичными стенами) Разрез А-А. Сечение 1-1 План. Фасады в осях 1 - 2 и А - В (вариант с каркасно-панельными стенами) Разрез А-А. Сечение 1-1 Стульчак, вытяжной короб, фановая труба Дверной блок ИД-1. Фрамужный блок Ф-1 Детали 1 - 5 Деревянные мусоросборники емкостью 1000; 500; 250 л. Размещение мусоросборников План фундаментов и разрез 1-1 (выгреб из железобетонных колец) Плита перекрытия выгреба, сечения 2-2, 3-3, 4-4 План фундаментов и разрез 1-1 (выгреб из монолитного бетона) Плиты перекрытия. Сечения. Спецификации План покрытия Монолитная шахта помойницы План с сетями электроосвещения | Разработан: | Гипрокоммунстрой Минжилкомхоза РСФСР
| Утверждён: | 28.06.1976 МЖКХ РСФСР (18ТД)
| Расположен в: |
|
                 
|