Информационная система
«Ёшкин Кот»

Скачать базу одним архивом
Скачать обновления
История создания базы
Карта сайта

Скачать Серия 3.503.1-55 Выпуск 2. Пролетное строение. Мостовое полотно. Рабочие чертежи

Дата актуализации: 10.08.2017

Серия 3.503.1-55

Выпуск 2. Пролетное строение. Мостовое полотно. Рабочие чертежи

Обозначение: Серия 3.503.1-55
Обозначение англ: Series 3.503.1-55
Статус:не действует
Название рус.:Выпуск 2. Пролетное строение. Мостовое полотно. Рабочие чертежи
Дата добавления в базу:01.09.2013
Дата актуализации:05.05.2017
Дата введения:25.02.1981
Дата окончания срока действия:01.08.1988
Оглавление:3.503.1-55.02.00.ДО Содержание
3.503.1-55.02.00.ТО Техническое описание
3.503.1-55.02.00.ВД Ведомость ссылочных документов
3.503.1-55.02.01 Мостовое полотно для пролета длиной 6 м 1МП6, 2МП6. Спецификация
3.503.1-55.02.02 Мостовое полотно для пролета длиной 9 м 1МП9, 2МП9. Спецификация
3.503.1-55.02.03 Поперечные разрезы
3.503.1-55.02.04 Узлы 1 и 2 при асфальтобетонном покрытии проезжей части
3.503.1-55.02.05 Узлы 1 и 2 при цементобетонном покрытии проезжей части
3.503.1-55.02.06 Узлы 3 - 7 сопряжения элементов пролетного строения, мостового полотна и опор
3.503.1-55.02.07 Схема расположения элементов пролетного строения 1ПС6, 1ПС9. Спецификация
3.503.1-55.02.07СБ Схема расположения элементов пролетного строения 1ПС6, 1ПС9
3.503.1-55.02.08 Схема расположения элементов пролетного строения 2ПС6, 2ПС9. Спецификация
3.503.1-55.02.08СБ Схема расположения элементов пролетного строения 2ПС6, 2ПС9
3.503.1-55.02.09 Схема расположения элементов пролетного строения 3ПС6, 3ПС9. Спецификация
3.503.1-55.02.09СБ Схема расположения элементов пролетного строения 3ПС6, 3ПС9
3.503.1-55.02.10 Схема расположения элементов пролетного строения 4ПС6, 4ПС9. Спецификация
3.503.1-55.02.10СБ Схема расположения элементов пролетного строения 4ПС6, 4ПС9
3.503.1-55.02.11 Схема расположения элементов пролетного строения 5ПС6, 5ПС9. Спецификация
3.503.1-55.02.11СБ Схема расположения элементов пролетного строения 5ПС6, 5ПС9
3.503.1-55.02.12 Схема расположения элементов пролетного строения 6ПС6, 6ПС9. Спецификация
3.503.1-55.02.12СБ Схема расположения элементов пролетного строения 6ПС6, 6ПС9
3.503.1-55.02.13 Схема расположения блоков тротуара для одного пролета
3.503.1-55.02.14 Узлы 8 и 9 прикрепления блоков тротуара
3.503.1-55.02.15 Участок монолитный Ум1, Ум2
3.503.1-55.02.16 Участок монолитный Ум3
3.503.1-55.02.17 Участок монолитный Ум4
3.503.1-55.02.18 Участок монолитный Ум5
3.503.1-55.02.19 Участок монолитный Ум6
3.503.1-55.02.16.ВС Участок монолитный Ум3 - Ум6. Выборка стали
3.503.1-55.02.20 Шов деформационный 1ШД
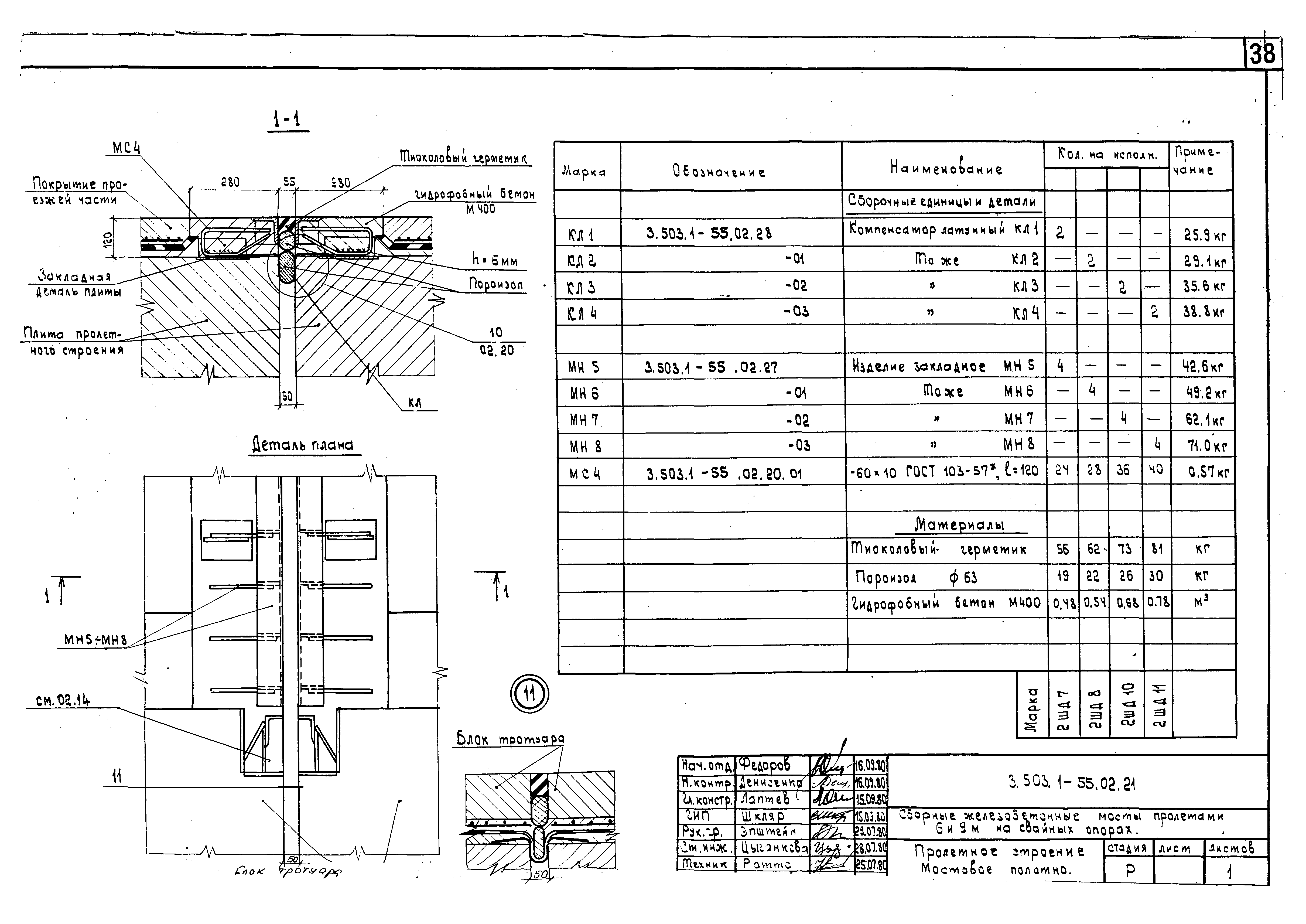
3.503.1-55.02.21 Шов деформационный 2ШД
3.503.1-55.02.22 Спираль СП1 - СП4
3.503.1-55.02.23 Стержень одиночный участка монолитного Ум3 - Ум6
3.503.1-55.02.24 Стержень одиночный участка монолитного Ум3 - Ум6
3.503.1-55.02.25 Стержень одиночный участка монолитного Ум3 - Ум6
3.503.1-55.02.26 Изделие закладное МН1 - МН4 деформационного шва 1 ШД
3.503.1-55.02.27 Изделие закладное МН5 - МН8 деформационного шва 2 ШД
3.503.1-55.02.28 Компенсатор латунный КЛ1 - КЛ4
Разработан: БелгипродорНИИ Минавтодора БССР
Утверждён:23.02.1981 Миндорстрой БССР (BSSR Mindorstroy 1/81)
Расположен в:Техническая документация Строительство Справочные документы Типовые строительные конструкции, изделия и узлы Общероссийский строительный каталог Строительные конструкции, изделия и узлы зданий и сооружений для всех видов строительства Конструкции и изделия сооружений и оборудования зданий Надземные сооружения Конструкции и сооружения транспорта Пролетные строения мостов, мосты и путепроводы
Чем заменён:
Серия 3.503.1-55Серия 3.503.1-55Серия 3.503.1-55Серия 3.503.1-55Серия 3.503.1-55Серия 3.503.1-55Серия 3.503.1-55Серия 3.503.1-55Серия 3.503.1-55Серия 3.503.1-55Серия 3.503.1-55Серия 3.503.1-55Серия 3.503.1-55Серия 3.503.1-55Серия 3.503.1-55Серия 3.503.1-55Серия 3.503.1-55Серия 3.503.1-55Серия 3.503.1-55Серия 3.503.1-55Серия 3.503.1-55Серия 3.503.1-55Серия 3.503.1-55Серия 3.503.1-55Серия 3.503.1-55Серия 3.503.1-55Серия 3.503.1-55Серия 3.503.1-55Серия 3.503.1-55Серия 3.503.1-55Серия 3.503.1-55Серия 3.503.1-55Серия 3.503.1-55Серия 3.503.1-55Серия 3.503.1-55Серия 3.503.1-55Серия 3.503.1-55Серия 3.503.1-55Серия 3.503.1-55Серия 3.503.1-55Серия 3.503.1-55Серия 3.503.1-55Серия 3.503.1-55Серия 3.503.1-55Серия 3.503.1-55

© 2013 Ёшкин Кот :-) Карта сайта