Информационная система
«Ёшкин Кот»

Скачать базу одним архивом
Скачать обновления
История создания базы
Карта сайта

Скачать Типовой проект 902-2-466.89 Альбом 3. Архитектурно-строительные решения. Конструкции железобетонные. Конструкции металлические. Генплан (самотечная подача сточных вод на фильтрацию) (из ТП 902-2-467.89)

Дата актуализации: 10.08.2017

Типовой проект 902-2-466.89

Альбом 3. Архитектурно-строительные решения. Конструкции железобетонные. Конструкции металлические. Генплан (самотечная подача сточных вод на фильтрацию) (из ТП 902-2-467.89)

Обозначение: Типовой проект 902-2-466.89
Обозначение англ: 902-2-466.89
Статус:не определен законодательством
Название рус.:Альбом 3. Архитектурно-строительные решения. Конструкции железобетонные. Конструкции металлические. Генплан (самотечная подача сточных вод на фильтрацию) (из ТП 902-2-467.89)
Дата добавления в базу:01.09.2013
Дата актуализации:05.05.2017
Дата введения:21.11.1988
Оглавление:Содержание альбома
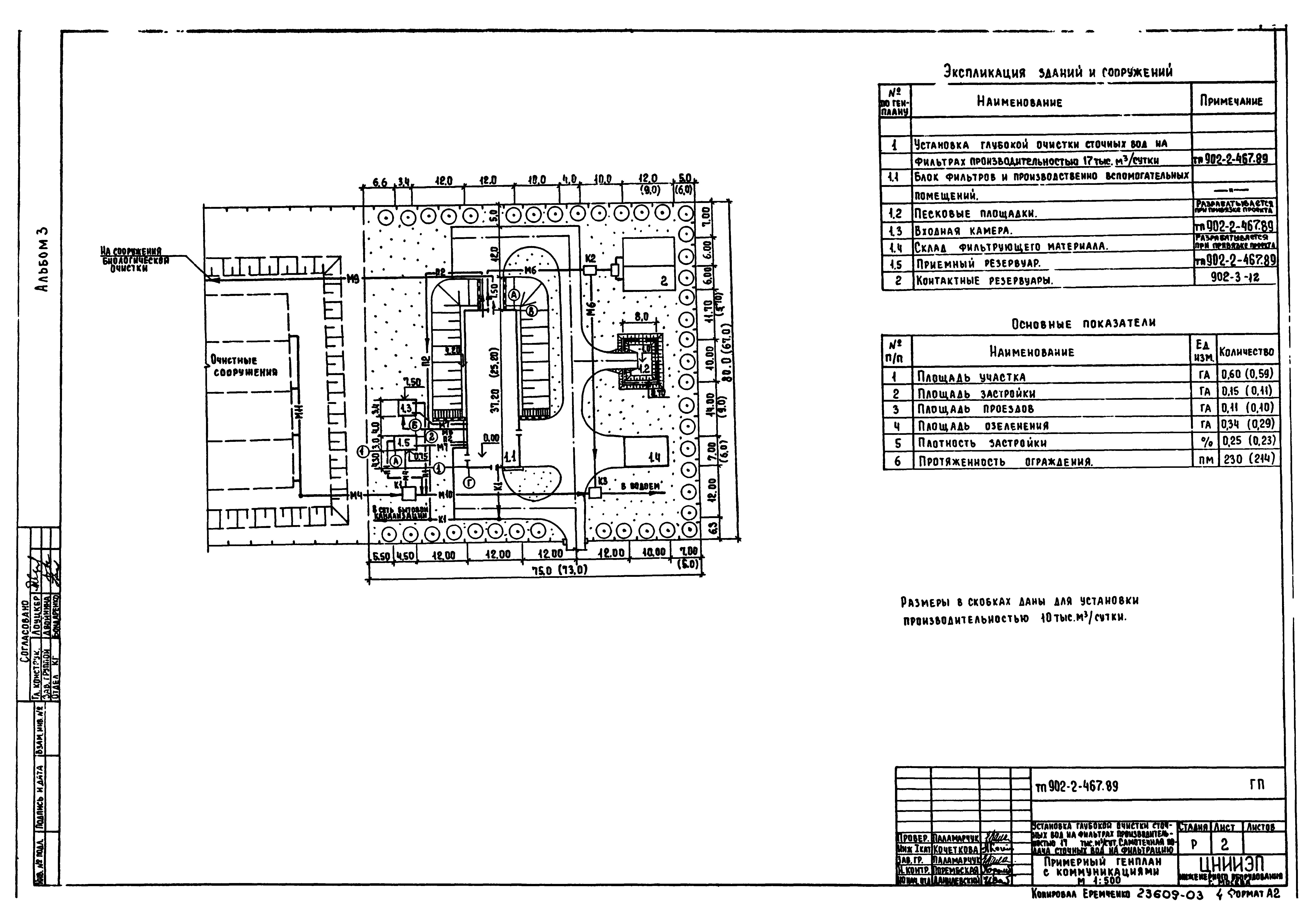
Примерный генплан с коммуникациями
Архитектурно-строительные решения
   Общие данные
   План на отм. 0.000
   Разрезы 1-1, 2-2, 3-3
   Фасады 1 - 8 (6); 8 (6) - 1; А - Г; Г- А
   Ведомости перемычек и проемов ворот и дверей. Спецификация элементов заполнения проемов. Узел I
   Планы кровли и полов. Экспликация полов. Ведомость отделки помещений
Конструкции железобетонные
   Общие данные
   Схема расположения фундаментов и подбетонок. Разрезы 1-1 - 3-3
   Схема расположения фундаментов и подбетонок. Разрезы 4-4 - 12-12
   Схема расположения подпорной стены
   Схема расположения фундаментов под оборудование и каналов. Разрезы
   Фильтры. Схемы расположения стеновых панелей и лотков, закладных деталей на отм. 3.600
   Фильтры. Разрезы 1-1 - 4-4
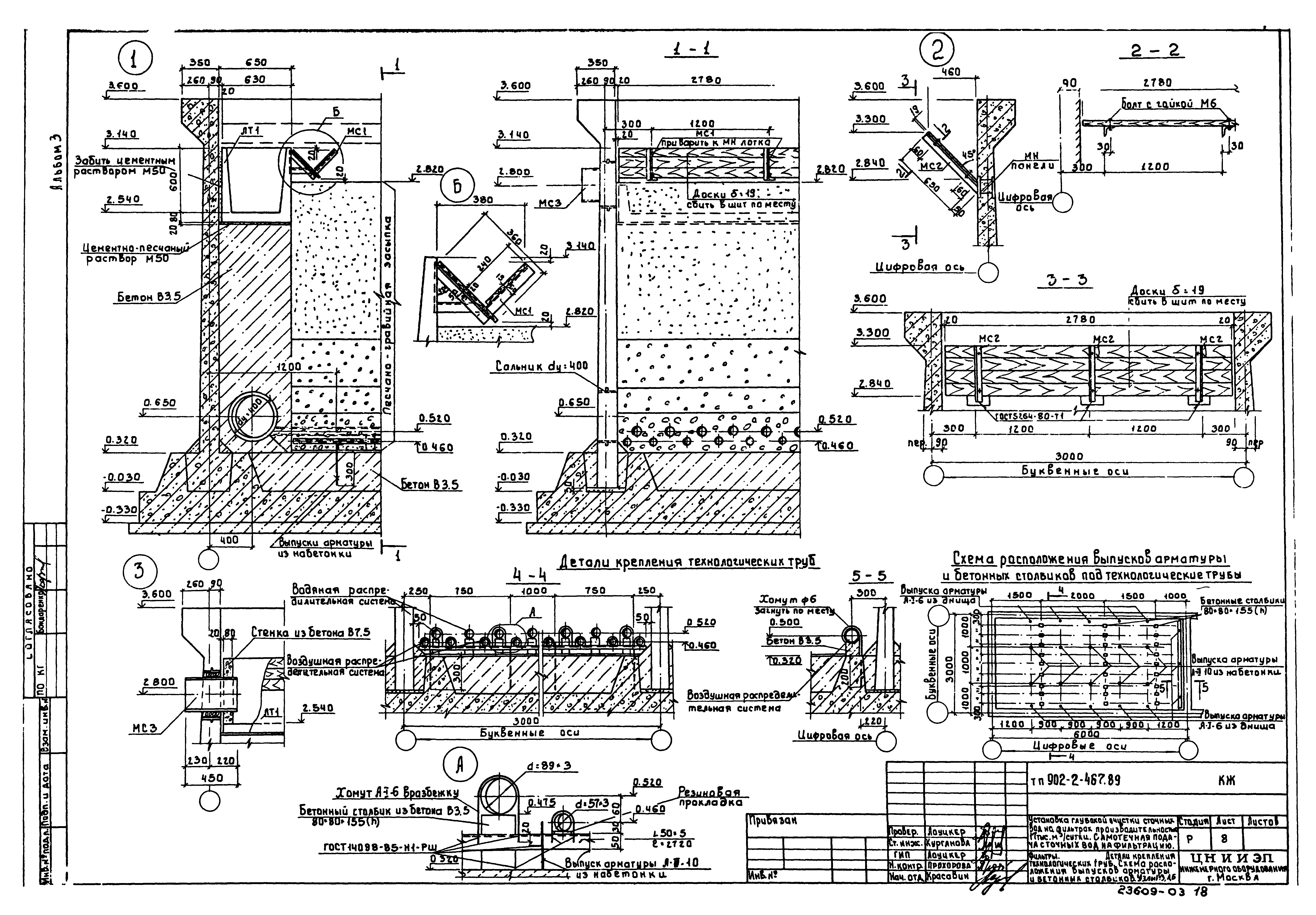
   Фильтры. Детали крепления технологических труб. Схема расположения выпусков арматуры и бетонных столбиков. Узлы 1 - 3, А, Б
   Фильтры. Спецификация к схемам расположения стеновых панелей и лотков, закладных деталей на отм. 3.600
   Фильтры. Днище. Опалубочные чертежи. Планы. Разрезы. Узлы
   Фильтры. Днище. Армирование. Схемы расположения каркасов, нижних сеток, верхних сеток
   Фильтры. Днище. Армирование. Разрезы 1-1 - 3-3. Узлы 1 - 3
   Фильтры. Монолитные участки стен. Опалубочный чертеж
   Фильтры. Монолитные участки стен. Армирование
   Фильтры. Монолитные участки стен. Армирование. Спецификация
   Фильтры. Схемы расположения плит перекрытия на отм. 0.000. Разрезы
   Схема расположения плит покрытия. Венткамера. Разрезы
   Камера входная
   Приемный резервуар. Планы. Разрезы
   Приемный резервуар. Армирование
Конструкции металлические
   Общие данные. Ведомость металлоконструкций по видам профилей
   Производительность 17 тысяч куб. м/сутки. Общие данные. Техническая спецификация стали
   Производительность 10 тысяч куб. м/сутки. Общие данные. Техническая спецификация стали
   Схемы расположения подвесных путей. Разрезы. Узлы
   Схемы расположения балок под площадки на отм. 0.350. Ограждения фильтров. Разрезы. Узлы
Организация строительства
   Схема стройгенплана
   График производства работ
Разработан: ЦНИИЭП иженерного оборудования
Утверждён:21.11.1988 Госкомархитектура (310)
Расположен в:Техническая документация Строительство Справочные документы Типовые строительные конструкции, изделия и узлы Общероссийский строительный каталог Промышленные предприятия, здания и сооружения Здания и сооружения санитарно-технические Канализация Сооружения доочистки Установки очистные и контактные резервуары
Типовой проект 902-2-466.89Типовой проект 902-2-466.89Типовой проект 902-2-466.89Типовой проект 902-2-466.89Типовой проект 902-2-466.89Типовой проект 902-2-466.89Типовой проект 902-2-466.89Типовой проект 902-2-466.89Типовой проект 902-2-466.89Типовой проект 902-2-466.89Типовой проект 902-2-466.89Типовой проект 902-2-466.89Типовой проект 902-2-466.89Типовой проект 902-2-466.89Типовой проект 902-2-466.89Типовой проект 902-2-466.89Типовой проект 902-2-466.89Типовой проект 902-2-466.89Типовой проект 902-2-466.89Типовой проект 902-2-466.89Типовой проект 902-2-466.89Типовой проект 902-2-466.89Типовой проект 902-2-466.89Типовой проект 902-2-466.89Типовой проект 902-2-466.89Типовой проект 902-2-466.89Типовой проект 902-2-466.89Типовой проект 902-2-466.89Типовой проект 902-2-466.89Типовой проект 902-2-466.89Типовой проект 902-2-466.89Типовой проект 902-2-466.89Типовой проект 902-2-466.89Типовой проект 902-2-466.89Типовой проект 902-2-466.89Типовой проект 902-2-466.89Типовой проект 902-2-466.89Типовой проект 902-2-466.89Типовой проект 902-2-466.89

© 2013 Ёшкин Кот :-) Карта сайта