Информационная система
«Ёшкин Кот»

Скачать базу одним архивом
Скачать обновления
История создания базы
Карта сайта

Скачать Типовой проект 409-23-63.88 Альбом IV. Часть 1. Электроснабжение. Электроосвещение. Связь. Электросиловое оборудование и управление

Дата актуализации: 10.08.2017

Типовой проект 409-23-63.88

Альбом IV. Часть 1. Электроснабжение. Электроосвещение. Связь. Электросиловое оборудование и управление

Обозначение: Типовой проект 409-23-63.88
Обозначение англ: 409-23-63.88
Статус:не определен законодательством
Название рус.:Альбом IV. Часть 1. Электроснабжение. Электроосвещение. Связь. Электросиловое оборудование и управление
Дата добавления в базу:01.09.2013
Дата актуализации:05.05.2017
Дата введения:20.04.1987
Оглавление:Электроснабжение ЭС
   Общие данные
   Схема электрическая принципиальная
Электроосвещение ЭО
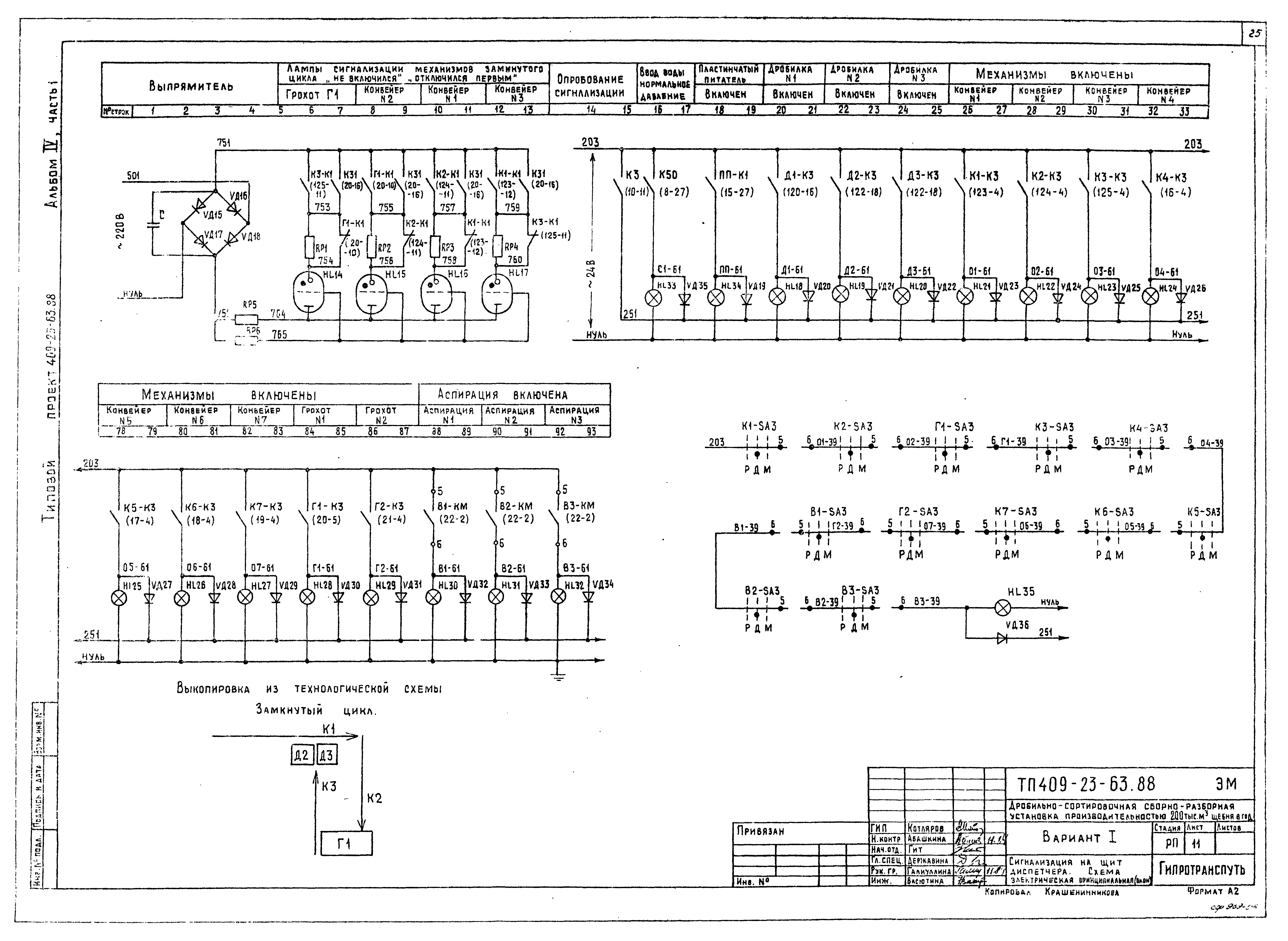
   Вариант I, II
      Общие данные
   Вариант I
      Электротехнический комплекс. Электроосвещение. План сети
      Электроосвещение агрегатов
      Электроосвещение промплощадки
   Вариант II
      Электротехнический комплекс. Электроосвещение. План сети
      Электроосвещение агрегатов
      Электроосвещение промплощадки
Устройства связи СС
   Вариант I, II
      Общие данные. Телефонизация и громкоговорящее оповещение
Электросиловое оборудование и управление ЭМ
   Общие данные
   Вариант I
      Схема расположения средств автоматизации и контроля
      Электропитание вторичных цепей. Схема электрическая принципиальная
      Предупредительная сигнализация. Схема электрическая принципиальная
      Централизованное управление. Пуск. Схема электрическая принципиальная
      Централизованное управление. Остановка. Схема электрическая принципиальная
      Сигнализация на щит диспетчера. Схема электрическая принципиальная
      Распределительная сеть 380/220 В. Щит управления 1Щ. Схема электрическая принципиальная
      Распределительная сеть 380/220 В. Шинопровод 1Ш. Схема электрическая принципиальная
      Пластинчатый питатель. Схема электрическая принципиальная
      Конвейер №4. Схема электрическая принципиальная
      Конвейер №5. Схема электрическая принципиальная
      Конвейер №6. Схема электрическая принципиальная
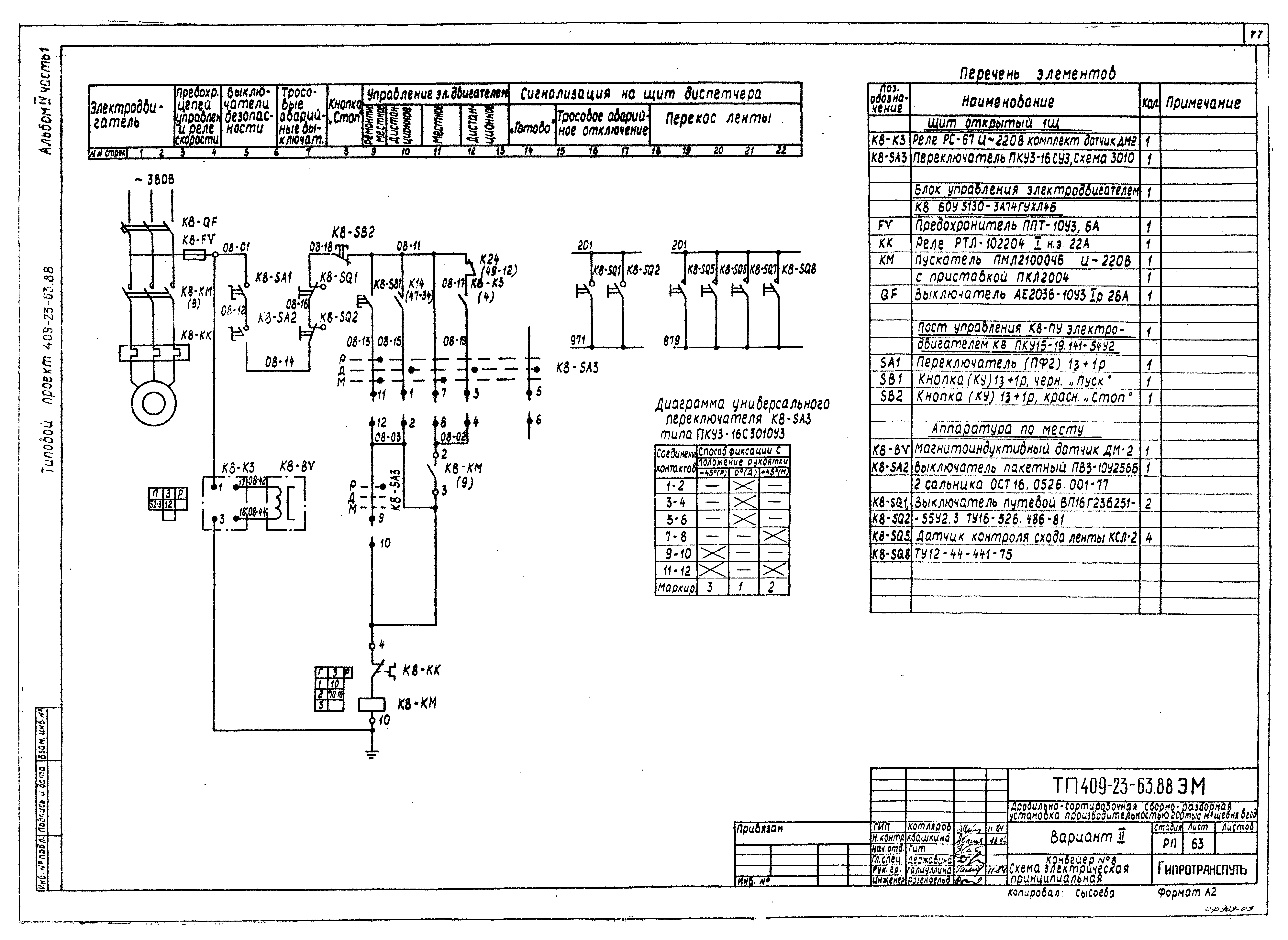
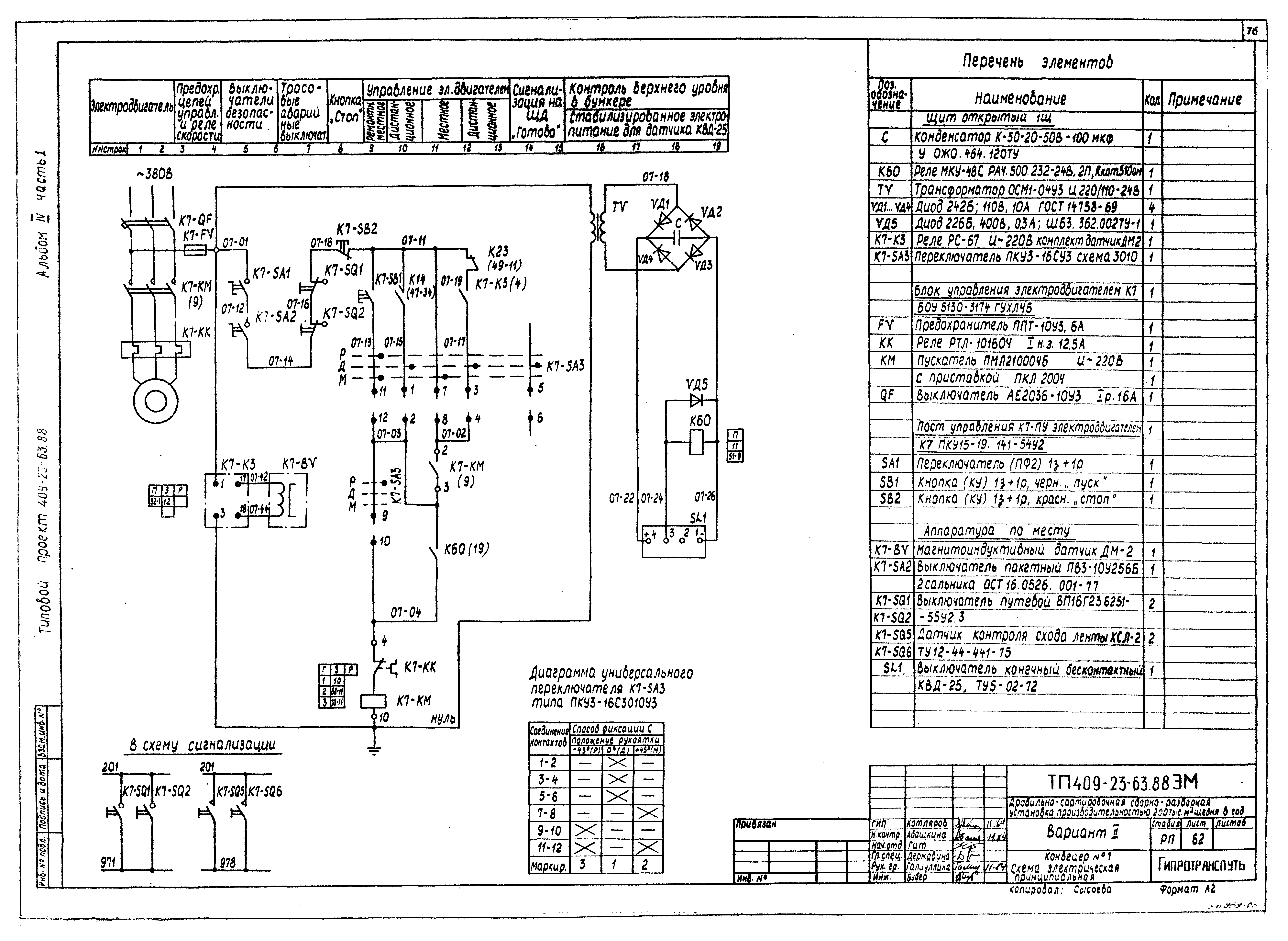
      Конвейер №7. Схема электрическая принципиальная
      Грохот №1. Схема электрическая принципиальная
      Грохот №2. Схема электрическая принципиальная
      Аспирационная система В1 (В2, В3). Схема электрическая принципиальная
      Конвейеры №№1, 4, 5, 6. Схема электрическая подключений
      Конвейеры №№2, 3, 7. Схема электрическая подключений
      Грохоты №№1, 2. Аспирационные системы №№1, 2, 3. Пост 1ПЦ. Схема электрическая подключений
      Щит открытый 1Щ. Панель 1. Схема электрическая подключений
      Щит открытый 1Щ. Панель 2. Схема электрическая подключений
      Щит открытый 1Щ. Панель 3. Схема электрическая подключений
      Щит открытый 1Щ. Панель 4. Схема электрическая подключений
      Щит открытый 1Щ. Панель 5. Схема электрическая подключений
      Щит открытый 1Щ. Панель 6. Схема электрическая подключений
      Щит открытый 1Щ. Панель 7. Схема электрическая подключений
      Щит диспетчера ЩД. Схема электрическая подключений
      Расположение электрооборудования и прокладка сетей. План
      Расположение электрооборудования и прокладка сетей. Разрез А-А, Б-Б
      Расположение электрооборудования и прокладка сетей. Разрез В-В, Г-Г
      Спецификация на изделия и материалы к листам 34…37
      Расположение электрооборудования и прокладка сетей в электротехническом комплексе. План и разрез
      Кабельный журнал
      Трубно-заготовительная ведомость
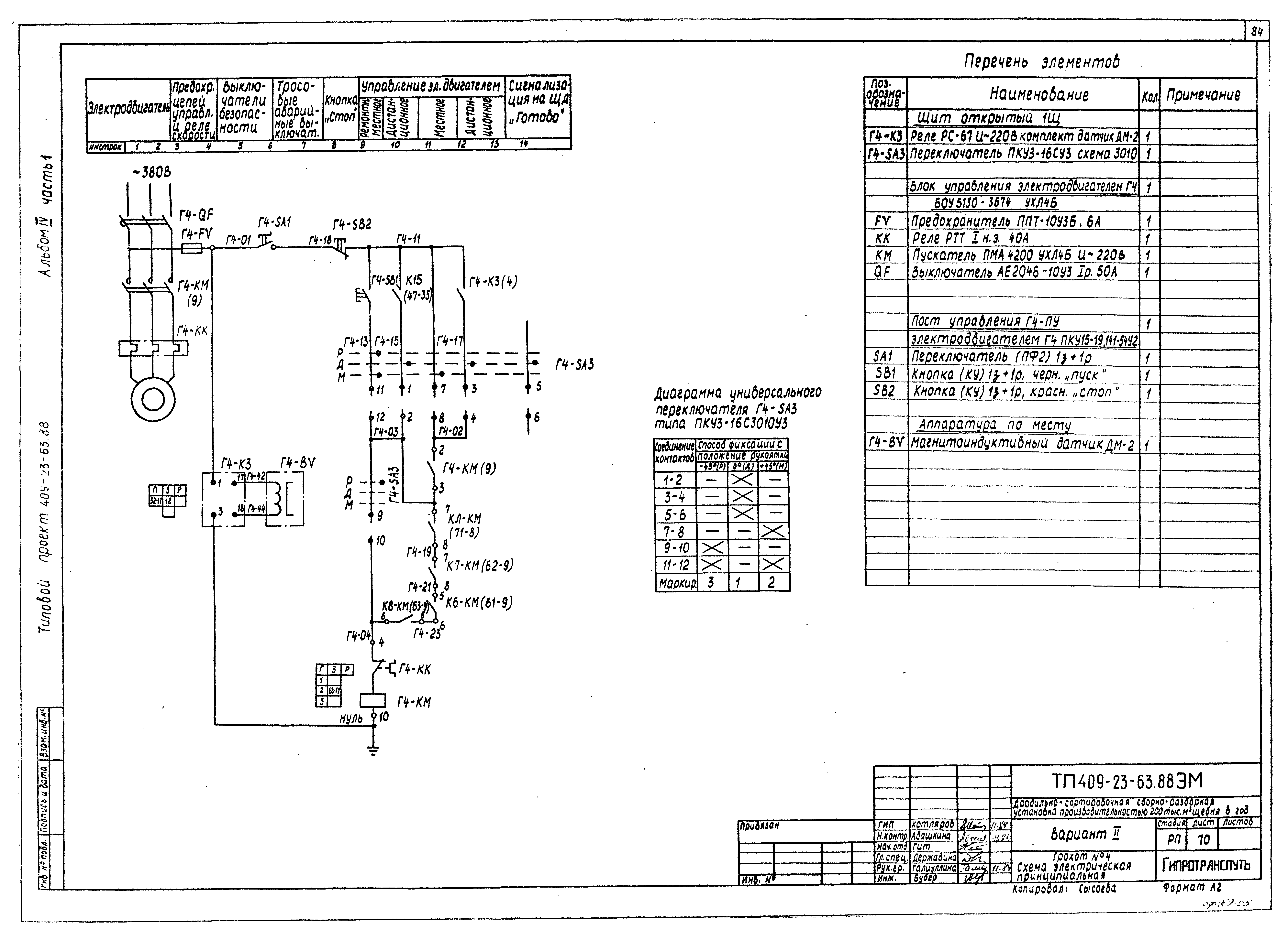
   Вариант II
      Схема расположения средств автоматизации и контроля
      Электропитание вторичных цепей. Схема электрическая принципиальная
      Предупредительная сигнализация. Схема электрическая принципиальная
      Централизованное управление. Пуск. Схема электрическая принципиальная
      Централизованное управление. Остановка. Схема электрическая принципиальная
      Сигнализация на щит диспетчера. Схема электрическая принципиальная
      Общие цепи управления. Контроль давления. Схема электрическая принципиальная
      Распределительная сеть 380/220 В. Щит открытый 1Щ. Схема электрическая принципиальная
      Распределительная сеть 380/220 В. Шинопровод 1Ш. Схема электрическая принципиальная
      Пластинчатый питатель. Схема электрическая принципиальная
      Конвейер №4. Схема электрическая принципиальная
      Конвейер №5. Схема электрическая принципиальная
      Конвейер №6. Схема электрическая принципиальная
      Конвейер №7. Схема электрическая принципиальная
      Конвейер №8. Схема электрическая принципиальная
      Конвейер №9. Схема электрическая принципиальная
      Конвейер №10. Схема электрическая принципиальная
      Конвейер №11. Схема электрическая принципиальная
      Грохот №1. Схема электрическая принципиальная
      Грохот №2. Схема электрическая принципиальная
      Грохот №3. Схема электрическая принципиальная
      Грохот №4. Схема электрическая принципиальная
      Классификатор. Схема электрическая принципиальная
      Аспирационные системы В1 (В2, В3, В4). Схема электрическая принципиальная
      Задвижка №1. Схема электрическая принципиальная
      Дробилка №4 КМД-1750. Схема электрическая принципиальная
      Дробилка №4 КМД-1750. Контроль температуры. Схема электрическая принципиальная
      Дробилка №4 КМД-1750. Гидроагрегат. Схема электрическая принципиальная
      Дробилка №4 КМД-1750. Установка смазочная. Схема электрическая принципиальная
      Дробилка №4 КМД-1750. Насосы подачи масла в пылевой затвор. Схема электрическая принципиальная
      Дробилка №4 КМД-1750. Насосы №6, №7 охлаждения масла. Схема электрическая принципиальная
      Насосы №1, №2. Схема электрическая принципиальная
      Насосы №3, №4. Схема электрическая принципиальная
      Насосы №5, №8. Схема электрическая принципиальная
Разработан: Гипротранспуть
Утверждён:20.04.1987 Министерство путей сообщения СССР (USSR Ministry of Railroads 2273у)
Издан: Госстрой СССР (1989 г. )
Расположен в:Техническая документация Строительство Справочные документы Типовые строительные конструкции, изделия и узлы Общероссийский строительный каталог Промышленные предприятия, здания и сооружения Предприятия, здания и сооружения промышленности и электроэнергетики Строительная индустрия и промышленность строительных материалов Производство строительных материалов и изделий Производство тяжелых заполнителей
Типовой проект 409-23-63.88Типовой проект 409-23-63.88Типовой проект 409-23-63.88Типовой проект 409-23-63.88Типовой проект 409-23-63.88Типовой проект 409-23-63.88Типовой проект 409-23-63.88Типовой проект 409-23-63.88Типовой проект 409-23-63.88Типовой проект 409-23-63.88Типовой проект 409-23-63.88Типовой проект 409-23-63.88Типовой проект 409-23-63.88Типовой проект 409-23-63.88Типовой проект 409-23-63.88Типовой проект 409-23-63.88Типовой проект 409-23-63.88Типовой проект 409-23-63.88Типовой проект 409-23-63.88Типовой проект 409-23-63.88Типовой проект 409-23-63.88Типовой проект 409-23-63.88Типовой проект 409-23-63.88Типовой проект 409-23-63.88Типовой проект 409-23-63.88Типовой проект 409-23-63.88Типовой проект 409-23-63.88Типовой проект 409-23-63.88Типовой проект 409-23-63.88Типовой проект 409-23-63.88Типовой проект 409-23-63.88Типовой проект 409-23-63.88Типовой проект 409-23-63.88Типовой проект 409-23-63.88Типовой проект 409-23-63.88Типовой проект 409-23-63.88Типовой проект 409-23-63.88Типовой проект 409-23-63.88Типовой проект 409-23-63.88Типовой проект 409-23-63.88Типовой проект 409-23-63.88Типовой проект 409-23-63.88Типовой проект 409-23-63.88Типовой проект 409-23-63.88Типовой проект 409-23-63.88Типовой проект 409-23-63.88Типовой проект 409-23-63.88Типовой проект 409-23-63.88Типовой проект 409-23-63.88Типовой проект 409-23-63.88Типовой проект 409-23-63.88Типовой проект 409-23-63.88Типовой проект 409-23-63.88Типовой проект 409-23-63.88Типовой проект 409-23-63.88Типовой проект 409-23-63.88Типовой проект 409-23-63.88Типовой проект 409-23-63.88Типовой проект 409-23-63.88Типовой проект 409-23-63.88Типовой проект 409-23-63.88Типовой проект 409-23-63.88Типовой проект 409-23-63.88Типовой проект 409-23-63.88Типовой проект 409-23-63.88Типовой проект 409-23-63.88Типовой проект 409-23-63.88Типовой проект 409-23-63.88Типовой проект 409-23-63.88Типовой проект 409-23-63.88Типовой проект 409-23-63.88Типовой проект 409-23-63.88Типовой проект 409-23-63.88Типовой проект 409-23-63.88Типовой проект 409-23-63.88Типовой проект 409-23-63.88Типовой проект 409-23-63.88Типовой проект 409-23-63.88Типовой проект 409-23-63.88Типовой проект 409-23-63.88Типовой проект 409-23-63.88Типовой проект 409-23-63.88Типовой проект 409-23-63.88Типовой проект 409-23-63.88Типовой проект 409-23-63.88Типовой проект 409-23-63.88Типовой проект 409-23-63.88Типовой проект 409-23-63.88Типовой проект 409-23-63.88Типовой проект 409-23-63.88Типовой проект 409-23-63.88Типовой проект 409-23-63.88Типовой проект 409-23-63.88Типовой проект 409-23-63.88Типовой проект 409-23-63.88Типовой проект 409-23-63.88Типовой проект 409-23-63.88Типовой проект 409-23-63.88Типовой проект 409-23-63.88Типовой проект 409-23-63.88

© 2013 Ёшкин Кот :-) Карта сайта