Информационная система
«Ёшкин Кот»

Скачать базу одним архивом
Скачать обновления
История создания базы
Карта сайта

Скачать Типовой проект 701-4-151.12.88 Альбом I. Пояснительная записка. Чертежи

Дата актуализации: 10.08.2017

Типовой проект 701-4-151.12.88

Альбом I. Пояснительная записка. Чертежи

Обозначение: Типовой проект 701-4-151.12.88
Обозначение англ: 701-4-151.12.88
Статус:не определен законодательством
Название рус.:Альбом I. Пояснительная записка. Чертежи
Дата добавления в базу:01.09.2013
Дата актуализации:05.05.2017
Дата введения:01.04.1988
Оглавление:Пояснительная записка
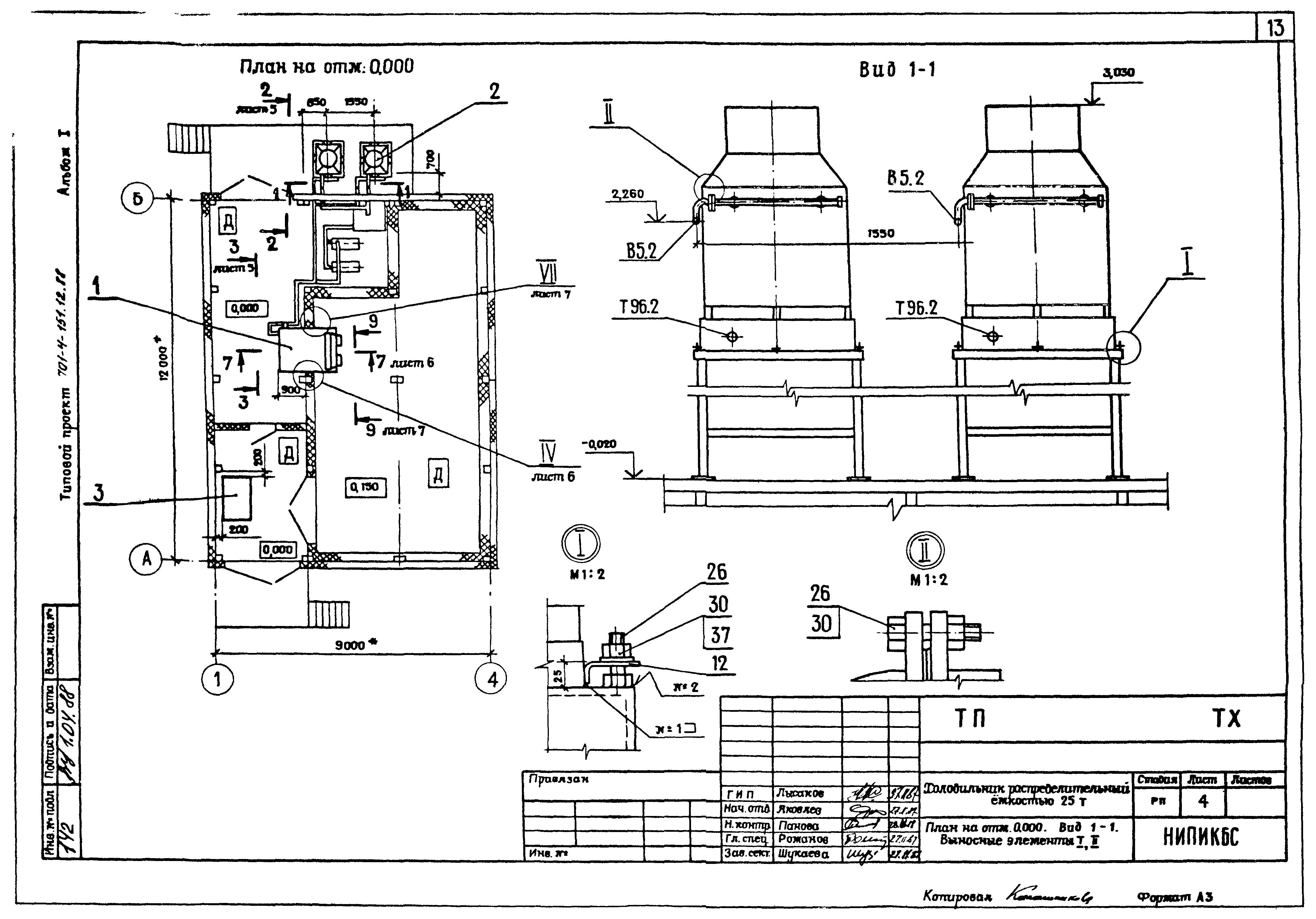
Чертежи основного комплекта марки ТХ
   Общие данные
   План вводов инженерных сетей
   План на отм. 0.000. Вид 1-1. Выносные элементы I, II
   Разрезы 2-2, 4-4…6-6. Вид 3-3. Выносной элемент III
   Разрез 7-7. Вид 8-8. Выносные элементы IV, V
   Вид 9-9. Сечение 10-10. Выносные элементы VI, VII
   Схема гидравлическая принципиальная
   Спецификация оборудования
Чертежи основного комплекта марки АТХ
   Общие данные
   Схема автоматизации
   Электроотопление. Вентиляторы градирни. Схема электрическая принципиальная
   Насосы. Схема электрическая принципиальная
   Электроотопление. Схема соединений внешних проводок
   Вентиляторы градирни. Схема соединений внешних проводок
   Насосы. Схема соединений внешних проводок
   План расположения на отм. 0.000
Чертежи основного комплекта марки ЭМ
   Общие данные. План на отм. 0.000; 0.150
   Схема электрическая принципиальная
Чертежи основного комплекта марки КМ
   Общие данные
   Схема расположения лестниц, площадок, ограждений, балок стоек. Вид 1-1, 2-2
   Ведомость элементов
   Узел 1, 2. Сечение 1-1
   Узел 3, 4. Сечение 1-1
   Оголовок ОМ1. Сечение 1-1, 2-2
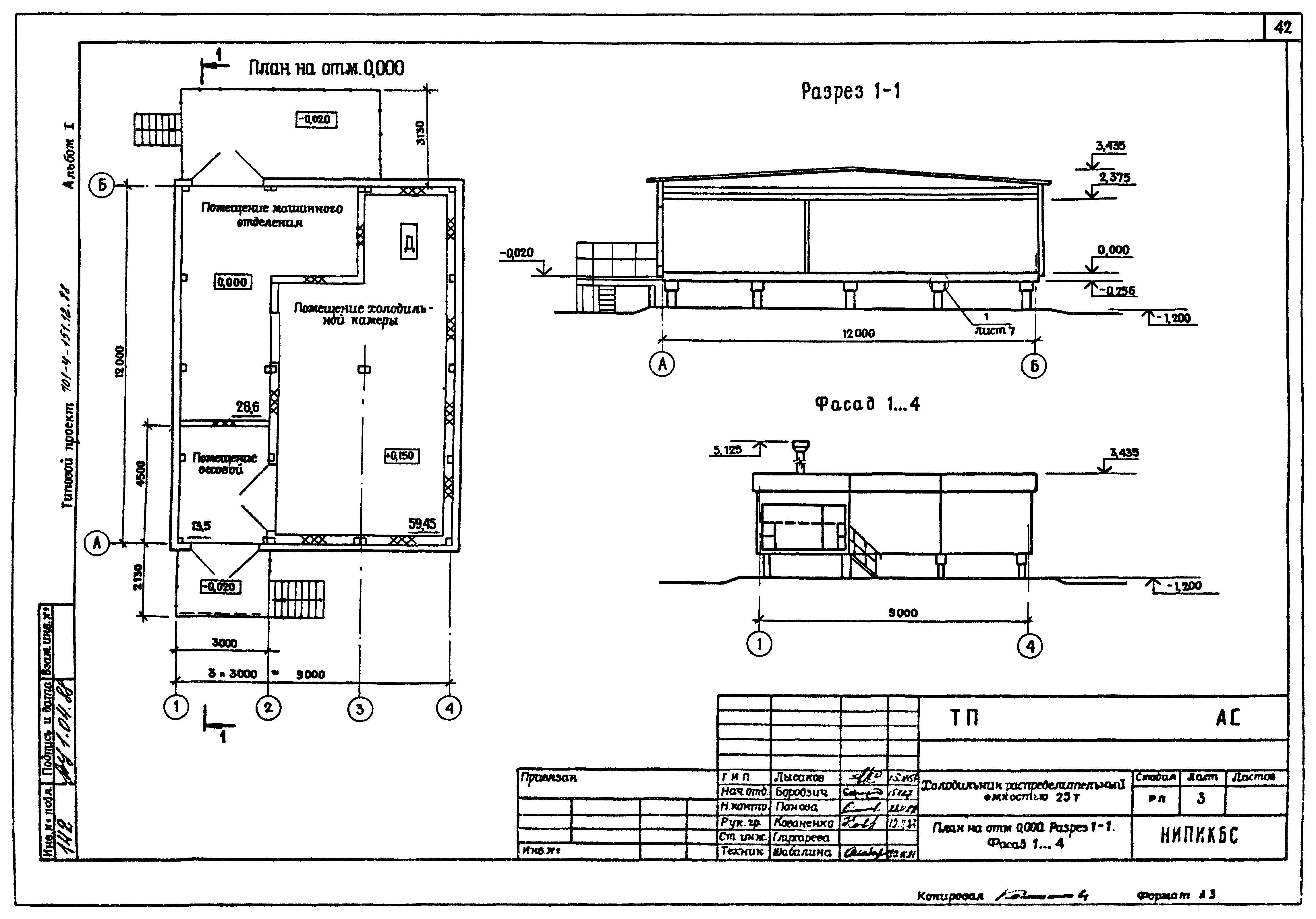
Чертежи основного комплекта марки АС
   Общие данные
   План на отм. 0.000. Разрез 1-1. Фасад 1…4
   Схема расположения блоков. Вид 1-1
   Схема расположения свай, оголовков, фундаментов ФМ1, ФМ2. Сечение 1-1
   Узел 1, 2. Сечение 1-1
   Узел 3, 4, 5
Чертежи основного комплекта марки ОВ
   Общие данные. План на отм. 0.000
Разработан: НИПИ КБС Миннефтегазстроя
Утверждён:01.04.1988 Миннефтегазстрой (Minneftegazstroy )
Расположен в:Техническая документация Строительство Справочные документы Типовые строительные конструкции, изделия и узлы Общероссийский строительный каталог Промышленные предприятия, здания и сооружения Предприятия, здания и сооружения складские Здания и сооружения складские общего назначения, холодильники и склады жидких пищевых продуктов резервуарного хранения Холодильники Распределительные холодильники
Типовой проект 701-4-151.12.88Типовой проект 701-4-151.12.88Типовой проект 701-4-151.12.88Типовой проект 701-4-151.12.88Типовой проект 701-4-151.12.88Типовой проект 701-4-151.12.88Типовой проект 701-4-151.12.88Типовой проект 701-4-151.12.88Типовой проект 701-4-151.12.88Типовой проект 701-4-151.12.88Типовой проект 701-4-151.12.88Типовой проект 701-4-151.12.88Типовой проект 701-4-151.12.88Типовой проект 701-4-151.12.88Типовой проект 701-4-151.12.88Типовой проект 701-4-151.12.88Типовой проект 701-4-151.12.88Типовой проект 701-4-151.12.88Типовой проект 701-4-151.12.88Типовой проект 701-4-151.12.88Типовой проект 701-4-151.12.88Типовой проект 701-4-151.12.88Типовой проект 701-4-151.12.88Типовой проект 701-4-151.12.88Типовой проект 701-4-151.12.88Типовой проект 701-4-151.12.88Типовой проект 701-4-151.12.88Типовой проект 701-4-151.12.88Типовой проект 701-4-151.12.88Типовой проект 701-4-151.12.88Типовой проект 701-4-151.12.88Типовой проект 701-4-151.12.88Типовой проект 701-4-151.12.88Типовой проект 701-4-151.12.88Типовой проект 701-4-151.12.88Типовой проект 701-4-151.12.88Типовой проект 701-4-151.12.88Типовой проект 701-4-151.12.88Типовой проект 701-4-151.12.88Типовой проект 701-4-151.12.88Типовой проект 701-4-151.12.88Типовой проект 701-4-151.12.88Типовой проект 701-4-151.12.88Типовой проект 701-4-151.12.88Типовой проект 701-4-151.12.88Типовой проект 701-4-151.12.88Типовой проект 701-4-151.12.88Типовой проект 701-4-151.12.88Типовой проект 701-4-151.12.88

© 2013 Ёшкин Кот :-) Карта сайта