Информационная система
«Ёшкин Кот»

Скачать базу одним архивом
Скачать обновления
История создания базы
Карта сайта

Скачать Типовой проект 189-000-362.85 Альбом I. Архитектурно-строительные и электротехнические чертежи. Спецификация оборудования

Дата актуализации: 10.08.2017

Типовой проект 189-000-362.85

Альбом I. Архитектурно-строительные и электротехнические чертежи. Спецификация оборудования

Обозначение: Типовой проект 189-000-362.85
Обозначение англ: 189-000-362.85
Статус:не определен законодательством
Название рус.:Альбом I. Архитектурно-строительные и электротехнические чертежи. Спецификация оборудования
Дата добавления в базу:01.09.2013
Дата актуализации:05.05.2017
Дата введения:02.01.1986
Оглавление:Титульный лист
Содержание альбома
Архитектурно-строительная часть
   Общие данные
   План участка
   Фасады 1 - 3, А - Б, 3 - 1, Б - А. Разрезы 1-1, 2-2
   Отделочные планы первого этажа и мансарды
   Узлы 1 - 9
   Ведомость отделки помещений. Экспликация полов. Спецификация столярных изделий
   Фундаменты. План. Сечения. Спецификация
   Цокольное перекрытие. План. Сечения. Спецификация
   Каркасные стены. План на отм. 0.000. План мансарды
   Каркасные стены. Развертки
   Каркасные стены. Узлы 10 - 21
   Каркасные стены. Развертки. Узлы 22 - 29
   Каркасные стены. Спецификация
   Чердачное перекрытие. Сечения. Спецификация
   Конструкции крыши. План стропил. Спецификация
   Конструкции крыши. Разрезы 1-1, 2-2. Каркас фронтона. План кровли
   Конструкции крыши. Узлы 30 - 36
   Конструкции крыши. Узлы 37 - 40
   Лестница на мансарду. Планы. Разрезы. Спецификация
   Лестница на мансарду. Планы. Узлы 41 - 44
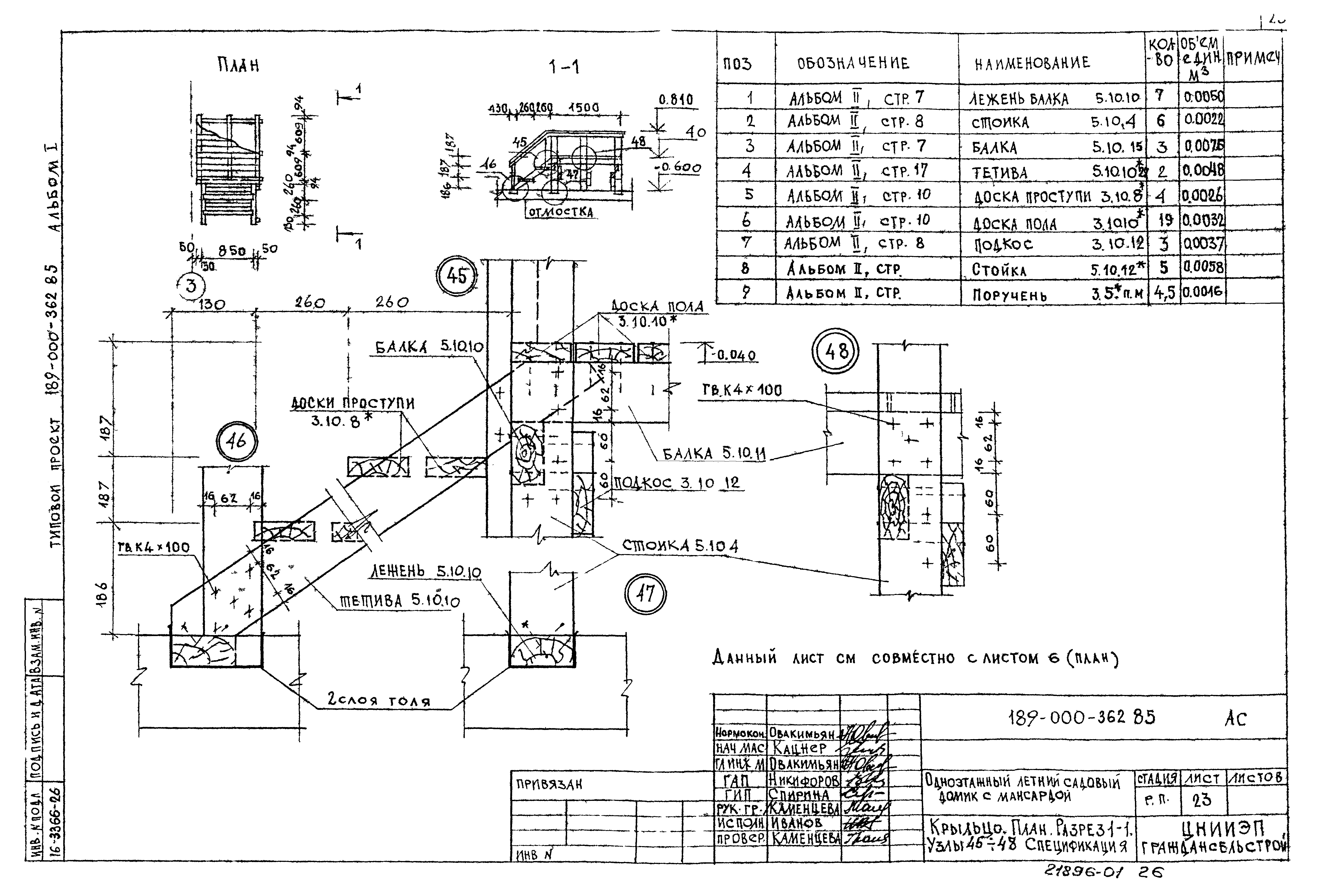
   Крыльцо. План. Разрез 1-1. Узлы 45 - 48. Спецификация
   Отопительная печь. Фасад. Разрезы. Порядовка кладки
   Отопительная печь. Порядовка кладки. Спецификация материалов и приборов
Электрическое освещение
   Общие данные
   План осветительной сети
Связь и сигнализация
   Общие данные
   Схема расположения устройств связи. План кровли
   План этажа и мансарды
Спецификация оборудования
   Спецификация оборудования ЭО
   Спецификация оборудования СС
Разработан: ЦНИИЭП граждансельстрой
Утверждён:09.01.1986 Госгражданстрой (Gosgrazhdanstroy 13)
Расположен в:Техническая документация Строительство Справочные документы Типовые строительные конструкции, изделия и узлы Общероссийский строительный каталог Жилые здания для строительства в сельской местности Садовые дома
Типовой проект 189-000-362.85Типовой проект 189-000-362.85Типовой проект 189-000-362.85Типовой проект 189-000-362.85Типовой проект 189-000-362.85Типовой проект 189-000-362.85Типовой проект 189-000-362.85Типовой проект 189-000-362.85Типовой проект 189-000-362.85Типовой проект 189-000-362.85Типовой проект 189-000-362.85Типовой проект 189-000-362.85Типовой проект 189-000-362.85Типовой проект 189-000-362.85Типовой проект 189-000-362.85Типовой проект 189-000-362.85Типовой проект 189-000-362.85Типовой проект 189-000-362.85Типовой проект 189-000-362.85Типовой проект 189-000-362.85Типовой проект 189-000-362.85Типовой проект 189-000-362.85Типовой проект 189-000-362.85Типовой проект 189-000-362.85Типовой проект 189-000-362.85Типовой проект 189-000-362.85Типовой проект 189-000-362.85Типовой проект 189-000-362.85Типовой проект 189-000-362.85Типовой проект 189-000-362.85Типовой проект 189-000-362.85Типовой проект 189-000-362.85Типовой проект 189-000-362.85Типовой проект 189-000-362.85Типовой проект 189-000-362.85Типовой проект 189-000-362.85

© 2013 Ёшкин Кот :-) Карта сайта