Информационная система
«Ёшкин Кот»

Скачать базу одним архивом
Скачать обновления
История создания базы
Карта сайта

Скачать Типовой проект 189-000-361.85 Альбом I. Архитектурно-строительные и электротехнические чертежи. Спецификация оборудования

Дата актуализации: 10.08.2017

Типовой проект 189-000-361.85

Альбом I. Архитектурно-строительные и электротехнические чертежи. Спецификация оборудования

Обозначение: Типовой проект 189-000-361.85
Обозначение англ: 189-000-361.85
Статус:не определен законодательством
Название рус.:Альбом I. Архитектурно-строительные и электротехнические чертежи. Спецификация оборудования
Дата добавления в базу:01.09.2013
Дата актуализации:05.05.2017
Дата введения:02.01.1986
Оглавление:Титульный лист
Содержание альбома
Архитектурно-строительная часть
   Общие данные
   План участка
   Фасады 1 - 3, А - Б, 3 - 1, Б - А. Разрезы 1-1, 2-2
   Отделочный план. Экспликация полов. Ведомость отделки помещений. Спецификация столярных изделий
   Узлы 1 - 9
   Фундаменты. План. Сечения. Спецификация
   Цокольное перекрытие. План. Сечения. Спецификация
   Каркасные стены. План. Развертки. Узлы 10, 11
   Каркасные стены. Развертки
   Каркасные стены. Узлы 12 - 23
   Каркасные стены. Спецификация
   Чердачное перекрытие. План. Сечения. Спецификация
   Конструкции крыши. План стропил. Спецификация
   Конструкции крыши. Разрезы 1-1, 2-2. Каркас фронтона. План кровли
   Конструкции крыши. Узлы 24 - 30
   Конструкции крыши. Узлы 31 - 34
   Крыльцо. План. Разрез 1-1. Узлы 35 - 38. Спецификация
   Отопительная печь. Фасад. Разрезы. Порядовка кладки
   Отопительная печь. Порядовка кладки. Спецификация материалов и приборов
Электрическое освещение
   Общие данные
   План осветительной сети
Связь и сигнализация
   Общие данные
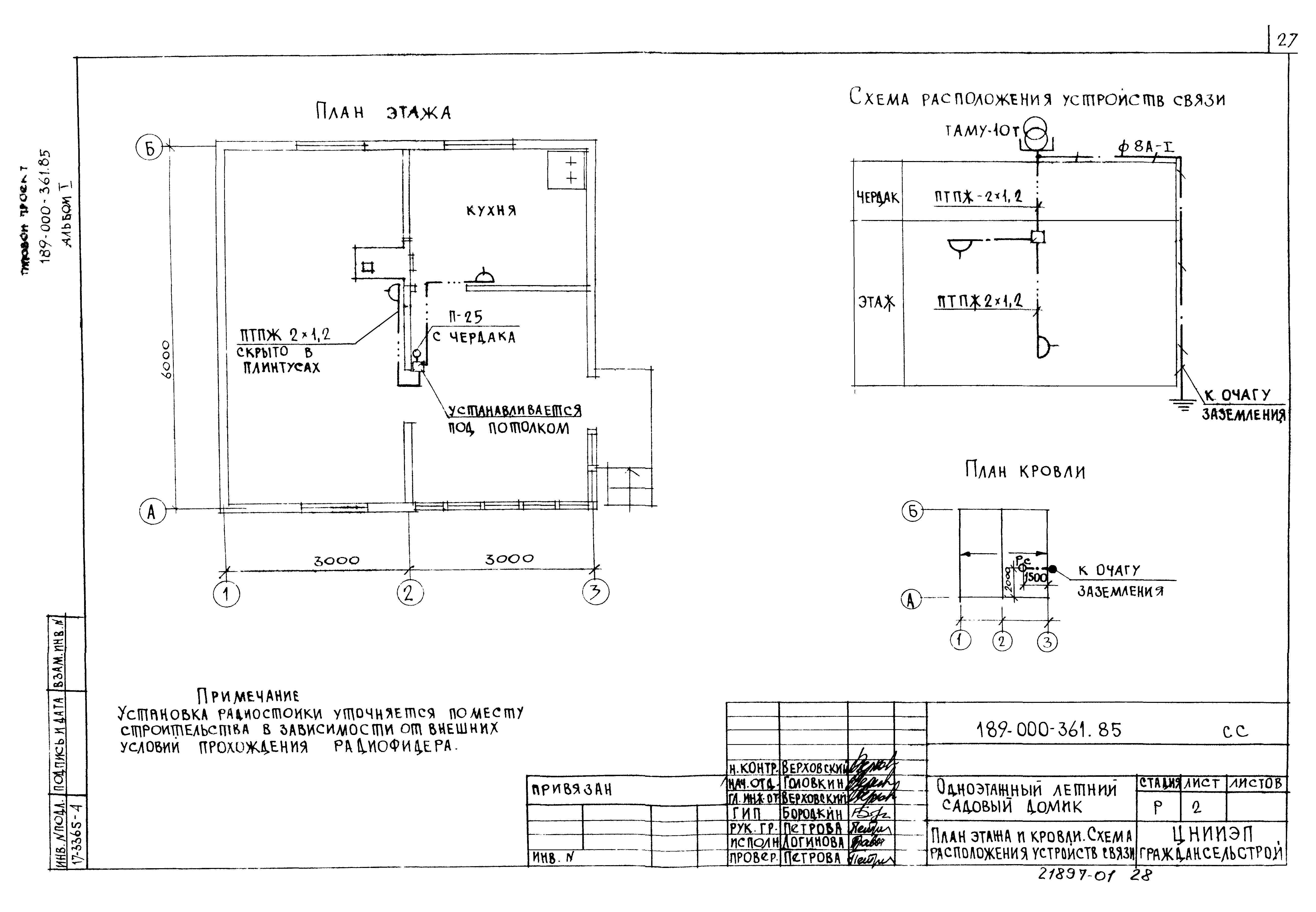
   План этажа и кровли. Схема расположения устройств связи
Спецификация оборудования
   Спецификация оборудования ЭО
   Спецификация оборудования СС
Разработан: ЦНИИЭП граждансельстрой
Утверждён:09.01.1986 Госгражданстрой (Gosgrazhdanstroy 13)
Расположен в:Техническая документация Строительство Справочные документы Типовые строительные конструкции, изделия и узлы Общероссийский строительный каталог Жилые здания для строительства в сельской местности Садовые дома
Типовой проект 189-000-361.85Типовой проект 189-000-361.85Типовой проект 189-000-361.85Типовой проект 189-000-361.85Типовой проект 189-000-361.85Типовой проект 189-000-361.85Типовой проект 189-000-361.85Типовой проект 189-000-361.85Типовой проект 189-000-361.85Типовой проект 189-000-361.85Типовой проект 189-000-361.85Типовой проект 189-000-361.85Типовой проект 189-000-361.85Типовой проект 189-000-361.85Типовой проект 189-000-361.85Типовой проект 189-000-361.85Типовой проект 189-000-361.85Типовой проект 189-000-361.85Типовой проект 189-000-361.85Типовой проект 189-000-361.85Типовой проект 189-000-361.85Типовой проект 189-000-361.85Типовой проект 189-000-361.85Типовой проект 189-000-361.85Типовой проект 189-000-361.85Типовой проект 189-000-361.85Типовой проект 189-000-361.85Типовой проект 189-000-361.85Типовой проект 189-000-361.85Типовой проект 189-000-361.85Типовой проект 189-000-361.85

© 2013 Ёшкин Кот :-) Карта сайта