Скачать Типовой проект 186-115-123.83 Альбом I. Архитектурно-строительный, санитарно-технический и электротехнический комплектыДата актуализации: 10.08.2017 Типовой проект 186-115-123.83
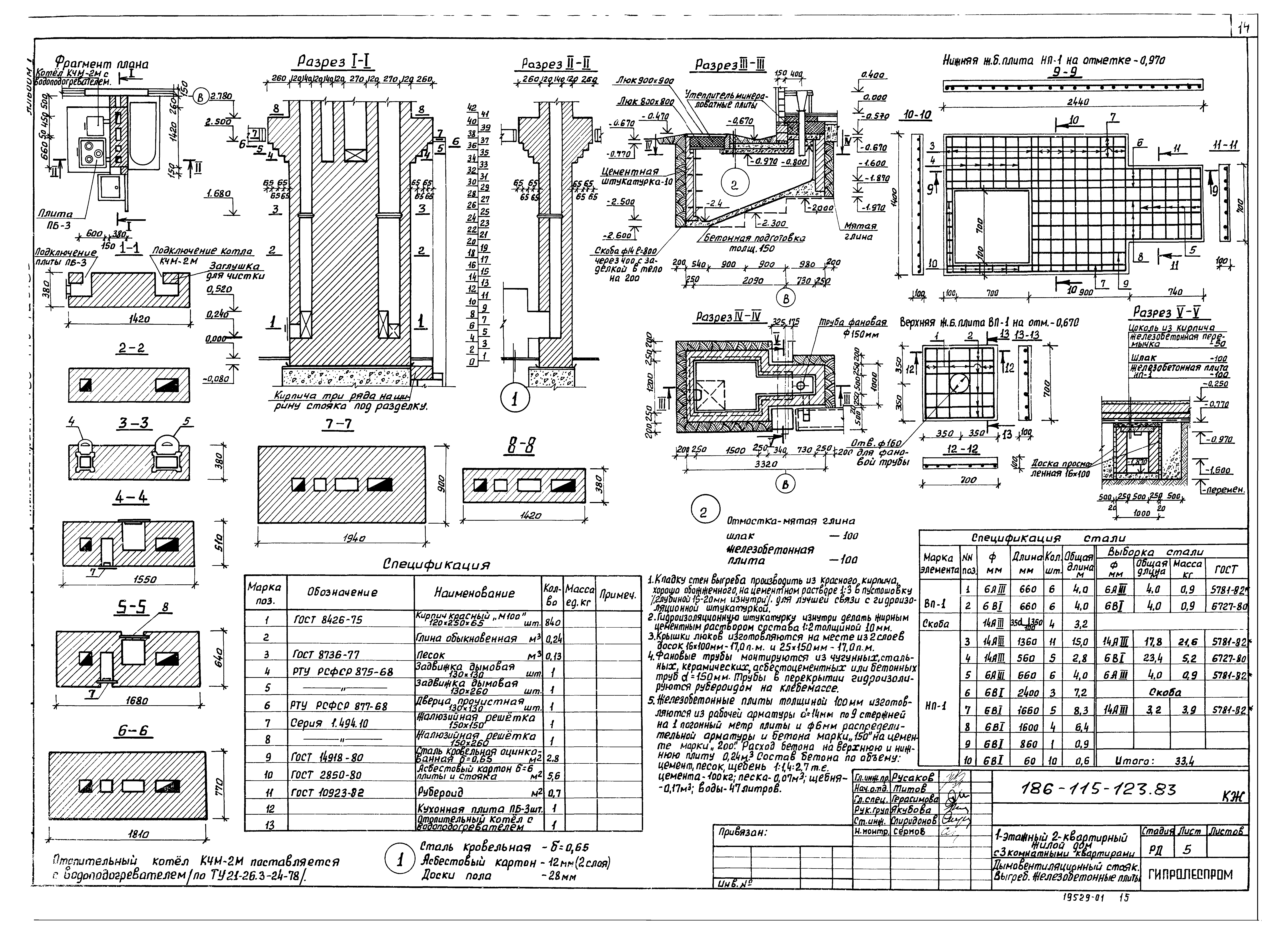
Альбом I. Архитектурно-строительный, санитарно-технический и электротехнический комплектыОбозначение: | Типовой проект 186-115-123.83 | Обозначение англ: | 186-115-123.83 | Статус: | не определен законодательством | Название рус.: | Альбом I. Архитектурно-строительный, санитарно-технический и электротехнический комплекты | Дата добавления в базу: | 01.09.2013 | Дата актуализации: | 05.05.2017 | Дата введения: | 27.01.1987 | Оглавление: | Титульный лист Содержание альбома Сводная спецификация Основной комплект АР Общие данные Фасады. Фрагмент главного входа Архитектурный план на отм. 0.000 с расстановкой мебели Основной комплект КЖ Общие данные. Пояснительная записка План фундаментов. Сечения. Фрагмент плана (вариант с люфт-клозетом) План и сечения фундаментов (вариант сборных фундаментов) Развертки стен фундаментов (сборные фундаменты) Дымовентиляционный стояк. Выгреб. Железобетонные плиты Основной комплект КД Общие данные. Пояснительная записка План цокольного перекрытия. План цокольного перекрытия по балкам (вариант сборных фундаментов) Раскладка досок пола. Фрагменты планов (вариант с люфт-клозетом) Монтажный план. Фрагмент плана (вариант с люфт-клозетом) Узлы плана Спецификация к монтажному плану Разрезы. Узлы Узлы разрезов Развертки наружных стен Развертки внутренних стен План чердачного перекрытия. Узлы План стропил. Каркас фронтона. План кровли Стропила пролетом 7,2 м Крыльцо по оси "В". Крыльцо по оси "А". Планы. Разрезы. Узлы Основной комплект ОВ Общие данные Отопление и вентиляция. План Схема трубопровода отопления Основной комплект ВК Общие данные Элементы планов сетей В1, Т3 и К1 Схемы В1 и Т3, спецификация Схемы К1, спецификация Основной комплект ЭО Общие данные Основной комплект СС Общие данные Планы этажа и крыши. Скелетная схема | Разработан: | Гипролеспром Минлеспрома СССР
| Утверждён: | 31.08.1972 Госгражданстрой (Gosgrazhdanstroy 3-1433)
| Расположен в: |
|
                                    
|