Скачать Типовые проектные решения 407-5-02.22.87 Альбом 4. Электротехническая часть. Электроосвещение. Связь и сигнализацияДата актуализации: 10.08.2017 Типовые проектные решения 407-5-02.22.87
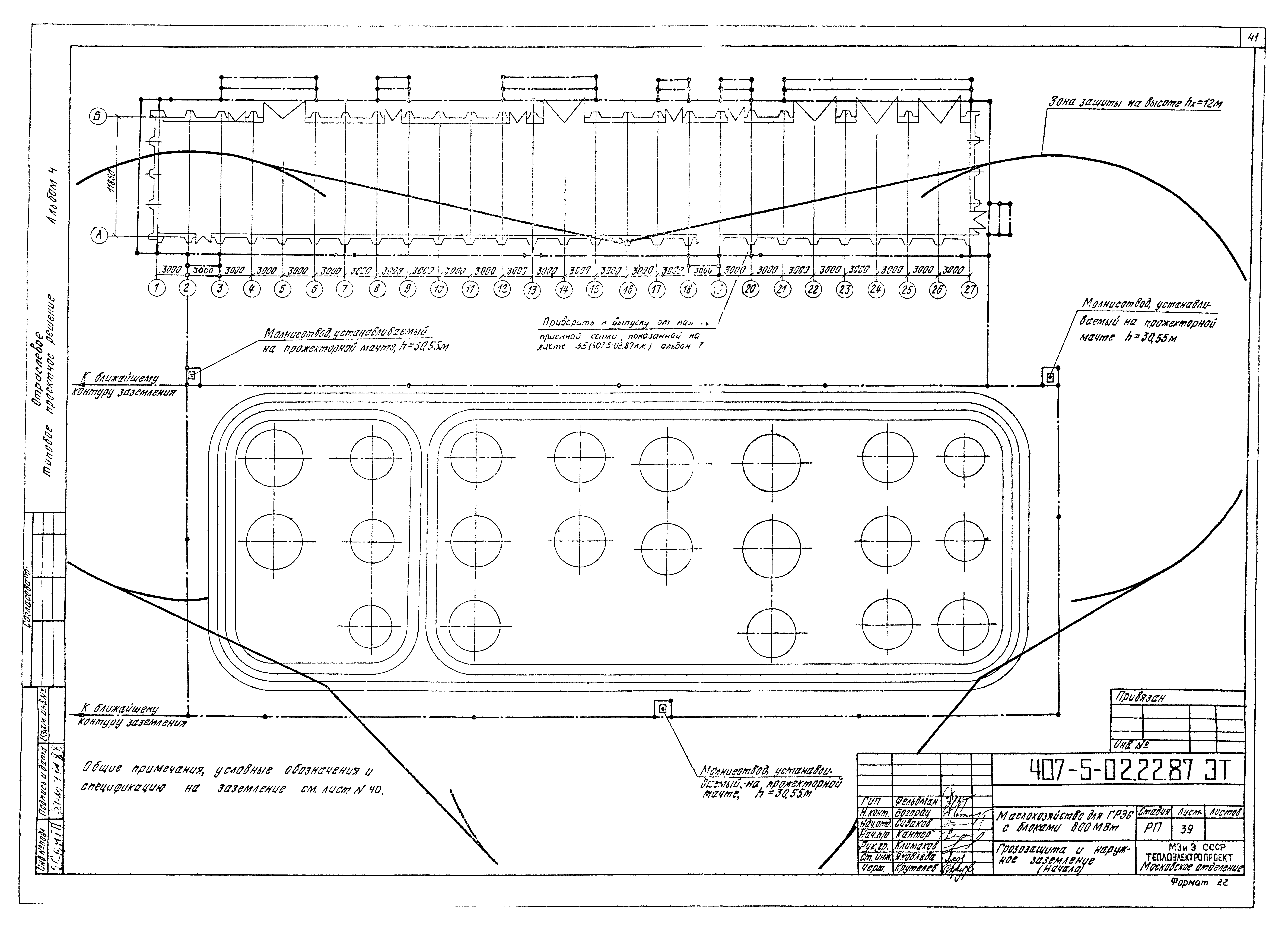
Альбом 4. Электротехническая часть. Электроосвещение. Связь и сигнализацияОбозначение: | Типовые проектные решения 407-5-02.22.87 | Обозначение англ: | 407-5-02.22.87 | Статус: | cправочные материалы, мп, тпр | Название рус.: | Альбом 4. Электротехническая часть. Электроосвещение. Связь и сигнализация | Дата добавления в базу: | 01.09.2013 | Дата актуализации: | 05.05.2017 | Дата введения: | 12.02.1987 | Оглавление: | Титульный лист Содержание альбома Чертежи по электроснабжению Общие данные РУ-0,4 кВ. Схема электрическая функциональная Сборки 0,4 кВ "ДТ01", "ДТ03", "ДТ05" (ПР-24Д). Схема электрическая функциональная Сборка 0,4 кВ "ДТ02" (РТ30). Схема электрическая функциональная Сборка 0,4 кВ "ДТ04" (РТ30). Шкафы 1, 2. Схема электрическая функциональная Сборка 0,4 кВ "ДТ04" (РТ30). Шкаф 3. Схема электрическая функциональная Сборка 0,4 кВ "ДТ06" (РТ30). Схема электрическая функциональная Электродвигатель 380 В, питание РТ30. Управление по месту. Схема электрическая полная Электродвигатель 380 В, питание с ПР-24Д. Управление по месту. Схема электрическая полная Электродвигатель 380 В насоса откачки масла. Схема электрическая полная Электродвигатель 380 В насоса откачки замасленных вод. Схема электрическая полная Электродвигатель 380 В вытяжки с АВР. Схема электрическая полная Электродвигатель 380 В вытяжки с АВР. Схема электрическая соединений рядов зажимов Приточный вентилятор В РУСН-0,4 кВ. Схема электрическая полная Электродвигатель 380 В приточного вентилятора с утепленной заслонкой. Схема электрическая полная Приточная система. Схема электрическая полная Приточная система. Схема электрическая соединений рядов зажимов Вызывная сигнализация РУ-0,4 кВ. Схема электрическая полная и схема электрическая соединений рядов зажимов Вызывная сигнализация. Схема электрическая соединений рядов зажимов Размещение электрооборудования. Заземление Экспликация оборудования План кабельных трасс в здании маслоаппаратных План кабельных трасс на территории Кабельное хозяйство. Расстановка кабельных металлоконструкций Кабельное хозяйство. Расстановка кабельных металлоконструкций на территории Кабельное хозяйство. Примечания Грозозащита и наружное заземление Электроосвещение Общие данные Схема питания сети освещения Электроосвещение открытого склада масла и маслослива Электроосвещение хозяйства огнестойкого масла Электроосвещение хозяйства турбинного масла. План-схема Электроосвещение хозяйства турбинного масла. Ведомость узлов Электроосвещение помещений КИПа, вентиляции и РУ. План-схема Электроосвещение помещений КИПа, вентиляции и РУ. Ведомость узлов Связь и сигнализация Общие данные План телефонной сети Пожарная сигнализация. Схема электрооборудования и проводки Пожарная сигнализация. Схема соединения | Разработан: | Теплоэлектропроект
| Утверждён: | 12.02.1987 Министерство энергетики и электрификации СССР (USSR Ministry of Energy and Electrical Power )
| Расположен в: |
|
                                                      
|