Скачать Типовые проектные решения 407-5-02.22.87 Альбом 3. Теплоизоляция. Антикоррозийная защита оборудования и трубопроводовДата актуализации: 10.08.2017 Типовые проектные решения 407-5-02.22.87
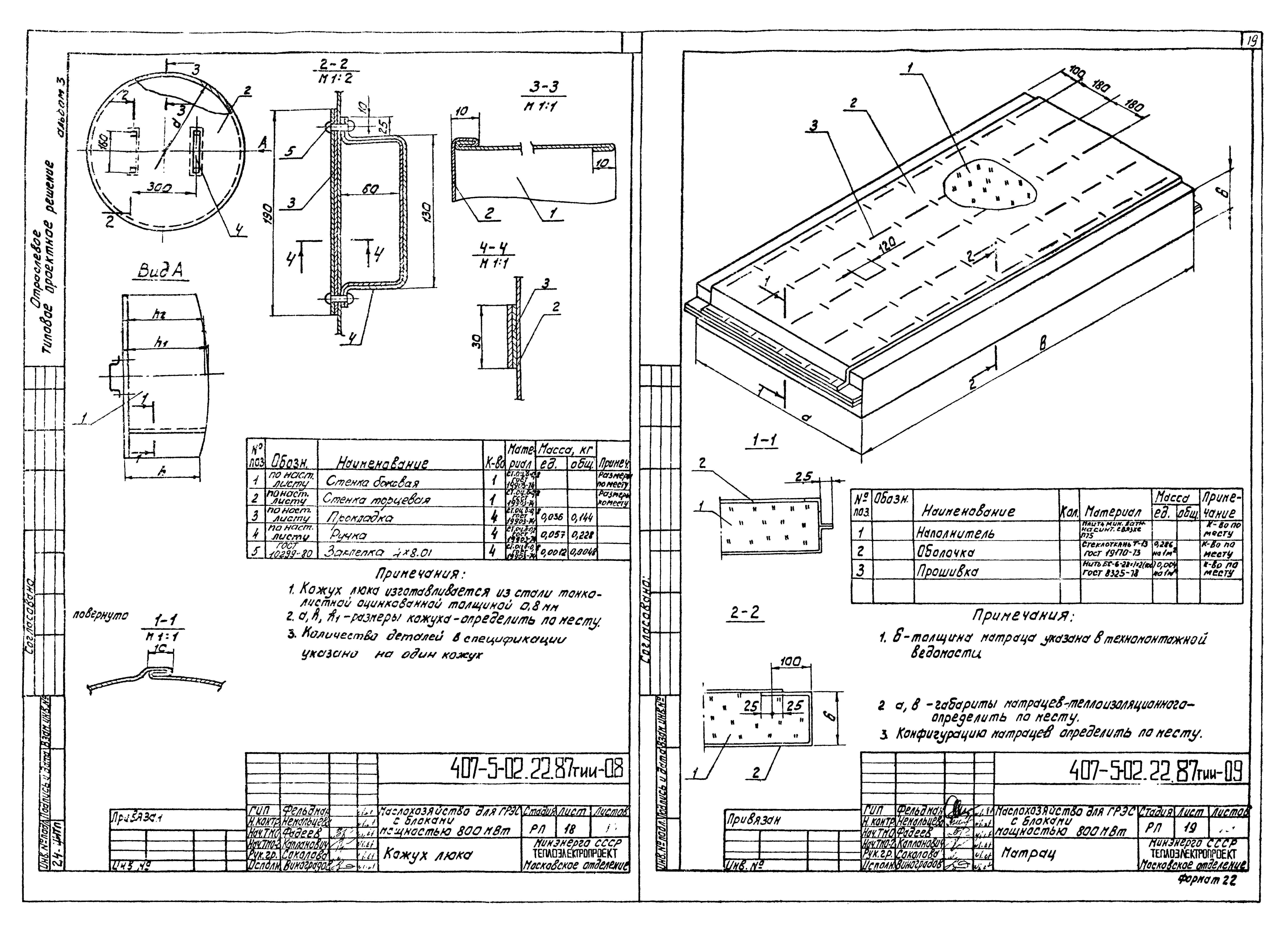
Альбом 3. Теплоизоляция. Антикоррозийная защита оборудования и трубопроводовОбозначение: | Типовые проектные решения 407-5-02.22.87 | Обозначение англ: | 407-5-02.22.87 | Статус: | cправочные материалы, мп, тпр | Название рус.: | Альбом 3. Теплоизоляция. Антикоррозийная защита оборудования и трубопроводов | Дата добавления в базу: | 01.09.2013 | Дата актуализации: | 05.05.2017 | Дата введения: | 12.02.1987 | Оглавление: | Титульный лист Содержание Пояснительная записка Общие данные Тепловая изоляция резервуаров V = 63 куб. м (100 куб. м) плитами минераловатными. Общий вид, схемы, узлы, разрезы Тепловая изоляция арматуры фланцевой Dy100 и более матрацами, элементы кожуха Тепловая изоляция арматуры фланцевой Dy25 - 80 матрацами, элементы кожуха Тепловая изоляция трубопроводов шнуровыми изделиями в один слой. Общий вид, разрезы Тепловая изоляция трубопроводов со спутником плитами минераловатными. Общий вид, разрезы Накладка Бандаж с пряжкой Бандаж с замком Скоба опорная Опорная полка. Диафрагма Элемент опорной полки Штырь одинарный Кожух люка Матрац Монтажная ведомость теплоизоляционных работ Ведомость объемов теплоизоляционных работ Антикоррозийная защита. Общие данные, схемы Ведомость потребности в материалах для антикоррозийной защиты | Разработан: | Теплоэлектропроект
| Утверждён: | 12.02.1987 Министерство энергетики и электрификации СССР (USSR Ministry of Energy and Electrical Power )
| Расположен в: |
|
                          
|