Скачать Типовые материалы для проектирования 407-03-440.87 Альбом IX. Санитарно-техническая часть. Внутреннее отопление и вентиляция. Водопровод и канализация. ПожаротушениеДата актуализации: 10.08.2017 Типовые материалы для проектирования 407-03-440.87
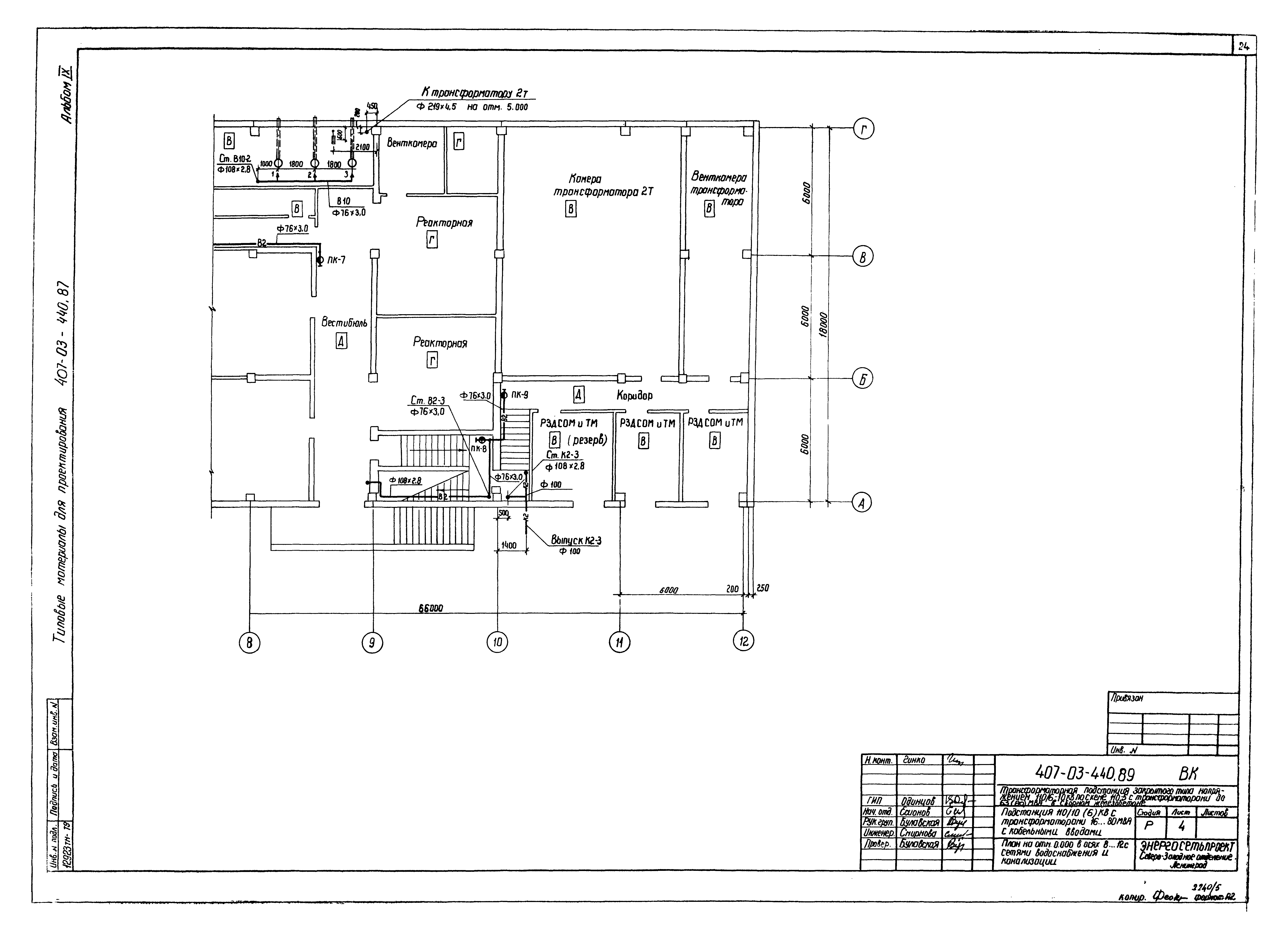
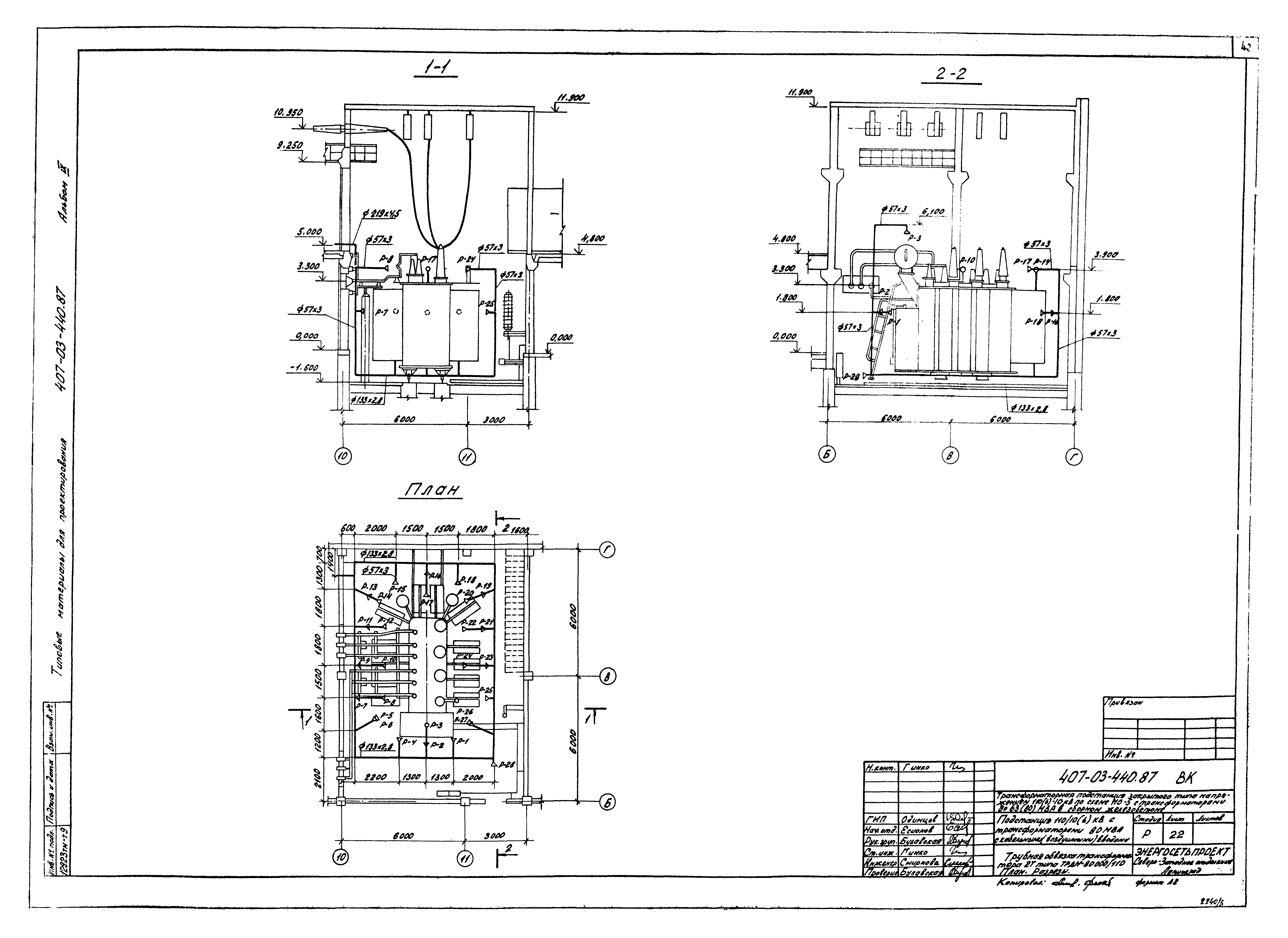
Альбом IX. Санитарно-техническая часть. Внутреннее отопление и вентиляция. Водопровод и канализация. ПожаротушениеОбозначение: | Типовые материалы для проектирования 407-03-440.87 | Обозначение англ: | 407-03-440.87 | Статус: | cправочные материалы, мп, тпр | Название рус.: | Альбом IX. Санитарно-техническая часть. Внутреннее отопление и вентиляция. Водопровод и канализация. Пожаротушение | Дата добавления в базу: | 01.09.2013 | Дата актуализации: | 05.05.2017 | Дата введения: | 16.03.1987 | Оглавление: | Содержание альбома Чертежи основного комплекта марки ОВ Общие данные План кабельного помещения на отм. - 3.100 м камеры переключения задвижек План на отм. 0.000 в осях 1 - 8 с наноской систем отопления и вентиляции для трансформаторов до 40 МВА План на отм. 0.000 в осях 8 - 12 с наноской систем отопления и вентиляции для трансформаторов до 40 МВА План на отм. 0.000 в осях 1 - 8 с наноской систем отопления и вентиляции для трансформаторов до 63 (80) МВА План на отм. 0.000 в осях 8 - 12 с наноской систем отопления и вентиляции для трансформаторов до 63 (80) МВА План на отм. 4.800 в осях 1 - 8 с наноской систем отопления и вентиляции для трансформаторов до 63 (80) МВА План на отм. 4.800 в осях 8 - 12 с наноской систем отопления и вентиляции для трансформаторов до 63 (80) МВА Разрезы 1-1, 2-2 Вентиляция трансформаторных камер. Приточные установки П-1, П-2 для трансформаторов до 40 МВА Вентиляция трансформаторных камер. Приточные установки П-1, П-2 для трансформаторов до 63 (80) МВА Вентиляция трансформаторных камер. Камера шумоглушения в осях 1 - 2, 11 - 12 на отм. 4.800. Установка ВЕ-1, ВЕ-2 для трансформаторов до 63 (80) МВА Вентиляция реакторных камер. Приточная установка П-3, П-4 для реакторов с тепловыми потерями 11,0; 11,5; 16,7 кВт/фазу Вентиляция реакторных камер. Приточная установка П-3, П-4 для реакторов с тепловыми потерями 22,5; 32,1 кВт/фазу Схемы вентиляции Установка электропечей ПЭТ-4 мощностью 1 кВт. Рамы для установки электропечей, спецификация Чертежи основного комплекта марки ВК Общие данные План кабельного помещения и камеры переключения задвижек с сетями водоснабжения и канализации (с кабельными вводами) План на отм. 0.000 между осями 1 - 8 с сетями систем водоснабжения и канализации (с кабельными вводами) План на отм. 0.000 между осями 8 - 12 с сетями систем водоснабжения и канализации (с кабельными вводами) План на отм. 4.800 между осями 1 - 8 с сетями систем водоснабжения и канализации (с кабельными вводами) План на отм. 4.800 между осями 8 - 12 с сетями систем водоснабжения и канализации (с кабельными вводами) План кабельного помещения и камеры переключения задвижек с сетями водоснабжения и канализации (с воздушными вводами) План на отм. 0.000 между осями 1 - 8 с сетями систем водоснабжения и канализации (с воздушными вводами) План на отм. 0.000 между осями 8 - 12 с сетями систем водоснабжения и канализации (с воздушными вводами) План на отм. 4.800 между осями 1 - 8 с сетями систем водоснабжения и канализации (с воздушными вводами) План на отм. 4.800 между осями 8 - 12 с сетями систем водоснабжения и канализации (с воздушными вводами) Схема системы В10 в камере переключения задвижек (с кабельными вводами) Схема системы В10 в камере переключения задвижек (с воздушными вводами) Схема системы В10 в кабельных помещениях (с кабельными вводами) Схема системы В10 в кабельных помещениях (с воздушными вводами) Схема систем В1 и В2 ( с кабельными (воздушными) вводами) План кровли с водосточными воронками. Схемы системы К2 (с кабельными (воздушными) вводами) Схемы систем К1, К4, К13 (с кабельными (воздушными) вводами) Трубная обвязка трансформатора 1Т типа ТРДН-63000/110. План. Разрезы (с кабельными (воздушными) вводами) Трубная обвязка трансформатора 2Т типа ТРДН-63000/110. План. Разрезы (с кабельными (воздушными) вводами) Трубная обвязка трансформатора 1Т типа ТРДН-80000/110. План. Разрезы (с кабельными (воздушными) вводами) Трубная обвязка трансформатора 2Т типа ТРДН-80000/110. План. Разрезы (с кабельными (воздушными) вводами) Трубная обвязка трансформаторов 63 (80) МВА. Аксонометрическая схема (с кабельными (воздушными) вводами) | Разработан: | Северо-западное отделение института Энергосетьпроект
| Утверждён: | 16.03.1987 Минэнерго СССР (USSR Minenergo 17)
| Расположен в: |
|
                                           
|