Скачать Типовые материалы для проектирования 407-03-440.87 Альбом VI. Архитектурно-строительные решенияДата актуализации: 10.08.2017 Типовые материалы для проектирования 407-03-440.87
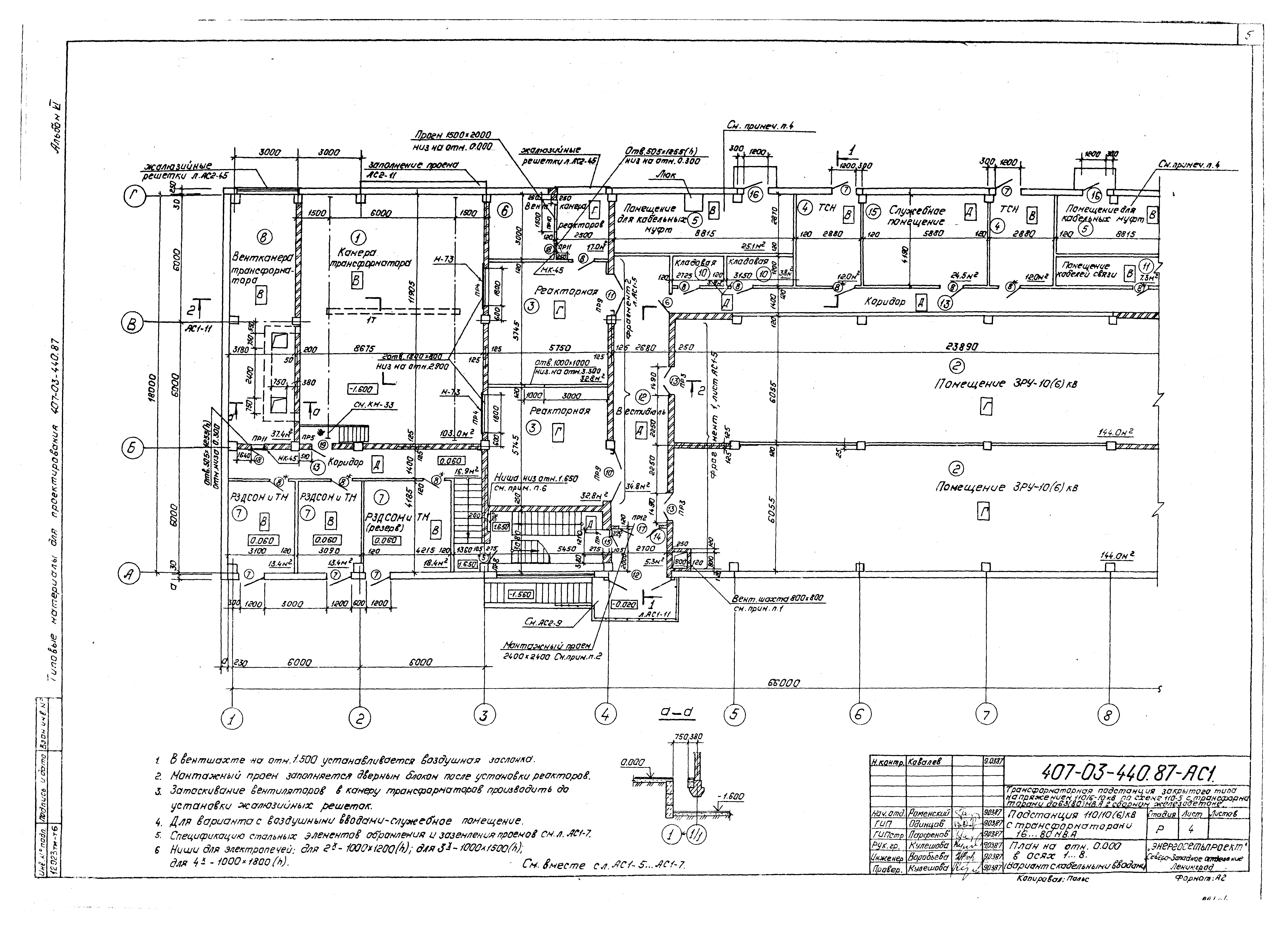
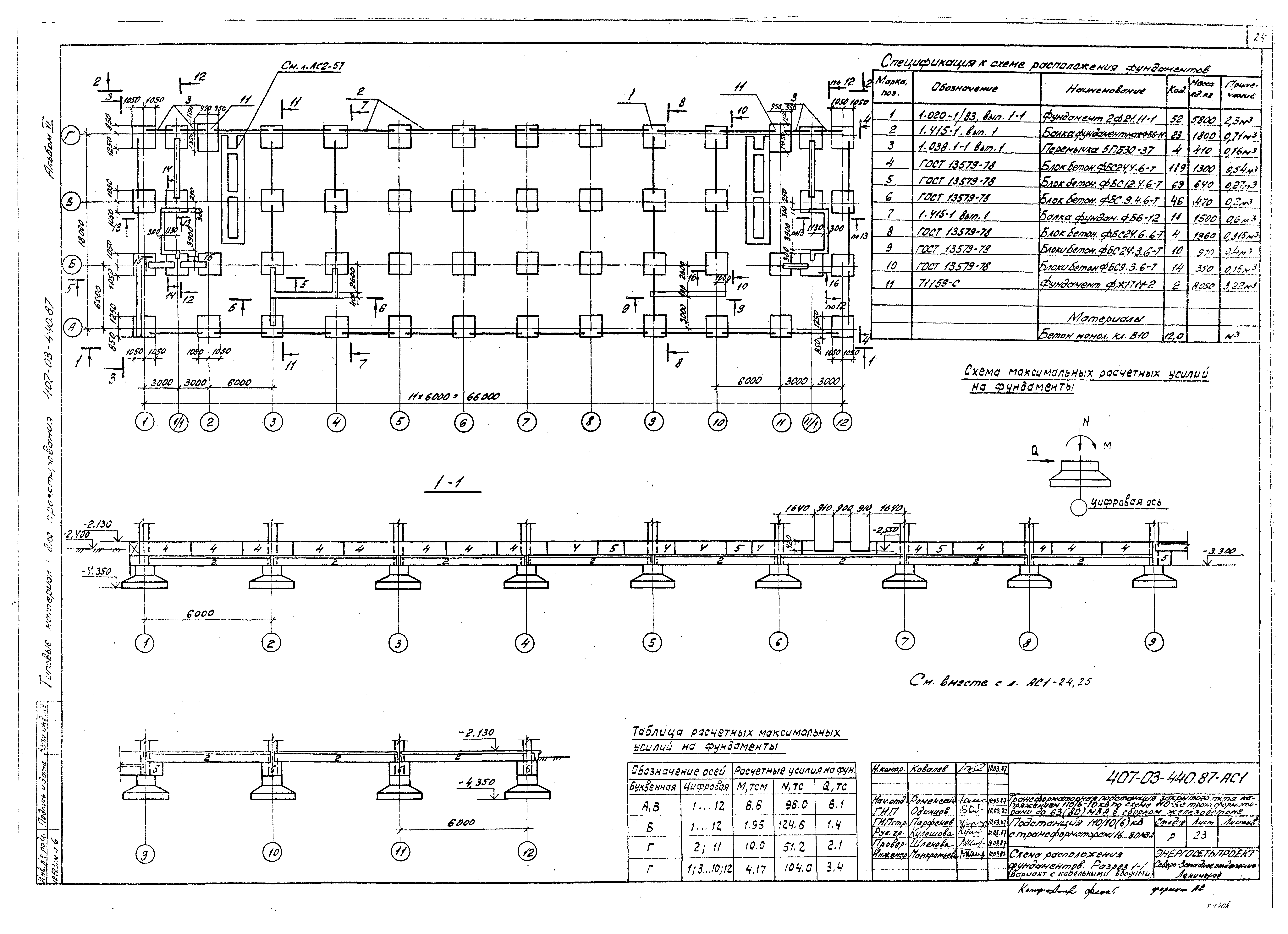
Альбом VI. Архитектурно-строительные решенияОбозначение: | Типовые материалы для проектирования 407-03-440.87 | Обозначение англ: | 407-03-440.87 | Статус: | cправочные материалы, мп, тпр | Название рус.: | Альбом VI. Архитектурно-строительные решения | Дата добавления в базу: | 01.09.2013 | Дата актуализации: | 05.05.2017 | Дата введения: | 16.03.1987 | Оглавление: | Общие данные План на отм. 0.000 в осях 1…8 (вариант с кабельными вводами) План на отм. 0.000 в осях 8…12 (вариант с кабельными вводами) План на отм. 4.800 в осях 1…8 (вариант с кабельными вводами) План на отм. 4.800 в осях 8…12 (вариант с кабельными вводами) Вариант с кабельными вводами. План кабельного помещения и камеры переключения задвижек Вариант с кабельными вводами. План кабельного помещения и камеры переключения задвижек. Сечения. Спецификация Ведомости проемов ворот, дверей и перемычек. Спецификации перемычек и элементов заполнения проемов (вариант с кабельными вводами) Разрезы 1-1, 2-2 Вариант с кабельными вводами. Фасады Вариант с кабельными вводами. План полов План кровли и раскладка парапетных плит. План грозозащитной сетки Вариант с кабельными вводами. Каркас здания. Схемы расположения колонн и ригелей на отм. 0.000; 4.800; 9.600 Вариант с кабельными вводами. Схема расположения балок покрытия. Спецификация Вариант с кабельными вводами. Схемы расположения плит перекрытия на отм. 0.000 и 4.800 Вариант с воздушными вводами. Схемы расположения плит перекрытия на отм. 0.000 и 4.800 Схемы расположения плит покрытия на отм. 9.600 и 14.700 Вариант с кабельными вводами. Схемы расположения стеновых панелей по осям А, Г, 12, 1 Вариант с кабельными вводами. Спецификация элементов к схеме расположения стеновых панелей Схемы расположения стеновых панелей по оси "Б" Схема расположения фундаментов. Разрез 1-1 (вариант с кабельными вводами) Схема расположения фундаментов (вариант с кабельными вводами). Разрезы 2-2, 7-7 Схема расположения фундаментов (вариант с кабельными вводами). Разрезы 8-8…16-16 Вариант с кабельными вводами. Схемы расположения сборных перегородок Вариант с кабельными вводами. Схема расположения опор под оборудование в ЗРУ 110 кВ Вариант с воздушными вводами. Схема расположения опор под оборудование в ЗРУ 110 кВ Схема расположения закладных элементов в перекрытии на отм. 0.000 Схема расположения площадок на отм. 9.250 Вариант с кабельными вводами. Схема расположения закладных элементов в перекрытии ЗРУ 110 кВ Вариант с воздушными вводами. Схема расположения закладных элементов в перекрытии ЗРУ 110 кВ Схема расположения закладных элементов в покрытии ЗРУ 110 кВ Фрагмент фасада для варианта с воздушными вводами Схема расположения опор под оборудование в помещении кабельных муфт | Разработан: | Северо-западное отделение института Энергосетьпроект
| Утверждён: | 16.03.1987 Минэнерго СССР (USSR Minenergo 17)
| Расположен в: |
|
                                    
|