Скачать Типовые материалы для проектирования 407-03-440.87 Альбом III. Часть 2. Электротехнические решения. Конструктивно-монтажные чертежи (из ТП 407-03-439.87)Дата актуализации: 10.08.2017 Типовые материалы для проектирования 407-03-440.87
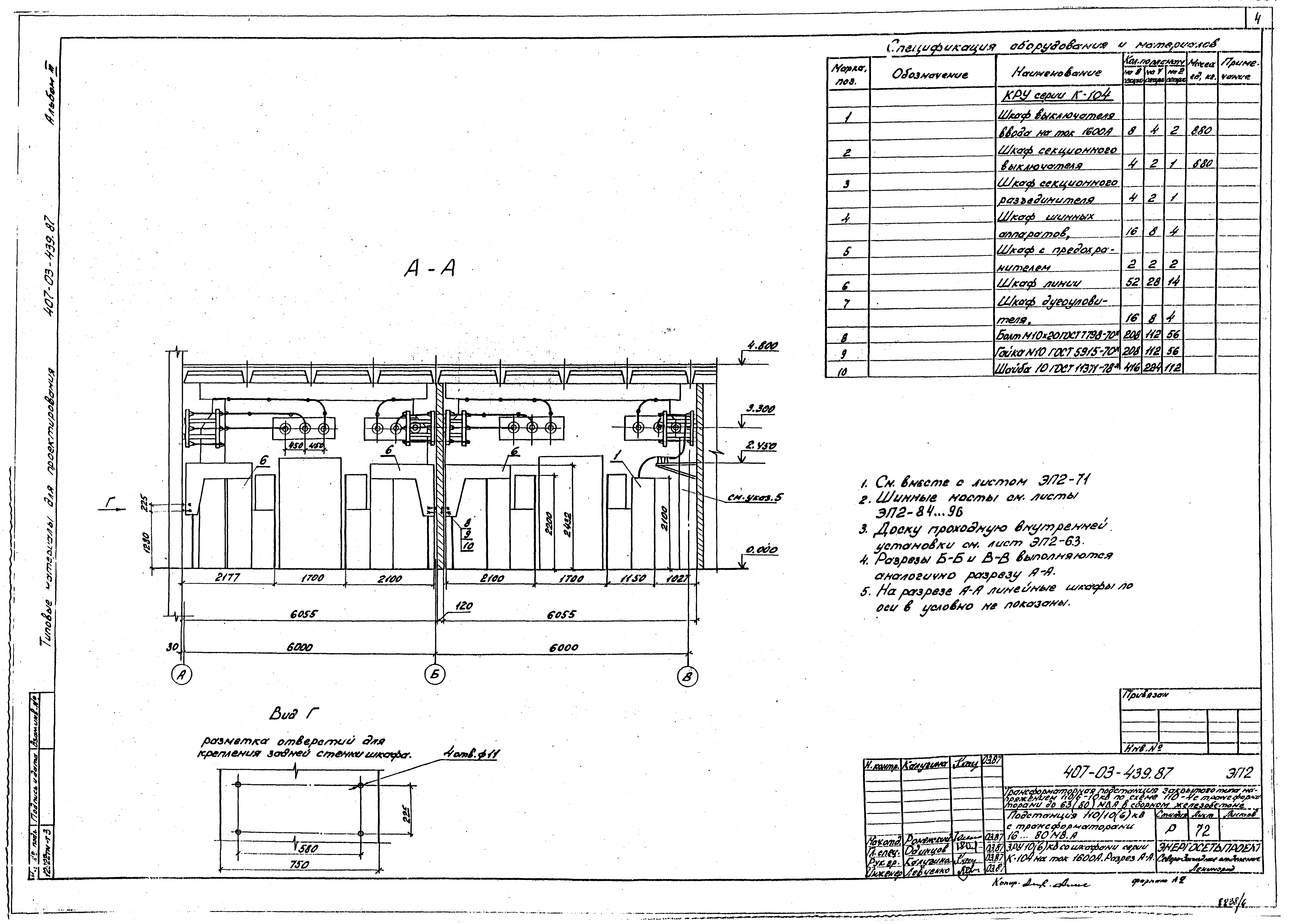
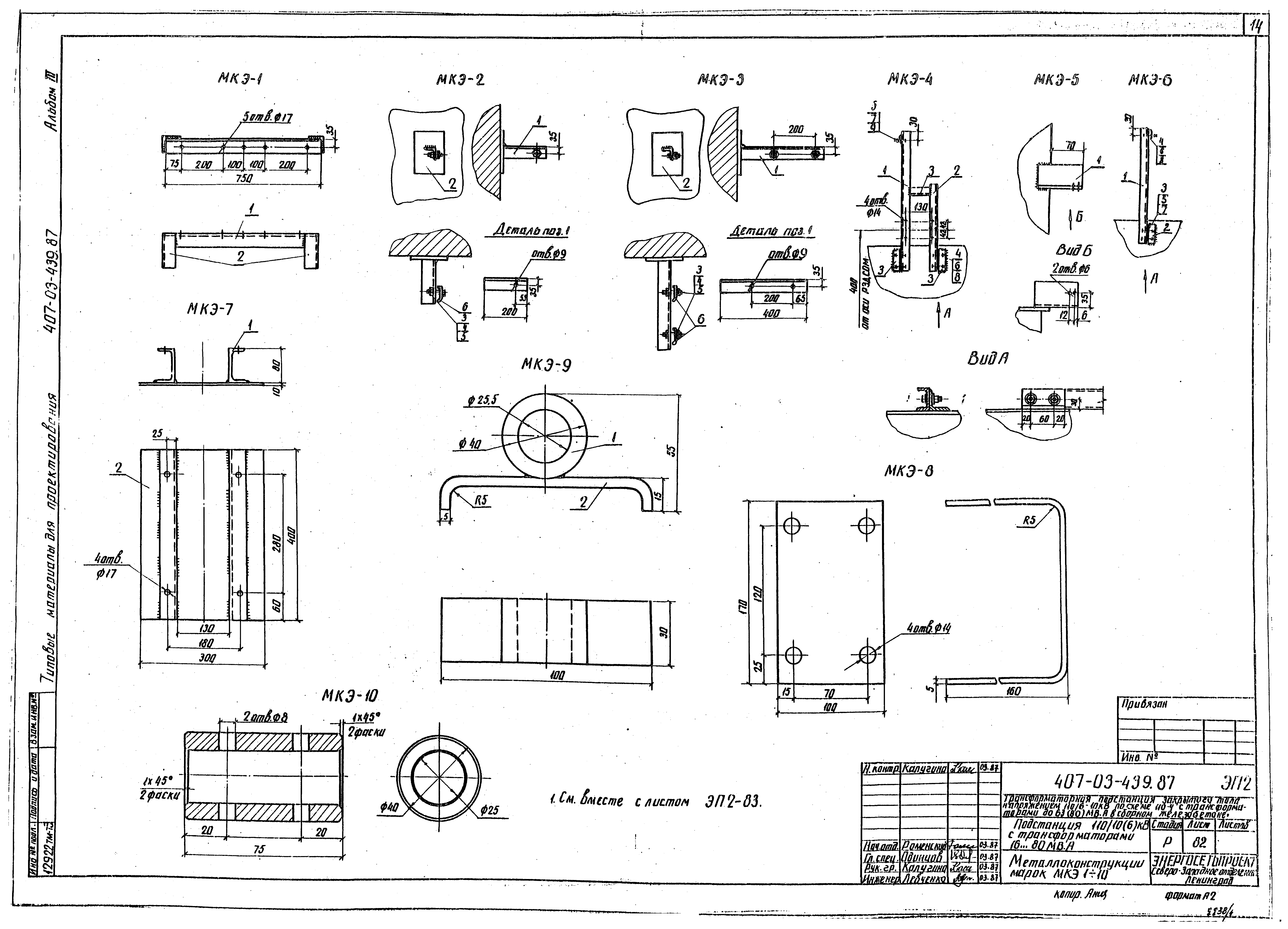
Альбом III. Часть 2. Электротехнические решения. Конструктивно-монтажные чертежи (из ТП 407-03-439.87)Обозначение: | Типовые материалы для проектирования 407-03-440.87 | Обозначение англ: | 407-03-440.87 | Статус: | cправочные материалы, мп, тпр | Название рус.: | Альбом III. Часть 2. Электротехнические решения. Конструктивно-монтажные чертежи (из ТП 407-03-439.87) | Дата добавления в базу: | 01.09.2013 | Дата актуализации: | 05.05.2017 | Дата введения: | 16.03.1987 | Оглавление: | Планы ЗРУ-10(6) кВ по схемам 10(6)-1, 10(6)-2, 10(6)-3 со шкафами серии К-104 на ток до 2600 А ЗРУ-10(6) кВ со шкафами серии К-014 на ток до 2600 А. Разрезы А-А, Б-Б Планы ЗРУ-10(6) кВ по схемам 10(6)-1, 10(6)-2, 10(6)-3 со шкафами серии К-104 на ток 1600 А ЗРУ-10(6) кВ со шкафами серии К-104 на ток 1600 А. Разрез А-А Планы ЗРУ-10(6) кВ по схемам 10(6)-1, 10(6)-2 со шкафами серии КМ-1Ф (КМ-1) на ток до 3150 А ЗРУ-10(6) кВ со шкафами серии КМ-1Ф (КМ-1) на ток до 3150 А. Разрез А-А Планы ЗРУ-10(6) кВ по схемам 10(6)-1, 10(6)-2, 10(6)-3 со шкафами серии КМ-1Ф на ток 1600 А ЗРУ-10(6) кВ со шкафами серии КМ-1Ф (КМ-1) на ток 1600 А. Разрез А-А Помещение панелей. План. Разрез А-А Помещение панелей. Разрез Б-Б Установка трансформатора собственных нужд типа ТМ-250/ УХЛ1 Установка трансформатора типа ТМ- и заземляющего реактора типа РЗДСОМ- . План. Разрезы А-А и Б-Б Установка трансформатора типа ТМ- и заземляющего реактора типа РЗДСОМ- . Разрез В-В. Вид Г Металлоконструкции марок МКЭ1 - 10 Спецификация оборудования и материалов к листу ЭП2-82 ЗРУ-10(6) кВ по схеме 10(6)-3 со шкафами К-104 на ток 1600 А. Шинный мост первой секции. План. Разрез А-А ЗРУ-10(6) кВ по схеме 10(6)-3 со шкафами К-104 на ток 1600 А. Шинный мост первой секции. План. Разрезы Б-Б и В-В ЗРУ-10(6) кВ по схеме 10(6)-3 со шкафами К-104 на ток 1600 А. Шинный мост второй секции. План. Разрез А-А ЗРУ-10(6) кВ по схеме 10(6)-3 со шкафами К-104 на ток 1600 А. Шинный мост второй секции. План. Разрезы Б-Б и В-В ЗРУ-10(6) кВ по схеме 10(6)-3 со шкафами К-104 на ток 1600 А. Шинный мост третьей и пятой секции. План. Разрез А-А ЗРУ-10(6) кВ по схеме 10(6)-3 со шкафами К-104 на ток 1600 А. Шинный мост третьей и пятой секции. Разрезы Б-Б и В-В ЗРУ-10(6) кВ по схеме 10(6)-3 со шкафами К-104 на ток 1600 А. Шинный мост четвертой и шестой секции. План ЗРУ-10(6) кВ по схеме 10(6)-3 со шкафами К-104 на ток 1600 А. Шинный мост четвертой и шестой секции. Разрезы А-А и Б-Б ЗРУ-10(6) кВ по схеме 10(6)-3 со шкафами К-104 на ток 1600 А. Шинный мост четвертой и шестой секции. Разрезы В-В, Г-Г ЗРУ-10(6) кВ по схеме 10(6)-3 со шкафами К-104 на ток 1600 А. Шинный мост седьмой секции. План. Разрез А-А ЗРУ-10(6) кВ по схеме 10(6)-3 со шкафами К-104 на ток 1600 А. Шинный мост седьмой секции. Разрезы Б-Б и В-В ЗРУ-10(6) кВ по схеме 10(6)-3 со шкафами К-104 на ток 1600 А. Шинный мост восьмой секции. План. Разрез А-А ЗРУ-10(6) кВ по схеме 10(6)-3 со шкафами К-104 на ток 1600 А. Шинный мост восьмой секции. Разрезы Б-Б и В-В Расстановка кабельных конструкций на отм. 0.000 в осях 1…8 Расстановка кабельных конструкций на отм. 0.000 в осях 8…12 Расстановка кабельных конструкций на отм. 4.800 в осях 1…8 Расстановка кабельных конструкций на отм. 4.800 в осях 8…12, на отм. - 3.100 в осях 1…3 Расстановка кабельных конструкций на отм. - 3.100. План Расстановка кабельных конструкций на отм. - 3.100. Разрезы А-А и Б-Б План сети отопления и вентиляции на отм. 4.800 в осях 1…8 План сети отопления и вентиляции на отм. 4.800 в осях 8…12. Схемы сети отопления и вентиляции План сети отопления и вентиляции на отм. 0.000 в осях 1…8 План сети отопления и вентиляции на отм. 0.000 в осях 8…12. Спецификация. Общие указания План сети отопления План сети заземления подстанции на отм. 4.800 в осях 1…8 План сети заземления подстанции на отм. 4.800 в осях 8…12 План сети заземления подстанции на отм. 0.000 в осях 1…8 План сети заземления подстанции на отм. 0.000 в осях 8…12 План сети заземления подстанции на отм. - 3.100. Наружный контур заземления | Разработан: | Северо-западное отделение института Энергосетьпроект
| Утверждён: | 16.03.1987 Минэнерго СССР (USSR Minenergo 16)
| Расположен в: |
|
                                           
|