Информационная система
«Ёшкин Кот»

Скачать базу одним архивом
Скачать обновления
История создания базы
Карта сайта

Скачать Серия ОТУ 32-4863 Выпуск 1. Схемы электрические принципиальные. Установочные чертежи. Рабочие чертежи

Дата актуализации: 10.08.2017

Серия ОТУ 32-4863

Выпуск 1. Схемы электрические принципиальные. Установочные чертежи. Рабочие чертежи

Обозначение: Серия ОТУ 32-4863
Обозначение англ: Series ОТУ 32-4863
Статус:не определен законодательством
Название рус.:Выпуск 1. Схемы электрические принципиальные. Установочные чертежи. Рабочие чертежи
Дата добавления в базу:01.09.2013
Дата актуализации:05.05.2017
Дата введения:23.07.1998
Оглавление:ОТУ 32-4863-1.ПЗ Пояснительная записка
ОТУ 32-4863-1.1 СТП-1,25. Схема электрическая принципиальная
ОТУ 32-4863-1.2 КТП-ПМ-1,25. Схема электрическая принципиальная
ОТУ 32-4863-1.3 КТПМ-4, КТПМ-10. Схема электрическая принципиальная и блокировки
ОТУ 32-4863-1.4 ПТСЖ-25. Схема электрическая принципиальная
ОТУ 32-4863-1.5 КТП-25…КТП-250. Схема электрическая принципиальная и блокировки
ОТУ 32-4863-1.6 КТП-250…КТП-630. Схема электрическая принципиальная и блокировки
ОТУ 32-4863-1.7 КРУН К-112, КТПМ-250, КТПМ-400 и КТПМ-630. Схемы электрические принципиальные и подключения
ОТУ 32-4863-1.8 УКН-П. Варианты применения устройства для отключения выключателей ввода и отходящих линий подстанции
ОТУ 32-4863-1.9 Автомат управления освещением АОН-96. Схема электрическая принципиальная
ОТУ 32-4863-1.10 Установка СТП-1,25 на стойке С 1,85/10,1
ОТУ 32-4863-1.11 Установка КТП-ПМ-1,25 на стойке С 1,85/10,1
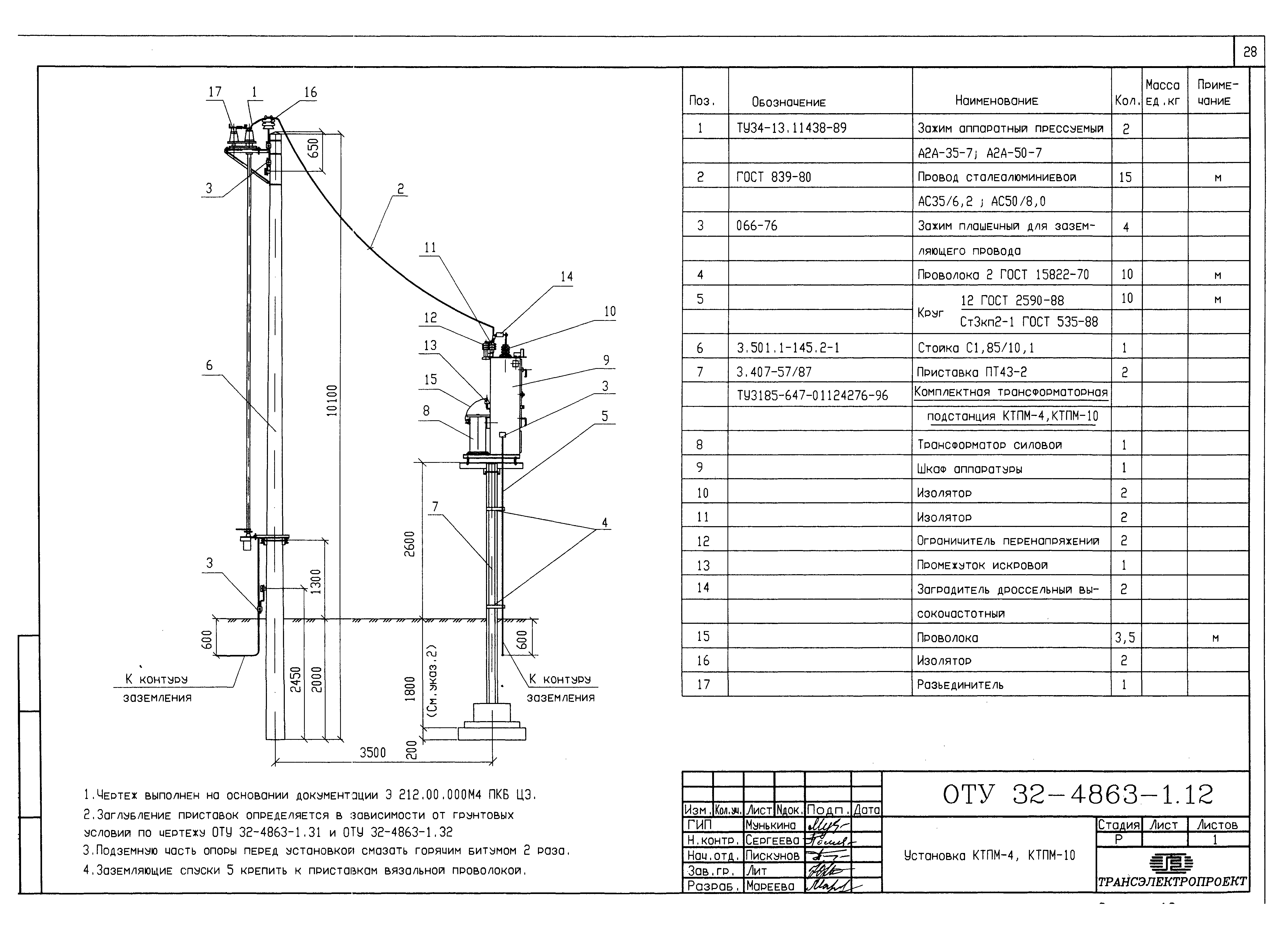
ОТУ 32-4863-1.12 Установка КТПМ-4, КТПМ-10
ОТУ 32-4863-1.13 Установка ПТСЖ-25 на стойке С 1,85/10,1
ОТУ 32-4863-1.14 Установка КТП-25…КТП-160 на приставках
ОТУ 32-4863-1.15 Установка КТП-250 на приставках
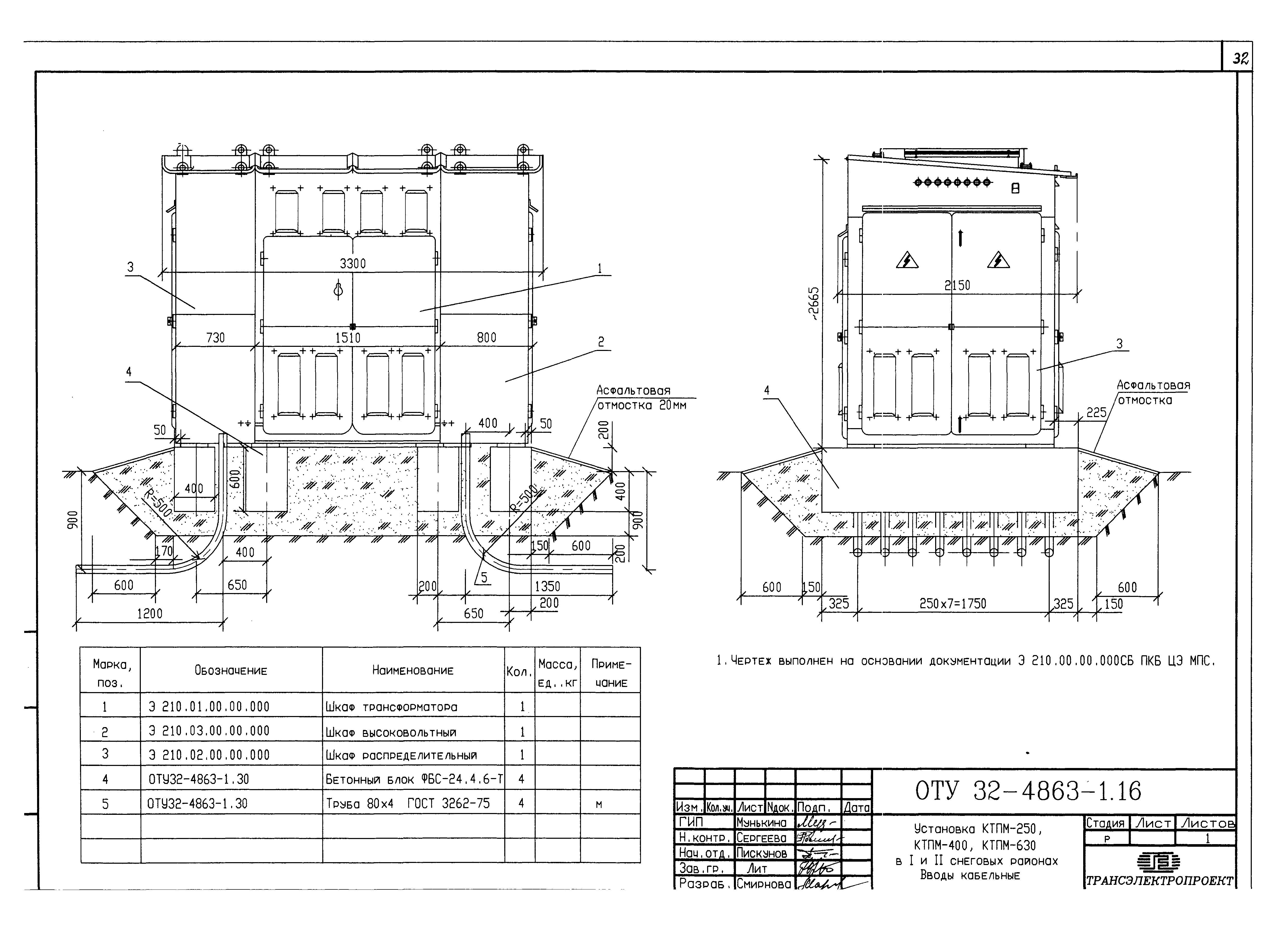
ОТУ 32-4863-1.16 Установка КТПМ-250, КТПМ-400, КТПМ-630 в I и II снеговых районах. Вводы кабельные
ОТУ 32-4863-1.17 Установка КТПМ-250, КТПМ-400, КТПМ-630 в III и IV снеговых районах. Вводы воздушные
ОТУ 32-4863-1.18 Установка КРУН К-112 на приставке
ОТУ 32-4863-1.19 Установка разъединителя РЛНД-1-10Б/400НУХЛ1 с приводом ПР-09-2Б УХЛ1 на стойке С 1,85/10,1
ОТУ 32-4863-1.20 Установка разъединителя РЛНД-1-10Б/400НУХЛ1 с приводом ПР-09-2Б УХЛ1 на стойке СВ 105
ОТУ 32-4863-1.21 Установка разъединителя РЛНД-1-10Б/400НУХЛ1 с приводом ПР-09-2Б УХЛ1 на опоре контактной сети
ОТУ 32-4863-1.22 Разъединитель, кабельная муфта, ограничители перенапряжений и изоляторы на стойке СВ 105
ОТУ 32-4863-1.23 Разъединитель, кабельная муфта, ограничители перенапряжений и изоляторы на стойке С 1,85/10,1
ОТУ 32-4863-1.24 СТП-1,25, КТП-ПМ-1,25. Низковольтные кабельные выводы. Подключение нагрузок СЦБ
ОТУ 32-4863-1.25 СТП-1,25, КТП-ПМ-1,25. Низковольтные кабельные выводы. Подключение наружного освещения
ОТУ 32-4863-1.26 КТПМ-4, КТПМ-10. Низковольтные кабельные выводы и установка разделительного трансформатора
ОТУ 32-4863-1.27 КТП-25…КТП-250. Низковольтные кабельные выводы
ОТУ 32-4863-1.28 Заземляющее устройство
ОТУ 32-4863-1.29 КТПМ-4…КТПМ-10, КТП25…КТП-160. Установка на приставках. Схема расположения элементов конструкций
ОТУ 32-4863-1.30 КТП-250. Установка на приставках. Схема расположения элементов конструкций
ОТУ 32-4863-1.31 КТПМ-4…КТПМ10, КТП25…КТП-160. Установка на приставках. Разрезы 1-1, 2-2
ОТУ 32-4863-1.32 КТП-250. Установка на приставках. Разрезы 1-1, 2-2. Установка КТПМ-4…КТПМ-10, КТП-25…КТП-250 на пучинистых и заболоченных грунтах
ОТУ 32-4863-1.33 Установка КТПМ-250…КТПМ-630 в I и II снеговых районах. Схема расположения элементов конструкций
ОТУ 32-4863-1.34 Установка КТПМ-250…КТПМ-630 в III и IV снеговых районах. Схема расположения элементов конструкций. Разрез 1-1
ОТУ 32-4863-1.35 Установка КТПМ-250…КТПМ-630 в III и IV снеговых районах. Разрезы 2-2, 3-3. Узлы 1…3. Фундамент Ф1
ОТУ 32-4863-1.36 КРУН К-112. Опора ОП1. Схема расположения элементов конструкций
ОТУ 32-4863-1.37 Металлические изделия М1…М7, М5-1. Ограждение ОГ
ОТУ 32-4863-1.38 Фундамент АФ1
ОТУ 32-4863-1.39 Каркас КР1
ОТУ 32-4863-1.40 Петля П1
ОТУ 32-4863-1.41 Сетка С1, С1-1
ОТУ 32-4863-1.42 Металлическая конструкция МК1
Разработан: Трансэлектропроект МПС
Утверждён:23.07.1998 Департамент электрификации и электроснабжения МПС РФ (25)
Расположен в:Техническая документация Строительство Справочные документы Типовые строительные конструкции, изделия и узлы Разработанные другими министерствами, ведомствами и организациями
Серия ОТУ 32-4863Серия ОТУ 32-4863Серия ОТУ 32-4863Серия ОТУ 32-4863Серия ОТУ 32-4863Серия ОТУ 32-4863Серия ОТУ 32-4863Серия ОТУ 32-4863Серия ОТУ 32-4863Серия ОТУ 32-4863Серия ОТУ 32-4863Серия ОТУ 32-4863Серия ОТУ 32-4863Серия ОТУ 32-4863Серия ОТУ 32-4863Серия ОТУ 32-4863Серия ОТУ 32-4863Серия ОТУ 32-4863Серия ОТУ 32-4863Серия ОТУ 32-4863Серия ОТУ 32-4863Серия ОТУ 32-4863Серия ОТУ 32-4863Серия ОТУ 32-4863Серия ОТУ 32-4863Серия ОТУ 32-4863Серия ОТУ 32-4863Серия ОТУ 32-4863Серия ОТУ 32-4863Серия ОТУ 32-4863Серия ОТУ 32-4863Серия ОТУ 32-4863Серия ОТУ 32-4863Серия ОТУ 32-4863Серия ОТУ 32-4863Серия ОТУ 32-4863Серия ОТУ 32-4863Серия ОТУ 32-4863Серия ОТУ 32-4863Серия ОТУ 32-4863Серия ОТУ 32-4863Серия ОТУ 32-4863Серия ОТУ 32-4863Серия ОТУ 32-4863Серия ОТУ 32-4863Серия ОТУ 32-4863Серия ОТУ 32-4863Серия ОТУ 32-4863Серия ОТУ 32-4863Серия ОТУ 32-4863Серия ОТУ 32-4863Серия ОТУ 32-4863Серия ОТУ 32-4863Серия ОТУ 32-4863Серия ОТУ 32-4863Серия ОТУ 32-4863Серия ОТУ 32-4863Серия ОТУ 32-4863Серия ОТУ 32-4863Серия ОТУ 32-4863Серия ОТУ 32-4863Серия ОТУ 32-4863Серия ОТУ 32-4863Серия ОТУ 32-4863Серия ОТУ 32-4863Серия ОТУ 32-4863

© 2013 Ёшкин Кот :-) Карта сайта