Информационная система
«Ёшкин Кот»

Скачать базу одним архивом
Скачать обновления
История создания базы
Карта сайта

Скачать Типовой проект 902-2-471.89 Альбом 7. Нестандартизированное оборудование (из ТП 902-2-469.89)

Дата актуализации: 10.08.2017

Типовой проект 902-2-471.89

Альбом 7. Нестандартизированное оборудование (из ТП 902-2-469.89)

Обозначение: Типовой проект 902-2-471.89
Обозначение англ: 902-2-471.89
Статус:не определен законодательством
Название рус.:Альбом 7. Нестандартизированное оборудование (из ТП 902-2-469.89)
Дата добавления в базу:01.09.2013
Дата актуализации:05.05.2017
Дата введения:12.05.1989
Оглавление:ТП 902-2-469.89 Титульный лист
ТП 902-2-469.89 Содержание альбома
ТП 902-2-469.89 1Ф.944.00.000 СБ Затвор плоский поверхностный 600х800. Лист 1
ТП 902-2-469.89 1Ф.944.00.000 СБ Затвор плоский поверхностный 600х800. Лист 2
ТП 902-2-469.89 1Ф.944.00.000 Затвор плоский поверхностный 600х800. Спецификация
ТП 902-2-469.89 1Ф.944.01.000 Щит. Спецификация
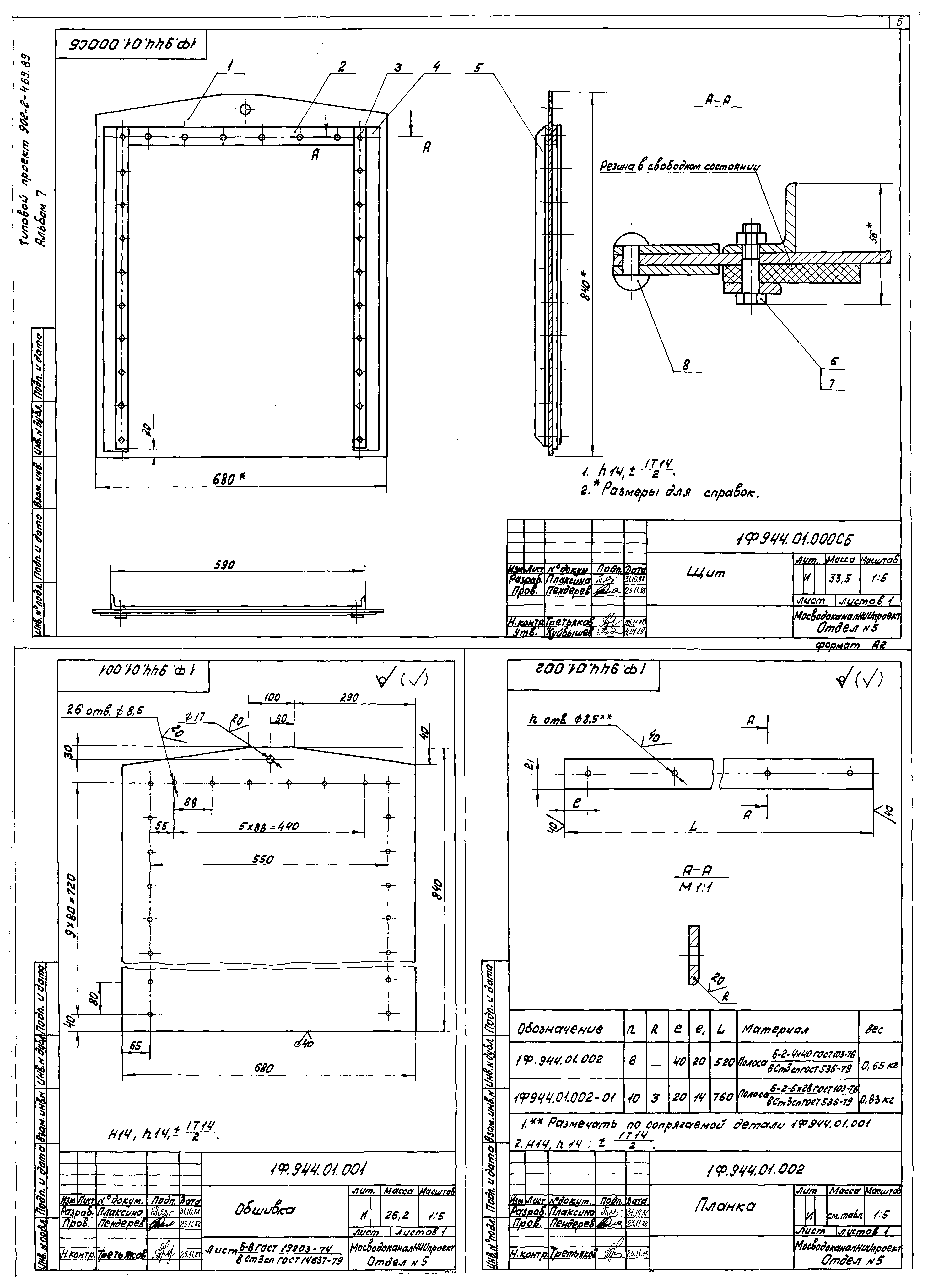
ТП 902-2-469.89 1Ф.944.01.000 СБ Щит
ТП 902-2-469.89 1Ф.944.01.001 Обшивка
ТП 902-2-469.89 1Ф.944.01.002 Планка
ТП 902-2-469.89 1Ф.944.01.002-01 Планка
ТП 902-2-469.89 1Ф.944.01.003 Уплотнение
ТП 902-2-469.89 1Ф.944.01.004 Стойка
ТП 902-2-469.89 1Ф.944.02.000 Рама затвора. Спецификация. Лист 1-2
ТП 902-2-469.89 1Ф.944.02.000 СБ Рама затвора
ТП 902-2-469.89 1Ф.944.02.001 Направляющая
ТП 902-2-469.89 1Ф.944.02.001-01 Направляющая
ТП 902-2-469.89 1Ф.944.02.002 Полоса
ТП 902-2-469.89 1Ф.944.02.003 Полоса анкерная
ТП 902-2-469.89 1Ф.944.02.004 Поперечина
ТП 902-2-469.89 1Ф.944.02.005 Уплотнение
ТП 902-2-469.89 1Ф.944.02.006 Угольник
ТП 902-2-469.89 1Ф.944.03.000 СБ Привод ручной
ТП 902-2-469.89 1Ф.944.00.003 Ограждение
ТП 902-2-469.89 1Ф.944.03.000 Привод ручной. Спецификация
ТП 902-2-469.89 1Ф.944.03.001 Гайка подъемная
ТП 902-2-469.89 1Ф.944.03.002 Шпилька
ТП 902-2-469.89 1Ф.944.03.003 Пластина верхняя
ТП 902-2-469.89 1Ф.944.03.004 Пластина нижняя
ТП 902-2-469.89 1Ф.944.01.001 Штанга
ТП 902-2-469.89 1Ф.944.01.002 Ось
ТП 902-2-469.89 1Ф.945.00.000 Затвор донного выпуска. Спецификация
ТП 902-2-469.89 1Ф.945.00.000 СБ Затвор донного выпуска
ТП 902-2-469.89 1Ф.945.01.000 Щиток. Спецификация
ТП 902-2-469.89 1Ф.945.01.000 СБ Щиток
ТП 902-2-469.89 1Ф.945.01.001 Клин
ТП 902-2-469.89 1Ф.945.01.002 Ручка
ТП 902-2-469.89 1Ф.945.02.000 Рама затвора. Спецификация
ТП 902-2-469.89 1Ф.945.02.000 СБ Рама затвора
ТП 902-2-469.89 1Ф.945.02.100 Обрамление. Спецификация
ТП 902-2-469.89 1Ф.945.02.100 СБ Обрамление
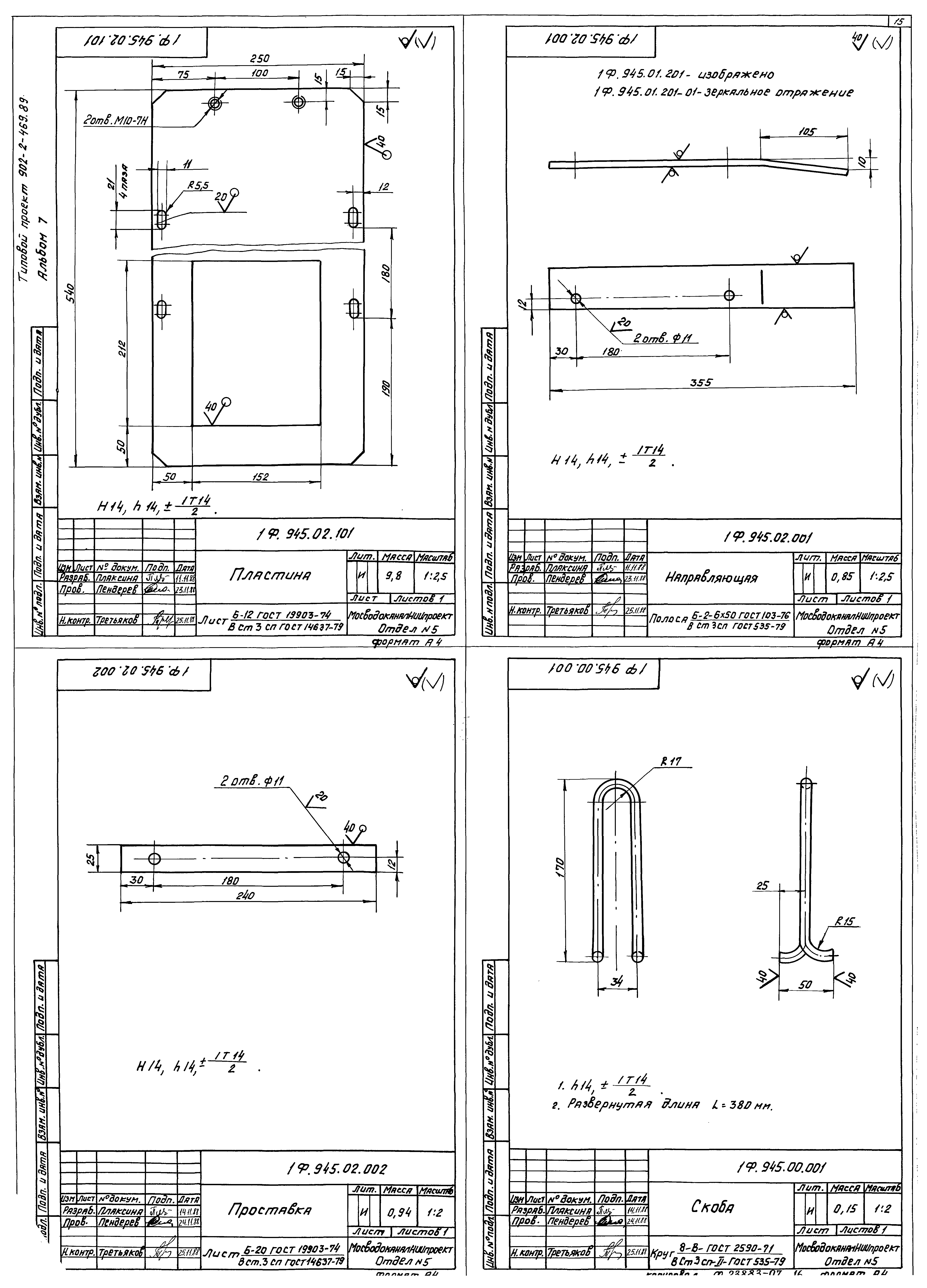
ТП 902-2-469.89 1Ф.945.02.101 Пластина
ТП 902-2-469.89 1Ф.945.02.001 Направляющая
ТП 902-2-469.89 1Ф.945.02.002 Проставка
ТП 902-2-469.89 1Ф.945.00.001 Скоба
ТП 902-2-469.89 1Ф.946.000 СБ Затвор шандорный 600х800
ТП 902-2-469.89 1Ф.946.000 Затвор шандорный 600х800. Спецификация
ТП 902-2-469.89 1Ф.946.001 Брусок
ТП 902-2-469.89 1Ф.946.100 Рама. Спецификация
ТП 902-2-469.89 1Ф.946.101 Дуга
ТП 902-2-469.89 1Ф.946.100 СБ Рама
ТП 902-2-469.89 9А.725.00.000 СБ Пробоотборник
ТП 902-2-469.89 9А.725.00.000 Пробоотборник. Спецификация
ТП 902-2-469.89 9А.725.01.000 Корпус. Спецификация
ТП 902-2-469.89 9А.725.01.000 СБ Корпус
ТП 902-2-469.89 9А.725.01.001 Патрубок
ТП 902-2-469.89 9А.725.01.002 Лист
ТП 902-2-469.89 9А.725.01.003 Лист
ТП 902-2-469.89 9А.725.01.004 Лист
ТП 902-2-469.89 9А.725.02.000 Крышка откидная. Спецификация
ТП 902-2-469.89 9А.725.02.000 СБ Крышка откидная
ТП 902-2-469.89 9А.725.02.100 Петля. Спецификация
ТП 902-2-469.89 9А.725.02.100 СБ Петля
ТП 902-2-469.89 9А.725.02.101 Скоба
ТП 902-2-469.89 9А.725.02.102 Скоба
ТП 902-2-469.89 9А.725.02.001 Ручка
ТП 902-2-469.89 3Р.89.000 СБ Устройство для сигнализатора уровня осадка
ТП 902-2-469.89 3Р.89.000 Устройство для сигнализатора уровня осадка. Спецификация
ТП 902-2-469.89 3Р.89.100 СБ Корпус
ТП 902-2-469.89 3Р.89.100 Корпус. Спецификация
ТП 902-2-469.89 3Р.89.101 Труба
ТП 902-2-469.89 3Р.89.102 Конус
ТП 902-2-469.89 3Р.89.200 Скоба закладная
ТП 902-2-469.89 3Р.89.201 Шпилька
ТП 902-2-469.89 3Р.89.202 Упор
ТП 902-2-469.89 3Р.89.203 Скоба
ТП 902-2-469.89 3Р.89.300 Прижим
ТП 902-2-469.89 3Р.89.301 Полоса
ТП 902-2-469.89 3Р.89.001 Пластина опорная
ТП 902-2-469.89 6С.53.148.000 Тройник косой 530х9
ТП 902-2-469.89 6С.53.148.001 Патрубок
ТП 902-2-469.89 6С.53.148.002 Патрубок
ТП 902-2-469.89 6С.23.184.000 Патрубок Ду 700 с отводом. Спецификация
ТП 902-2-469.89 6С.23.184.000 СБ Патрубок Ду 700 с отводом
ТП 902-2-469.89 6С.23.184.100 Патрубок
ТП 902-2-469.89 6С.23.184.101 Полукольцо
ТП 902-2-469.89 6С.23.184.102 Ствол
ТП 902-2-469.89 6С.23.184.200 Короб. Спецификация
ТП 902-2-469.89 6С.23.184.200 СБ Короб
ТП 902-2-469.89 6С.23.184.201 Стенка боковая
ТП 902-2-469.89 6С.23.184.300 Отвод
ТП 902-2-469.89 6С.23.184.301 Полукольцо
ТП 902-2-469.89 6С.23.184.302 Кольцо
Разработан: МосводоканалНИИпроект
Утверждён:28.04.1989 Мосгорисполком (Mosgorispolkom 890р)
Расположен в:Техническая документация Строительство Справочные документы Типовые строительные конструкции, изделия и узлы Общероссийский строительный каталог Промышленные предприятия, здания и сооружения Здания и сооружения санитарно-технические Канализация Сооружения механической очистки Отстойники Отстойники радиальные первичные
Типовой проект 902-2-471.89Типовой проект 902-2-471.89Типовой проект 902-2-471.89Типовой проект 902-2-471.89Типовой проект 902-2-471.89Типовой проект 902-2-471.89Типовой проект 902-2-471.89Типовой проект 902-2-471.89Типовой проект 902-2-471.89Типовой проект 902-2-471.89Типовой проект 902-2-471.89Типовой проект 902-2-471.89Типовой проект 902-2-471.89Типовой проект 902-2-471.89Типовой проект 902-2-471.89Типовой проект 902-2-471.89Типовой проект 902-2-471.89Типовой проект 902-2-471.89Типовой проект 902-2-471.89Типовой проект 902-2-471.89Типовой проект 902-2-471.89Типовой проект 902-2-471.89Типовой проект 902-2-471.89Типовой проект 902-2-471.89Типовой проект 902-2-471.89Типовой проект 902-2-471.89Типовой проект 902-2-471.89Типовой проект 902-2-471.89Типовой проект 902-2-471.89Типовой проект 902-2-471.89Типовой проект 902-2-471.89Типовой проект 902-2-471.89

© 2013 Ёшкин Кот :-) Карта сайта