Скачать Типовой проект 901-3-24 Альбом III. Здание очистной станции. Электрооборудование, автоматизация электропривода и технологический контрольДата актуализации: 10.08.2017 Типовой проект 901-3-24
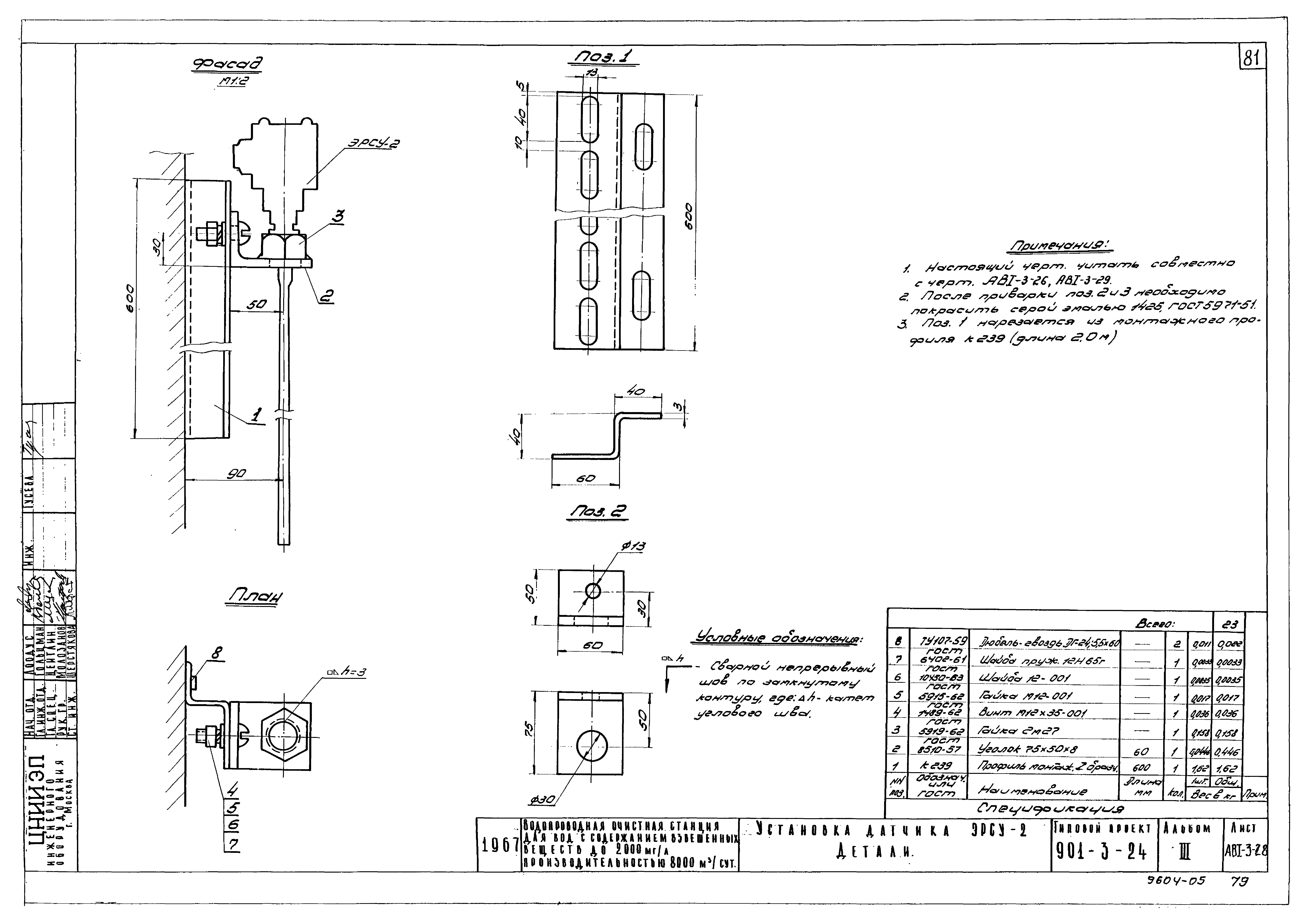
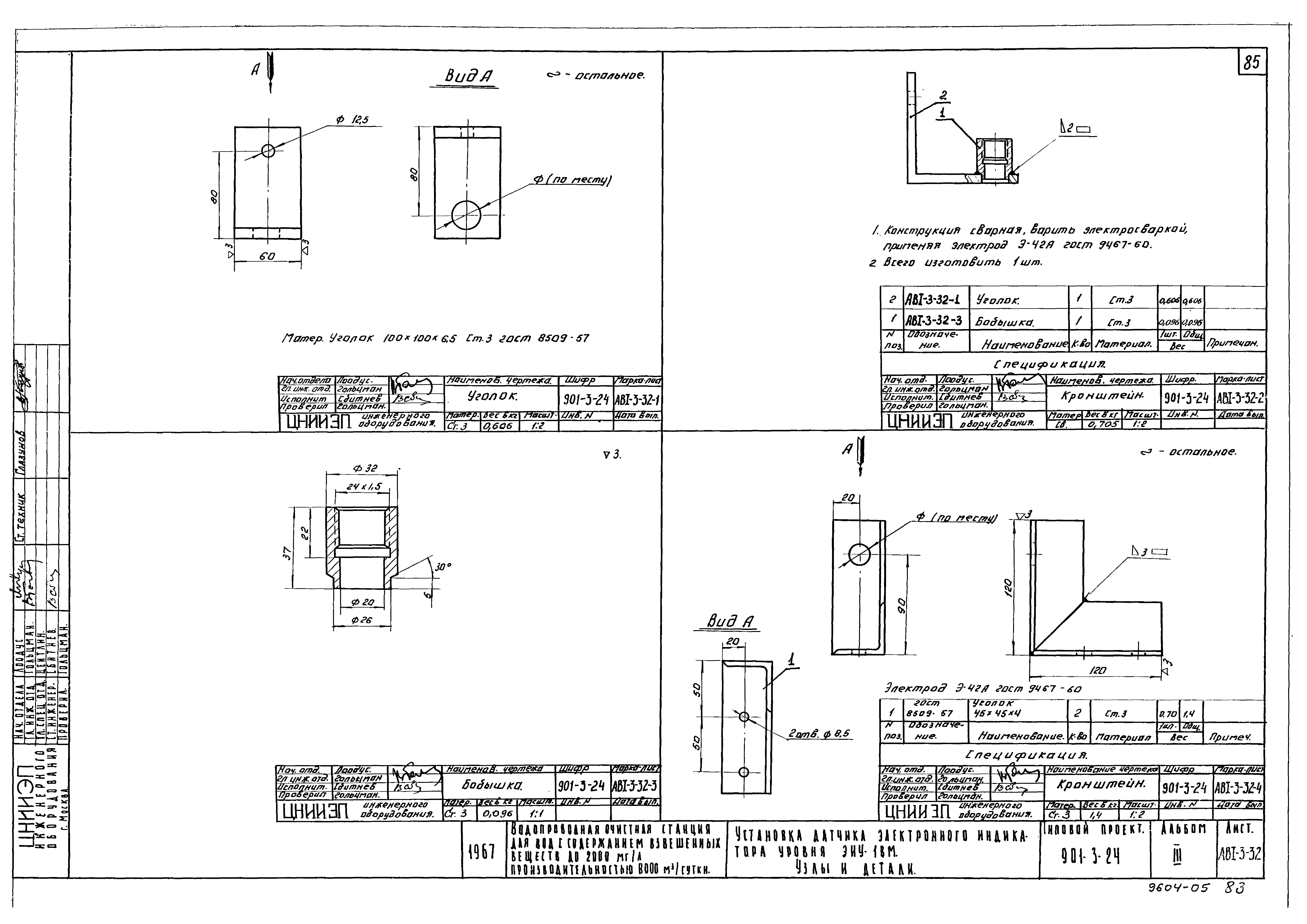
Альбом III. Здание очистной станции. Электрооборудование, автоматизация электропривода и технологический контрольОбозначение: | Типовой проект 901-3-24 | Обозначение англ: | 901-3-24 | Статус: | не действует | Название рус.: | Альбом III. Здание очистной станции. Электрооборудование, автоматизация электропривода и технологический контроль | Дата добавления в базу: | 01.09.2013 | Дата актуализации: | 05.05.2017 | Оглавление: | Титульный лист Перечень чертежей альбома Раздел I. Чертежи монтажной зоны и заготовительного участка Часть I-1. Электроснабжение и электроосвещение Пояснительная записка Спецификация Принципиальная схема электрических соединений 2КТП-320 кВА, 6 - 10 кВ Установка 2КТП-320кВА-6-10/0,4 кВ ЩСУ и ККУ-0,38-I Электрическое освещение. Условные обозначения схемы осветительных щитков Освещение I этажа Освещение II этажа Реагентное хозяйство. Освещение I и II этажей Наружное освещение и кабельные сети 0,4 кВ Щиток учета электроэнергии Заземление Строительное задание на установку 2КТП-320-6-10/0,4кВ ЩСУ и ККУ-0,38-I Часть I-2. Автоматизация электропривода Пояснительная записка Спецификация комплектных устройств. Спецификация электрооборудования Сводная спецификация материалов Сводная спецификация материалов. Спецификация изделий монтажно-заготовительного участка Принципиальная однолинейная схема питания электрооборудования АВР-380/220 В. Элементная схема Управление хозпротивопожарным насосом №1 (2 - 5). Элементная схема Управление электромагнитным вентилем №1ЭВ (2ЭВ - 5ЭВ). Элементная схема Управление вакуум-насосом №13 (14). Элементная схема Управление насосом подкачки воды №11 (12). Элементная схема. Регулирование уровня в промывной башне. Элементная схема Управление дренажным насосом №9 (10). Элементная схема Измерение расходов воды. Элементная схема. Регулирование производительности насосных агрегатов. Элементная схема Аварийные цепи насосов №№1 - 5. Элементная схема Схема внешних соединений электрооборудования Кабельный журнал Зал фильтров и отстойников. Размещение электрооборудования и прокладка кабелей. Планы на отм. - 0.6 Насосная станция II-го подъема и помещение КТП. Размещение электрооборудования и прокладка кабелей. Планы на отметках - 2.40; 0.00 Помещение воздуходувок. Размещение электрооборудования и прокладка кабелей. Планы на отм. 0.00; - 2.40 Реагентное хозяйство. Венткамера. Размещение электрооборудования и прокладка труб. Планы на отметках 0.00; + 4.20. Разрез 2-2 Насосная станция II-го подъема. Размещение электрооборудования и прокладка кабелей. Разрез 1-1 Установка электрооборудования и прокладка труб. Строительное задание Часть I-3. Технологический контроль Заказная спецификация приборов и средств автоматизации Заказная спецификация щитов и пультов. Заказная спецификация слаботочной аппаратуры. Заказная спецификация трубопроводной аппаратуры Заказная спецификация электроаппаратуры Принципиальная схема автоматизации Регулирование подачи промывной воды. Элементная схема Регулирующий клапан подачи фтора. Элементная схема Схема аварийной сигнализации Схема предупредительной сигнализации Схема питания приборов технологического контроля Схема питания приборов щита фтораторной Схема внешних электрических и трубных проводок Зал фильтров и осветлителей. Прокладка кабелей в осях колонн 3 - 8 по рядам А - Д Насосная станция II-го подъема. Прокладка кабелей в осях колонн 1, 3 по рядам Ж, Д Фтораторная. Дозаторная. Диспетчерская. Прокладка кабелей Диспетчерский пункт. Щит фтораторной. Строительное задание Установка 3-х датчиков ЭРСУ-2 в резервуаре чистой воды Установка датчиков ЭРСУ-28 в дренажном приямке. Установка дифманометра типа ДМ3564 Установка датчиков ЭРСУ-2 в дренажном приямке Установка дифманометра типа ДМ3564 Установка датчика ЭРСУ-2. Детали Установка заземляющего стержня ЭРСУ-2. Детали Установка колонки КДУ и заслонки ПР3. Кинематическая схема КДУ и ПР3. Совмещенный график рабочих характеристик Подставка колонки КДУII/П. Установка датчика электронного индикатора уровня ЭИУ-1ВМ Подставка колонки КДУII/П Установка датчика электронного индикатора уровня ЭИУ-1ВМ Установка датчика электронного индикатора уровня ЭИУ-1ВМ. Узлы и детали Уголок Кронштейн Бобышка Данные для заполнения вопросных листов №№1, 2 Данные для заполнения вопросных листов №№3, 4 Данные для заполнения вопросных листов №№5, 6 Раздел II. Задание заводам-изготовителям Часть II-1. Щиты и посты управления Щит станций управления. Общий вид ЩСУ. Спецификация оборудования Щит станций управления. Перечень надписей Щит станций управления. Монтажная схема панелей №№1, 2 Щит станций управления. Монтажная схема панелей №№3, 4 Щит станций управления. Монтажная схема панелей №№5, 6 Щит станций управления. Монтажная схема панелей №№7, 8 Щит станций управления. Монтажная схема панелей №№9, 10 Щит станций управления. Монтажная схема панелей №№11, 12 ЩСУ. Блок реле контроля напряжения. Блок реле времени и реле запрета пожарного запаса. Общие виды. Элементные схемы. Спецификации ЩСУ. Панели №№1, 2, 11. Блок реле контроля напряжения. Общий вид Блок реле контроля напряжения. Элементная схема. Спецификация ЩСУ. Панель №11. Блок реле времени и реле запрета пожарного запаса Блок реле времени и реле запрета пожарного запаса. Элементная схема. Спецификация ЩСУ. Блок реле аварийного отключения насосов. Блок размножающих реле. Общие виды. Элементные схемы. Спецификация ЩСУ. Панель №12. Блок реле аварийного отключения насосов. Общий вид Блок реле аварийного отключения насосов. Элементная схема. Спецификация ЩСУ. Панель №12. Блок размножающих реле. Элементная схема. Спецификация ЩСУ. Панель №8. Блок реле управления дренажными насосами. Элементная схема. Щит АВР. Перечень надписей Щит АВР. Перечень надписей ЩСУ. Панель №8. Блок реле управления дренажными насосами. Элементная схема Щит АВР. Общий вид. Спецификация Щит АВР. Общий вид Щит АВР. Спецификация Щит АВР. Монтажная схема панели №1 Щит АВР. Монтажная схема панелей №№2, 3 Щит АВР. Блок управления. Блок реле времени. Элементные схемы. Спецификации Щит АВР. Панель №2. Блок управления АВР. Общий вид Щит АВР. Блок управления. Элементная схема. Спецификация Щит АВР. Панель №1. Блок реле времени. Общий вид Щит АВР. Блок реле времени. Элементная схема. Спецификация Посты управления №1 - 8. Общие виды Пост управления №7 вакуум-насосами №13, 14. Общий вид Пост управления №6 дренажными насосами №№9, 10. Общий вид Пост управления №1 (2 - 5) хозпротивопожарным насосом №1 (2 - 5). Общий вид Пост управления №8 насосами подкачки воды №№11, 12. Общий вид Посты управления №1 - 8. Спецификация. Перечень надписей Посты управления №1 - 8. Спецификация Посты управления №1 - 8. Перечень надписей Посты управления №6, 7. Монтажные схемы Пост управления №6 дренажными насосами №№9, 10. Монтажная схема Пост управления №7 вакуум-насосами №№13, 14. Монтажная схема Посты управления №1 (2 - 5) и 8. Монтажные схемы Пост управления №8 насосами подкачки №№11, 12. Монтажная схема Пост управления №1 (2 - 5) хозпротивопожарными насосами №№1 - 5. Монтажная схема Часть II-2. Щит технологического контроля Щит диспетчера. Общий вид Щит диспетчера. Перечень приборов и аппаратуры. Перечень надписей в рамках Щит диспетчера. Перечень надписей в табло. Экспликация щитов Щит диспетчера. Монтажная схема панели I Щит диспетчера. Монтажная схема панели II Щит диспетчера. Монтажная схема панели III Щит диспетчера. Монтажная схема панели IV Щит диспетчера. Монтажная схема панели V Щит фтораторной. Общий вид. Монтажная схема Щит фтораторной. Монтажная схема Раздел III. Автоматизация вентиляционных систем Приточная система П-1, вытяжные системы В-1, ВЕ-1. Пояснительная записка Приточная система П-1, вытяжные системы В-1, ВЕ-1. Спецификации Приточная система П-1, вытяжные системы В-1, ВЕ-1. Принципиальная технологическая схема автоматизации Приточная система П-1, вытяжная система В-1. Принципиальные электрические схемы управления Приточная система П-1, вытяжная система ВЕ-1. Принципиальные электрические схемы автоматизации Приточная система П-1, вытяжные системы В-1, ВЕ-1. Схема питания Приточная система П-1, вытяжные системы В-1, ВЕ-1. Общий вид и монтажно-коммутационная схема щита автоматизации Приточная система П-1, вытяжные системы В-1, ВЕ-1. Схема внешних соединений щита автоматизации Приточная система П-1, вытяжные системы В-1, ВЕ-1. Трассы внешних соединений | Разработан: | ЦНИИЭП инженерного оборудования Госгражданстроя
| Утверждён: | 20.12.1967 ЦНИИЭП инженерного оборудования (TsNIIEP of Building Service Equipment 121)
| Расположен в: |
|
                                                                                                                                  
|