Информационная система
«Ёшкин Кот»

Скачать базу одним архивом
Скачать обновления
История создания базы
Карта сайта

Скачать Типовой проект 901-3-24 Альбом II. Здание очистной станции. Технологическая и санитарно-техническая части

Дата актуализации: 10.08.2017

Типовой проект 901-3-24

Альбом II. Здание очистной станции. Технологическая и санитарно-техническая части

Обозначение: Типовой проект 901-3-24
Обозначение англ: 901-3-24
Статус:не действует
Название рус.:Альбом II. Здание очистной станции. Технологическая и санитарно-техническая части
Дата добавления в базу:01.09.2013
Дата актуализации:05.05.2017
Оглавление:Перечень чертежей
Технологическая часть
   Пояснительная записка
   Примерный генплан
   Вертикальная схема движения воды по сооружениям
   Общий вид станции. Планы 1 и 2 этажей. Разрезы 1-1 и 2-2
   План 1 этажа с нанесением производственного водопровода, реагентопроводов и пробоотборных трубок
   План 2 этажа с нанесением производственного водопровода, реагентопроводов и пробоотборных трубок
   Зал осветлителей и фильтров. План 1 этажа. Виды по а-а, б-б. Сечения в-в, г-г, д-д
   Зал осветлителей и фильтров. План 2 этажа. Узел смесителя
   Зал осветлителей и фильтров. Разрез I-I, II-II, III-III. Деталь загрузки фильтра
   Зал осветлителей и фильтров. Детали перфорированных труб осветлителей и фильтров
   Зал осветлителей и фильтров. Узел управления гидрозадвижками фильтра. Спецификация
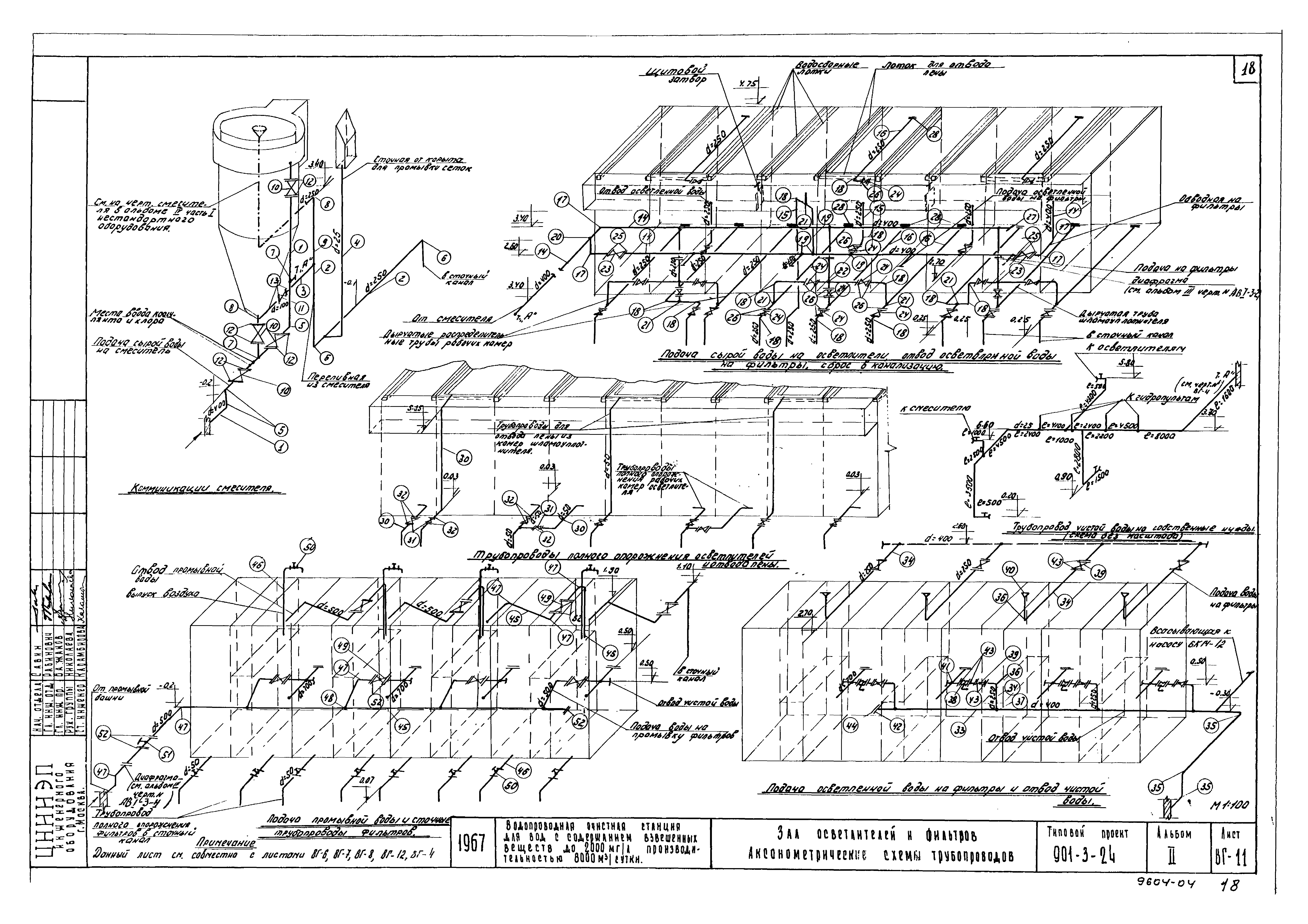
   Зал осветлителей и фильтров. Аксонометрические схемы трубопроводов
   Зал осветлителей и фильтров. Спецификации труб, фасонных частей, арматуры, оборудования. Загрузка фильтров
   Зал осветлителей и фильтров. Вариант дренажа фильтра со щелевыми колпачками. Общий вид. Детали. Спецификация
   Реагентное хозяйство. Цехи коагулянта и извести. План подвала
   Реагентное хозяйство. Цехи коагулянта и извести. План 1 этажа
   Реагентное хозяйство. Цехи коагулянта и извести. Разрезы I-I, II-II
   Реагентное хозяйство. Цехи коагулянта и извести. Разрезы III-III, IV-IV и сечения а-а, б-б
   Реагентное хозяйство. Цехи коагулянта и извести. Аксонометрическая схема трубопроводов подачи раствора коагулянта и известкового молока
   Реагентное хозяйство. Цехи коагулянта и извести. Аксонометрическая схема воздухопроводов, трубопроводов чистой воды, неочищенной воды, технической канализации
   Реагентное хозяйство. Спецификация трубопроводов, фасонных частей и оборудование цеха коагулянта и извести
   Реагентное хозяйство. Цеха полиакриламида, фтора и угля. Планы на отм. 0.00, 4.20, 6.50
   Реагентное хозяйство. Цеха полиакриламида, фтора и угля. Разрезы 1-1, 2-2, 3-3, 4-4
   Реагентное хозяйство. Аксонометрические схемы трубопроводов раствора коагулянта, известкового молока, растворов ПАА, фтора и угольной пульпы до места ввода
   Реагентное хозяйство. Цеха ПАА, фтора и угля. Аксонометрические схемы воздухопроводов, трубопроводов чистой и неочищенной воды и сточных трубопроводов
   Реагентное хозяйство. Цеха полиакриламида, фтора и угля. Спецификация
   Хлородозаторная. План. Схема. Спецификация
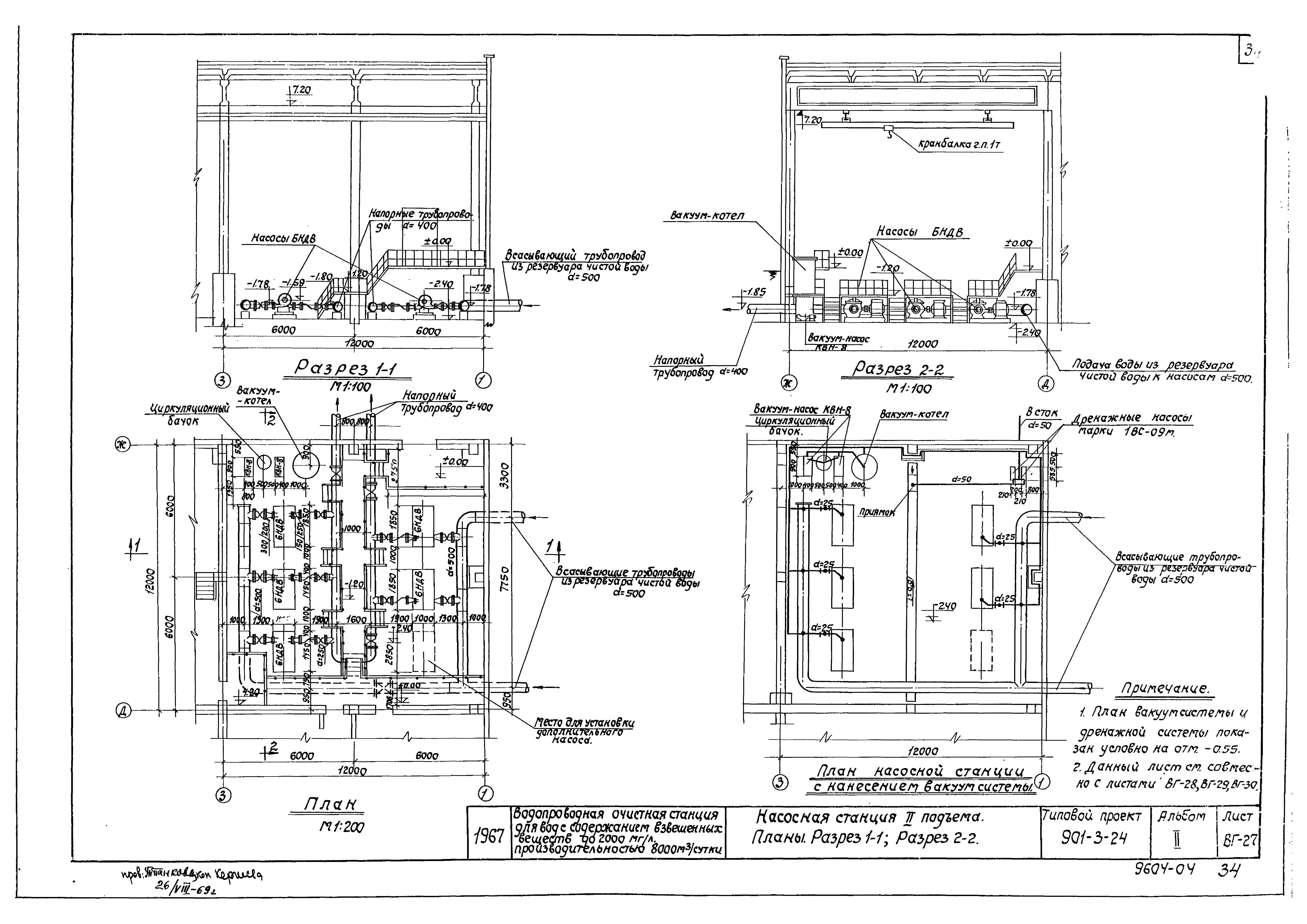
   Насосная станция II подъема. Планы. Разрез 1-1. Разрез 2-2
   Вакуумная установка с вакуум-насосами КВН-8. План. Вид по стрелкам "А" и "Б". Спецификация
   Насосная станция II подъема. Монтажные схемы трубопроводов. Аксонометрическая схема вакуум-системы и спецификация
   Насосная станция II подъема. Спецификация труб, оборудования, арматуры
   Установочный чертеж насоса 6НДв. Рама под агрегат
   Установочный чертеж вакуум-насоса КВН-8. Рама под агрегат
   План лаборатории с размещением оборудования и мебели
   Лаборатории. Спецификация оборудования
Санитарно-техническая часть
   Общие пояснения к проекту. Таблица кратности вентиляционных воздухообменов
   Таблица нагревательных приборов. Спецификация материалов и объем работ по устройству системы отопления (при панельном варианте)
   Таблица нагревательных приборов. Спецификация материалов и объем работ по устройству системы отопления (при кирпичном варианте)
   Спецификация оборудования и деталей вентиляционных систем
   План с наноской системы отопления и вентиляции
   Фрагменты планов с наноской систем вентиляции в осях 3 -8, Д - Ж
   Фрагменты планов с наноской систем вентиляции в осях 1 - 3, А - Д
   Разрезы 1-1, 2-2, 3-3
   Схема трубопроводов отопления
   Схемы вентиляционных систем
   Планы венткамер. Разрезы I-I, II-II, III-III
   Приточный шкаф
   Пояснительная записка, условные обозначения, спецификация
   Планы первого этажа и кровли
   Схема хозяйственно-питьевого водопровода, разрезы по хозяйственно-фекальной канализации и водостокам
Разработан: ЦНИИЭП инженерного оборудования Госгражданстроя
Утверждён:20.12.1967 ЦНИИЭП инженерного оборудования (TsNIIEP of Building Service Equipment 121)
Расположен в:Техническая документация Строительство Справочные документы Типовые строительные конструкции, изделия и узлы Общероссийский строительный каталог Промышленные предприятия, здания и сооружения Здания и сооружения санитарно-технические Водоснабжение Сооружения и установки по обеззараживанию воды Сооружения обработки и повторного использования воды для промывки фильтров
Типовой проект 901-3-24Типовой проект 901-3-24Типовой проект 901-3-24Типовой проект 901-3-24Типовой проект 901-3-24Типовой проект 901-3-24Типовой проект 901-3-24Типовой проект 901-3-24Типовой проект 901-3-24Типовой проект 901-3-24Типовой проект 901-3-24Типовой проект 901-3-24Типовой проект 901-3-24Типовой проект 901-3-24Типовой проект 901-3-24Типовой проект 901-3-24Типовой проект 901-3-24Типовой проект 901-3-24Типовой проект 901-3-24Типовой проект 901-3-24Типовой проект 901-3-24Типовой проект 901-3-24Типовой проект 901-3-24Типовой проект 901-3-24Типовой проект 901-3-24Типовой проект 901-3-24Типовой проект 901-3-24Типовой проект 901-3-24Типовой проект 901-3-24Типовой проект 901-3-24Типовой проект 901-3-24Типовой проект 901-3-24Типовой проект 901-3-24Типовой проект 901-3-24Типовой проект 901-3-24Типовой проект 901-3-24Типовой проект 901-3-24Типовой проект 901-3-24Типовой проект 901-3-24Типовой проект 901-3-24Типовой проект 901-3-24Типовой проект 901-3-24Типовой проект 901-3-24Типовой проект 901-3-24Типовой проект 901-3-24Типовой проект 901-3-24Типовой проект 901-3-24Типовой проект 901-3-24Типовой проект 901-3-24Типовой проект 901-3-24Типовой проект 901-3-24Типовой проект 901-3-24Типовой проект 901-3-24Типовой проект 901-3-24Типовой проект 901-3-24Типовой проект 901-3-24

© 2013 Ёшкин Кот :-) Карта сайта