Информационная система
«Ёшкин Кот»

Скачать базу одним архивом
Скачать обновления
История создания базы
Карта сайта

Скачать Типовой проект 901-3-24 Альбом I. Часть 3. Здание очистной станции. Архитектурно-строительная часть. Чертежи к частям 1 и 2

Дата актуализации: 10.08.2017

Типовой проект 901-3-24

Альбом I. Часть 3. Здание очистной станции. Архитектурно-строительная часть. Чертежи к частям 1 и 2

Обозначение: Типовой проект 901-3-24
Обозначение англ: 901-3-24
Статус:не действует
Название рус.:Альбом I. Часть 3. Здание очистной станции. Архитектурно-строительная часть. Чертежи к частям 1 и 2
Дата добавления в базу:01.09.2013
Дата актуализации:05.05.2017
Оглавление:Обложка
Титульный лист
Содержание альбома
Монтажная схема каркаса. План. Разрезы 1-1, 2-2. Спецификация
План перекрытия и покрытия
Блок фильтров и осветлителей. План перекрытия на отм. 4.200. Монтажная схема плит перекрытия
Перекрытия на отм. 4.200. Сечения 3-3 - 11-11
Монтажная схема металлических балок для перекрытия на отм. 4.200
Площадка П-7 на отм. 6.500. Разрезы 1-1, 2-2, 3-3. Сечения А-А, Б-Б. Спецификация сборных ж/б элементов
Помещение в осях 7 - 8, Д - Е. Сборно-монолитная площадка на отм. 4.200
Площадки П-1 на отм. 2.600, П-2 на отм. 3.200
Площадка П-4 на отм. 0.000. План. Разрез 2-2. Сечения "а-а", "б-б", "в-в"
Площадка П-4 на отм. 0.000. Разрез 1-1. Сечение Г-Г. Узлы "А", "Б", "В", "Г"
Блок насосный. Площадки П-5, П-6, П-8. План. Разрезы 2-2, 3-3, 4-4. Сечение В-В, Г-Г. Узлы "А", "Б", "В"
Балки площадок "Б-1 - Б-14". Консоли "К-1 - К-5". Накладные детали НД-1, НД-2
Балки площадок "Б-15 - Б-21". Рама "Р-1". Стойки "М-1", "М-2". Закладные детали ЗД-1, ЗД-2, ЗД-3
Балки площадок "Б-22 - Б-27". Площадка П-3. Накладные детали НД-3, НД-4
Спецификация на изделия "Б-1 - Б-27", П-3, П-3А, Р-1, М-1, М-2, "К-1 - К-5", ЗД1 - ЗД3
Спецификация типовых металлических изделий. Спецификация стали по площадкам
Блок фильтров и осветлителей. Крепление трубопроводов. Монтажный план опор. Металлические опоры МО-1, МО-2, МО-3
Площадка для обслуживания смесителя. Планы, разрезы
Площадка для обслуживания смесителя С-1 - С-8
Монтажная схема подкрановых путей и монорельсов
Узлы, крепления подкрановых путей и монорельсов
Помещение диспетчерской. Двойной пол. План. Разрез 1-1
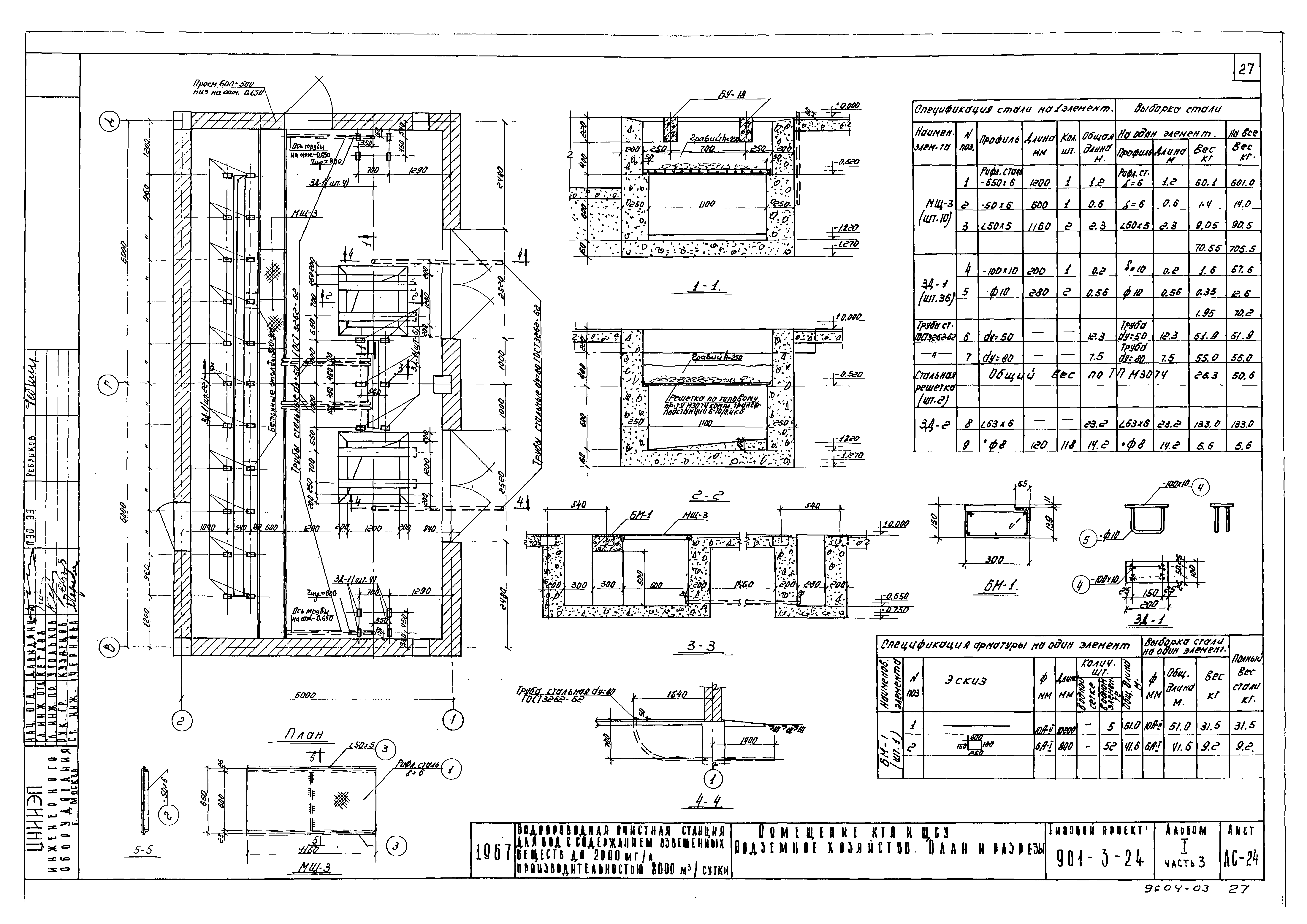
Помещение КТП и ЩСУ. Подземное хозяйство. План. Разрезы
Насосная станция II подъема. Фундаменты под насосы
Блок фильтров и осветлителей. Планы каналов и металлическая площадка. Реагентное хозяйство. План каналов
Венткамера. План и разрезы. Закладные детали ЗД-1 и ЗД-2
Опалубка колонн
Опалубка плит и балок. Закладные детали
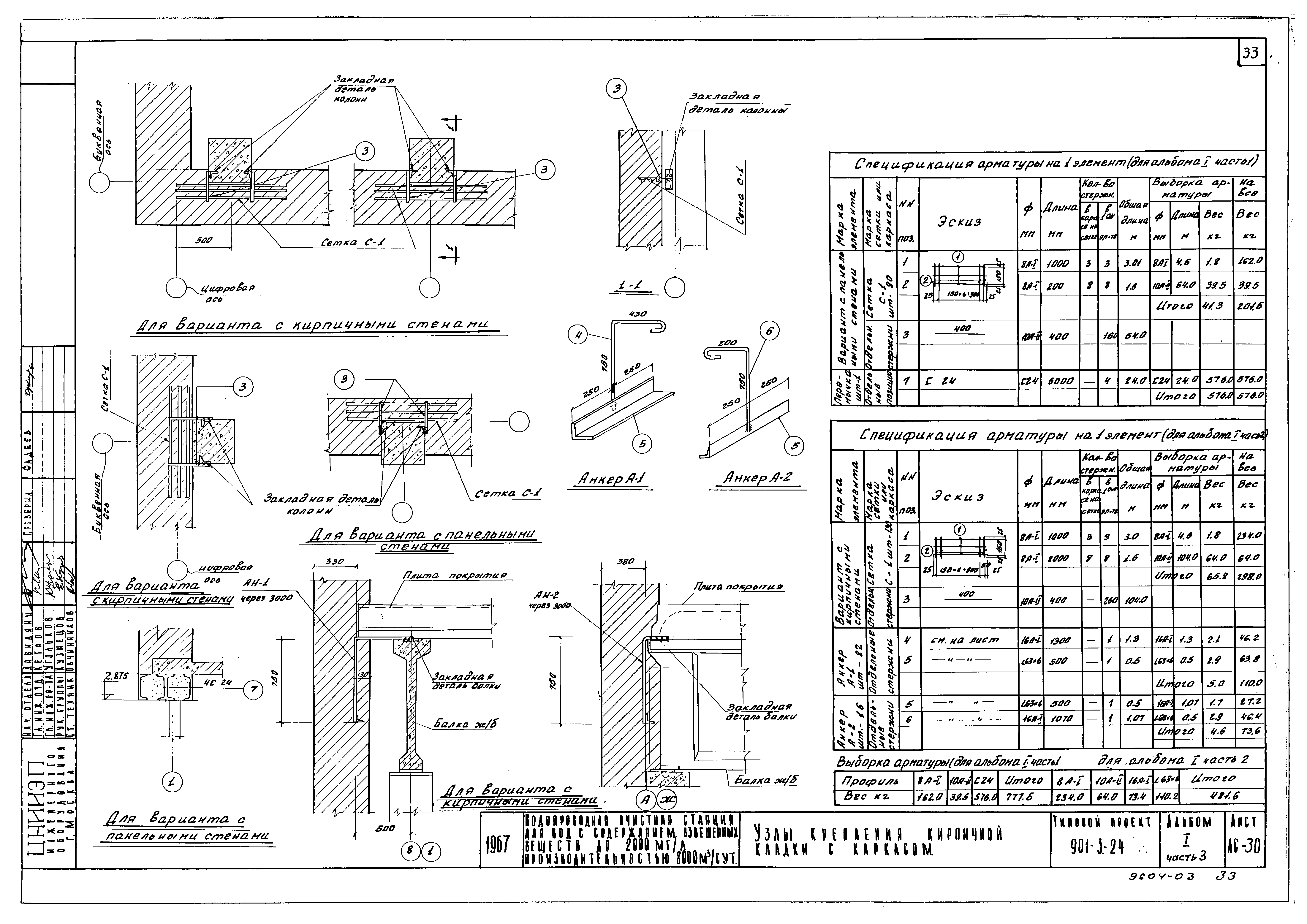
Узлы крепления кирпичной кладки с каркасом
Баки хранения коагулянта и известкового теста. План. Разрезы 1-1, 2-2. Узлы
Баки хранения коагулянта и известкового теста. Армирование. Планы раскладки верхних и нижних сеток. Узлы
Баки хранения коагулянта и известкового теста. Армирование. Спецификация. Выборка арматуры. Расход материалов
Баки хранения коагулянта и известкового теста. Деревянная колосниковая решетка и щелевая перегородка
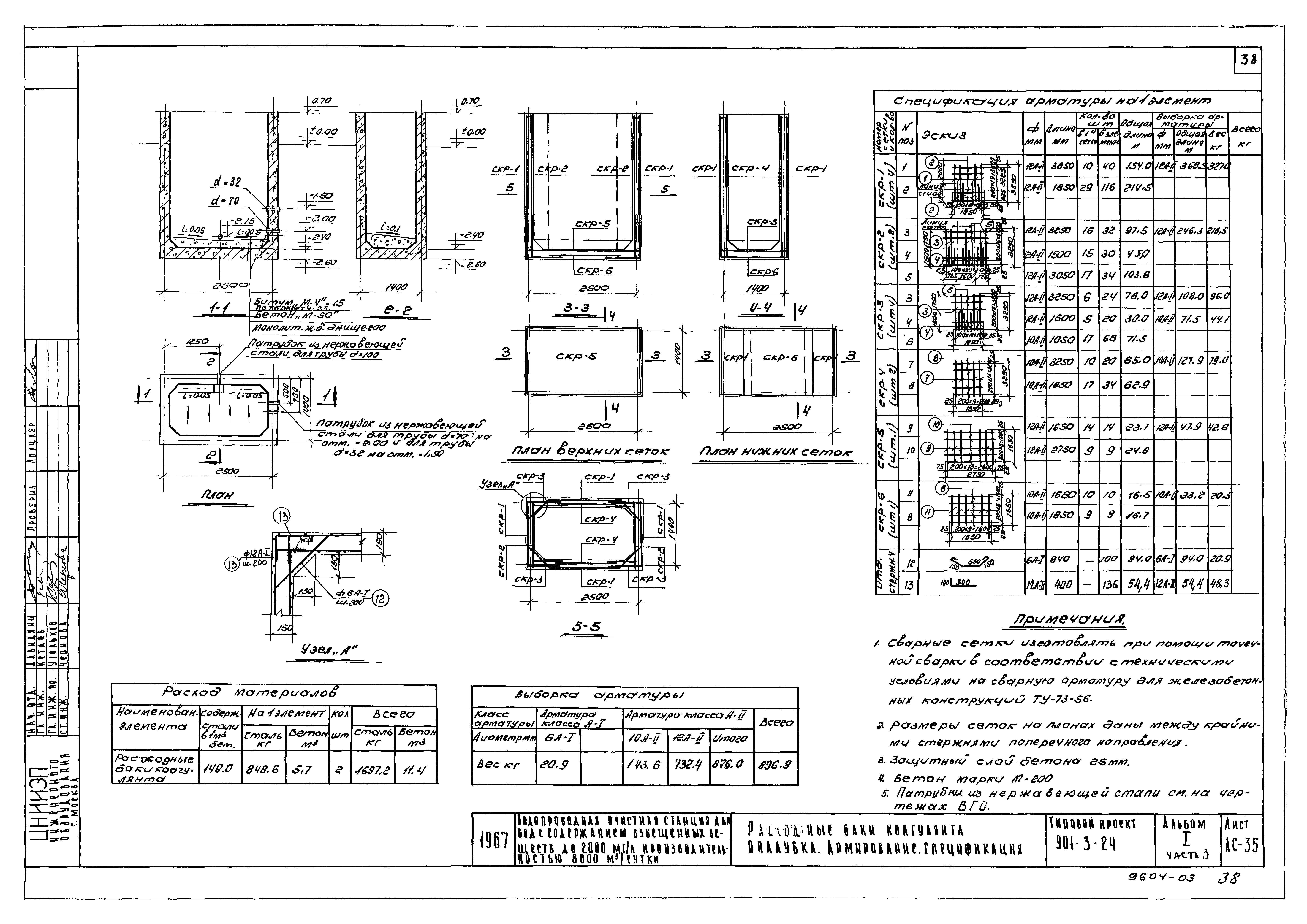
Расходные баки коагулянта. Опалубка. Армирование. Спецификация
Баки раствора ПЛА и угольной пульпы
Эвакуационная лестница ЭЛ-1
Разработан: ЦНИИЭП инженерного оборудования Госгражданстроя
Утверждён:20.12.1967 ЦНИИЭП инженерного оборудования (TsNIIEP of Building Service Equipment 121)
Расположен в:Техническая документация Строительство Справочные документы Типовые строительные конструкции, изделия и узлы Общероссийский строительный каталог Промышленные предприятия, здания и сооружения Здания и сооружения санитарно-технические Водоснабжение Сооружения и установки по обеззараживанию воды Сооружения обработки и повторного использования воды для промывки фильтров
Типовой проект 901-3-24Типовой проект 901-3-24Типовой проект 901-3-24Типовой проект 901-3-24Типовой проект 901-3-24Типовой проект 901-3-24Типовой проект 901-3-24Типовой проект 901-3-24Типовой проект 901-3-24Типовой проект 901-3-24Типовой проект 901-3-24Типовой проект 901-3-24Типовой проект 901-3-24Типовой проект 901-3-24Типовой проект 901-3-24Типовой проект 901-3-24Типовой проект 901-3-24Типовой проект 901-3-24Типовой проект 901-3-24Типовой проект 901-3-24Типовой проект 901-3-24Типовой проект 901-3-24Типовой проект 901-3-24Типовой проект 901-3-24Типовой проект 901-3-24Типовой проект 901-3-24Типовой проект 901-3-24Типовой проект 901-3-24Типовой проект 901-3-24Типовой проект 901-3-24Типовой проект 901-3-24Типовой проект 901-3-24Типовой проект 901-3-24Типовой проект 901-3-24Типовой проект 901-3-24Типовой проект 901-3-24Типовой проект 901-3-24Типовой проект 901-3-24Типовой проект 901-3-24Типовой проект 901-3-24

© 2013 Ёшкин Кот :-) Карта сайта