Скачать Типовой проект 902-1-3 Альбом 3. Архитектурно-строительная часть при глубине заложения подводящего коллектора 7,0 мДата актуализации: 10.08.2017 Типовой проект 902-1-3
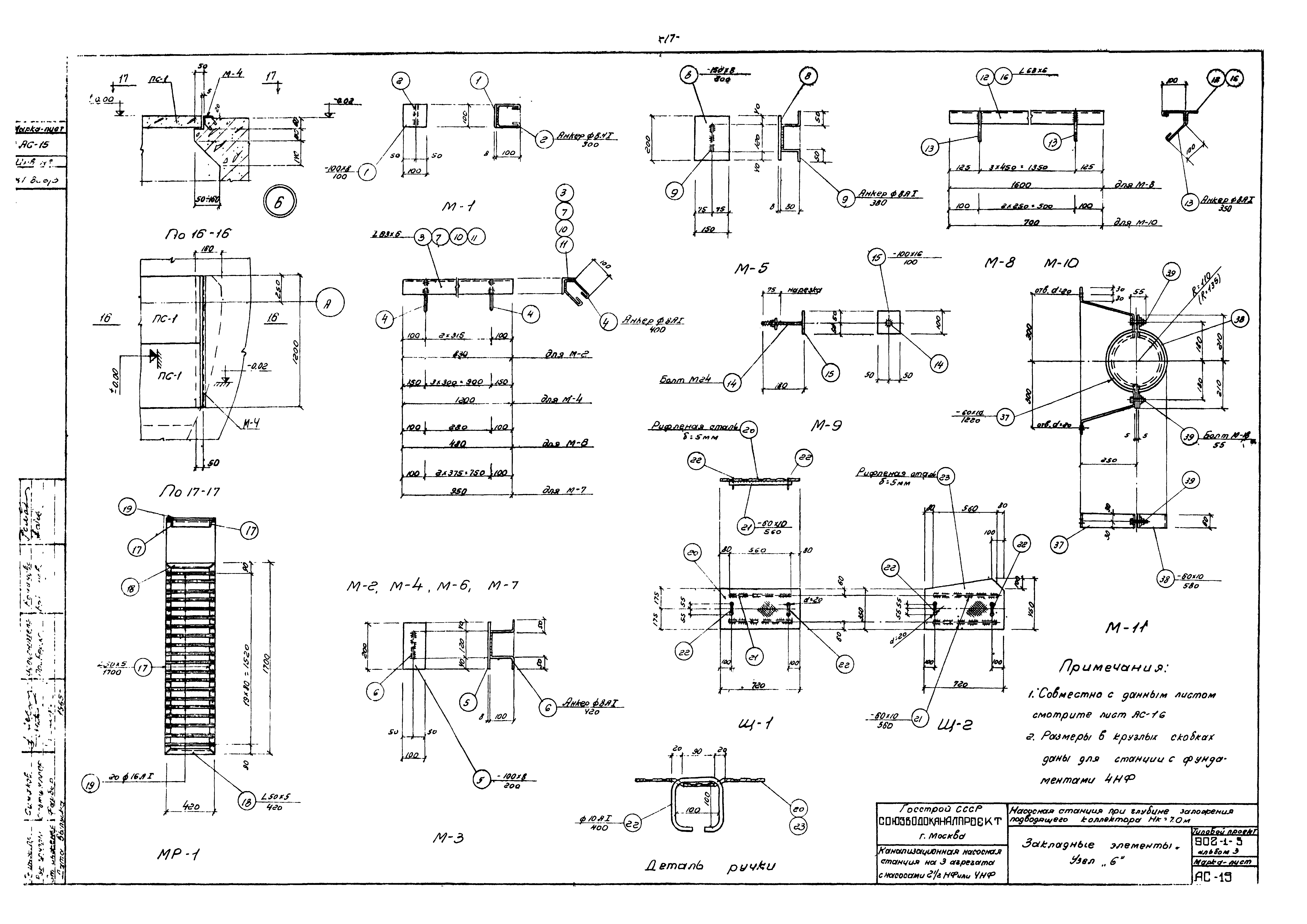
Альбом 3. Архитектурно-строительная часть при глубине заложения подводящего коллектора 7,0 мОбозначение: | Типовой проект 902-1-3 | Обозначение англ: | 902-1-3 | Статус: | не действует | Название рус.: | Альбом 3. Архитектурно-строительная часть при глубине заложения подводящего коллектора 7,0 м | Дата добавления в базу: | 01.09.2013 | Дата актуализации: | 05.05.2017 | Оглавление: | Обложка Титульный лист Заглавный лист Содержание альбома Пояснительная записка Планы кровли, полов и перемычек. Основные показатели. Толщина наружных стен и утеплителя кровли, воздух шахты. Спецификация столярных изделий. Экспликация полов, покрытия и перемычек Планы, разрезы Фасады. Детали разрезов и планов Опалубочный чертеж. План на отм. - 0.02. Сечения Опалубочный чертеж. План на отм. - 6.42. Сечения Опалубочный чертеж. Разрезы 1-1, 2-2 Опалубочный чертеж. Разрез 7-7. Узлы Опалубочный чертеж. План А-А. Узлы. Сечения Опалубочный чертеж. План на отм. - 9.20. Фундаменты Ф-1, Ф-2 Закладные элементы. Узел "6" Спецификация и выборка стали. Выборка сальников Площадка для обслуживания задвижек Армирование ствола шахты. Раскладка сеток. План по 2-2. Сечение 1-1 Армирование ствола шахты и ножа. Сетки С1 - С4. Каркас Кр-1 Выпуски арматуры из стакана Армирование ствола шахты и ножа. Спецификация и выборка арматуры Армирование днища. План раскладки сеток и каркасов. Сечения 1-1, 2-2 Армирование днища. Сетки, каркасы. Спецификация и выборка арматуры Армирование перегородки. План, разрезы. Раскладка сеток. Расход материалов Армирование перегородки. Сетки, каркасы. Спецификация и выборка арматуры Армирование перекрытия на отм. - 0.02. Планы, разрезы Перекрытие на отм. - 0.02. Спецификация арматуры Перекрытие на отм. - 0.02. Армирование балок Бм-1 - Бм-4 Перекрытие на отм. - 0.02. Балки Бм-5 - Бм-8. Расход материалов Перекрытие на отм. - 0.02. Армирование балок. Сетки, каркасы Перекрытие на отм. - 0.02. Спецификация и выборка арматуры Армирование перекрытия на отм. - 6.42. Планы, сечения Армирование лотка. План, сечения Армирование перекрытия на отм. - 6.42. Спецификация и выборка арматуры Армирование перекрытия на отм. - 6.42. Балки Бм-9 - Бм-12. Сечения Армирование перекрытия на отм. - 6.42. Балки Бм-13, Бм-13а. Сечения, каркасы Армирование перекрытия на отм. - 6.42. Спецификация и выборка арматуры Армирование лестничных площадок Пм-1 - Пм-3 Сборные железобетонные плиты ПС-1, ПС-2 Кровельное покрытие. Арматурно-опалубочный чертеж Монорельсы. План, разрезы, узлы и сечения Монорельсы. Узлы, сечения, спецификация и выборка стали Лестницы. Схема расположения лестниц. Лестницы ЛС-1 - ЛС-3 Лестницы ЛС-4 - ЛС-6 Лестницы. Узлы "1 - 4" Лестницы. Перила площадок. Спецификация и выборка стали. Выборка марок Металлический приямок в днище Сводные спецификации материалов Объемы строительных работ | Разработан: | Союзводоканалпроект
| Утверждён: | 19.04.1966 Главпромстройпроект Госстроя СССР
| Расположен в: |
|
                                                   
|