Скачать Типовой проект 901-1-88.87 Альбом II. Технологические решения, внутренние водопровод и канализация, отопление и вентиляция, нестандартизированное оборудование (из ТП 901-1-90.87)Дата актуализации: 10.08.2017 Типовой проект 901-1-88.87
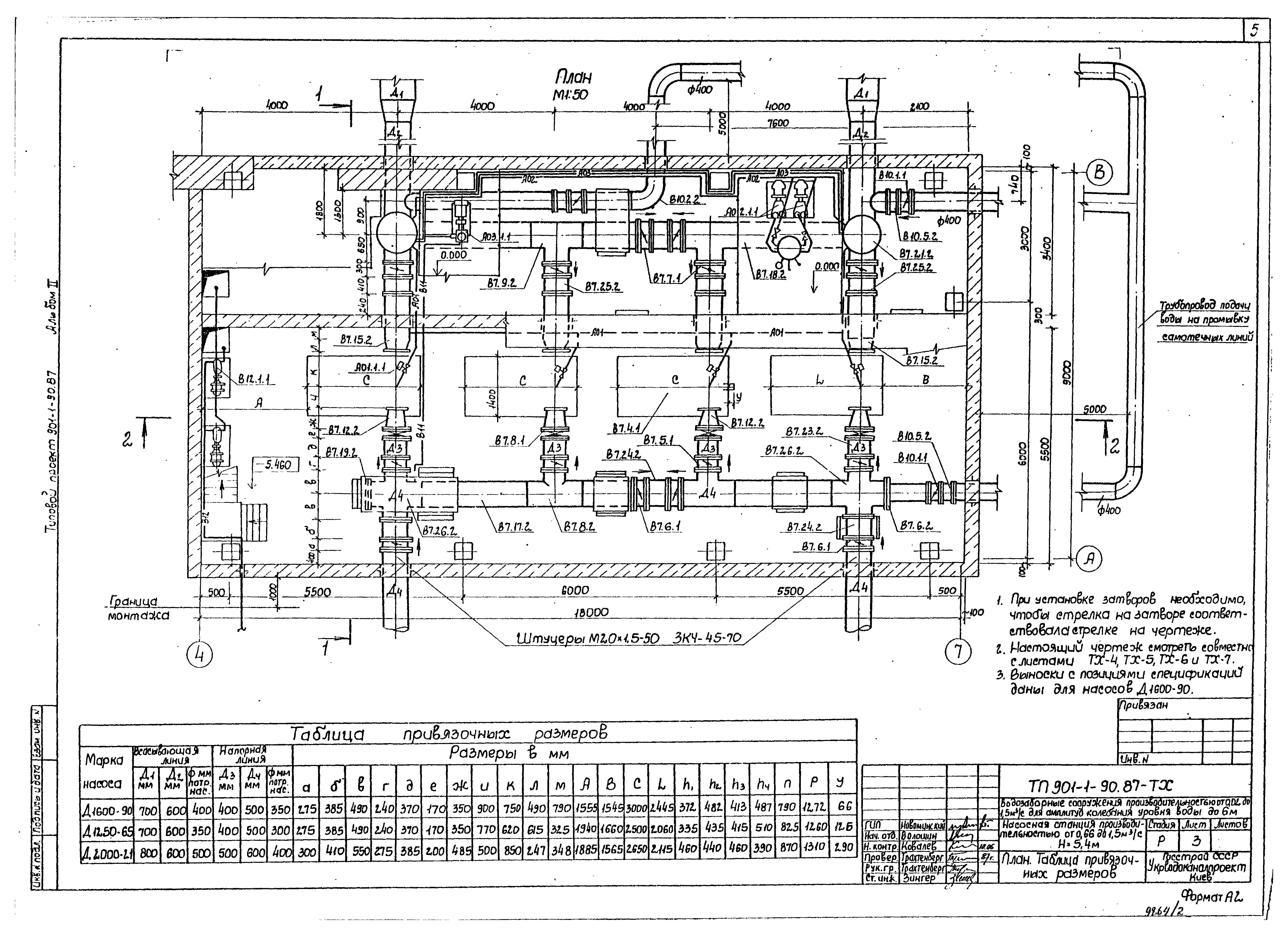
Альбом II. Технологические решения, внутренние водопровод и канализация, отопление и вентиляция, нестандартизированное оборудование (из ТП 901-1-90.87)Обозначение: | Типовой проект 901-1-88.87 | Обозначение англ: | 901-1-88.87 | Статус: | не определен законодательством | Название рус.: | Альбом II. Технологические решения, внутренние водопровод и канализация, отопление и вентиляция, нестандартизированное оборудование (из ТП 901-1-90.87) | Дата добавления в базу: | 01.09.2013 | Дата актуализации: | 05.05.2017 | Дата введения: | 28.08.1987 | Оглавление: | Основной комплект ТХ Общие данные Совмещенный чертеж План. Таблица привязочных размеров Разрез 1-1. Схемы трубопроводов В10, В11 Разрез 2-2. Схемы трубопроводов А01, А02, А03 Установка вакуумных насосов. Планы. Вид по А Установка дренажных насосов. Элемент плана, разрезы, схема Вакуумная колонна Запорное устройство Проставки монтажные dy 400, 500, 600 Крестовина Основной комплект ВК Общие данные План, схемы сетей В1, В2, К1 Основной комплект ОВ Общие данные Планы Разрез. Установка оборудования систем П1 и П2 Схемы Узел управления. Схема. Спецификация | Разработан: | Укрводоканалпроект
| Утверждён: | 28.08.1987 Госстрой СССР (Государственный комитет Совета Министров СССР по делам строительства) (USSR Gosstroy 57)
| Расположен в: |
|
                     
|