Информационная система
«Ёшкин Кот»

Скачать базу одним архивом
Скачать обновления
История создания базы
Карта сайта

Скачать Типовой проект 901-1-90.87 Альбом V. Электротехническая часть

Дата актуализации: 10.08.2017

Типовой проект 901-1-90.87

Альбом V. Электротехническая часть

Обозначение: Типовой проект 901-1-90.87
Обозначение англ: 901-1-90.87
Статус:не определен законодательством
Название рус.:Альбом V. Электротехническая часть
Дата добавления в базу:01.09.2013
Дата актуализации:05.05.2017
Дата введения:28.08.1987
Оглавление:Содержание
Основной комплект ЭМ
   Общие данные
   Гидромеханическая схема и ведомость электрооборудования
   КТП. Схема принципиальная однолинейная сети 0,4 кВ
   ШЩ. Схема принципиальная однолинейная сети 0,4 кВ
   Насосные агрегаты. Схема принципиальная
   Вакуум установка, вакуум насос. Схема принципиальная
   Дренажные насосы. Схема принципиальная
   Вентиляция. Схема принципиальная
   Напорный затвор. Схема принципиальная
   Запоры на напорных водоводах. Затворы с управлением по месту. Схема принципиальная
   Аварийно-предупредительная сигнализация. Схема принципиальная
   Схема подключений
   Расположение электрооборудования. Зануление
   Кабельный журнал
   План прокладки кабелей и труб
   Электроосвещение
Опросные листы ЭМ.ЛО
   Опросный лист для заказа КТП 2х400 кВА Ереванского завода
   Опросный лист для заказа КТП 2х630 кВА Хмельницкого завода
Ведомость объемов монтажных и строительных работ
Основной комплект АТХ
   Общие данные
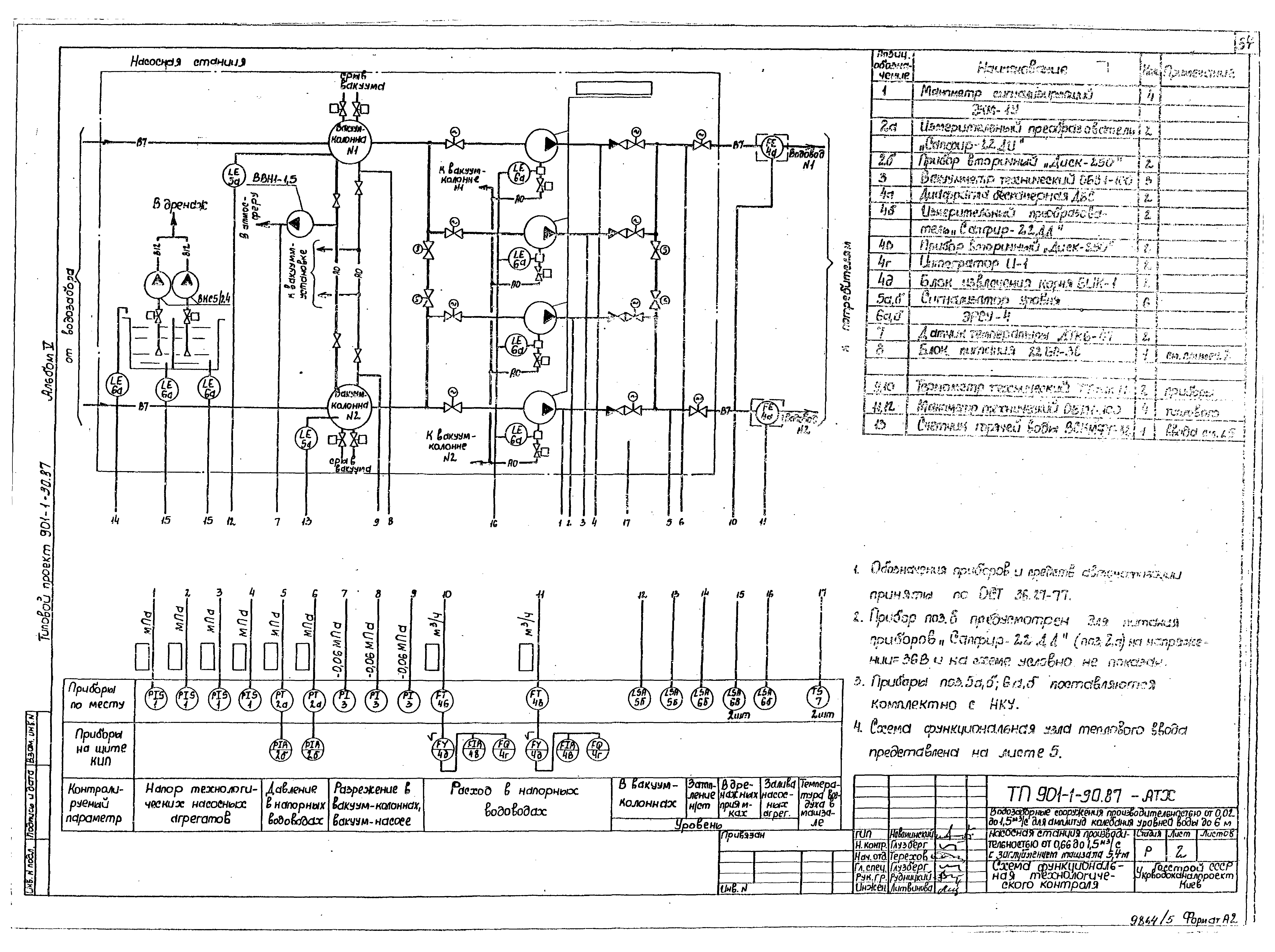
   Схема функциональная технологического контроля
   Схемы принципиальные электропитания щита КИП и технологических измерений
   Схема внешних электрических и трубных проводок
   План расположения средств автоматизации и проводок
   Установка датчиков технологического контроля
Разработан: Укрводоканалпроект
Утверждён:28.08.1987 Госстрой СССР (Государственный комитет Совета Министров СССР по делам строительства) (USSR Gosstroy 57)
Расположен в:Техническая документация Строительство Справочные документы Типовые строительные конструкции, изделия и узлы Общероссийский строительный каталог Промышленные предприятия, здания и сооружения Здания и сооружения санитарно-технические Водоснабжение Насосные станции Насосные станции водопроводные
Типовой проект 901-1-90.87Типовой проект 901-1-90.87Типовой проект 901-1-90.87Типовой проект 901-1-90.87Типовой проект 901-1-90.87Типовой проект 901-1-90.87Типовой проект 901-1-90.87Типовой проект 901-1-90.87Типовой проект 901-1-90.87Типовой проект 901-1-90.87Типовой проект 901-1-90.87Типовой проект 901-1-90.87Типовой проект 901-1-90.87Типовой проект 901-1-90.87Типовой проект 901-1-90.87Типовой проект 901-1-90.87Типовой проект 901-1-90.87Типовой проект 901-1-90.87Типовой проект 901-1-90.87Типовой проект 901-1-90.87Типовой проект 901-1-90.87Типовой проект 901-1-90.87Типовой проект 901-1-90.87Типовой проект 901-1-90.87Типовой проект 901-1-90.87Типовой проект 901-1-90.87Типовой проект 901-1-90.87Типовой проект 901-1-90.87Типовой проект 901-1-90.87Типовой проект 901-1-90.87Типовой проект 901-1-90.87Типовой проект 901-1-90.87Типовой проект 901-1-90.87Типовой проект 901-1-90.87Типовой проект 901-1-90.87Типовой проект 901-1-90.87Типовой проект 901-1-90.87Типовой проект 901-1-90.87Типовой проект 901-1-90.87Типовой проект 901-1-90.87

© 2013 Ёшкин Кот :-) Карта сайта