Скачать Типовой проект 409-15-114.89 Альбом 2. Архитектурные решения. Конструкции железобетонные. Конструкции металлическиеДата актуализации: 10.08.2017 Типовой проект 409-15-114.89
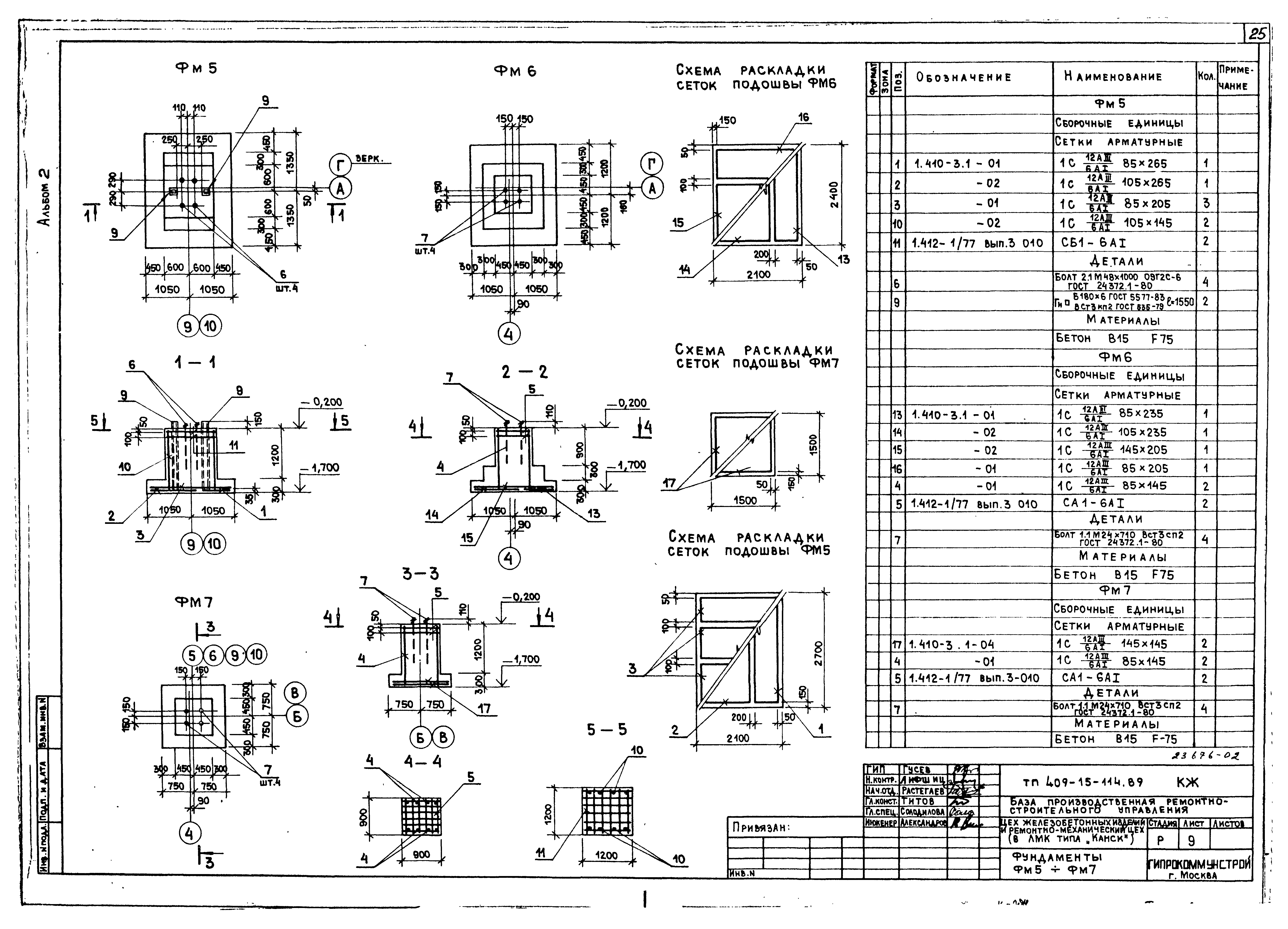
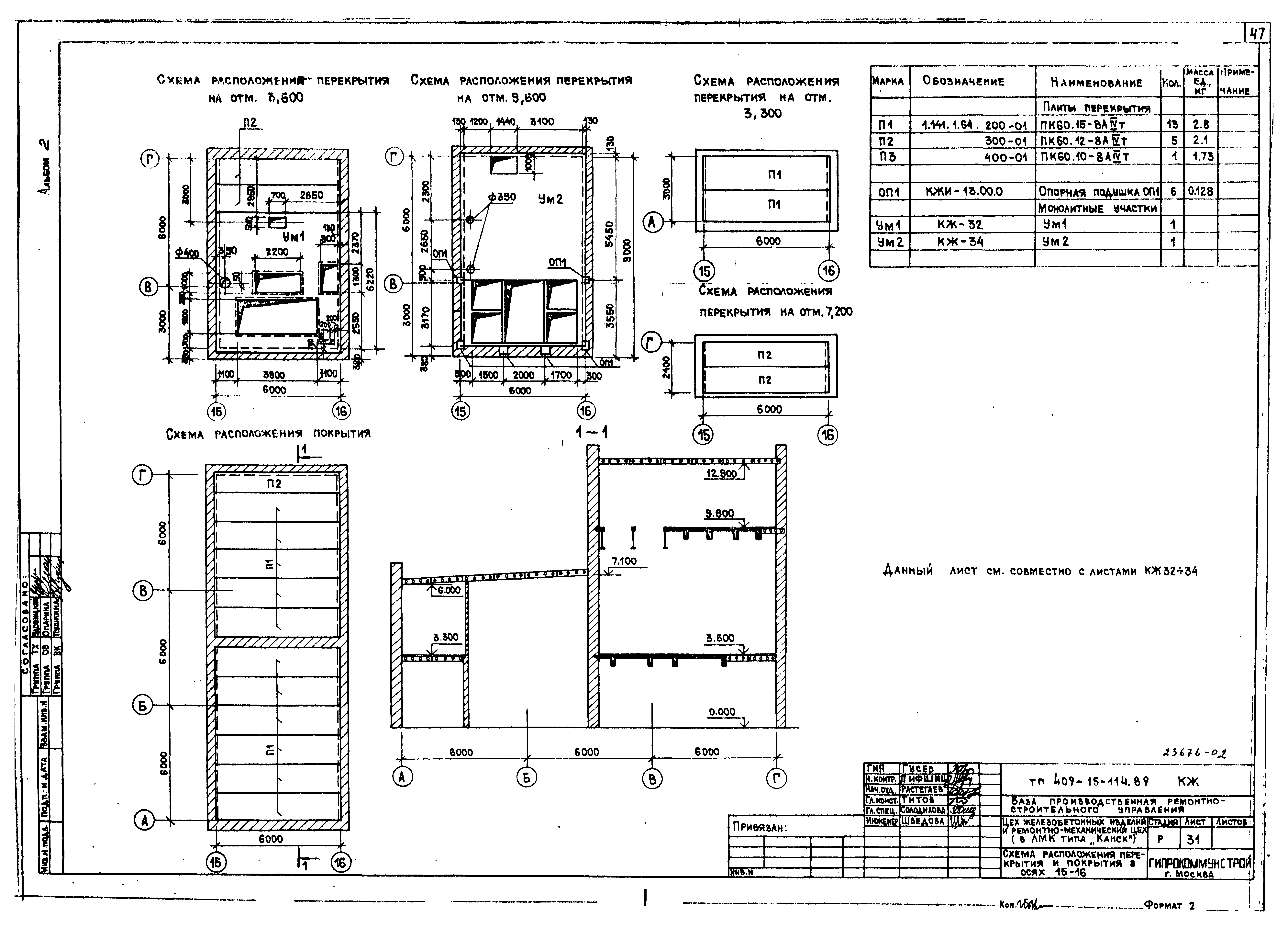
Альбом 2. Архитектурные решения. Конструкции железобетонные. Конструкции металлическиеОбозначение: | Типовой проект 409-15-114.89 | Обозначение англ: | 409-15-114.89 | Статус: | действует | Название рус.: | Альбом 2. Архитектурные решения. Конструкции железобетонные. Конструкции металлические | Дата добавления в базу: | 01.09.2013 | Дата актуализации: | 05.05.2017 | Дата введения: | 19.10.1988 | Оглавление: | Титульный лист Содержание альбома Архитектурные решения Общие данные Планы на отм. 0.000; 3.000. План расстановки и привязки оборудования комнаты приема пищи. Детали I, II. Сечения а-а, б-б Планы на отм. 0.000; 3.300; 3.600; 7.200; 9.600. Фрагмент I Разрезы 1-1; 2-2; 3-3; 4-4 Фасады 1 - 16; 16 - 1; А - Г; Г - А Планы отверстий в стенах и перегородках на отм. 0.000; 3.000. Деталь утепления венткамер тамбура входа Планы отверстий в стенах и перегородках на отм. 0.000. Венткамеры №1 - 4 Детали III, IV, V, VI, VII, VIII, IX Схемы заполнения оконных проемов. Ведомость проемов ворот и дверей Схемы расположения трехслойных стеновых панелей по осям 4 - 14; Г - А; 14 - 4; А - Г. Детали X, XI Спецификации фасонных и крепежных элементов, перегородок поэлементной сборки, металл на венткамеры. Спецификация на металлические тетивы Ведомость перемычек Планы полов на отм. 0.000; 3.000; 3.300; 3.600; 7.200; 9.600. План кровли. Экспликация полов Конструкции железобетонные Общие данные Схема расположения фундаментов в осях 1 - 3. Сечения 1-1 - 8-8. Спецификация Раскладка блоков в осях 1 - 3. Спецификация на фундаменты Фм8 Схема расположения фундаментов в осях 4 - 14. Спецификация Элементы планов №3 - 6 Фундаменты Фм1, Фм2 Фундаменты Фм3, Фм4 Фундаменты Фм5 - Фм7 Таблица нагрузок на фундаменты Фм1 - Фм7. Ведомость расхода стали на фундаменты Фм1 - Фм7 Схема расположения фундаментов в осях 14 - 16. Сечения 1-1 - 7-7 Раскладка блоков в осях 15 - 16. Спецификация План подземного хозяйства в осях 1 - 10 План подземного хозяйства в осях 10 - 16 Элементы плана №4. Приямок ПР-2. Фундамент Фо15 Подземное хозяйство. Известковая яма. Приямок ПР1 Подземное хозяйство. Армирования приямка ПР1 Фундаменты Фо1 - Фо4 Фундаменты Фо5 - Фо8 Фундаменты Фо9 - Фо12 Фундаменты Фо13; Фо14; Фо16; Фо22 Фундаменты Фо17 - Фо20 Фундамент Фо21. Разрезы 1-1, 2-2 Спецификация к плану подземного хозяйства Схемы расположения панелей внутренних стен. Спецификация Схема расположения плит перекрытия 1-го этажа. Схема расположения плит покрытия. Спецификация Схемы расположения стеновых панелей. Спецификация Схема расположения элементов лестниц в осях "В" - "Г". Спецификация Схема расположения плит перекрытия на отм. 3.300 в осях 4 - 10. Спецификация Схемы расположения стеновых панелей в осях 4 - 10. Спецификация Схема расположения перекрытия и покрытия в осях 15 - 16 Монолитный участок Ум1 Схема расположения нижних и верхних сеток Пм1 Монолитный участок Ум2 Схема расположения нижних и верхних сеток монолитной плиты Пм2 Конструкции металлические Общие данные Техническая спецификация стали Схема расположения колонн и ригелей каркаса. Разрез 1-1 Схема расположения прогонов покрытия. Разрез 2-2. Рамки Р1; Р1-1; Р1-2; Р2; Р2-1 - 5 Схема расположения стального профилированного настила покрытия Схема расположения подвесных путей кранов и монорельсов Схема расположения фахверков Схема расположения лестниц в осях 15 - 16 Схема расположения балок и стоек в осях 4 - 10. Ведомость элементов Конструкция бункеров для заполнителей Схема расположения внутренних перегородок. Разрезы 1-1 - 9-9 Схема расположения лестниц. Узлы. Спецификация | Разработан: | Гипрокоммунстрой
| Утверждён: | 19.10.1988 Минжилкомхоз РСФСР (Russian Federation Minzhilkomkhoz 271)
| Издан: | ЦИТП Госстроя СССР (CITP, Gosstroy (USSR) 1990 г. )
| Расположен в: |
|
                                                                 
|