Скачать Типовые материалы для проектирования 407-03-556.90 Альбом 4. Строительные конструкции. Стальные изделияДата актуализации: 10.08.2017 Типовые материалы для проектирования 407-03-556.90
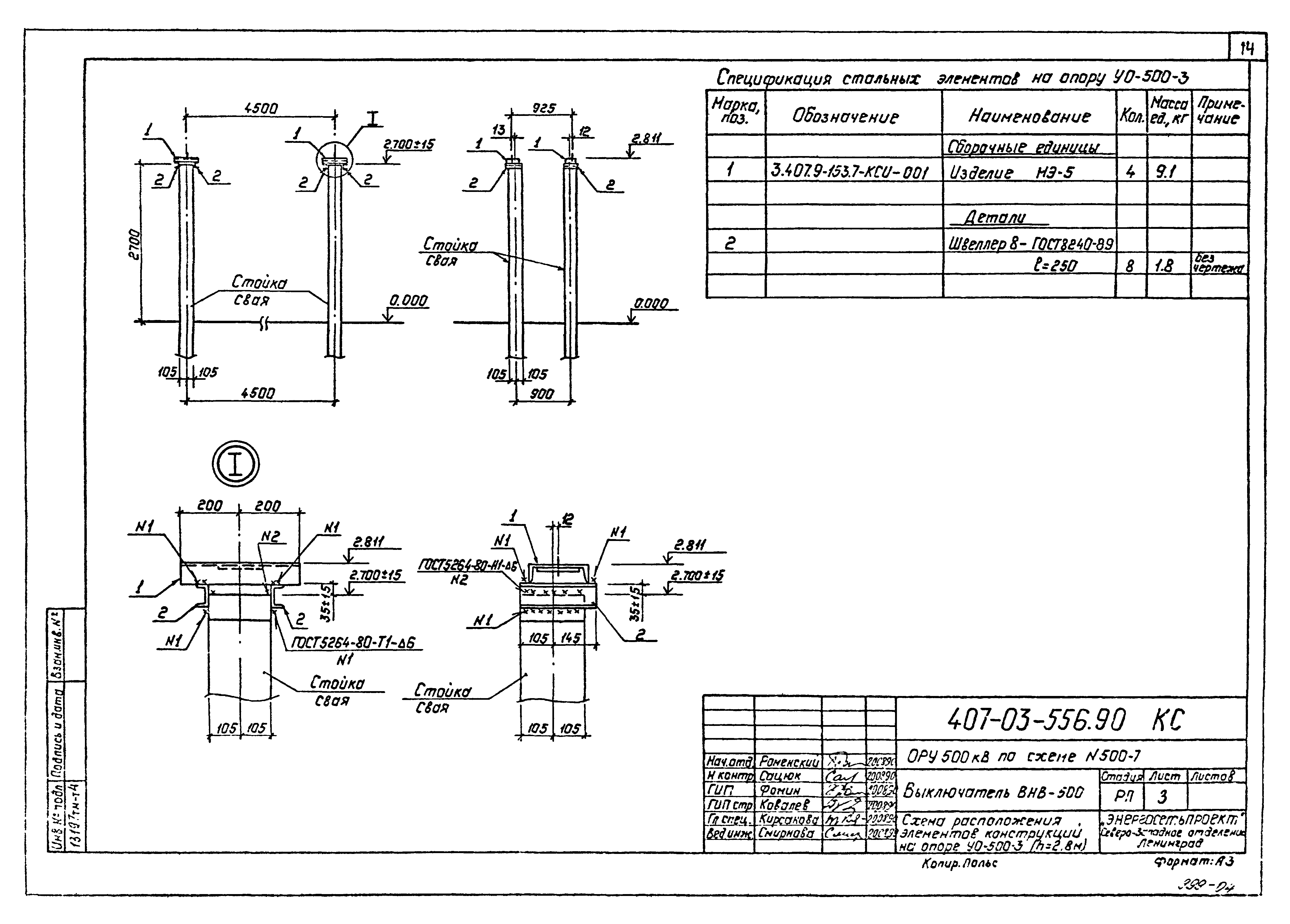
Альбом 4. Строительные конструкции. Стальные изделияОбозначение: | Типовые материалы для проектирования 407-03-556.90 | Обозначение англ: | 407-03-556.90 | Статус: | cправочные материалы, мп, тпр | Название рус.: | Альбом 4. Строительные конструкции. Стальные изделия | Дата добавления в базу: | 01.09.2013 | Дата актуализации: | 05.05.2017 | Дата введения: | 13.08.1990 | Оглавление: | 407-03-556.90 КС-ПЗ Пояснительная записка 407-03-556.90 КС Строительная часть Выключатель ВВ-500Б-У1. Схема расположения элементов конструкций на опоре УО-500-1 (h = 2,3 м) Выключатель ВВ-500Б-У1. Схема расположения элементов конструкций на опоре УО-500-1 (h = 1,3 м) Выключатель ВНВ-500. Схема расположения элементов конструкций на опоре УО-500-3 (h = 2,8 м) Выключатель ВНВ-500. Схема расположения элементов конструкций на опоре УО-500-4 (h = 1,5 м) Выключатель РНДЗ-500. Схема расположения элементов конструкций на опоре УО-500-5 Однополюсный разъединитель РНДЗ-16-35/1000. Схема расположения элементов конструкций на опоре УО-500-6 Трансформатор тока ТФРМ-500БУ1. Схема расположения элементов конструкций на опоре УО-500-7 (h = 4,3 м) Трансформатор тока ТФРМ-500БУ1. Схема расположения элементов конструкций на опоре УО-500-8 (h = 3,0 м) Трансформатор тока ТФЗМ-500БУ1. Схема расположения элементов конструкций на опоре УО-500-9 (h = 4,4 м) Трансформатор тока ТФЗМ-500БУ1. Схема расположения элементов конструкций на опоре УО-500-10 (h = 3,0 м) Делитель напряжения. Схема расположения элементов конструкций на опоре УО-500-11 Трансформаторное устройство НДЕ-500. Схема расположения элементов конструкций на опоре УО-500-12 Трансформаторное устройство НДЕ-500 с шкафом зажимов ШЗН1А-73. Схема расположения элементов конструкций на опоре УО-500-13 Трансформатор напряжения НКФ-500-78У1. Схема расположения элементов конструкций на опоре УО-500-14 Трансформатор напряжения НКФ-500-78У1 с шкафом зажимов ШЗН-1А. Схема расположения элементов конструкций на опоре УО-500-15 Разрядник РВНГ-500У1. Схема расположения элементов конструкций на опоре УО-500-16 Разрядник РВНК-500П. Схема расположения элементов конструкций на опоре УО-500-17 Высокочастотный заградитель ВЗ-630-0,5У1. Схема расположения элементов конструкций на опоре УО-500-18 Высокочастотный заградитель ВЗ-1250-0,5У1. Схема расположения элементов конструкций на опоре УО-500-19 Шинная опора ШО-500м-У1. Схема расположения элементов конструкций на опоре УО-500-20 Высокочастотный заградитель ВЗ-2000 на шинной опоре ШО-500м-У1. Схема расположения элементов конструкций на опоре УО-500-21 Конденсатор связи 3хсм-166V3. Схема расположения элементов конструкций на опоре УО-500-22 Конденсатор связи 2хсмм-20V3-0,035 с фильтром присоединения ФПМ. Схема расположения элементов конструкций на опоре УО-500-23 Шкаф ШР-1. Схема расположения элементов конструкций на опоре УО-500-24 Ограничитель перенапряжений ОПН-500. Схема расположения элементов конструкций на опоре УО-500-25 Типы закреплений опор под оборудование 407-03-556.90 КС.И - Стальные изделия. Чертежи, прилагаемые к комплекту КС Изделия МЭ-263, МЭ-264 Изделие МЭ-235, МЭ-239, МЭ265…МЭ-267, МЭ-280, МЭ-281 Изделие МЭ-268 Изделие МЭ-269 Изделие МЭ-270 Изделие МЭ-282 Изделие МЭ-283 | Разработан: | Северо-западное отделение института Энергосетьпроект
| Утверждён: | 13.08.1990 Минэнерго СССР (USSR Minenergo 46)
| Расположен в: |
|
                                           
|