Скачать Типовые материалы для проектирования 407-03-556.90 Альбом 3. Установочные чертежиДата актуализации: 10.08.2017 Типовые материалы для проектирования 407-03-556.90
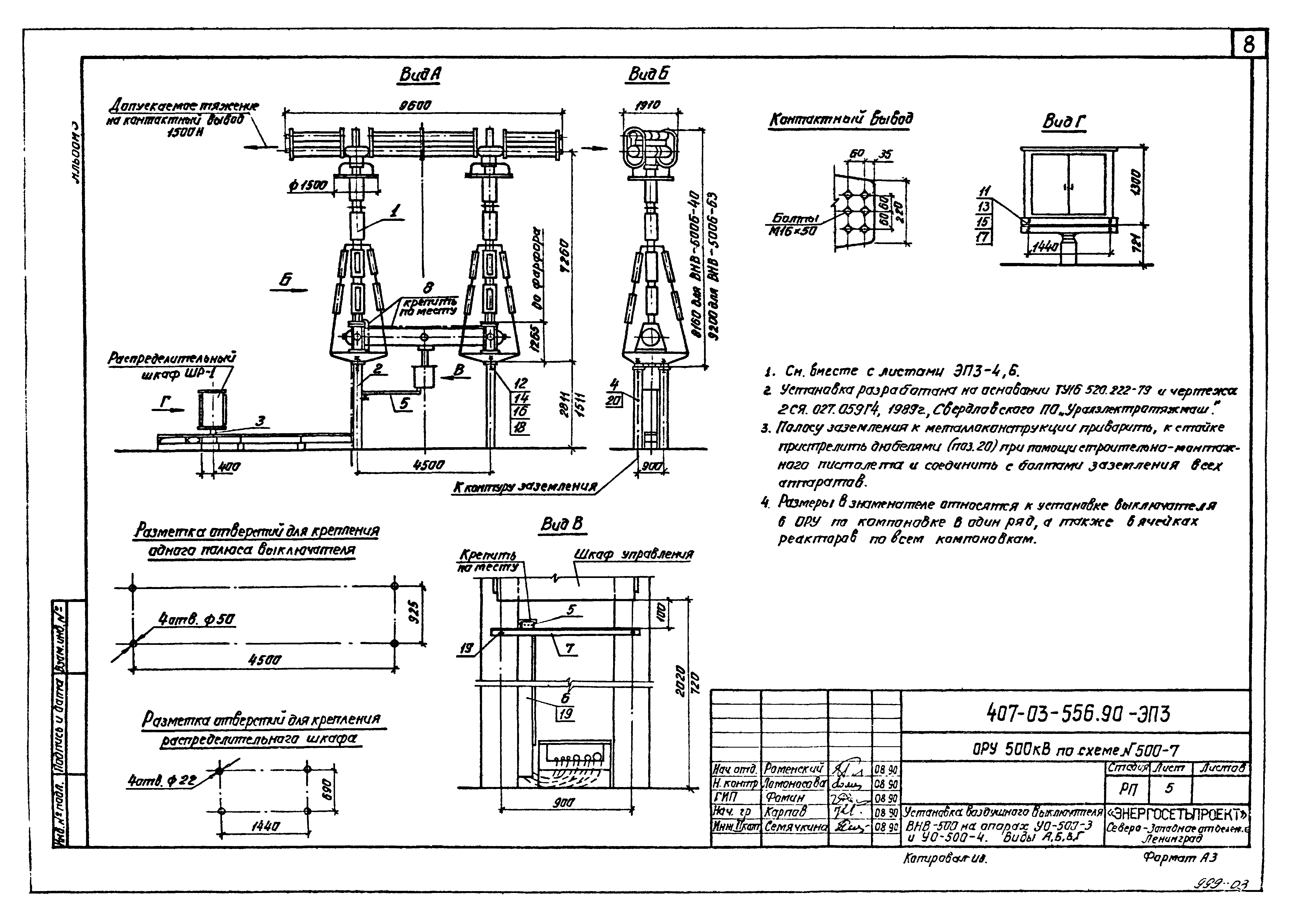
Альбом 3. Установочные чертежиОбозначение: | Типовые материалы для проектирования 407-03-556.90 | Обозначение англ: | 407-03-556.90 | Статус: | cправочные материалы, мп, тпр | Название рус.: | Альбом 3. Установочные чертежи | Дата добавления в базу: | 01.09.2013 | Дата актуализации: | 05.05.2017 | Дата введения: | 13.08.1990 | Оглавление: | 407-03-556.90-ЭП3 Установочные чертежи Установка воздушного выключателя ВВ-5006-31,5/2000У1 на опорах УО-500-1 и УО-500-2. Планы Установка воздушного выключателя ВВ-5006-31,5/2000У1 на опорах УО-500-1 и УО-500-2. Виды А, Б, В Спецификация оборудования и материалов к листам ЭП3-1,2 Установка воздушного выключателя ВНВ-500 на опорах УО-500-3 и УО-500-4. Планы Установка воздушного выключателя ВНВ-500 на опорах УО-500-3 и УО-500-4. Виды А, Б, В, Г Спецификация оборудования и материалов к листам ЭП3-4,5 Установка однополюсных разъединителей РНД3-5006/3150У1 с приводами ПД-5У1 и ПРН-1 на опоре УО-500-5 Установка трансформаторов тока ТФРм-5006-У1 на опорах УО-500-7 и УО-500-8 Установка трансформаторов тока ТФЗм-5006-IУ1 на опорах УО-500-9 и УО-500-10 Установка шести трансформаторов тока ТФЗм-5006-IУ1 на опорах УО-500-9 и УО-500-10 Установка трансформаторов напряжения НКФ-500-78У1 на опорах УО-500-14 и УО-500-15 Установка разрядника РВМГ-500У1 на опоре УО-500-16 Установка разрядника РВМК-500П на опоре УО-500-17 Установка ОПН-500 на опоре УО-500-25 Спецификация оборудования и материалов к листу ЭП3-14 Установка конденсатора связи СМВ-166/V3+см-166/V3+смп-166/V3 с ФПМ на опоре УО-500-22 Спецификация оборудования и материалов к листу ЭП3-16 Установка делителя НДЕ (3хсмиз-166/V3-14У1+омиз-15-107У1) с ФМП на опоре УО-500-11 Спецификация оборудования и материалов к листу ЭП3-18 Установка электромагнитного устройства на опорах УО-500-12 и УО-500-13 Спецификация оборудования и материалов к листу ЭП3-20 Установка шинной опоры ШО-500м-У1 на опоре УО-500-20 Установка высокочастотного заградителя В3-2000-0,5У1 на опоре УО-500-21 Установка высокочастотного заградителя В3-2000-1,0У1 на опоре УО-500-21 Установка высокочастотного заградителя В3-630-0,5У1 на опоре УО-500-18 Установка высокочастотного заградителя В3-1250-0,5У1 на опоре УО-500-19 Установка разъединителя РНД3-1Б-35/1000 на опоре УО-500-6 Установка конденсаторов связи 2хСММ-20/V3-0,035 с фильтром присоединения ФПМ на опоре УО-500-23 Гирлянда изоляторов 2х31(33)хПС70-Д натяжная одноцепная для трех проводов АС-500/27 Гирлянда изоляторов 2х31(33)хПС70-Д натяжная двухцепная для трех проводов АС-500/27 Гирлянда изоляторов 2х31(33)хПС70-Д натяжная одноцепная для трех проводов АС-500/64 Гирлянда изоляторов 2х31(33)хПС70-Д натяжная двухцепная для трех проводов АС-500/64 Гирлянда изоляторов 2х31(33)хПС70-Д натяжная одноцепная для трех проводов ПА-500 Гирлянда изоляторов 2х31(33)хПС70-Д натяжная двухцепная для трех проводов ПА-500 Гирлянда изоляторов 31(33)хПС70-Д натяжная одноцепная для двух проводов ПА-640 Гирлянда изоляторов 31(33)хПС70-Д натяжная двухцепная для двух проводов ПА-640 Гирлянда изоляторов 31(33)хПС70-Д поддерживающая одноцепная для трех проводов АС-500 Гирлянда изоляторов 31(33)хПС70-Д поддерживающая одноцепная для трех проводов ПА-500 Гирлянда изоляторов 31(33)хПС70-Д поддерживающая одноцепная для трех проводов ПА-640 | Разработан: | Северо-западное отделение института Энергосетьпроект
| Утверждён: | 13.08.1990 Минэнерго СССР (USSR Minenergo 46)
| Расположен в: |
|
                                         
|