Скачать Типовые материалы для проектирования 407-03-556.90 Альбом 2. Планы ОРУ, ячейки и узлыДата актуализации: 10.08.2017 Типовые материалы для проектирования 407-03-556.90
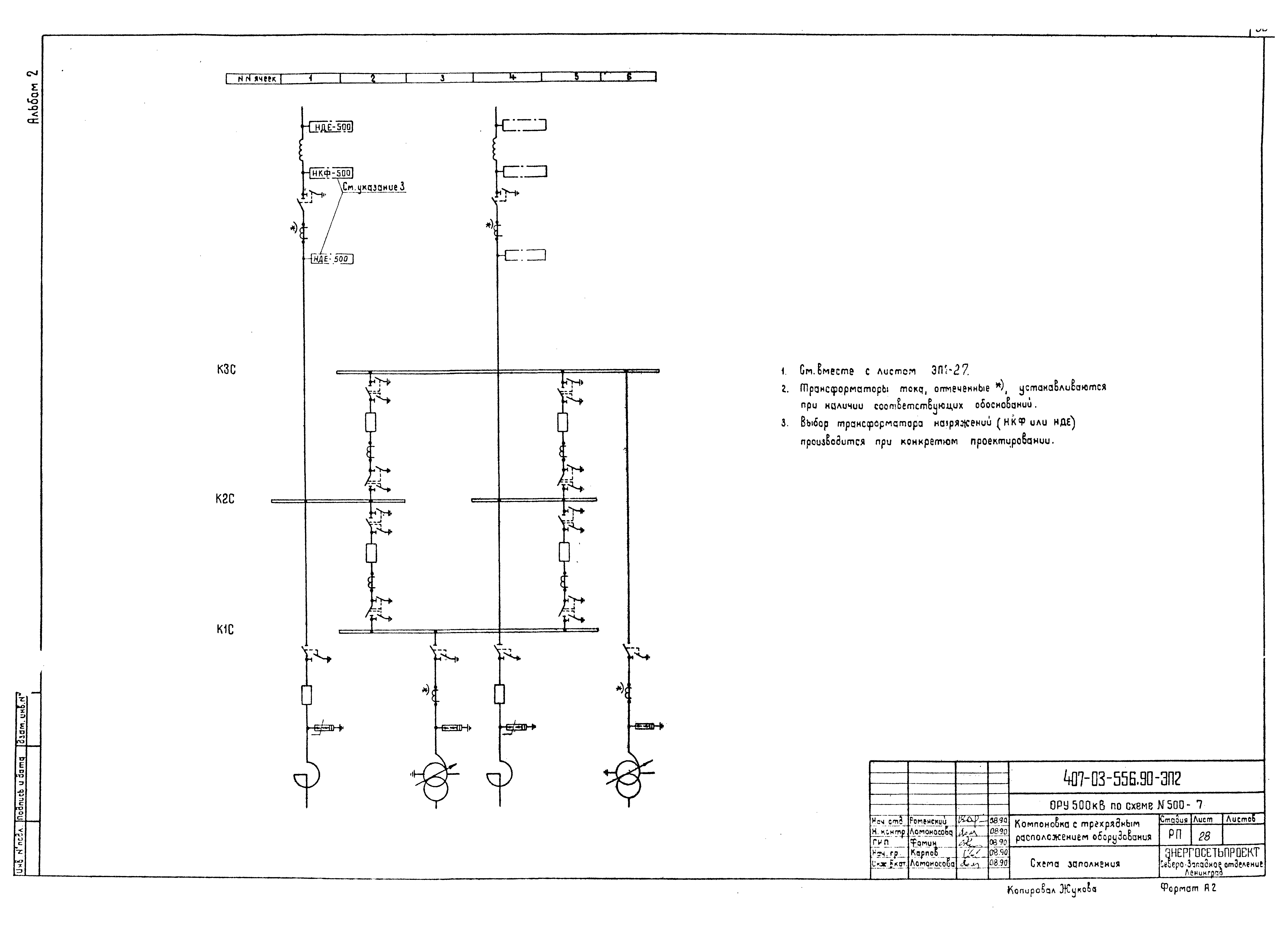
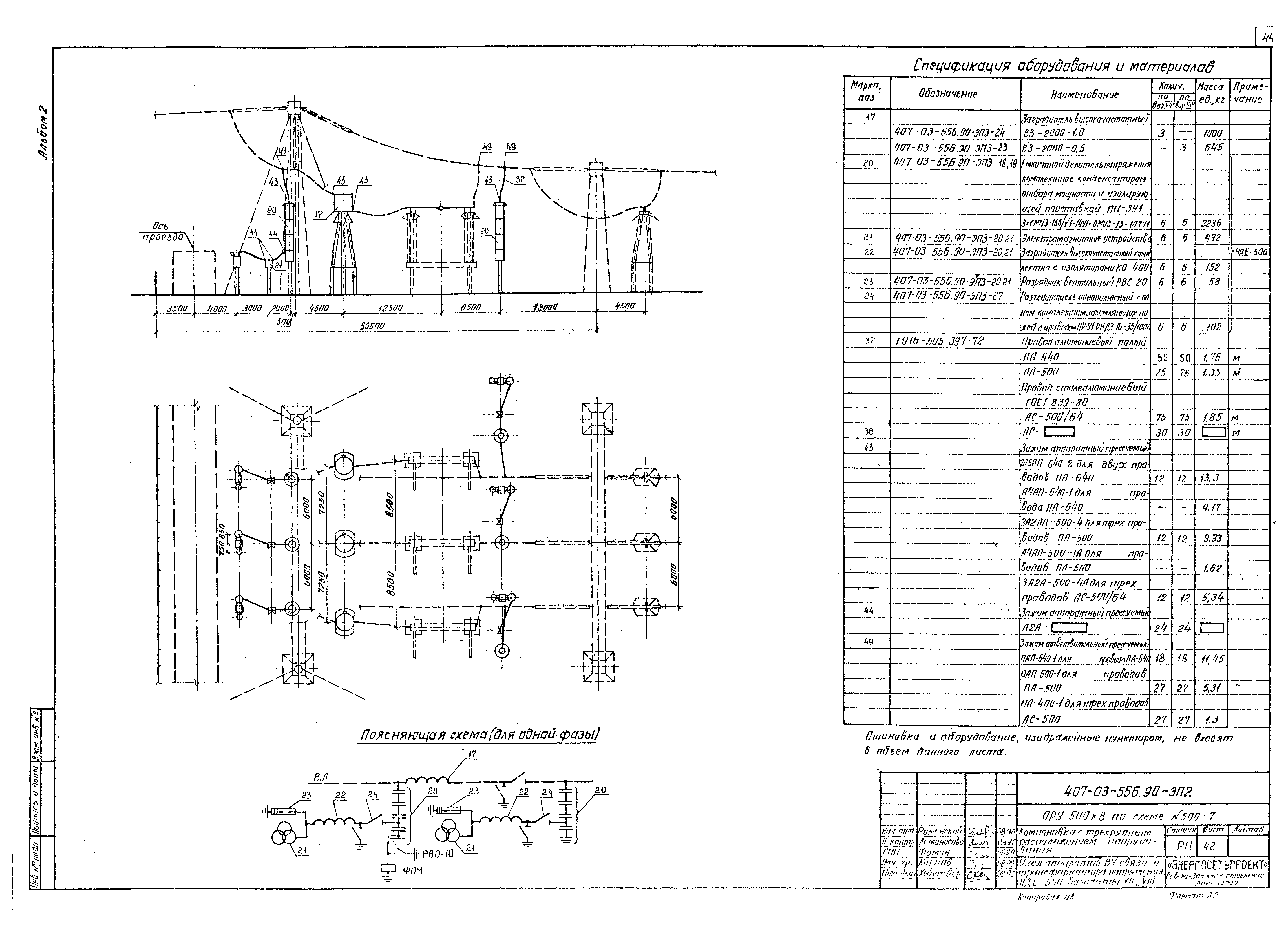
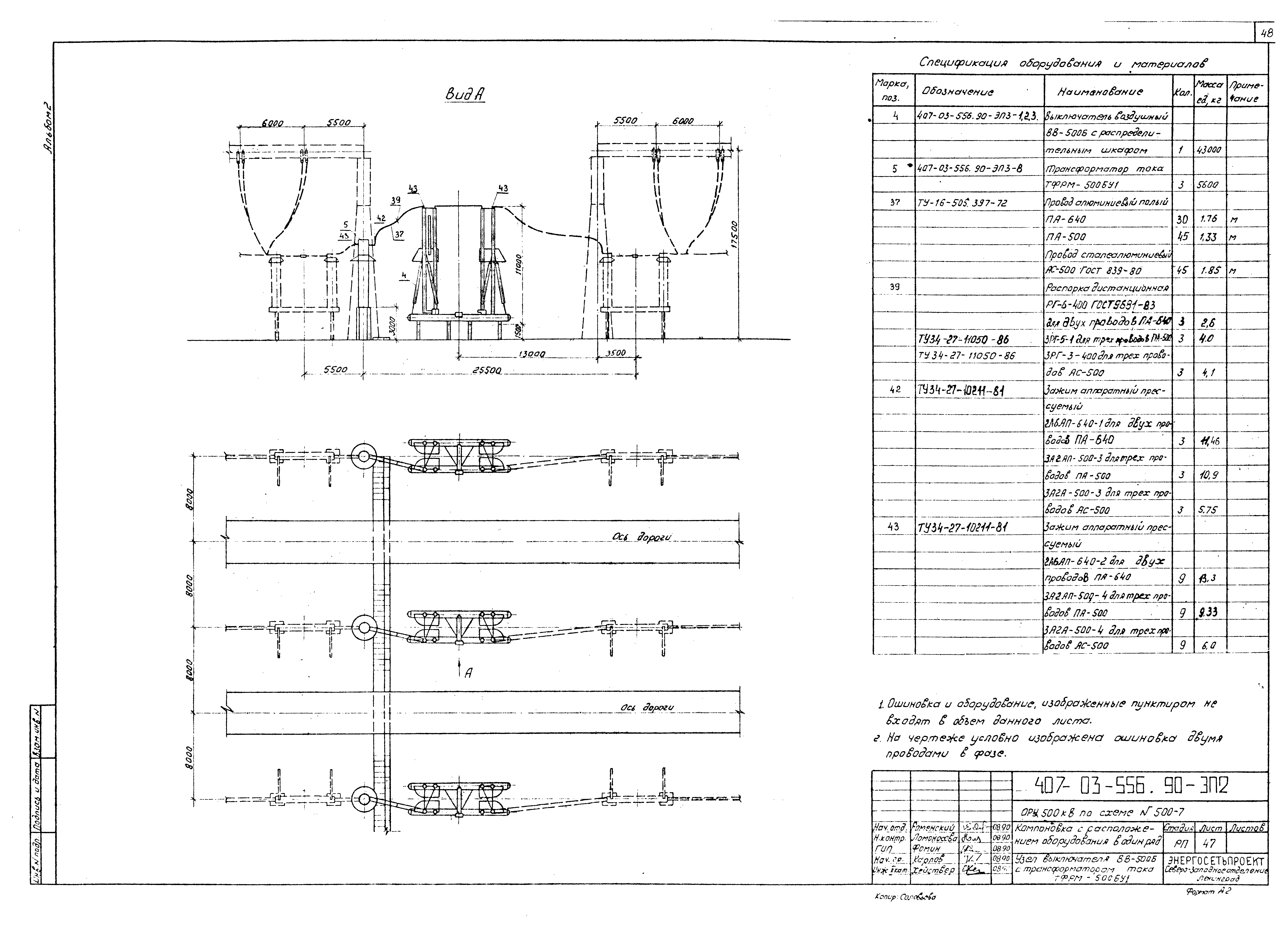
Альбом 2. Планы ОРУ, ячейки и узлыОбозначение: | Типовые материалы для проектирования 407-03-556.90 | Обозначение англ: | 407-03-556.90 | Статус: | cправочные материалы, мп, тпр | Название рус.: | Альбом 2. Планы ОРУ, ячейки и узлы | Дата добавления в базу: | 01.10.2014 | Дата актуализации: | 05.05.2017 | Дата введения: | 13.08.1990 | Оглавление: | Компоновка с расположением оборудования в один ряд План. Вариант 1 Схема заполнения. Вариант 1 Спецификация оборудования и материалов к листу ЭП2-1 Ячейки: а. Трансформатор Т1; б. Перемычка от шин К1С Ячейки: а. Трансформатор Т2; б. Перемычка от шин К2С План. Вариант 2 Схема заполнения. Вариант 2 Спецификация оборудования и материалов к листу ЭП2-7 Ячейки: а. Трансформатор Т1; б. Трансформатор Т2 Ячейки: а. ВЛ с реактором; б. Перемычка от шин К2С Сборные шины К2С. Вариант 1 Сборные шины К2С. Вариант 2. Сборные шины К1С Компоновка с расположением оборудования в два ряда План и схема заполнения Спецификация оборудования и материалов к листу ЭП2-15 Ячейки: а. Трансформатор Т1; б. ВЛ с реактором (ЯЧ№2) Ячейки: а. ВЛ с реактором (ЯЧ№3); б. Трансформатор Т2 Компоновка с расположением оборудования в три ряда План и схема заполнения Спецификация оборудования и материалов к листу ЭП2-20 Ячейки: а. Трансформатор Т1; б. Трансформатор Т2 Ячейки: а. ВЛ с реактором; б. Перемычка от шин К1С Ячейки: а. ВЛ; б. Реактор Сборные шины К2С. Сборные шины К1С Компоновка с трехрядным расположением оборудования План Схема заполнения Спецификация оборудования и материалов к листу ЭП2-27 Ячейка: Трансформатор Т1 Ячейка: Трансформатор Т2 Ячейка: ВЛ с реактором Ячейка: Выключатели Сборные шины К3С. Сборные шины К2С. Сборные шины К1С Компоновки с продольным расположением оборудования Узел аппаратов ВЧ связи и трансформатора напряжения НДЕ-500. Вариант I, II Узел аппаратов ВЧ связи и трансформатора напряжения НДЕ-500. Вариант III, IV Узел аппаратов ВЧ связи и трансформатора напряжения НКФ-500. Вариант I, II Компоновка с трехрядным расположением оборудования Узел аппаратов ВЧ связи и трансформатора напряжения НДЕ-500. Варианты I, II Узел аппаратов ВЧ связи и трансформатора напряжения НДЕ-500. Варианты III, IV Узел аппаратов ВЧ связи и трансформатора напряжения НДЕ-500. Варианты V, VI Узел аппаратов ВЧ связи и трансформатора напряжения НДЕ-500. Варианты VII, VIII Узел аппаратов ВЧ связи и трансформатора напряжения НКФ-500. Варианты I, II Узел аппаратов ВЧ связи и трансформатора напряжения НКФ-500. Варианты III, IV Компоновка с продольным расположением оборудования в один ряд Перемычка с выключателем Компоновка с продольным расположением оборудования в два и три ряда и трехрядная Перемычка с выключателем Компоновка с продольным расположением оборудования в один ряд Узел выключателя ВВ-500Б с трансформатором тока ТФРМ-500БУ1 Узел выключателя ВВ-500Б с трансформатором тока ТФЗМ-500Б-IУ1 Узел выключателя ВНВ-500Б с трансформатором тока ТФРМ-500БУ1 Узел выключателя ВНВ-500Б с трансформатором тока ТФЗМ-500Б-IУ1 Компоновка с продольным расположением оборудования в два и три ряда и трехрядная Узел выключателя ВВ-500Б с трансформатором тока ТФРМ-500БУ1 Узел выключателя ВВ-500Б с трансформатором тока ТФЗМ-500Б-IУ1 Узел выключателя ВНВ-500Б с трансформатором тока ТФРМ-500БУ1 Узел выключателя ВНВ-500Б с трансформатором тока ТФЗМ-500Б-IУ1 Узел установки разрядника РВМК-500П У1 на ВЛ Узел выключателя ВВ-500Б для присоединения реактора Узел выключателя ВНВ-500 для присоединения реактора Спецификация оборудования | Разработан: | Северо-западное отделение института Энергосетьпроект
| Утверждён: | 13.08.1990 Минэнерго СССР (USSR Minenergo 46)
| Расположен в: |
|
                                                             
|