Информационная система
«Ёшкин Кот»

Скачать базу одним архивом
Скачать обновления
История создания базы
Карта сайта

Скачать Типовой проект 407-3-644.94 Альбом 4. Строительные изделия

Дата актуализации: 10.08.2017

Типовой проект 407-3-644.94

Альбом 4. Строительные изделия

Обозначение: Типовой проект 407-3-644.94
Обозначение англ: 407-3-644.94
Статус:не определен законодательством
Название рус.:Альбом 4. Строительные изделия
Дата добавления в базу:01.09.2013
Дата актуализации:05.05.2017
Дата введения:22.08.1994
Оглавление:407-3-644.94-АС.И Содержание альбома
407-3-644.94-АС.И-ТТ Технические требования
407-3-644.94-АС.И-1 Металлическая дверь МД-1. Общий вид
407-3-644.94-АС.И-2 Металлическая дверь МД-1. Комплект "П", "Р"
407-3-644.94-АС.И-3 Металлическая дверь МД-1. Комплект "К"
407-3-644.94-АС.И-4 Металлическая дверь МД-1. Комплект "И"
407-3-644.94-АС.И-5 Металлические двери МД-1, МД-2. Комплекты "Г", "Б"
407-3-644.94-АС.И-6 Металлические двери МД-1, МД-2. Комплекты "Ж", "Л"
407-3-644.94-АС.И-7 Металлическая дверь МД-2. Общий вид
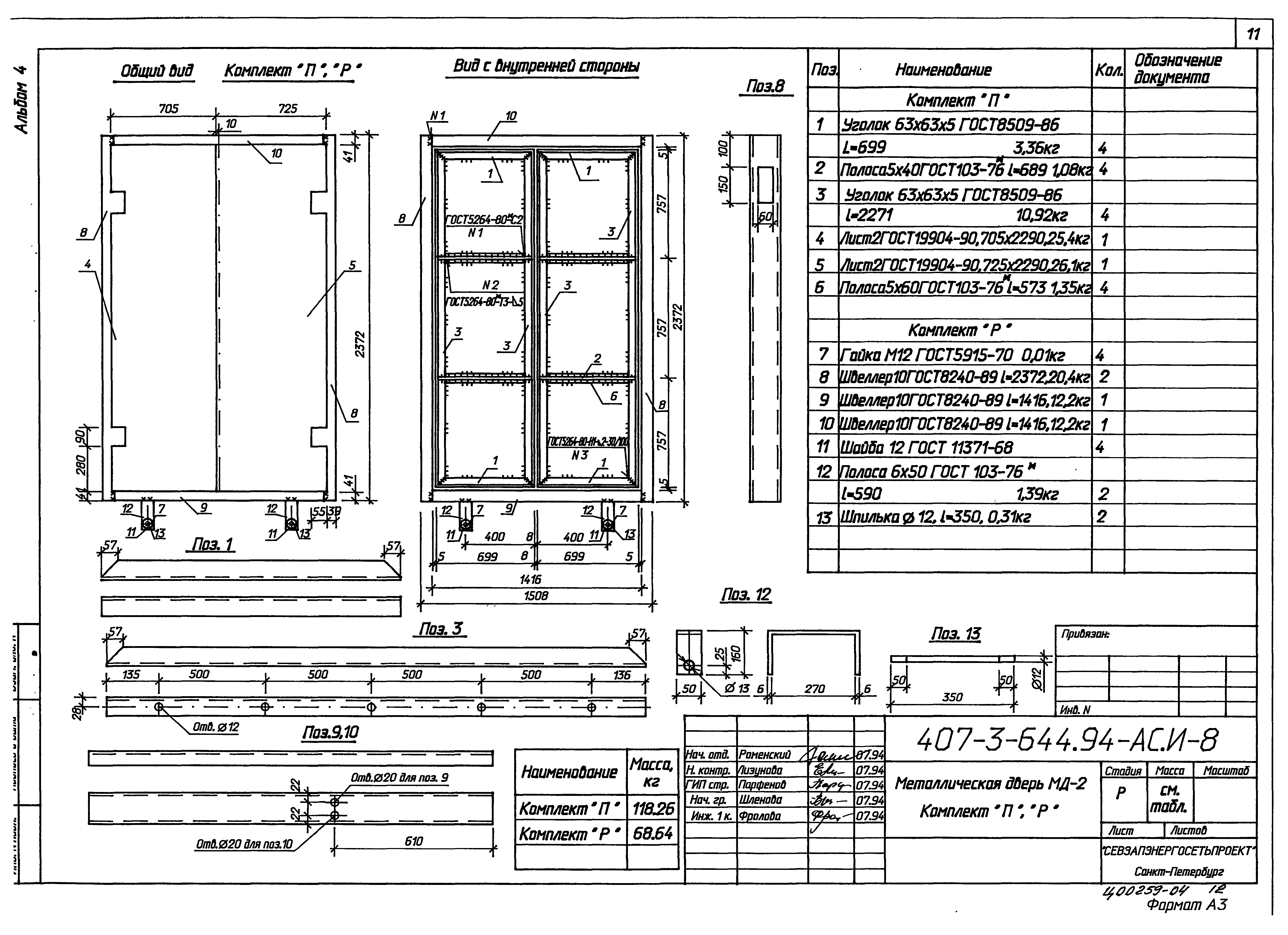
407-3-644.94-АС.И-8 Металлическая дверь МД-2. Комплект "П", "Р"
407-3-644.94-АС.И-9 Металлическая дверь МД-2. Обшивка двери
407-3-644.94-АС.И-10 Изделие закладное Т-1
407-3-644.94-АС.И-11 Изделие закладное Т-2
407-3-644.94-АС.И-12 Марка М-4
407-3-644.94-АС.И-13 Изделие закладное Т-5
407-3-644.94-АС.И-14 Марка Т-10
407-3-644.94-АС.И-15 Марка МК-4
407-3-644.94-АС.И-16 Ограждение Т-13
407-3-644.94-АС.И-17 Кронштейны Т-14, Т-15
407-3-644.94-АС.И-18 Марка Т-18
407-3-644.94-АС.И-19 Марка Т-20
407-3-644.94-АС.И-20 Марка МК-1
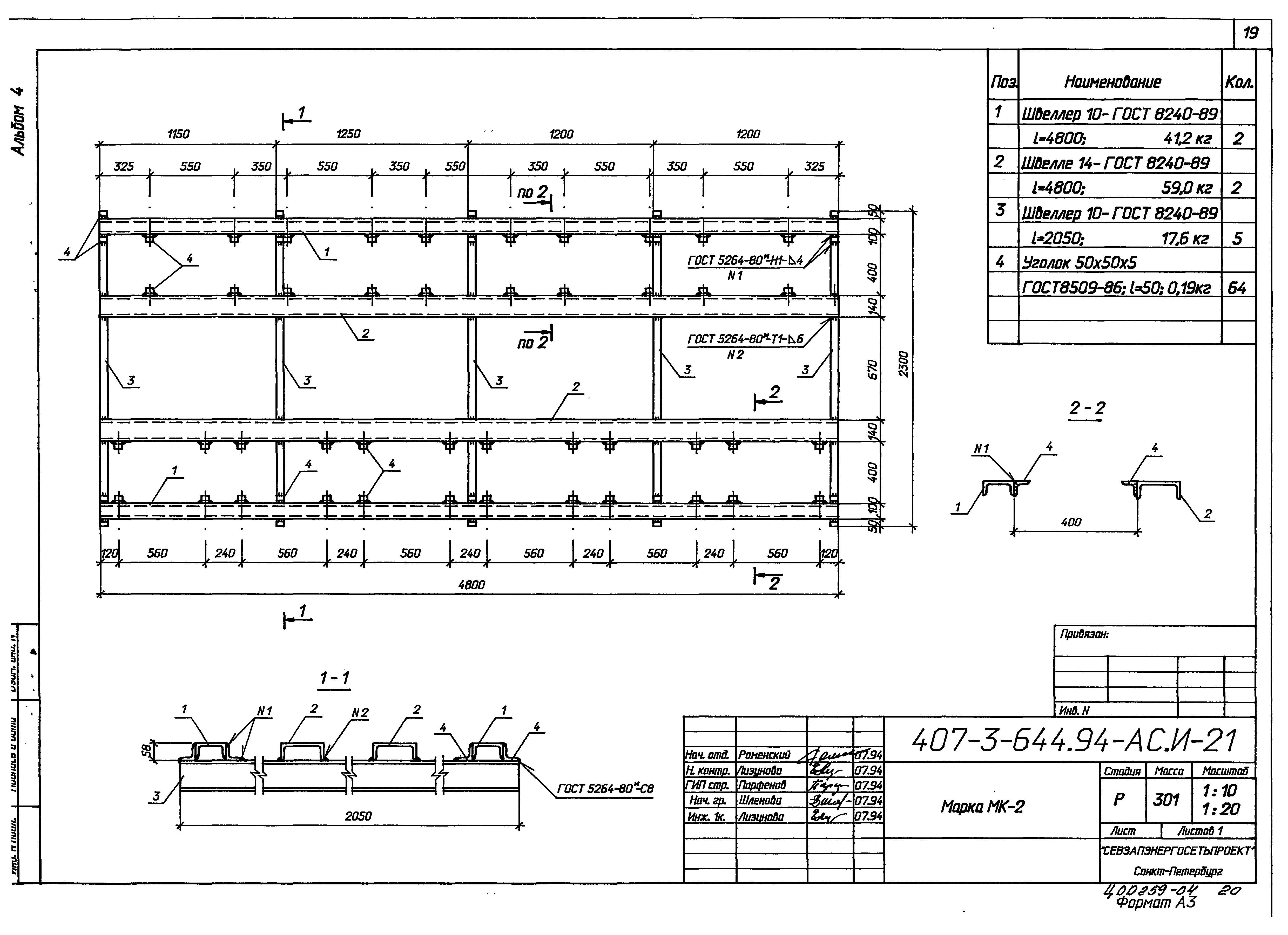
407-3-644.94-АС.И-21 Марка МК-2
407-3-644.94-АС.И-22 Марка МК-3
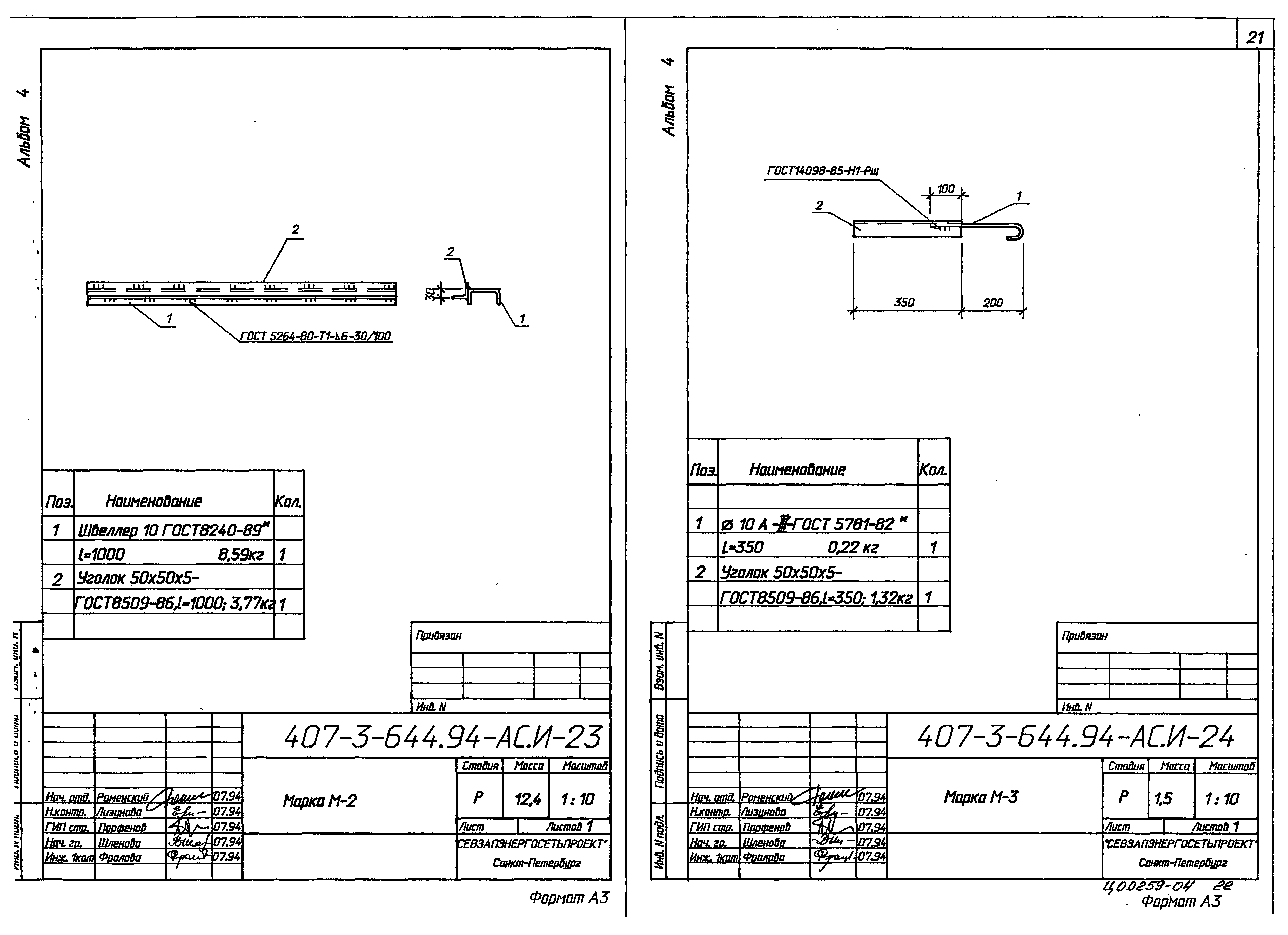
407-3-644.94-АС.И-23 Марка М-2
407-3-644.94-АС.И-24 Марка М-3
407-3-644.94-АС.И-25 Марка Т-19
407-3-644.94-АС.И-26 Изделие опорное МО (МО-1, МО-2)
407-3-644.94-АС.И-27 Решетка ОР-1
407-3-644.94-АС.И-28 Изделие закладное ММ-1
Разработан: Севзапэнергосетьпроект
Утверждён:22.08.1994 Департамент электроэнергетики Минтопэнерго России (5)
Издан: ГУП ЦПП (CPP GUP 1998 г. )
Расположен в:Техническая документация Строительство Справочные документы Типовые строительные конструкции, изделия и узлы Общероссийский строительный каталог Промышленные предприятия, здания и сооружения Предприятия, здания и сооружения промышленности и электроэнергетики Электроэнергетика Устройства и подстанции распределительные
Типовой проект 407-3-644.94Типовой проект 407-3-644.94Типовой проект 407-3-644.94Типовой проект 407-3-644.94Типовой проект 407-3-644.94Типовой проект 407-3-644.94Типовой проект 407-3-644.94Типовой проект 407-3-644.94Типовой проект 407-3-644.94Типовой проект 407-3-644.94Типовой проект 407-3-644.94Типовой проект 407-3-644.94Типовой проект 407-3-644.94Типовой проект 407-3-644.94Типовой проект 407-3-644.94Типовой проект 407-3-644.94Типовой проект 407-3-644.94Типовой проект 407-3-644.94Типовой проект 407-3-644.94Типовой проект 407-3-644.94Типовой проект 407-3-644.94Типовой проект 407-3-644.94Типовой проект 407-3-644.94Типовой проект 407-3-644.94Типовой проект 407-3-644.94

© 2013 Ёшкин Кот :-) Карта сайта