| ||||||||||||||||||||||||||||||
Скачать Серия ИИ-04-14 Выпуск 1. Железобетонные Т и Г-образные колонны. Рабочие чертежиДата актуализации: 10.08.2017
|
| Обозначение: | Серия ИИ-04-14 |
| Обозначение англ: | Series ИИ-04-14 |
| Статус: | не действует |
| Название рус.: | Выпуск 1. Железобетонные Т и Г-образные колонны. Рабочие чертежи |
| Дата добавления в базу: | 01.09.2013 |
| Дата актуализации: | 05.05.2017 |
| Дата введения: | 26.05.1970 |
| Дата окончания срока действия: | 01.04.1982 |
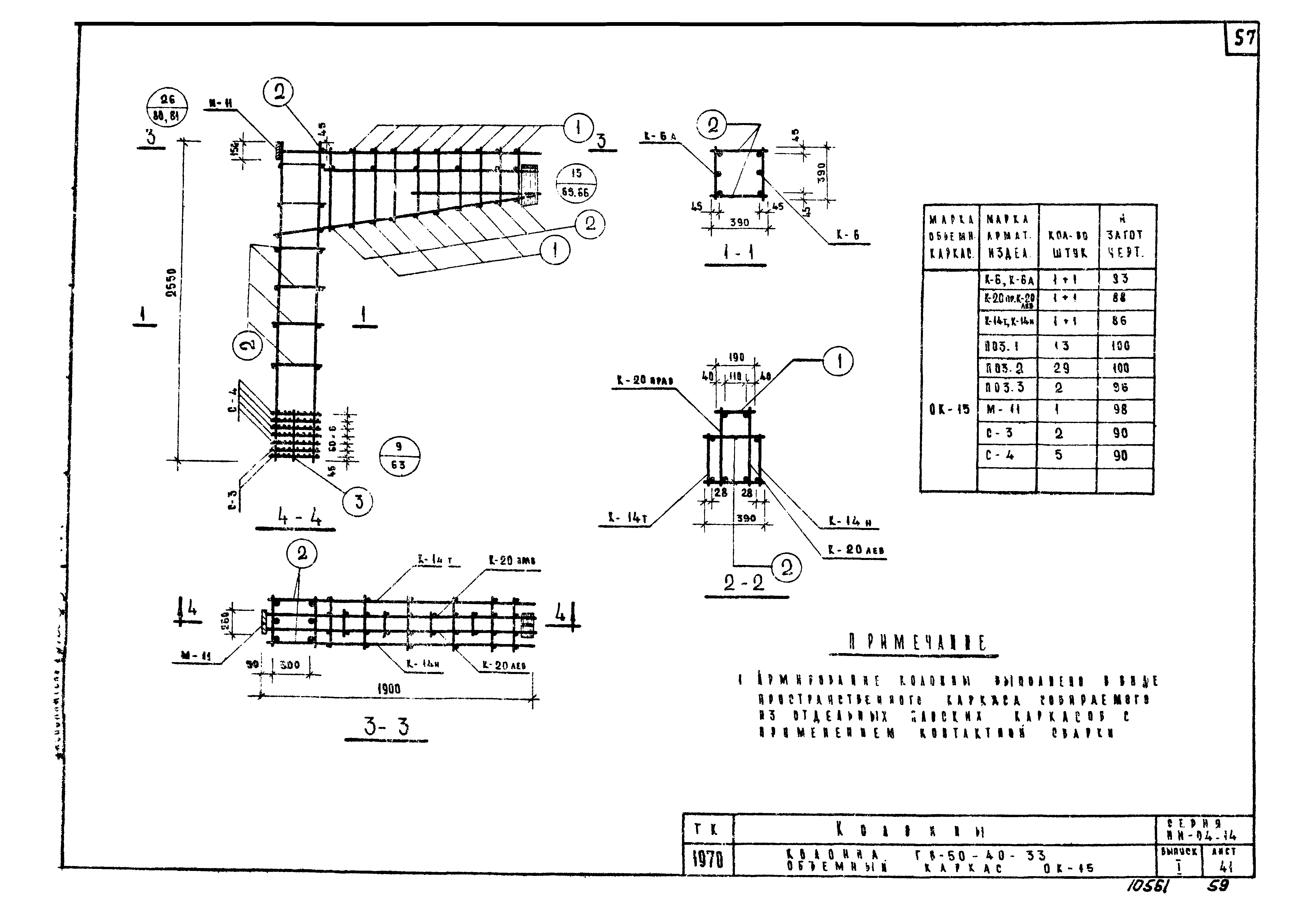
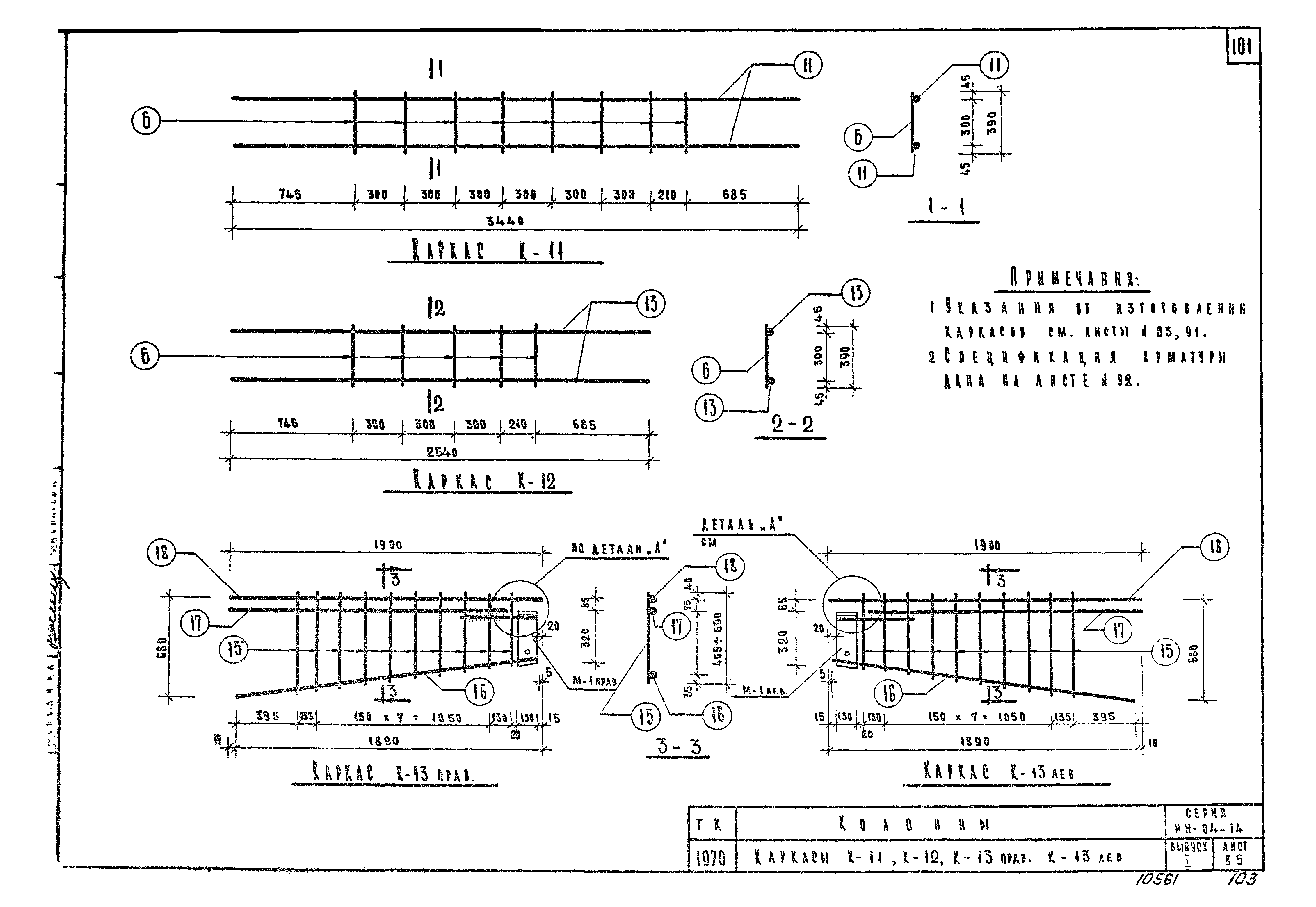
| Оглавление: | Перечень серий и выпусков Содержание Пояснительная записка Номенклатура Колонна ГВ-50-40-42. Опалубочный чертеж. Показатели расхода материалов Колонна ТВ-40-60-42. Опалубочный чертеж. Показатели расхода материалов Колонна ТВК-50-40-42. Опалубочный чертеж. Показатели расхода материалов Колонны Г-40-60-42, Г-40-80-42, Г-60-80-42. Опалубочный чертеж. Показатели расхода материалов Колонны Т-40-60-42, Т-50-60-42, Т-50-80-42, Т-60-80-42. Опалубочный чертеж. Показатели расхода материалов Колонны ТК-40-60-42, ТК-50-60-42, ТК-50-80-42, ТК-60-80-42. Опалубочный чертеж. Показатели расхода материалов Колонна ГВ-50-40-33. Опалубочный чертеж. Показатели расхода материалов Колонна ТВ-40-60-33. Опалубочный чертеж. Показатели расхода материалов Колонна ТВК-50-40-33. Опалубочный чертеж. Показатели расхода материалов Колонны Г-40-60-33, Г-40-80-33, Г-60-80-33. Опалубочный чертеж. Показатели расхода материалов Колонны Т-40-60-33, Т-50-60-33, Т-50-80-33, Т-60-80-33. Опалубочный чертеж. Показатели расхода материалов Колонны ТК-40-63-33, ТК-50-60-33, ТК-50-80-33, ТК-60-80-33. Опалубочный чертеж. Показатели расхода материалов Опалубка. Узлы 1, 2 Опалубка. Узел 3 Опалубка. Узлы 4, 5 Колонна. ГВ-50-40-42. Армирование Колонна. ГВ-50-40-42. Объемный каркас ОК-1 Колонна. ГВ-40-60-42. Армирование Колонна. ГВ-40-60-42. Объемный каркас ОК-2 Колонна. ТВК-50-40-42. Армирование Колонна. ТВК-50-40-42. Объемный каркас ОК-3 Колонны. Г-40-60-42 и Г-40-80-42. Армирование Колонны. Г-40-60-42 и Г-40-80-42. Объемные каркасы ОК-4 и ОК-5 Колонна. Г-60-80-42. Армирование Колонна. Г-60-80-42. Объемный каркас ОК-6 Колонна. Г-40-60-42. Армирование Колонна. Г-40-60-42. Объемный каркас ОК-7 Колонны. Т-50-60-42 и Т-50-80-42. Армирование Колонны. Т-50-60-42 и Т-50-80-42. Объемные каркасы ОК-8 и ОК-9 Колонна. Т-60-80-42. Армирование Колонна. Т-60-80-42. Объемный каркас ОК-10 Колонна. ТК-40-60-42. Армирование Колонна. ТК-40-60-42. Объемный каркас ОК-11 Колонны. ТК-50-60-42 и ТК-50-80-42. Армирование Колонны. ТК-50-60-42 и ТК-50-80-42. Объемные каркасы ОК-12 и ОК-13 Колонна. ТК-60-80-42. Армирование Колонна. ТК-60-80-42. Объемный каркас ОК-14 Колонна. ГВ-50-40-33. Армирование Колонна. ГВ-50-40-33. Объемный каркас ОК-15 Колонна. ТВ-40-60-33. Армирование Колонна. ТВ-40-60-33. Объемный каркас ОК-16 Колонна. ТВК-50-40-33. Армирование Колонна. ТВК-50-40-33. Объемный каркас ОК-17 Колонны. Г-40-60-33 и Г-40-80-33. Армирование Колонны. Г-40-60-33 и Г-40-80-33. Объемные каркасы ОК-18 и ОК-19 Колонна. Г-60-80-33. Армирование Колонна. Г-60-80-33. Объемный каркас ОК-20 Колонна. Т-40-60-33. Армирование Колонна. Т-40-60-33. Объемный каркас ОК-21 Колонны. Т-50-60-33 и Т-50-80-33. Армирование Колонны. Т-50-60-33 и Т-50-80-33. Объемные каркасы ОК-22 и ОК-23 Колонна. Т-60-80-33. Армирование Колонна. Т-60-80-33. Объемный каркас ОК-24 Колонна. ТК-40-60-33. Армирование Колонна. ТК-40-60-33. Объемный каркас ОК-25 Колонны. ТК-50-60-33 и ТК-50-80-33. Армирование Колонны. ТК-50-60-33 и ТК-50-80-33. Объемные каркасы ОК-26 и ОК-27 Колонна. ТК-60-80-33. Армирование Колонна. ТК-60-80-33. Объемный каркас ОК-28 Армирование. Узлы 5, 6, 8, 9 Армирование. Узлы 7, 10 Армирование. Узлы 11, 12 Армирование. Узел 13 Узлы 11, 12, 13. Сечения 3-3, 4-4 Армирование. Узел 14 Армирование. Узлы 15, 16 Армирование. Узел 17 Армирование. Узлы 18, 19 Армирование. Узлы 17, 18, 19. Сечения 1-1, 4-4 Армирование. Узел 20 Армирование. Узел 20. Сечение 1-1 Армирование. Узлы 21, 22 Армирование. Узлы 21, 22. Сечения 3-3, 4-4 Армирование. Узел 23 Армирование. Узел 23. Сечения 3-3, 4-4 Армирование. Узел 24 Армирование. Узел 25 Армирование. Узел 26 Армирование. Узел 26. Сечения 1-1, 2-2 Каркасы К-1, К-1А, К-2, К-2А, К-3 Каркасы К-4, К-5, К-5А, К-6, К-6А, К-7 Каркасы К-8, К-9, К-9А, К-10, К-10А Каркасы К-11, К-12, К-13прав, К-13лев Каркасы К-14т, К-14н, К-15т, К-15н, К-16 Каркасы К-17пр, К-17лев, К-18прав, К-18лев Каркасы К-19пр, К-19лев, К-20прав, К-20лев Каркасы К-21, К-22лев, К-22пр Деталь "А". Сетки С-1, С-2, С-3, С-4, С-5, С-6 Деталь "Б" Спецификация на одно арматурное изделие К-1, К-1А, К-2, К-2А, К-3, К-4, К-5, К-5А, К-6, К-6А, К-7, К-8, К-9, К-10, К-10А, К-11, К-12, К-13пр Спецификация на одно арматурное изделие. Каркасы К-13лев, К-14т, К-14н, К-15т, К-15н, К-16, К-17пр, К-17лев, К-18пр, К-18лев Спецификация на одно арматурное изделие. Каркасы К-19пр, К-19лев, К-20пр, К-20лев, К-21, К-22лев, К-22пр, С-1, С-2, С-3, С-4, С-5, С-6 Закладные детали М-1лев, М-1пр, М-2, М-3лев, М-3пр, П-1 Закладные детали М-4, М-5, М-6 Закладные детали М-7, М-8, М-9 Закладные детали М-10, М-11, М-12 Закладные детали М-13, М-14, М-15 Спецификация стали на закладные детали М-1 - М-15, П-1. Спецификация отдельных стержней Пример расположения дополнительных закладных деталей для крепления лестниц в колоннах типа ТЛ Пример расположения дополнительных закладных деталей для крепления лестниц в колоннах типа ГЛ Пример расположения дополнительных закладных деталей в колоннах типа ТП для крепления стеновых панелей Пример расположения дополнительных закладных деталей в колоннах типа ГП для крепления стеновых панелей Примеры крепления закладной детали М-13 в объемных каркасах колонн типа Т и Г Примеры крепления закладных деталей М-15 и М-9 в объемных каркасах колонн Примеры крепления закладных деталей М-37 и М-40 в объемных каркасах колонн Крепление петли М-2 к объемному каркасу |
| Разработан: | НИИЖБ Госстроя СССР ЦНИИЭП торгово-бытовых зданий и туристских комплексов |
| Утверждён: | 26.05.1970 Государственный комитет по гражданскому строительству и архитектуре при Госстрое СССР (86) |
| Расположен в: | |
| Чем заменён: |

































































































































