Скачать Типовой проект Ау-II,III-100-79/43 Альбом I. Часть 1. Общая пояснительная записка. Архитектурно-строительные решения. Конструкции железобетонные. Вентиляция. Электротехническая часть. Слаботочные устройства. Рекомендации по организации строительства (общие чертежи для заглубленного и полузаглубленного убежищ)Дата актуализации: 10.08.2017 Типовой проект Ау-II,III-100-79/43
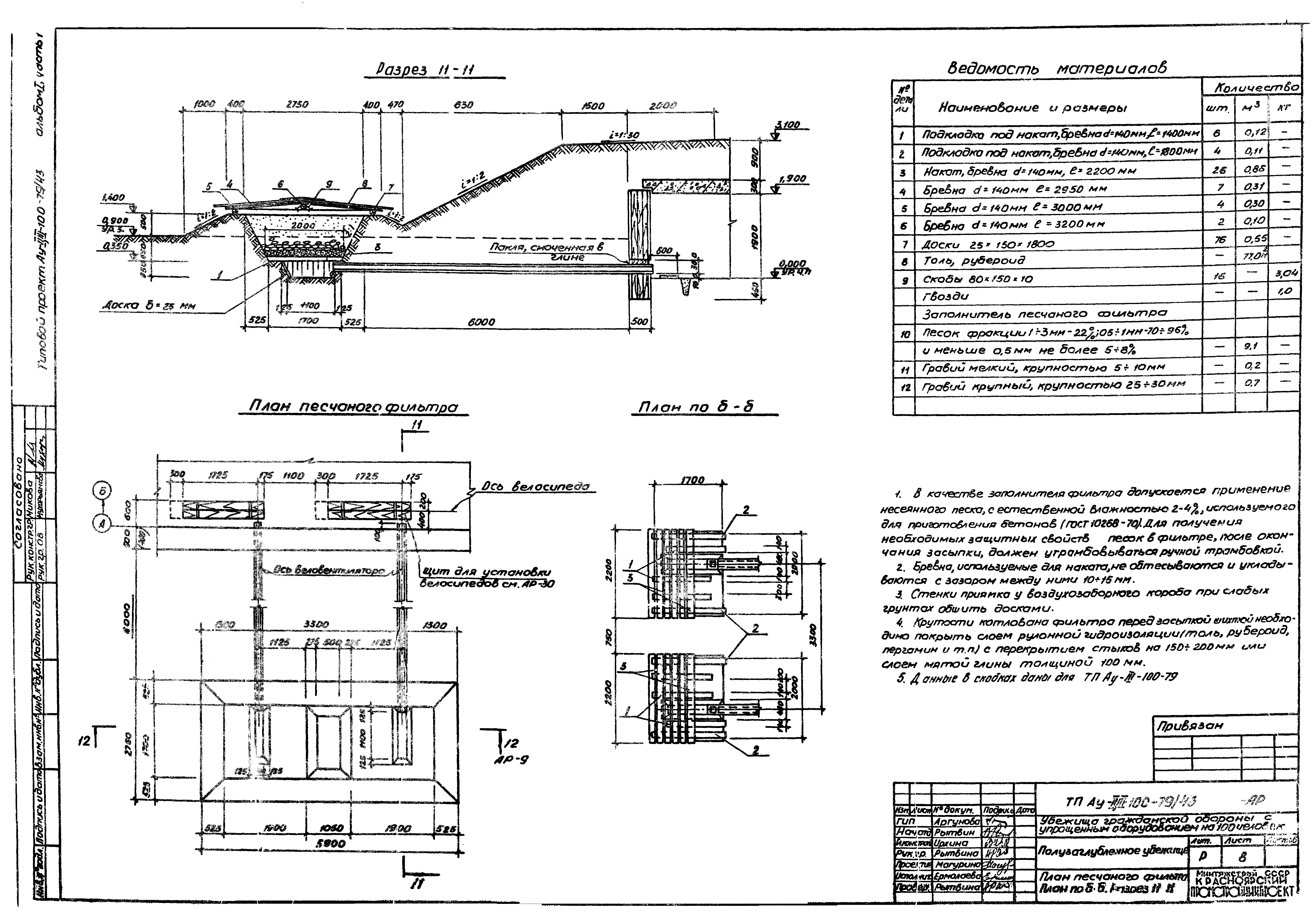
Альбом I. Часть 1. Общая пояснительная записка. Архитектурно-строительные решения. Конструкции железобетонные. Вентиляция. Электротехническая часть. Слаботочные устройства. Рекомендации по организации строительства (общие чертежи для заглубленного и полузаглубленного убежищ)Обозначение: | Типовой проект Ау-II,III-100-79/43 | Обозначение англ: | Ау-II,III-100-79/43 | Статус: | не определен законодательством | Название рус.: | Альбом I. Часть 1. Общая пояснительная записка. Архитектурно-строительные решения. Конструкции железобетонные. Вентиляция. Электротехническая часть. Слаботочные устройства. Рекомендации по организации строительства (общие чертежи для заглубленного и полузаглубленного убежищ) | Дата добавления в базу: | 01.09.2013 | Дата актуализации: | 05.05.2017 | Дата введения: | 15.05.1980 | Оглавление: | Обложка Титульный лист Опись документов Пояснительная записка Архитектурно-строительные решения Общие данные Заглубленное убежище. План на отм. 0.000. Разрез 1-1. Обволование Заглубленное убежище. Разрезы 2-2 - 3-3 Заглубленное убежище. План песчаного фильтра. План по а-а. Разрез 4-4 Заглубленное убежище. Разрезы 5-5 - 7-7 Полузаглубленное убежище. План на отм. 0.000. Разрез 1-1. Обволование Полузаглубленное убежище. Разрезы 9-9, 10-10 Полузаглубленное убежище. План песчаного фильтра. План по б-б. Разрез 11-11 Полузаглубленное убежище. Разрезы 12-12 - 14-14 Маркировочная схема деревянных элементов Фрагмент плана 2. Разрезы 15-15 - 18-18 План раскладки щитов на полу. Деталь установки ДЗУ. Фрагмент плана 1. Сечения Аварийный лаз Щит Щ1 Щиты Щ2, Щ3, Щ4, Щ5 Щиты Щ6, Щ7. Трап Т1 Щиты Щ8 - Щ11. Крышка. Сечения А-А - Д-Д Защитно-герметическая дверь БД60х160-0,6 Коробка дверного блока БД60х160-0,6 Комплект металлических деталей для БД60х160-0,6 Герметическая дверь ГД60х160-0,1 Коробка герметической двери ГД60х160-0,1 Комплект металлических деталей ГД60х160-0,1 Воздухозаборный короб матерчатого фильтра Опорная рамка фильтра. Рамка для крепления ткани Щ14, Р1. Узлы А, Б, В Защитная секция ЗСУ Металлические детали защитной секции ЗСУ Шибер с гибким патрубком Трап Т2. Блок Б2. Короб песчаного фильтра Плита со станиной, подставка под вентилятор Нары Н1. щиты Щ12, Щ13. Каркас К1 Бак для воды V = 300 л. Развертка ткани матерчатого фильтра Конструкции железобетонные Общие данные Маркировочная схема фундаментных плит и стеновых блоков. Маркировочная схема плит покрытия Вентиляция, нетиповые конструкции Общие данные План на отм. 0.000. Установки систем П1, П2, ВЕ1 Нетиповая конструкция. Веловентилятор ЦВ-1 Нетиповая конструкция. Дефлекторное защитное устройство ДЗУ Электротехническая часть, слаботочные устройства План силовой распределительной сети, электроосвещения и устройств связи Ведомости электротехнического оборудования и устройств связи Рекомендации по организации строительства Методы производства земляных работ Монтаж железобетонных конструкций | Разработан: | Красноярский Промстройниипроект Госстроя СССР
| Утверждён: | 15.05.1980 Минтяжстрой СССР (USSR Mintyazhstroy 5-ДСП)
| Расположен в: |
|
                                                  
|