Скачать Типовой проект 254-9-12 Альбом I. Архитектурно-строительная, технологическая, санитарно-техническая части, электрооборудование, слаботочные устройства и автоматикаДата актуализации: 10.08.2017 Типовой проект 254-9-12
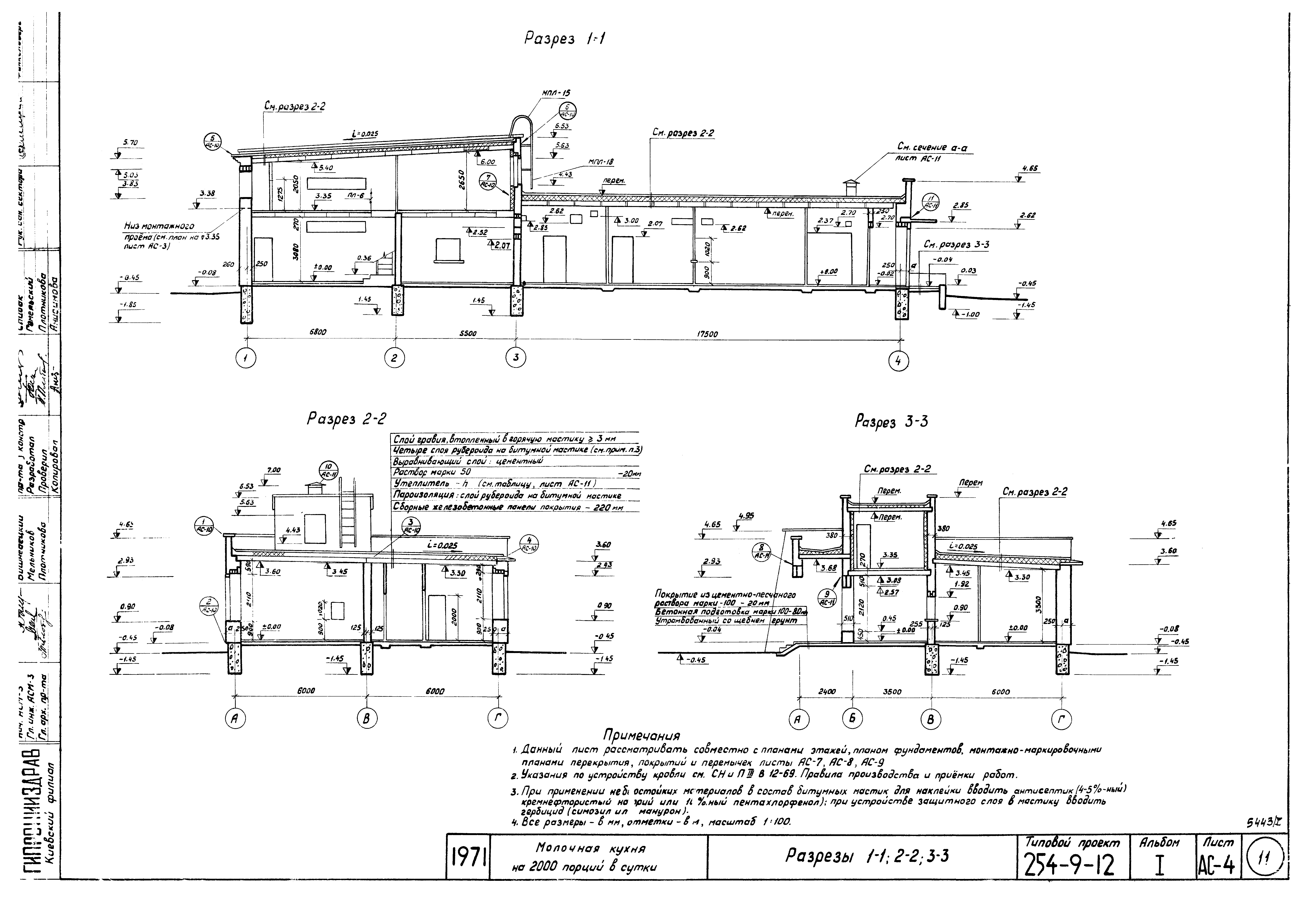
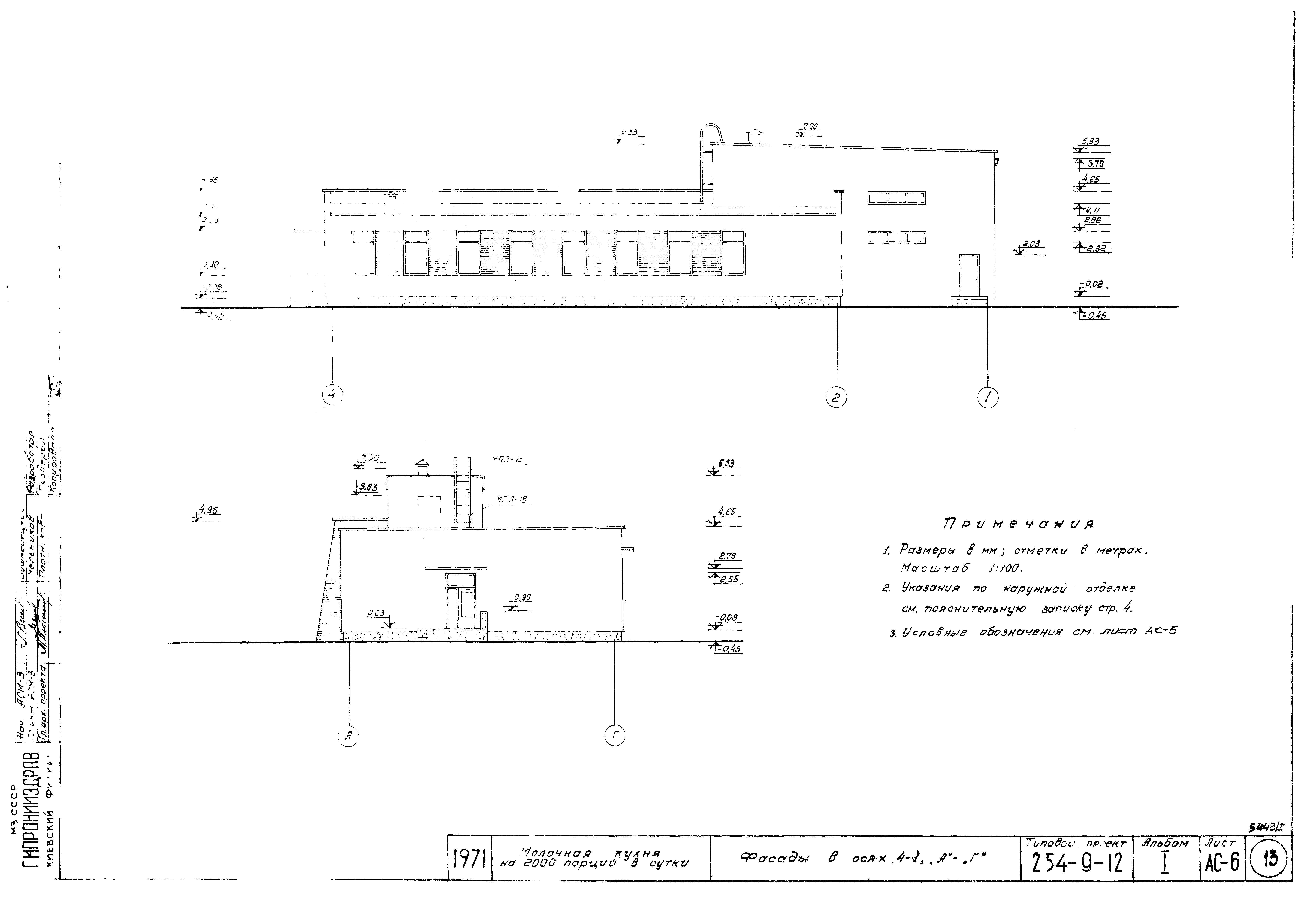
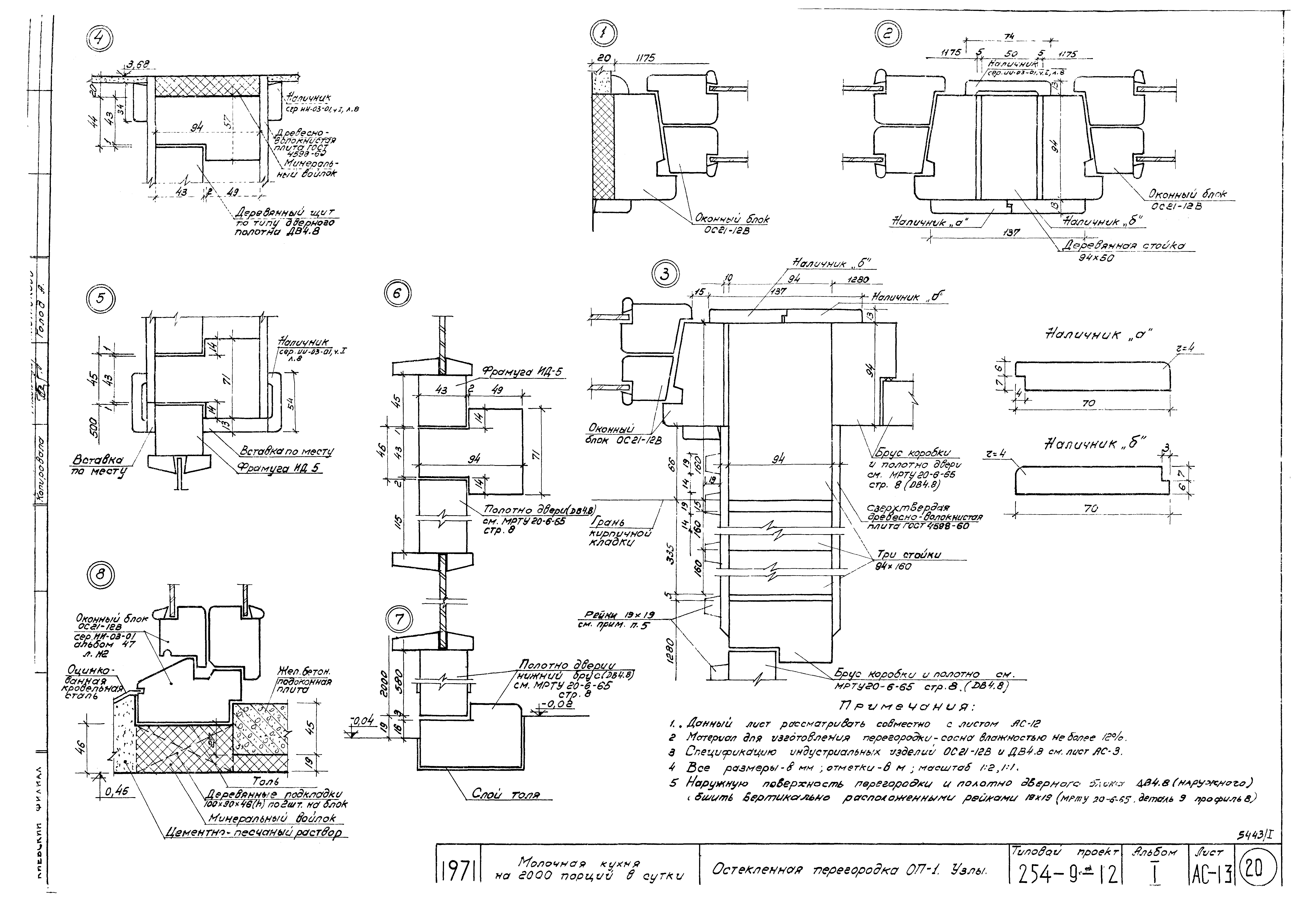
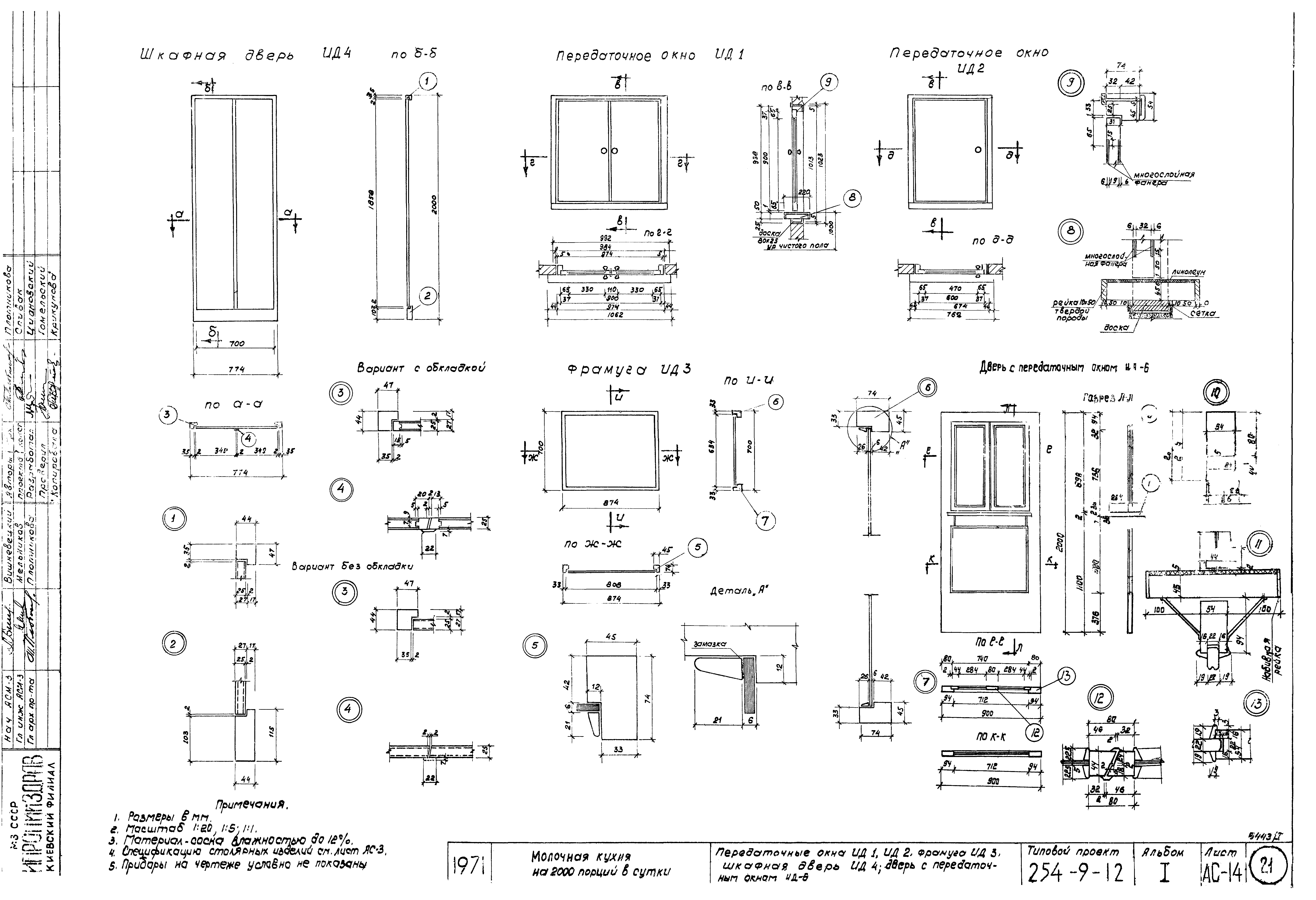
Альбом I. Архитектурно-строительная, технологическая, санитарно-техническая части, электрооборудование, слаботочные устройства и автоматикаОбозначение: | Типовой проект 254-9-12 | Обозначение англ: | 254-9-12 | Статус: | действует | Название рус.: | Альбом I. Архитектурно-строительная, технологическая, санитарно-техническая части, электрооборудование, слаботочные устройства и автоматика | Дата добавления в базу: | 01.09.2013 | Дата актуализации: | 05.05.2017 | Дата введения: | 18.06.1971 | Оглавление: | Обложка Титульный лист Содержание альбома I Пояснительная записка Генеральный план Генеральные планы. Варианты №1, №2 Генеральный план. Инженерные сети Генеральный план наружных питательных сетей, сетей наружного освещения Архитектурно-строительная часть Заглавный лист. Общие данные по марке АС План I этажа Планы на отм. 3.35. План кровли. Спецификация столярных изделий, металлических изделий Разрезы 1-1, 2-2, 3-3 Фасады в осях 1 - 4, Г - А Фасады в осях 4 - 1, А - Г План и сечения фундаментов Монтажные планы перекрытия, покрытий, перемычек, прогонов и опорных плит. Спецификации Металлические изделия для монолитных участков. Сводная спецификация сборных ж/б и бетонных элементов Узлы 1, 2, 3, 4, 5, 6, 7 Узлы 8, 9, 10, 11. Сечение "а-а" Остекленная перегородка ОП-1 Остекленная перегородка ОП-1. Узлы 1 - 9 Передаточные окна ИД1, ИД2, фрамуга ИД3, шкафная дверь ИД4, дверь ИД6 Экран ИМ-1. Узлы "А", "Б", "В" Детали полов Технологическая часть Заглавный лист. Общие данные по марке ТХ План I этажа с размещением технологического оборудования и мебели Сводная спецификация технологического оборудования и мебели Монтажно-установочный чертеж технологического оборудования. Планы Монтажно-установочный чертеж технологического оборудования. Разрезы Монтажный чертеж с деталировкой ванны для охлаждения бутылочек (поз. 6) Детали к монтажному чертежу ванны для охлаждения бутылочек (поз. 6) Санитарно-техническая часть Заглавный лист. Общие данные по марке ОВ Заглавный лист. Общие данные по марке ОВ. Спецификации Отопление, вентиляция и пароснабжение. План 1 этажа, план на отм. 3.35 Схемы систем отопления и пароснабжения Венткамера. План. Разрезы Схема приточной и вытяжной вентиляции Бойлерная. Вариант теплоснабжения от собственной котельной Бойлерная. Вариант теплоснабжения от теплосети Бойлерная. Схемы трубопроводов для 2-х вариантов Общие данные по марке ВК. Заглавный лист Общие данные по марке ВК. Спецификация План I этажа. Водопровод и канализация Схемы холодного, горячего водоснабжения и канализации Электротехническая часть Заглавный лист. Общие данные по марке ЭН Электроосвещение и силовое электрооборудование. Спецификация и условные обозначения Силовое электрооборудование. Схема электроосвещения. Опросный лист для заказа вводно-распределительного устройства типа ВРУ Электроосвещение. План 1 этажа. План на отм. 3.35 Силовое электрооборудование. План 1 этажа. План на отм. 3.35 Силовое электрооборудование. Расчетно-монтажная таблица распределительной сети 380/220 В Слаботочные устройства. План 1 этажа. Спецификация, технические указания Автоматика Заглавный лист. Общие данные по марке А Принципиальная технологическая схема автоматизации приточной системы Принципиальные электрические схемы автоматизации приточной системы Принципиальные схемы управления вентилем на трубопроводе к расширительному баку Общий вид щита приточной системы ЩИС-1 МКС щита приточной системы ЩИС-1 Общий вид и МКС панели дистанционного управления Схема внешних соединений щита ЩИС-1 Вентиль на трубопроводе к расширительному баку. Схем внешних соединений Присоединение кабелей к ряду зажимов щита. Трассы кабельных проводок Спецификации | Разработан: | ГипроНИИздрав Минздрава СССР
| Утверждён: | 18.06.1971 ГипроНИИздрав (GiproNIIzdrav 85)
| Расположен в: |
|
                                                                
|