Информационная система
«Ёшкин Кот»

Скачать базу одним архивом
Скачать обновления
История создания базы
Карта сайта

Скачать Типовой проект Серия 85 Часть 10. Раздел 10.4-1. Изделия заводского изготовления. Металлические изделия

Дата актуализации: 10.08.2017

Типовой проект Серия 85

Часть 10. Раздел 10.4-1. Изделия заводского изготовления. Металлические изделия

Обозначение: Типовой проект Серия 85
Обозначение англ: Серия 85
Статус:не действует
Название рус.:Часть 10. Раздел 10.4-1. Изделия заводского изготовления. Металлические изделия
Дата добавления в базу:01.09.2013
Дата актуализации:05.05.2017
Оглавление:Заглавный лист
Сетки СС1, СС2, СС3, СС4
Сетки СС1А, СС2А, СС3А, СС4А
Сетки С1, С2, С3, С4, С4А, С5, СП1, СП2, СП3, каркас К1
Анкера АН1 - АН7, ОК1, лестница МЛ
Люк МКЛ, лестница МПЛ, рама ОР1, МР3, МР4
Ограждения МОЛ60.1-1, МОЛ59.1-1, МОЛ57.1-1, МОЛ28.1-1, МОЛ27.1-1, МОЛ25.1-1
Ограждения МОБ36.1-2, МОБ9.1л-2, МОБ9.1п-2
Ограждения МОЛ60.2-2, МОЛ59.2-2, МОЛ57.2-2, МОЛ28.2-2, МОЛ27.2-2, МОЛ25.2-2
Ограждения МОБ36.1л-2, МОБ39.1п-2
Ограждения МОБ42.1л-2, МОБ42.1п-2, МОБ6.1л-2, МОБ6.1п-2
Радиостойка РС
Радиостойка РС. Детали. Спецификация
Гильзы для радиостойки ГРС1, ГРС2
Гильза для телеантенны ГТА-1. Спецификация
Гильза для телеантенны ГТА-1. Детали. Сечение по А-А
Гильза для телеантенны ГТА-2. Спецификация
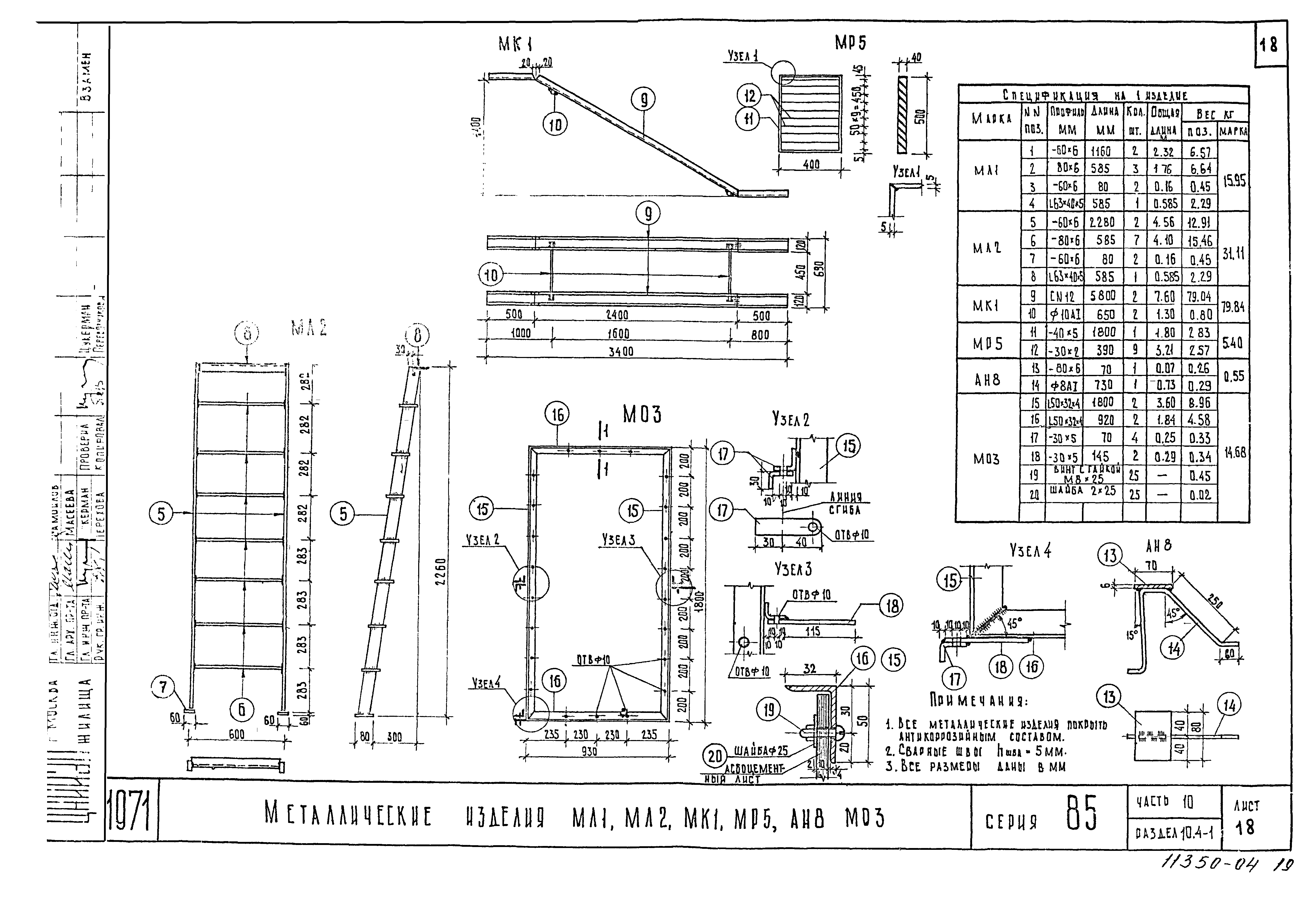
Металлические изделия МЛ1, МЛ2, МК1, МР5, АН8, МО3
Ограждения МОЛ57.1-2, МОЛ59.1-2
Сетки СС5, СС6, СС7, СС8
Сетки СС5А, СС6А, СС7А, С6
Сетки СП4, СП5, СП5А, СП6, СП7. Решетки МО1, МО2
Ограждения МОБ36.1-3, МОБ9.1л-3, МОБ9.1п-3
Ограждения МОБ39.1л-3, МОБ39.1п-3
Ограждения МОЛ60.2-3, МОЛ59.2-3, МОЛ57.2-3, МОЛ28.2-3, МОЛ27.2-3, МОЛ25.2-3
Ограждения МОБ36.1-1, МОБ9.1л-1, МОБ9.1п-1, сетки С8, С8А
Разработан: ЦНИИЭП жилища
Утверждён:01.01.1971 Государственный комитет по гражданскому строительству и архитектуре при Госстрое СССР
Расположен в:Техническая документация Строительство Справочные документы Типовые строительные конструкции, изделия и узлы Общероссийский строительный каталог Жилые здания для строительства в городах и поселках городского типа Обычные условия Дома для молодежных строительных кооперативов Серия 85 Дома для малосемейных Серия 85 Жилые дома со стенами из местных материалов Серия 85 Жилые здания для строительства в сельской местности Жилые дома со стенами из местных материалов Серия 85
Типовой проект Серия 85Типовой проект Серия 85Типовой проект Серия 85Типовой проект Серия 85Типовой проект Серия 85Типовой проект Серия 85Типовой проект Серия 85Типовой проект Серия 85Типовой проект Серия 85Типовой проект Серия 85Типовой проект Серия 85Типовой проект Серия 85Типовой проект Серия 85Типовой проект Серия 85Типовой проект Серия 85Типовой проект Серия 85Типовой проект Серия 85Типовой проект Серия 85Типовой проект Серия 85Типовой проект Серия 85Типовой проект Серия 85Типовой проект Серия 85Типовой проект Серия 85Типовой проект Серия 85Типовой проект Серия 85Типовой проект Серия 85Типовой проект Серия 85

© 2013 Ёшкин Кот :-) Карта сайта