Информационная система
«Ёшкин Кот»

Скачать базу одним архивом
Скачать обновления
История создания базы
Карта сайта

Скачать Типовой проект Серия 85 Часть 9. Раздел 9.3-1. Узлы и детали. Санитарно-технические узлы и детали

Дата актуализации: 10.08.2017

Типовой проект Серия 85

Часть 9. Раздел 9.3-1. Узлы и детали. Санитарно-технические узлы и детали

Обозначение: Типовой проект Серия 85
Обозначение англ: Серия 85
Статус:не действует
Название рус.:Часть 9. Раздел 9.3-1. Узлы и детали. Санитарно-технические узлы и детали
Дата добавления в базу:01.09.2013
Дата актуализации:05.05.2017
Оглавление:Заглавный лист
Монтажный чертеж кухонного узла Т-1
Монтажный чертеж кухонного узла Т-2
Монтажный чертеж кухонного узла Т-3
Монтажный чертеж кухонного узла Т-4
Монтажный чертеж разобщенного санитарного узла Т-5. План. Разрезы I-I, IV-IV
Монтажный чертеж разобщенного санитарного узла Т-5. Разрезы II-II, III-III. Спецификации
Монтажный чертеж разобщенного санитарного узла Т-6. План. Разрезы I-I, IV-IV
Монтажный чертеж разобщенного санитарного узла Т-6. Разрезы II-II, III-III. Спецификации
Монтажный чертеж разобщенного санитарного узла Т-7. План. Разрезы I-I, IV-IV
Монтажный чертеж разобщенного санитарного узла Т-7. Разрезы II-II, III-III. Спецификации
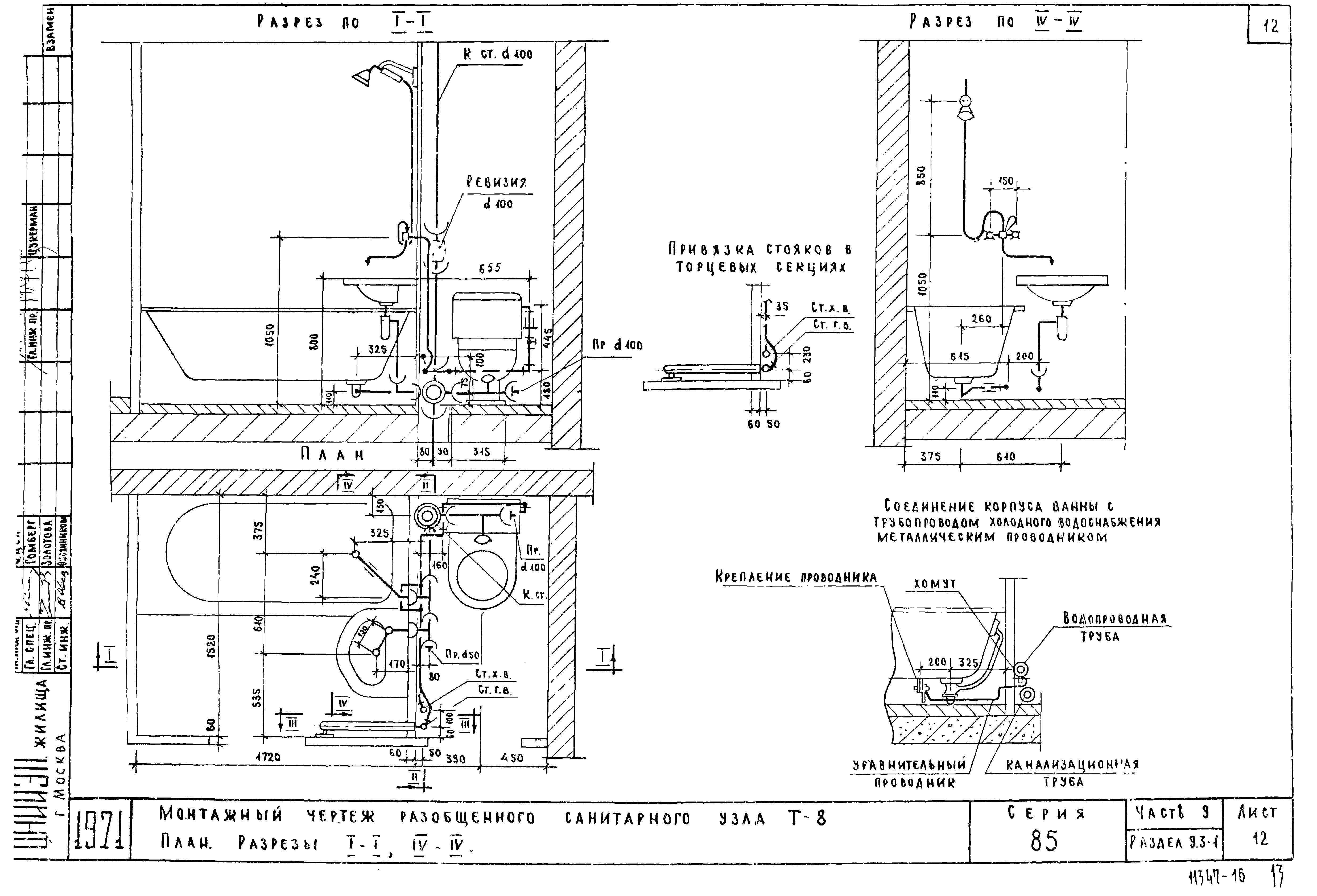
Монтажный чертеж разобщенного санитарного узла Т-8. План. Разрезы I-I, IV-IV
Монтажный чертеж разобщенного санитарного узла Т-8. Разрезы II-II, III-III. Спецификации
Монтажный чертеж совмещенного санитарно-кухонного узла Т-9. План. Выкопировка из плана верхнего этажа. Спецификации
Монтажный чертеж совмещенного санитарно-кухонного узла Т-9. Разрезы I-I, II-II, III-III
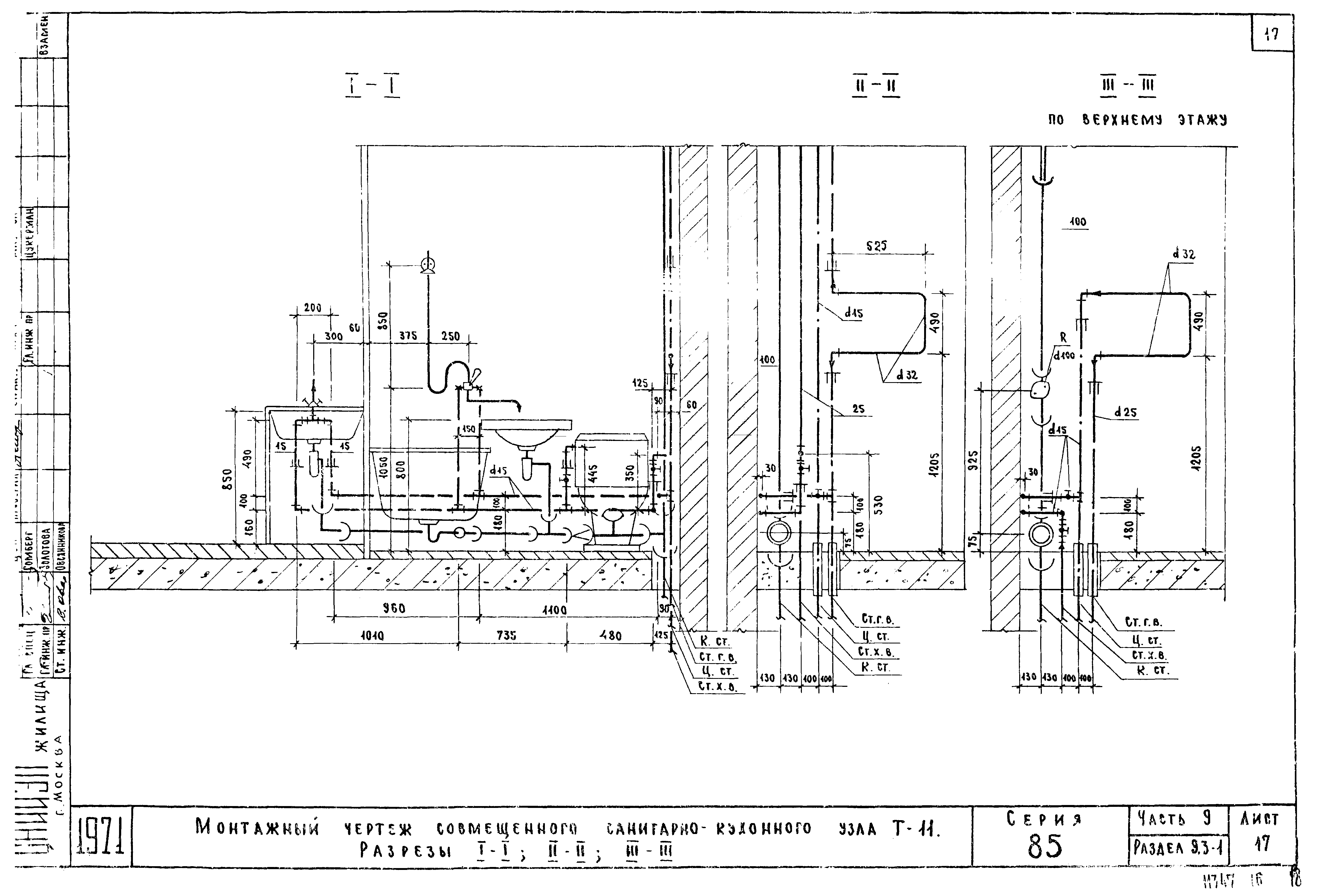
Монтажный чертеж совмещенного санитарно-кухонного узла Т-11. План. Выкопировка из плана верхнего этажа. Спецификации
Монтажный чертеж совмещенного санитарно-кухонного узла Т-11. Разрезы I-I, II-II, III-III
Монтажный чертеж разобщенного санитарно-кухонного узла Т-13. План. Разрезы I-I, IV-IV
Монтажный чертеж разобщенного санитарно-кухонного узла Т-13. Разрезы II-II, III-III
Монтажный чертеж разобщенного санитарно-кухонного узла Т-13. Разрезы II-II, III-III (для санузлов, расположенных у торцевой стены здания)
Монтажный чертеж разобщенного санитарно-кухонного узла Т-15. План. Разрезы I-I, IV-IV
Монтажный чертеж разобщенного санитарно-кухонного узла Т-15. Разрезы II-II, III-III
Монтажный чертеж разобщенного санитарно-кухонного узла Т-15. Разрезы II-II, III-III (для санузлов, расположенных у торцевой стены здания)
Установка газовых плит
Воздухонагреватель из ребристых труб. План. Разрезы
Схема соединения ребристых труб и регистра. Спецификация. Детали
Воздухонагреватель из ребристых труб. План. Разрезы
Схема соединения ребристых труб и регистра. Спецификация. Детали
Разработан: ЦНИИЭП жилища
Утверждён:01.01.1971 Государственный комитет по гражданскому строительству и архитектуре при Госстрое СССР
Расположен в:Техническая документация Строительство Справочные документы Типовые строительные конструкции, изделия и узлы Общероссийский строительный каталог Жилые здания для строительства в городах и поселках городского типа Обычные условия Дома для молодежных строительных кооперативов Серия 85 Дома для малосемейных Серия 85 Жилые дома со стенами из местных материалов Серия 85 Жилые здания для строительства в сельской местности Жилые дома со стенами из местных материалов Серия 85
Типовой проект Серия 85Типовой проект Серия 85Типовой проект Серия 85Типовой проект Серия 85Типовой проект Серия 85Типовой проект Серия 85Типовой проект Серия 85Типовой проект Серия 85Типовой проект Серия 85Типовой проект Серия 85Типовой проект Серия 85Типовой проект Серия 85Типовой проект Серия 85Типовой проект Серия 85Типовой проект Серия 85Типовой проект Серия 85Типовой проект Серия 85Типовой проект Серия 85Типовой проект Серия 85Типовой проект Серия 85Типовой проект Серия 85Типовой проект Серия 85Типовой проект Серия 85Типовой проект Серия 85Типовой проект Серия 85Типовой проект Серия 85Типовой проект Серия 85Типовой проект Серия 85Типовой проект Серия 85Типовой проект Серия 85

© 2013 Ёшкин Кот :-) Карта сайта