Информационная система
«Ёшкин Кот»

Скачать базу одним архивом
Скачать обновления
История создания базы
Карта сайта

Скачать Шифр М8.3/2010 Комплектные системы КНАУФ. Облицовка из гипсоволокнистых листов ограждающих конструкций жилых, общественных и производственных зданий. Стены. Мансардные помещения. Коммуникационные шахты. Выпуск 1. Материалы для проектирования и рабочие чертежи узлов

Дата актуализации: 10.08.2017

Шифр М8.3/2010

Комплектные системы КНАУФ. Облицовка из гипсоволокнистых листов ограждающих конструкций жилых, общественных и производственных зданий. Стены. Мансардные помещения. Коммуникационные шахты. Выпуск 1. Материалы для проектирования и рабочие чертежи узлов

Обозначение: Шифр М8.3/2010
Обозначение англ: М8.3/2010
Статус:не определен законодательством
Название рус.:Комплектные системы КНАУФ. Облицовка из гипсоволокнистых листов ограждающих конструкций жилых, общественных и производственных зданий. Стены. Мансардные помещения. Коммуникационные шахты. Выпуск 1. Материалы для проектирования и рабочие чертежи узлов
Дата добавления в базу:01.09.2013
Дата актуализации:05.05.2017
Дата введения:01.01.2008
Область применения:Альбом включает материалы для проектирования и рабочие чертежи узлов конструкций на основе комплектных систем КНАУФ из гипсоволокнистых листов для внутренней отделки зданий различного назначения: каркасных облицовок стен (С 66); облицовок мансардных помещений (М 68); облицовок коммуникационных шахт и лестничных маршей.
Оглавление:М8.3/10 Содержание
М8.3/10-П3 Пояснительная записка
   1. Область применения
   2. Облицовка стен
   3. Основные элементы облицовок ограждающих конструкций
   4. Огнестойкость и пожарная опасность облицовок ограждающих конструкций
   5. Сопряжение облицовок с инженерно-техническими, санитарно-техническими и электротехническими коммуникациями
   6. Крепление навесного оборудования и различных предметов на облицовки
   7. Порядок монтажа облицовок системы КНАУФ
   8. Облицовка мансардных помещений
   9. Коммуникационные шахты и лестничные марши
   10. Отделка поверхностей конструкций из гипсоволокнистых листов
   11. Приемка смонтированных конструкций с применением гипсоволокнистых листов.
   12. Основные положения по технике безопасности и охране труда при производстве работ
   13. Транспортирование и хранение элементов облицовок системы КНАУФ
Раздел I. Конструкции облицовок стен (С 66)
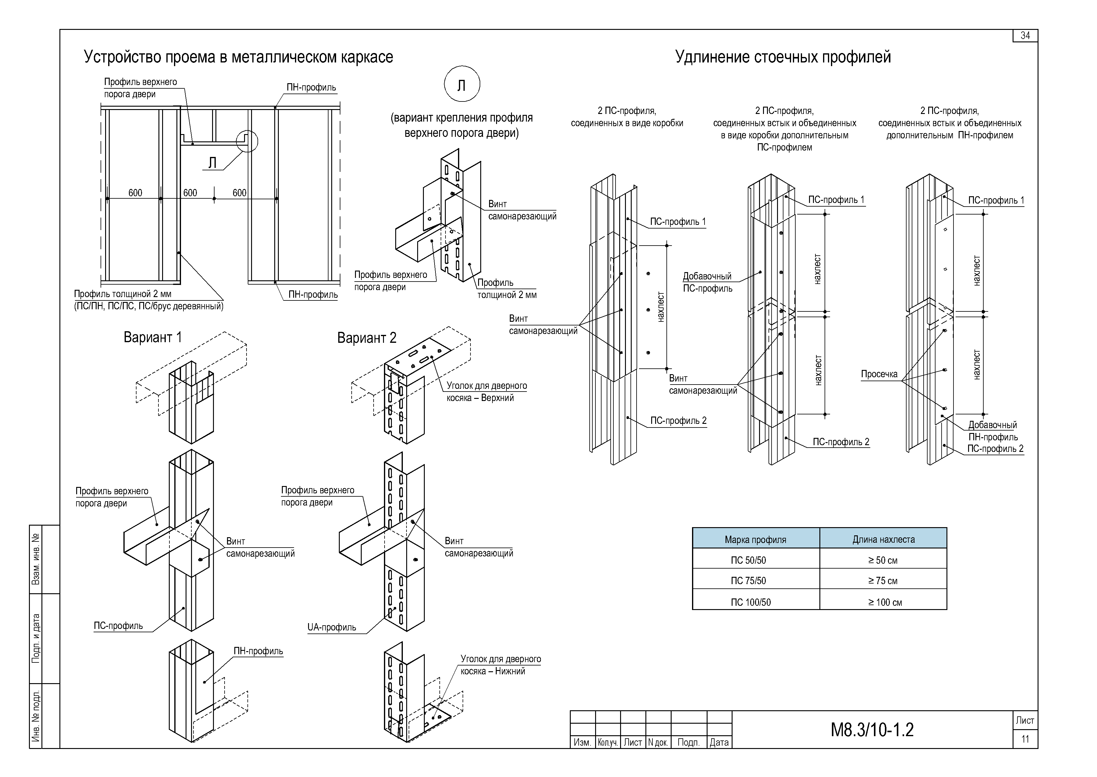
   М8.3/10-1.1 С 663. Облицовка по металлическому каркасу из ПП- и ПН-профилей
   М8.3/10-1.2 С 665, С 666. Облицовка по металлическому каркасу из ПС- и ПП-профилей
   М8.3/10-1.3 Сопряжение облицовок с коммуникационными трассами
Раздел II. Конструкции облицовок мансардных помещений (М 68)
   М8.3/10-2.0 Внутренняя отделка мансард
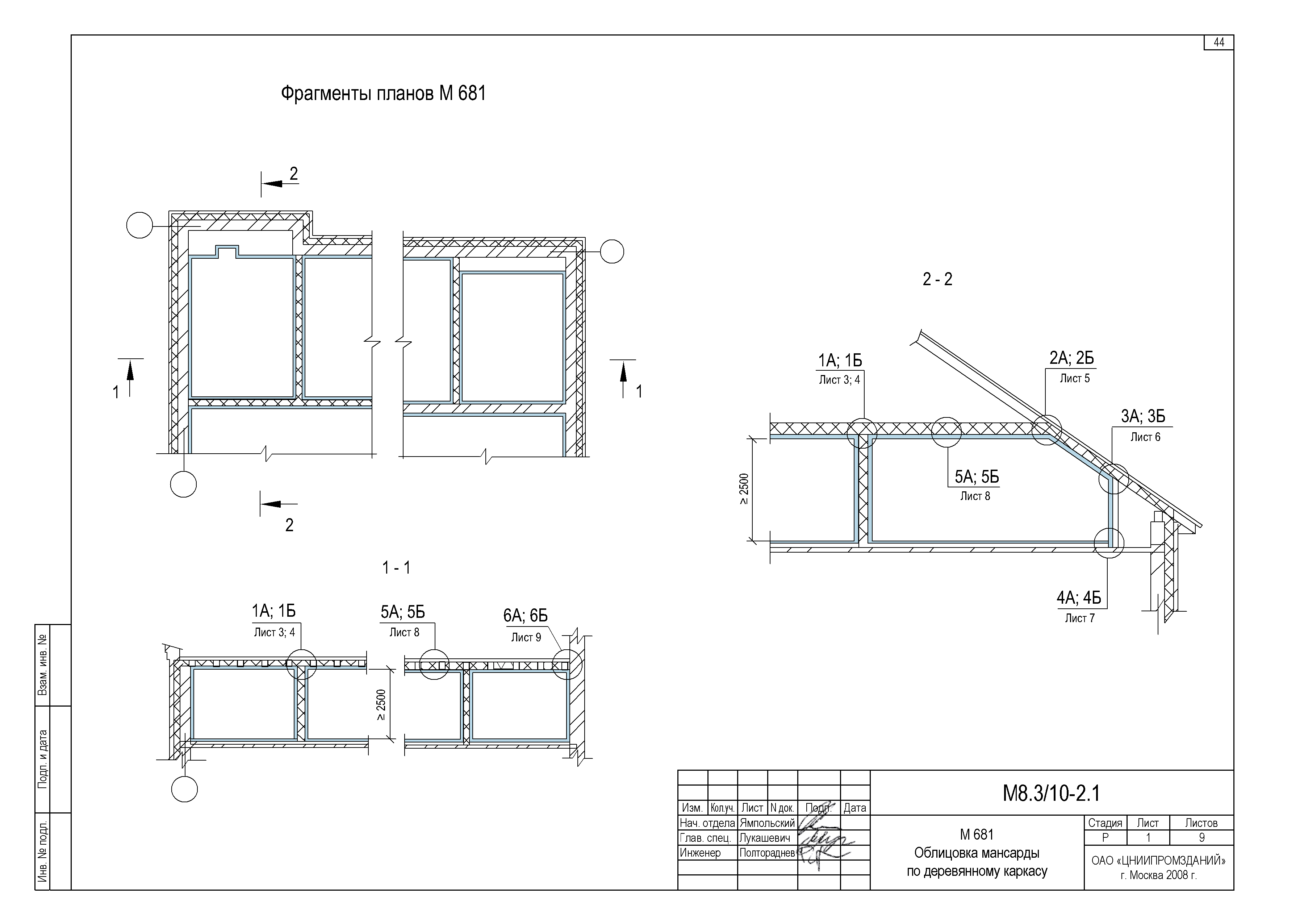
   М8.3/10-2.1 М681 Облицовка мансарды по деревянному каркасу
   М8.3/10-2.2 М682 Облицовка мансарды по металлическому каркасу
М8.3/10-3.1 Раздел III. Коммуникационные шахты
М8.3/10-4.1 Раздел IV. Системы для крепления навесного оборудования
М8.3/10-П1 Приложение 1
М8.3/10П2 Приложение 2
Разработан: ОАО ЦНИИпромзданий
ООО КНАУФ-Сервис
Расположен в:Техническая документация Строительство Справочные документы Типовые строительные конструкции, изделия и узлы Разработанные другими министерствами, ведомствами и организациями
Нормативные ссылки:
Шифр М8.3/2010Шифр М8.3/2010Шифр М8.3/2010Шифр М8.3/2010Шифр М8.3/2010Шифр М8.3/2010Шифр М8.3/2010Шифр М8.3/2010Шифр М8.3/2010Шифр М8.3/2010Шифр М8.3/2010Шифр М8.3/2010Шифр М8.3/2010Шифр М8.3/2010Шифр М8.3/2010Шифр М8.3/2010Шифр М8.3/2010Шифр М8.3/2010Шифр М8.3/2010Шифр М8.3/2010Шифр М8.3/2010Шифр М8.3/2010Шифр М8.3/2010Шифр М8.3/2010Шифр М8.3/2010Шифр М8.3/2010Шифр М8.3/2010Шифр М8.3/2010Шифр М8.3/2010Шифр М8.3/2010Шифр М8.3/2010Шифр М8.3/2010Шифр М8.3/2010Шифр М8.3/2010Шифр М8.3/2010Шифр М8.3/2010Шифр М8.3/2010Шифр М8.3/2010Шифр М8.3/2010Шифр М8.3/2010Шифр М8.3/2010Шифр М8.3/2010Шифр М8.3/2010Шифр М8.3/2010Шифр М8.3/2010Шифр М8.3/2010Шифр М8.3/2010Шифр М8.3/2010Шифр М8.3/2010Шифр М8.3/2010Шифр М8.3/2010Шифр М8.3/2010Шифр М8.3/2010Шифр М8.3/2010Шифр М8.3/2010Шифр М8.3/2010Шифр М8.3/2010Шифр М8.3/2010Шифр М8.3/2010Шифр М8.3/2010Шифр М8.3/2010Шифр М8.3/2010Шифр М8.3/2010Шифр М8.3/2010Шифр М8.3/2010Шифр М8.3/2010Шифр М8.3/2010Шифр М8.3/2010Шифр М8.3/2010Шифр М8.3/2010Шифр М8.3/2010Шифр М8.3/2010Шифр М8.3/2010Шифр М8.3/2010Шифр М8.3/2010Шифр М8.3/2010

© 2013 Ёшкин Кот :-) Карта сайта