Информационная система
«Ёшкин Кот»

Скачать базу одним архивом
Скачать обновления
История создания базы
Карта сайта

Скачать Шифр КС 10.03/2008 Наружные стены с каркасом из термопрофилей СТАЛДОМ с наружной обшивкой из цементно-минеральных плит АКВАПАНЕЛЬ Наружная для малоэтажных зданий различного назначения

Дата актуализации: 10.08.2017

Шифр КС 10.03/2008

Наружные стены с каркасом из термопрофилей СТАЛДОМ с наружной обшивкой из цементно-минеральных плит АКВАПАНЕЛЬ Наружная для малоэтажных зданий различного назначения

Обозначение: Шифр КС 10.03/2008
Обозначение англ: КС 10.03/2008
Статус:не определен законодательством
Название рус.:Наружные стены с каркасом из термопрофилей СТАЛДОМ с наружной обшивкой из цементно-минеральных плит АКВАПАНЕЛЬ Наружная для малоэтажных зданий различного назначения
Дата добавления в базу:01.09.2013
Дата актуализации:05.05.2017
Дата введения:01.01.2008
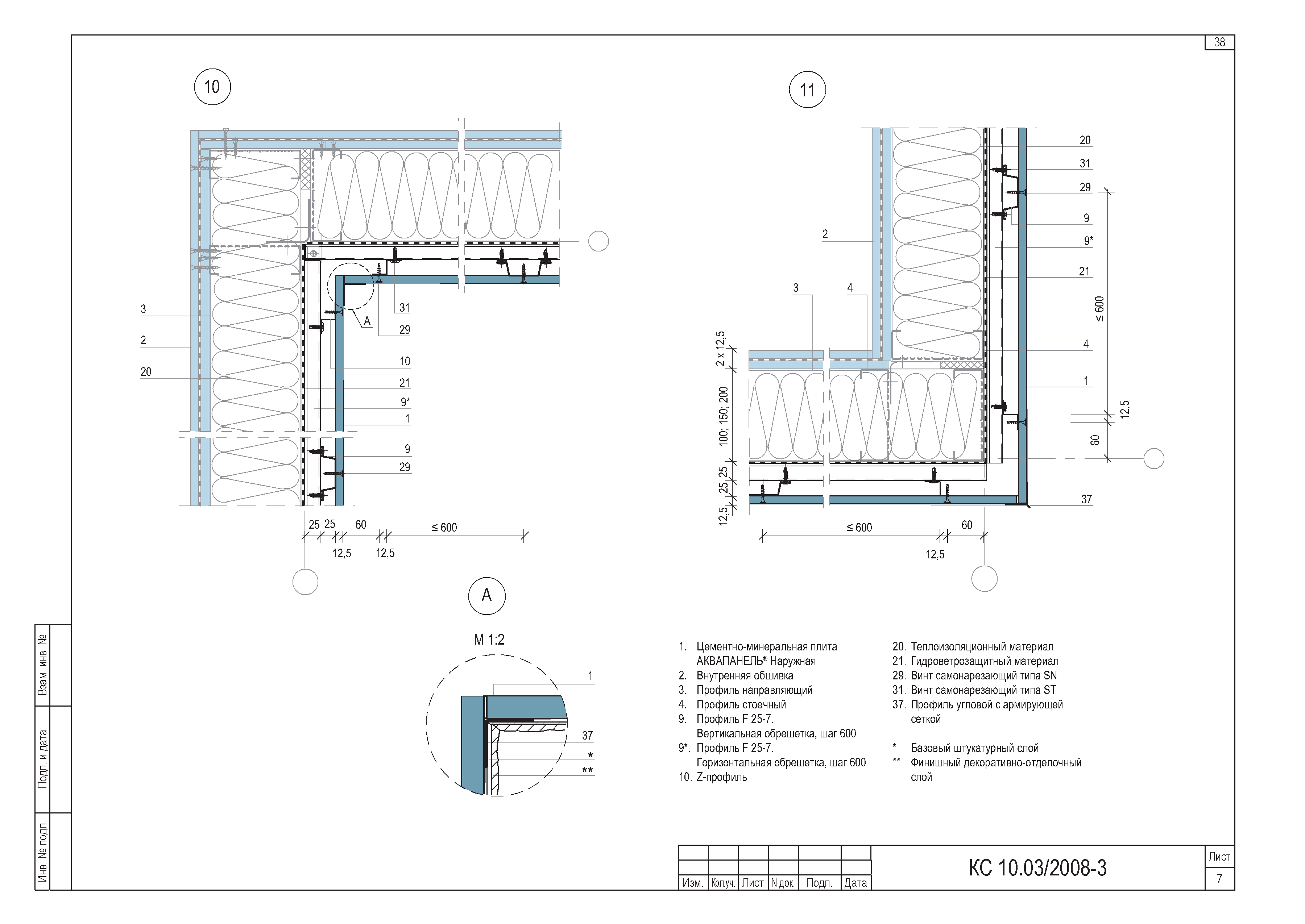
Область применения:Альбом содержит материалы для проектирования и рабочие чертежи узлов конструкций наружных несущих и ненесущих каркасно-обшивных стен поэлементной сборки на стальном каркасе СТАЛДОМ® с наружной обшивкой из плит АКВАПАНЕЛЬ® Наружная.
Оглавление:КС 10.03/2008 Содержание
КС 10.03/2008-П3
   1. Область применения документа
   2. Нормативные ссылки
   3. Общие положения
   4. Материалы и комплектующие изделия
   5. Технические решения стен СТАЛДОМ
   6. Технология монтажа стен
   7. Приемка смонтированных конструкций
   8. Основные правила технической эксплуатации конструкций
КС 10.03/2008-1 Схемы сопряжения стен и покрытия. Узлы
КС 10.03/2008-2 Стальной каркас стен. Узлы
КС 10.03/2008-3 Стены с воздушным зазором. Фасад здания. Схемы обрешетки. Узлы
КС 10.03/2008-4 Стены без воздушного зазора. Фасад здания. Узлы
КС 10.03/2008-П-1 Приложение 1. Перечень материалов и изделий
КС 10.03/2008-П-2 Приложение 2. Комплект необходимого инструмента
КС 10.03/2008-П-3 Приложение 3. Минимальные значения приведенного сопротивления теплопередаче наружной стены
Разработан: ООО КНАУФ-Сервис
ООО Талдом Профиль
Утверждён:01.01.2008 ООО КНАУФ Сервис (KNAUF Servis OOO )
Принят: НИИСФ Госстроя СССР (NIISF, USSR Gossstroy )
ФГУ ВНИИПО МЧС России
Расположен в:Техническая документация Строительство Справочные документы Типовые строительные конструкции, изделия и узлы Разработанные другими министерствами, ведомствами и организациями
Нормативные ссылки:
Шифр КС 10.03/2008Шифр КС 10.03/2008Шифр КС 10.03/2008Шифр КС 10.03/2008Шифр КС 10.03/2008Шифр КС 10.03/2008Шифр КС 10.03/2008Шифр КС 10.03/2008Шифр КС 10.03/2008Шифр КС 10.03/2008Шифр КС 10.03/2008Шифр КС 10.03/2008Шифр КС 10.03/2008Шифр КС 10.03/2008Шифр КС 10.03/2008Шифр КС 10.03/2008Шифр КС 10.03/2008Шифр КС 10.03/2008Шифр КС 10.03/2008Шифр КС 10.03/2008Шифр КС 10.03/2008Шифр КС 10.03/2008Шифр КС 10.03/2008Шифр КС 10.03/2008Шифр КС 10.03/2008Шифр КС 10.03/2008Шифр КС 10.03/2008Шифр КС 10.03/2008Шифр КС 10.03/2008Шифр КС 10.03/2008Шифр КС 10.03/2008Шифр КС 10.03/2008Шифр КС 10.03/2008Шифр КС 10.03/2008Шифр КС 10.03/2008Шифр КС 10.03/2008Шифр КС 10.03/2008Шифр КС 10.03/2008Шифр КС 10.03/2008Шифр КС 10.03/2008Шифр КС 10.03/2008Шифр КС 10.03/2008Шифр КС 10.03/2008Шифр КС 10.03/2008Шифр КС 10.03/2008Шифр КС 10.03/2008Шифр КС 10.03/2008Шифр КС 10.03/2008Шифр КС 10.03/2008Шифр КС 10.03/2008Шифр КС 10.03/2008Шифр КС 10.03/2008Шифр КС 10.03/2008Шифр КС 10.03/2008Шифр КС 10.03/2008

© 2013 Ёшкин Кот :-) Карта сайта