Скачать Серия ПК-01-100/62 Выпуск II. Сборные железобетонные предварительно напряженные плиты покрытий для промышленных зданий. Плиты размером 1,5х12 м с арматурой из высокопрочной проволоки. Рабочие чертежиДата актуализации: 10.08.2017 Серия ПК-01-100/62
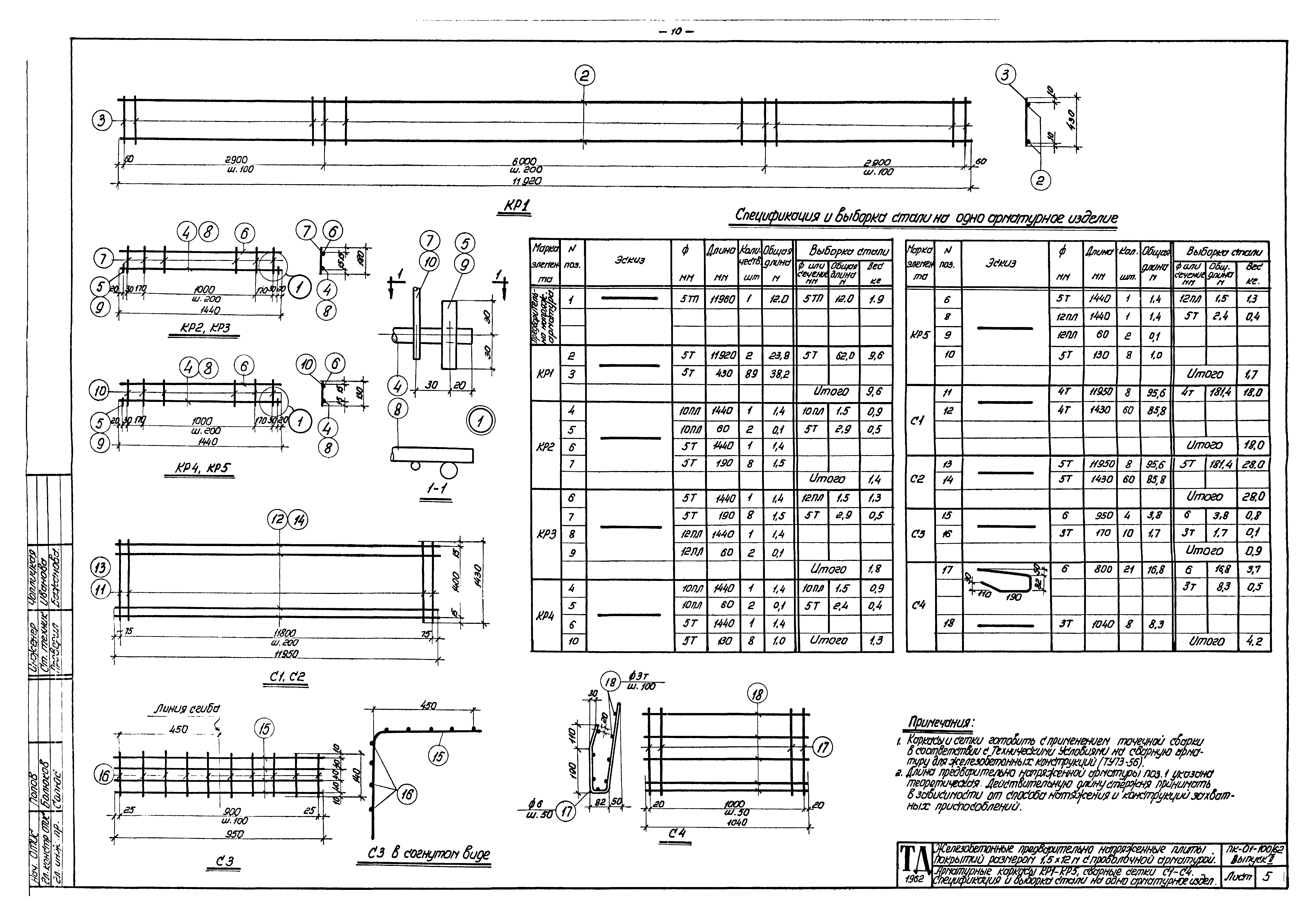
Выпуск II. Сборные железобетонные предварительно напряженные плиты покрытий для промышленных зданий. Плиты размером 1,5х12 м с арматурой из высокопрочной проволоки. Рабочие чертежиОбозначение: | Серия ПК-01-100/62 | Обозначение англ: | Series ПК-01-100/62 | Статус: | не действует | Название рус.: | Выпуск II. Сборные железобетонные предварительно напряженные плиты покрытий для промышленных зданий. Плиты размером 1,5х12 м с арматурой из высокопрочной проволоки. Рабочие чертежи | Дата добавления в базу: | 01.09.2013 | Дата актуализации: | 05.05.2017 | Оглавление: | Пояснительная записка Опалубочный чертеж плит ПНТП1/1,5х12 - ПНТП3/1,5х12. Технико-экономические показатели Армирование плит. Расположение предварительно-напряженной арматуры в продольных ребрах плиты Армирование плит. Продольные и поперечные разрезы Армирование плит. Детали 1 - 3 Арматурные каркасы КР1 - КР5, сварные сетки С1 - С4. Спецификация и выборка стали на одно арматурное изделие Закладные элементы М1, М2. Спецификация и выборка стали | Разработан: | НИИЖБ Гипротис
| Утверждён: | 14.12.1962 Госстрой СССР (Государственный комитет Совета Министров СССР по делам строительства) (USSR Gosstroy 466)
| Расположен в: |
| Заменяет собой: | |
          
|