Информационная система
«Ёшкин Кот»

Скачать базу одним архивом
Скачать обновления
История создания базы
Карта сайта

Скачать Серия 3.015-3/82 Выпуск II-4. Сборные железобетонные колонны и траверсы. Вариант армирования сталью класса Ат-IVс. Рабочие чертежи

Дата актуализации: 10.08.2017

Серия 3.015-3/82

Выпуск II-4. Сборные железобетонные колонны и траверсы. Вариант армирования сталью класса Ат-IVс. Рабочие чертежи

Обозначение: Серия 3.015-3/82
Обозначение англ: Series 3.015-3/82
Статус:не действует
Название рус.:Выпуск II-4. Сборные железобетонные колонны и траверсы. Вариант армирования сталью класса Ат-IVс. Рабочие чертежи
Дата добавления в базу:01.09.2013
Дата актуализации:05.05.2017
Дата введения:01.07.1989
Дата окончания срока действия:01.05.1994
Оглавление:3.015-3/82.II-4-ТТ Технические требования
3.015-3/82.II-4-НИ Номенклатура железобетонных конструкций
3.015-3/82.II-4-1 Колонна К1-1АтIVС; К1-2АтIVС; К1-4АтIVС; К1-4аАтIVС; К1-8АтIVС; К1-9АтIVС; К1-14АтIVС; К1-17АтIVС; К2-2АтIVС…К2-4АтIVС; К2-2аАтIVС
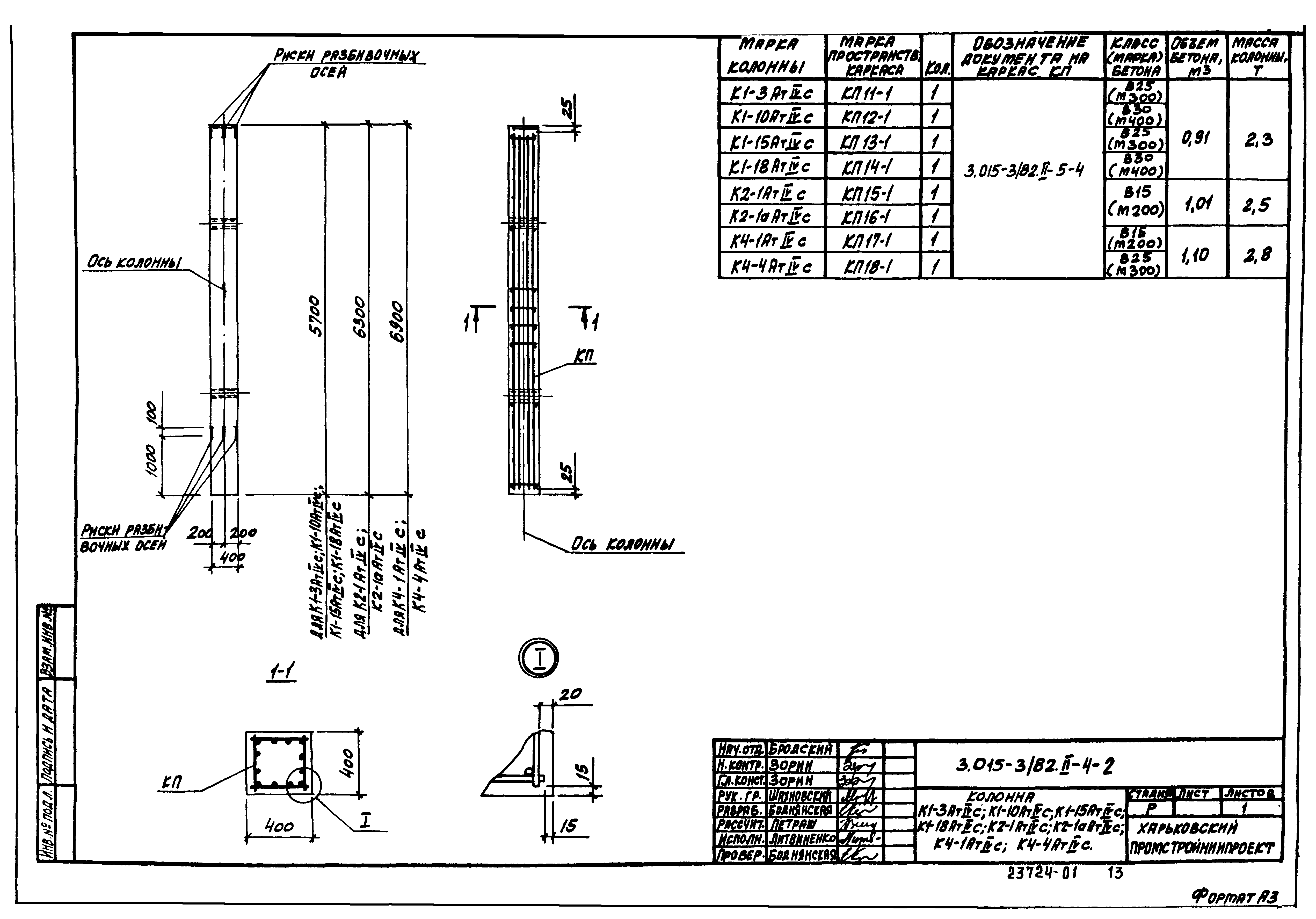
3.015-3/82.II-4-2 Колонна К1-3АтIVС; К1-10АтIVС; К1-15АтIVС; К1-18АтIVС; К2-1АтIVС; К2-1аАтIVС; К4-1АтIVС; К4-4АтIVС; К2-2АтIVС
3.015-3/82.II-4-3 Колонна К1-5АтIVС; К1-6АтIVС; К1-11АтIVС; К1-12АтIVС; К1-16АтIVС; К1-19АтIVС
3.015-3/82.II-4-4 Колонна К1-7АтIVС; К1-13АтIVС
3.015-3/82.II-4-5 Колонна К3-1АтIVС; К3-1аАтIVС; К3-2АтIVС; К3-2аАтIVС; К3-4АтIVС; К3-4аАтIVС; К3-7АтIVС; К3-7аАтIVС; К5-1АтIVС; К5-1аАтIVС; К5-2АтIVС; К5-5АтIVС; К5-7АтIVС; К5-9АтIVС; К5-11АтIVС; К5-13АтIVС; К7-2АтIVС; К7-4АтIVС
3.015-3/82.II-4-6 Колонна К3-3АтIVС; К3-3аАтIVС; К3-6АтIVС; К3-6аАтIVС; К5-3АтIVС; К5-3аАтIVС; К5-4АтIVС; К5-8АтIVС; К9-1АтIVС; К9-1аАтIVС; К9-2АтIVС; К9-2аАтIVС; К9-3АтIVС; К9-3аАтIVС
3.015-3/82.II-4-7 Колонна К3-5АтIVС; К3-5аАтIVС; К3-8АтIVС; К3-8аАтIVС; К3-9АтIVС; К3-9аАтIVС; К3-10АтIVС; К3-10аАтIVС; К5-6АтIVС; К5-10АтIVС; К5-12АтIVС
3.015-3/82.II-4-8 Колонна К4-2АтIVС; К4-3АтIVС; К4-5АтIVС; К4-6АтIVС; К6-1АтIVС; К6-2АтIVС
3.015-3/82.II-4-9 Колонна К7-1АтIVС; К7-3АтIVС
3.015-3/82.II-4-10 Колонна К8-1АтIVС; К8-2АтIVС; К8-5АтIVС; К8-5аАтIVС; К8-6АтIVС...К8-9АтIVС; К8-11АтIVС...К8-14АтIVС
3.015-3/82.II-4-11 Колонна К8-3АтIVС; К8-4АтIVС; К8-4аАтIVС; К8-10АтIVС; К10-4АтIVС; К10-4аАтIVС; К10-5АтIVС; К10-5аАтIVС; К12-2АтIVС; К12-5АтIVС...К12-7АтIVС; К12-9АтIVС; К12-12АтIVС...К12-14АтIVС; К12-16АтIVС; К12-18АтIVС
3.015-3/82.II-4-12 Колонна К10-1АтIVС; К10-1аАтIVС; К10-6АтIVС; К10-6аАтIVС; К12-1АтIVС; К12-8АтIVС; К12-15АтIVС; К12-17АтIVС
3.015-3/82.II-4-13 Колонна К10-2АтIVС; К10-2аАтIVС; К10-3АтIVС; К10-3аАтIVС; К12-3АтIVС; К12-4АтIVС; К12-10АтIVС; К12-11АтIVС
3.015-3/82.II-4-14 Колонна К11-1АтIVС…К11-8АтIVС; К13-1АтIVС…К13-4АтIVС; К13-3аАтIVС; К13-4аАтIVС; К13-9АтIVС; К13-10АтIVС; К13-13АтIVС; К13-15АтIVС; К13-16АтIVС; К13-16аАтIVС; К13-19АтIVС
3.015-3/82.II-4-15 Колонна К13-5АтIVС...К13-8АтIVС; К13-11АтIVС; К13-12АтIVС; К13-14АтIVС; К13-17АтIVС; К13-18АтIVС; К13-20АтIVС; К13-213АтIVС
3.015-3/82.II-4-16 Колонна К14-1АтIVС; К14-3АтIVС; К14-3аАтIVС; К14-7АтIVС; К14-11АтIVС; К14-12АтIVС; К17-8АтIVС; К17-8аАтIVС
3.015-3/82.II-4-17 Колонна К14-2АтIVС; К14-8АтIVС; К17-9АтIVС; К17-9аАтIVС; К18-9АтIVС; К18-9аАтIVС
3.015-3/82.II-4-18 Колонна К14-4АтIVС; К14-9АтIVС; К17-1АтIVС; К17-1аАтIVС; К17-2АтIVС; К17-2аАтIVС; К17-10АтIVС; К17-10аАтIVС
3.015-3/82.II-4-19 Колонна К14-5АтIVС; К14-5аАтIVС
3.015-3/82.II-4-20 Колонна К14-6АтIVС; К14-10АтIVС; К17-6АтIVС; К17-6аАтIVС; К18-7АтIVС; К18-7аАтIVС
3.015-3/82.II-4-21 Колонна К15-1АтIVС; К15-1аАтIVС
3.015-3/82.II-4-22 Колонна К15-2АтIVС; К15-5АтIVС; К15-5аАтIVС; К15-11АтIVС; К15-11аАтIVС; К15-12АтIVС; К16-1АтIVС; К16-9АтIVС
3.015-3/82.II-4-23 Колонна К15-3АтIVС; К15-3аАтIVС; К16-2АтIVС; К16-6АтIVС; К16-8АтIVС; К16-8аАтIVС; К16-10АтIVС; К16-13АтIVС; К23-1АтIVС; К23-1аАтIVС
3.015-3/82.II-4-24 Колонна К15-4АтIVС; К15-4аАтIVС; К15-8АтIVС; К15-8аАтIVС; К15-13АтIVС; К15-13аАтIVС; К16-3АтIVС; К16-3аАтIVС; К16-15АтIVС; К16-15аАтIVС
3.015-3/82.II-4-25 Колонна К15-6АтIVС; К15-6аАтIVС; К15-10АтIVС; К15-10аАтIVС; К16-4АтIVС; К16-11АтIVС; К20-1АтIVС; К20-1аАтIVС
3.015-3/82.II-4-26 Колонна К15-7АтIVС; К15-7аАтIVС; К15-14АтIVС; К15-14аАтIVС; К16-5АтIVС; К16-12АтIVС; К16-16АтIVС; К16-17АтIVС; К21-1АтIVС; К21-1аАтIVС
3.015-3/82.II-4-27 Колонна К15-9АтIVС; К15-9аАтIVС; К15-15АтIVС; К15-15аАтIVС; К16-7АтIVС; К16-14АтIVС
3.015-3/82.II-4-28 Колонна К17-3АтIVС; К17-3аАтIVС; К17-7АтIVС; К17-7аАтIVС; К18-3АтIVС; К18-12АтIVС
3.015-3/82.II-4-29 Колонна К17-4АтIVС; К17-4аАтIVС; К17-5АтIVС; К17-5аАтIVС; К18-5АтIVС; К18-5аАтIVС; К18-6АтIVС; К18-6аАтIVС; К18-8АтIVС; К18-14АтIVС; К19-2АтIVС; К19-3АтIVС
3.015-3/82.II-4-30 Колонна К18-1АтIVС; К18-2АтIVС; К18-4АтIVС; К18-10АтIVС; К18-11АтIVС; К18-13АтIVС; К18-15АтIVС; К18-16АтIVС; К19-1АтIVС; К19-1аАтIVС
3.015-3/82.II-4-31 Колонна К22-1АтIVС; К22-1аАтIVС
3.015-3/82.II-4-32 Траверса Тн3-1АIVС…Тн3-3АтIVС
3.015-3/82.II-4-33 Траверса Тн6-1аАIVС; Тн6-1бАтIVС
3.015-3/82.II-4-34 Траверса Тв1-3АIVС; Тв2-4АтIVС; Тв5-2АтIVС
3.015-3/82.II-4-35 Траверса Тв8-2АIVС; Тв9-2АтIVС…Тв9-4АтIVС
3.015-3/82.II-4-РС Ведомость расхода стали на элемент, кг
Разработан: Харьковский Промстройниипроект
Утверждён:20.01.1989 Госстрой СССР (Государственный комитет Совета Министров СССР по делам строительства) (USSR Gosstroy 4/6-108)
Расположен в:Техническая документация Строительство Справочные документы Типовые строительные конструкции, изделия и узлы Общероссийский строительный каталог Строительные конструкции, изделия и узлы зданий и сооружений для всех видов строительства Конструкции и изделия сооружений и оборудования зданий Надземные сооружения Опоры и эстакады под технологические трубопроводы
Чем заменён:
Серия 3.015-3/82Серия 3.015-3/82Серия 3.015-3/82Серия 3.015-3/82Серия 3.015-3/82Серия 3.015-3/82Серия 3.015-3/82Серия 3.015-3/82Серия 3.015-3/82Серия 3.015-3/82Серия 3.015-3/82Серия 3.015-3/82Серия 3.015-3/82Серия 3.015-3/82Серия 3.015-3/82Серия 3.015-3/82Серия 3.015-3/82Серия 3.015-3/82Серия 3.015-3/82Серия 3.015-3/82Серия 3.015-3/82Серия 3.015-3/82Серия 3.015-3/82Серия 3.015-3/82Серия 3.015-3/82Серия 3.015-3/82Серия 3.015-3/82Серия 3.015-3/82Серия 3.015-3/82Серия 3.015-3/82Серия 3.015-3/82Серия 3.015-3/82Серия 3.015-3/82Серия 3.015-3/82Серия 3.015-3/82Серия 3.015-3/82Серия 3.015-3/82Серия 3.015-3/82Серия 3.015-3/82Серия 3.015-3/82Серия 3.015-3/82Серия 3.015-3/82Серия 3.015-3/82Серия 3.015-3/82Серия 3.015-3/82Серия 3.015-3/82Серия 3.015-3/82Серия 3.015-3/82Серия 3.015-3/82Серия 3.015-3/82Серия 3.015-3/82Серия 3.015-3/82Серия 3.015-3/82Серия 3.015-3/82Серия 3.015-3/82Серия 3.015-3/82Серия 3.015-3/82Серия 3.015-3/82Серия 3.015-3/82Серия 3.015-3/82Серия 3.015-3/82

© 2013 Ёшкин Кот :-) Карта сайта