Информационная система
«Ёшкин Кот»

Скачать базу одним архивом
Скачать обновления
История создания базы
Карта сайта

Скачать Типовой проект 903-1-241.87 Альбом X. Блоки тепломеханического оборудования

Дата актуализации: 10.08.2017

Типовой проект 903-1-241.87

Альбом X. Блоки тепломеханического оборудования

Обозначение: Типовой проект 903-1-241.87
Обозначение англ: 903-1-241.87
Статус:заменен
Название рус.:Альбом X. Блоки тепломеханического оборудования
Дата добавления в базу:01.09.2013
Дата актуализации:05.05.2017
Дата введения:01.06.1992
Оглавление:Содержание альбома
Общие данные
Главный корпус. Блок холодильника отбора проб поз. I-К9, II-К17. Общий вид. Спецификация. Ведомость теплоизоляционных конструкций
Главный корпус. Блок деаэрационно-питательной установки поз. II-К13. Схема. Разрез 2-2. Вид А и Б
Главный корпус. Блок деаэрационно-питательной установки поз. II-К13. Вид сверху. Разрез 1-1
Главный корпус. Блок деаэрационно-питательной установки поз. II-К13. Спецификация
Главный корпус. Блок деаэрационно-питательной установки поз. II-К13. Ведомость теплоизоляционных конструкций
Главный корпус. Блок питательных насосов поз. II-К14. Схема. Ведомость теплоизоляционных конструкций. Вид А
Главный корпус. Блок питательных насосов поз. II-К14. Общий вид. Спецификация
Главный корпус. Блок редукционной установки поз. II-К15. Схема. Общий вид
Главный корпус. Блок редукционной установки поз. II-К15. Спецификация. Ведомость теплоизоляционных конструкций
Главный корпус. Блок сепаратора непрерывной продувки поз. II-К16. Схема. Ведомость теплоизоляционных конструкций
Главный корпус. Блок сепаратора непрерывной продувки поз. II-К16. Общий вид. Спецификация
Главный корпус. Блок подогревателей сетевой воды поз. III-К18. Схема. Спецификация
Главный корпус. Блок подогревателей сетевой воды поз. III-К18. Общий вид
Главный корпус. Блок подогревателей сетевой воды поз. III-К18. Ведомость теплоизоляционных конструкций
Главный корпус. Блок сетевых насосов поз. III-К19. Схема. Общий вид
Главный корпус. Блок сетевых насосов поз. III-К19. Спецификация. Ведомость теплоизоляционных конструкций. Вид А
Главный корпус. Блок подпиточной воды поз. III-К21. Схема. Ведомость теплоизоляционных конструкций. Вид А
Главный корпус. Блок подпиточной воды поз. III-К21. Общий вид. Спецификация
Главный корпус. Блок эжекторов вакуумного деаэратора поз. IV-К24. Схема. Общий вид. Спецификация. Ведомость теплоизоляционных конструкций
Главный корпус. Блок подогревателей горячего водоснабжения поз. IV-К25. Схема. Ведомость теплоизоляционных конструкций
Главный корпус. Блок подогревателей горячего водоснабжения поз. IV-К25. Общий вид. Спецификация
Главный корпус. Блок насосов горячего водоснабжения поз. IV-К27. Схема. Общий вид
Главный корпус. Блок насосов горячего водоснабжения поз. IV-К27. Спецификация. Ведомость теплоизоляционных конструкций. Вид А
Главный корпус. Блок рабочей воды поз. IV-К28. Схема. Общий вид
Главный корпус. Блок рабочей воды поз. IV-К28. Спецификация. Ведомость теплоизоляционных конструкций
Главный корпус. Блок антирелаксационный БА-25 поз. IV-К29. Схема. Общий вид. Спецификация. Ведомость теплоизоляционных конструкций
Главный корпус. Блок подготовки перегретой воды поз. IV-К31. Схема. Ведомость теплоизоляционных конструкций
Главный корпус. Блок подготовки перегретой воды поз. IV-К31. Общий вид. Спецификация
Главный корпус. Блок Na-катионитных фильтров поз. V-А1. Схема. Вид А
Главный корпус. Блок Na-катионитных фильтров поз. V-А1. Общий вид. Спецификация
Главный корпус. Блок подготовки исходной воды поз. V-А2. Схема. Ведомость теплоизоляционных конструкций
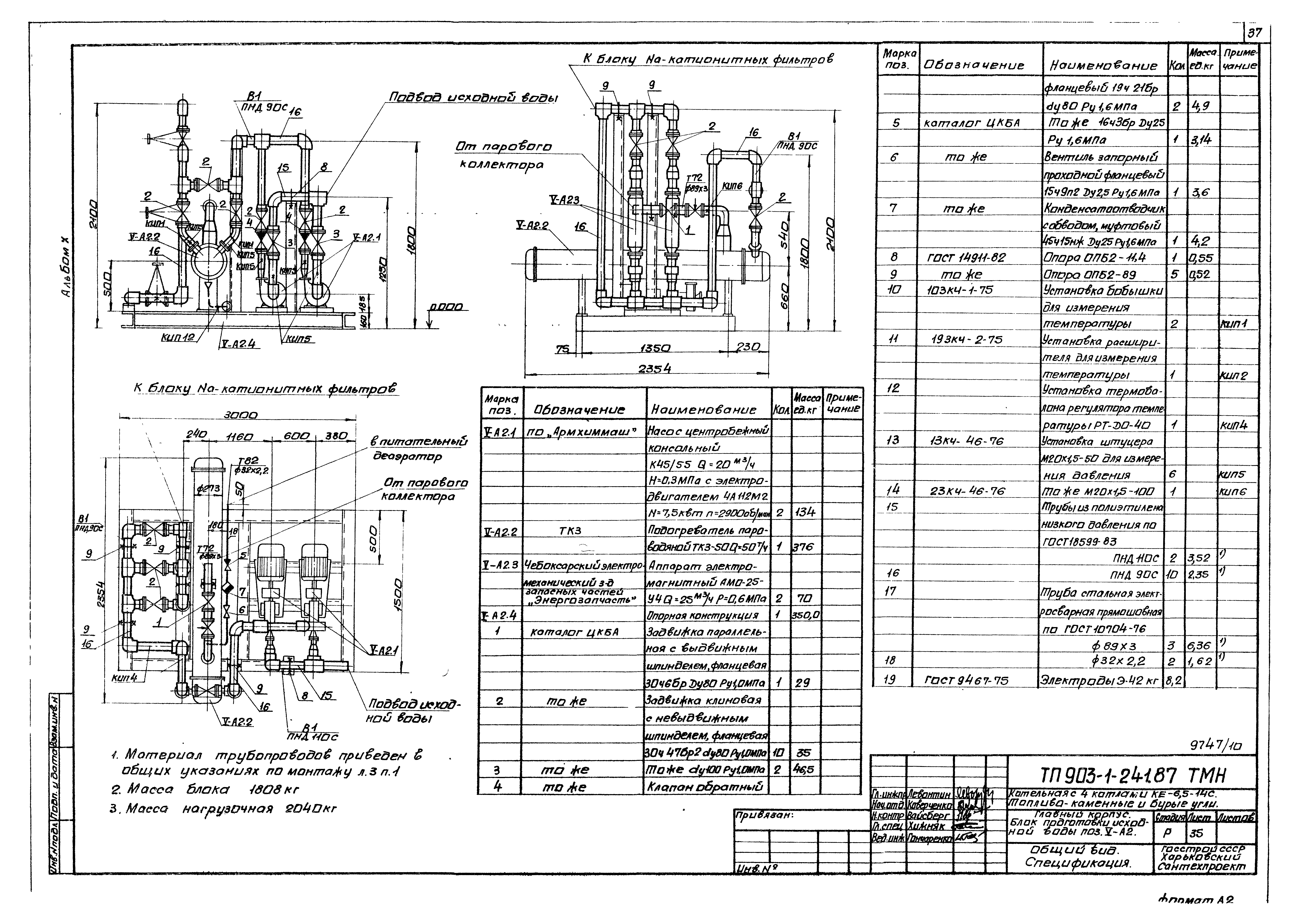
Главный корпус. Блок подготовки исходной воды поз. V-А2. Общий вид. Спецификация
Главный корпус. Блок приготовления регенерационного раствора поз. V-А3. Схема. Общий вид. Разрез 1-1
Главный корпус. Блок приготовления регенерационного раствора поз. V-А3. Спецификация. Ведомость теплоизоляционных конструкций
Главный корпус. Блок отмывочных вод поз. V-А4. Схема. Общий вид. Спецификация. Вид А
Главный корпус. Блок нитратирования химобработанной воды поз. V-А5. Общий вид. Схема. Спецификация
Главный корпус. Блок Na-катионитного фильтра III ступени поз. V-А6. Схема. Общий вид. Спецификация
Разработан: Харьковский Сантехпроект
Утверждён:09.06.1987 Госстрой СССР (Государственный комитет Совета Министров СССР по делам строительства) (USSR Gosstroy АЧ-58)
Расположен в:Техническая документация Строительство Справочные документы Типовые строительные конструкции, изделия и узлы Общероссийский строительный каталог Промышленные предприятия, здания и сооружения Здания и сооружения санитарно-технические Теплоснабжение Котельные установки Закрытые системы теплоснабжения Топливо - каменные и бурые угли
Заменяет собой:
Чем заменён:
Типовой проект 903-1-241.87Типовой проект 903-1-241.87Типовой проект 903-1-241.87Типовой проект 903-1-241.87Типовой проект 903-1-241.87Типовой проект 903-1-241.87Типовой проект 903-1-241.87Типовой проект 903-1-241.87Типовой проект 903-1-241.87Типовой проект 903-1-241.87Типовой проект 903-1-241.87Типовой проект 903-1-241.87Типовой проект 903-1-241.87Типовой проект 903-1-241.87Типовой проект 903-1-241.87Типовой проект 903-1-241.87Типовой проект 903-1-241.87Типовой проект 903-1-241.87Типовой проект 903-1-241.87Типовой проект 903-1-241.87Типовой проект 903-1-241.87Типовой проект 903-1-241.87Типовой проект 903-1-241.87Типовой проект 903-1-241.87Типовой проект 903-1-241.87Типовой проект 903-1-241.87Типовой проект 903-1-241.87Типовой проект 903-1-241.87Типовой проект 903-1-241.87Типовой проект 903-1-241.87Типовой проект 903-1-241.87Типовой проект 903-1-241.87Типовой проект 903-1-241.87Типовой проект 903-1-241.87Типовой проект 903-1-241.87Типовой проект 903-1-241.87Типовой проект 903-1-241.87Типовой проект 903-1-241.87Типовой проект 903-1-241.87Типовой проект 903-1-241.87Типовой проект 903-1-241.87Типовой проект 903-1-241.87Типовой проект 903-1-241.87

© 2013 Ёшкин Кот :-) Карта сайта