Информационная система
«Ёшкин Кот»

Скачать базу одним архивом
Скачать обновления
История создания базы
Карта сайта

Скачать Типовой проект 903-1-241.87 Альбом VI. Конструкции железобетонные

Дата актуализации: 10.08.2017

Типовой проект 903-1-241.87

Альбом VI. Конструкции железобетонные

Обозначение: Типовой проект 903-1-241.87
Обозначение англ: 903-1-241.87
Статус:заменен
Название рус.:Альбом VI. Конструкции железобетонные
Дата добавления в базу:01.09.2013
Дата актуализации:05.05.2017
Дата введения:01.06.1992
Оглавление:Главный корпус
   Общие данные
   Схема расположения фундаментов и фундаментных балок
   Узел I…VI, XIII…XVI
   Узел VII…XII
   Фундамент монолитный Фм1…Фм4
   Фундамент монолитный Фм5, Фм6, Фм9, Фм10
   Фундамент монолитный Фм7, Фм8, Фм11
   Схема расположения фундаментов под оборудование
   Фундамент под оборудование ФО7…ФО15
   Канал Клм2 и приямок Прм1
   Канал золошлакоудаления
   Электротехническое помещение на отм. 0.000
   Элемент плана №1, №2. Вариант I и II
   Схема расположения колонн. Схема расположения ригелей на отм. 3.600
   Схема расположения ригелей на отм. 7.200. Схема расположения балок на отм. 10.800
   Схема расположения колонн, ригелей и балок покрытия. Разрезы
   Схема расположения колонн, ригелей и балок покрытия. Узел I…VII
   Схема расположения плит перекрытия на отм. 3.600
   Схема расположения соединительных изделий и отверстий в перекрытии на отм. 3.600
   Схема расположения плит перекрытия на отм. 7.200
   Схема расположения плит покрытия на отм. 10.800
   Схема расположения плит элементов крепления трубопроводов на отм. 10.800
   Схема расположения плит покрытия на отм. 14.300 и 14.600. Схема расположения элементов лестницы
   Схема расположения перегородок на отм. 0.000; 3.600; 7.200
   Схема расположения перегородок. Сечения
   Схема расположения перегородок. Сечения и узлы
   Схема расположения стеновых панелей из легкого бетона
   Спецификация к схеме расположения стеновых панелей из легкого бетона
   Схема расположения стеновых панелей из арболита
   Спецификация к схеме расположения стеновых панелей из арболита
   Схема расположения стеновых панелей. Фрагмент 1…10, 20…22
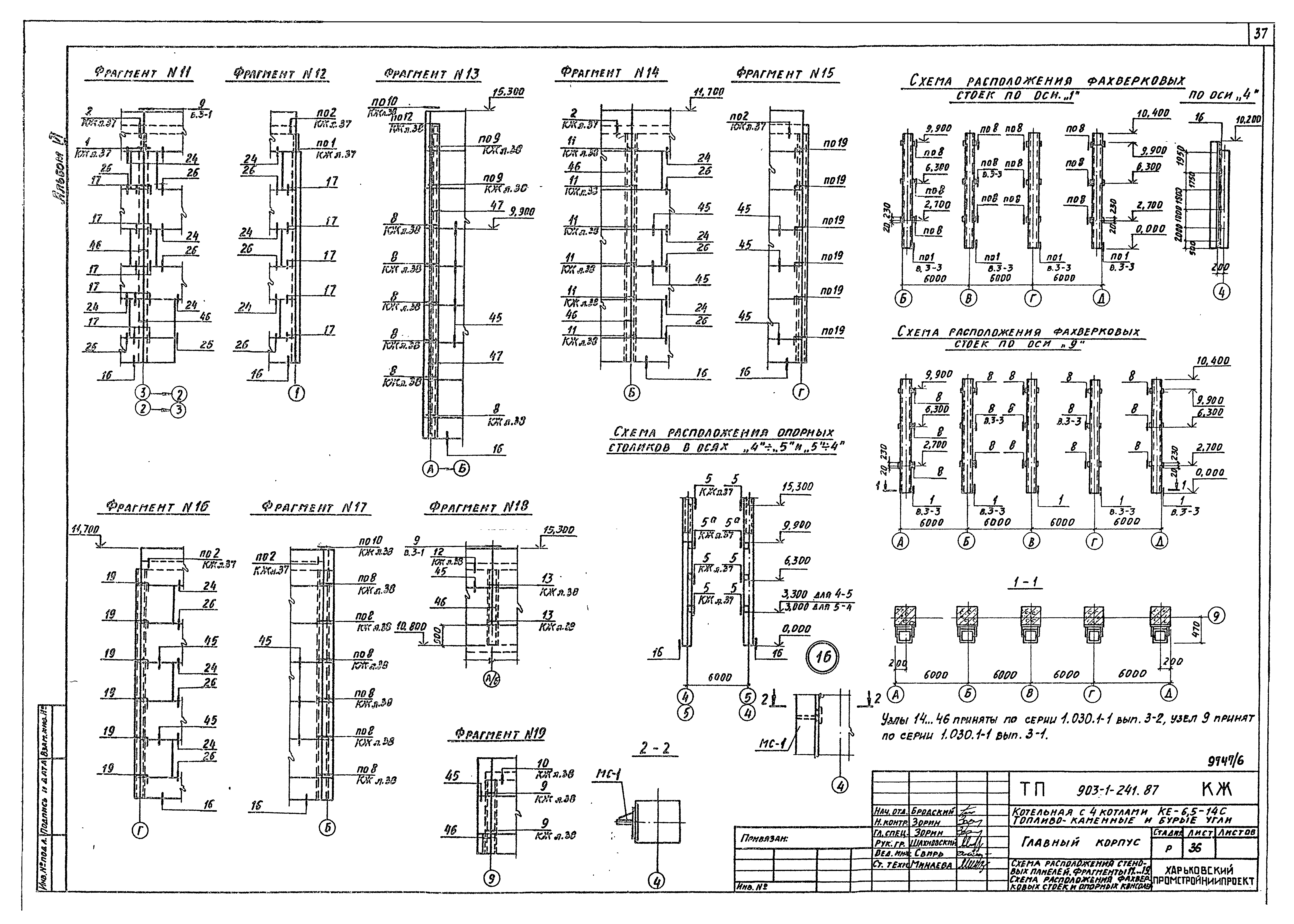
   Схема расположения стеновых панелей. Фрагмент 11…19. Схема расположения фахверковых стоек и опорных консолей
   Схема расположения стеновых панелей. Узел 1…6. Спецификация деталей крепления стеновых панелей
   Схема расположения стеновых панелей. Узел 7…15
   Покрытие. Участок монолитный Ум1, Ум4, Ум5. Опалубка
   Покрытие. Участок монолитный Ум1, Ум2. Армирование
   Покрытие. Участок монолитный Ум1, Ум2, Ум4, Ум5. Спецификация
   Покрытие. Участок монолитный Ум2, Ум3. Узел I, II. Опалубка
   Покрытие. Участок монолитный Ум3. Опалубка
   Покрытие. Участок монолитный Ум3. Армирование
   Покрытие. Участок монолитный Ум3. Спецификация
   Перекрытие на отм. 7.200. Участок монолитный Ум7. Опалубка
   Перекрытие на отм. 7.200. Участок монолитный Ум7. Армирование
   Перекрытие на отм. 3.600. Участок монолитный Ум8. Опалубка. Вариант: каменные угли
   Перекрытие на отм. 3.600. Участок монолитный Ум8. Армирование. Вариант: каменные угли
   Перекрытие на отм. 3.600. Участок монолитный Ум9. Опалубка. Вариант: бурые угли
   Перекрытие на отм. 3.600. Участок монолитный Ум9. Армирование. Вариант: бурые угли
   Перекрытие на отм. 3.600. Участок монолитный Ум10
   Перекрытие на отм. 3.600. Участок монолитный Ум11, Ум12
   Площадка монолитная ПМ1…ПМ4
Главный корпус. Приемно-дробильное отделение
   Дробилка ВДГ-10, ВДП-15. Схема расположения плит на отм. 1.970. Опалубка
   Дробилка ВДГ-10, ВДП-15. Плита перекрытия Пм2 и Пм3 на отм. - 1.080. Опалубка
   Дробилка ВДГ-10, ВДП-15. Плита днища Пм1. Сечения 1-1…7-7. Опалубка
   Дробилка ВДГ-10, ВДП-15. Участок монолитный Ум1…Ум3 на отм. 1.970. Балка Бм1
   Дробилка ВДГ-10. Плита перекрытия Пм2 на отм. - 1.080. Армирование
   Дробилка ВДП-15. Плита перекрытия Пм3 на отм. - 1.080. Армирование
   Дробилка ВДГ-10, ВДП-15. Плита днища Пм1, стены. Армирование
   Дробилка ВДГ-10, ВДП-15. Стены. Армирование
   Дробилка ВДГ-10, ВДП-15. Спецификация
   Дробилка ВДГ-10, ВДП-15. Ведомость деталей и расхода стали
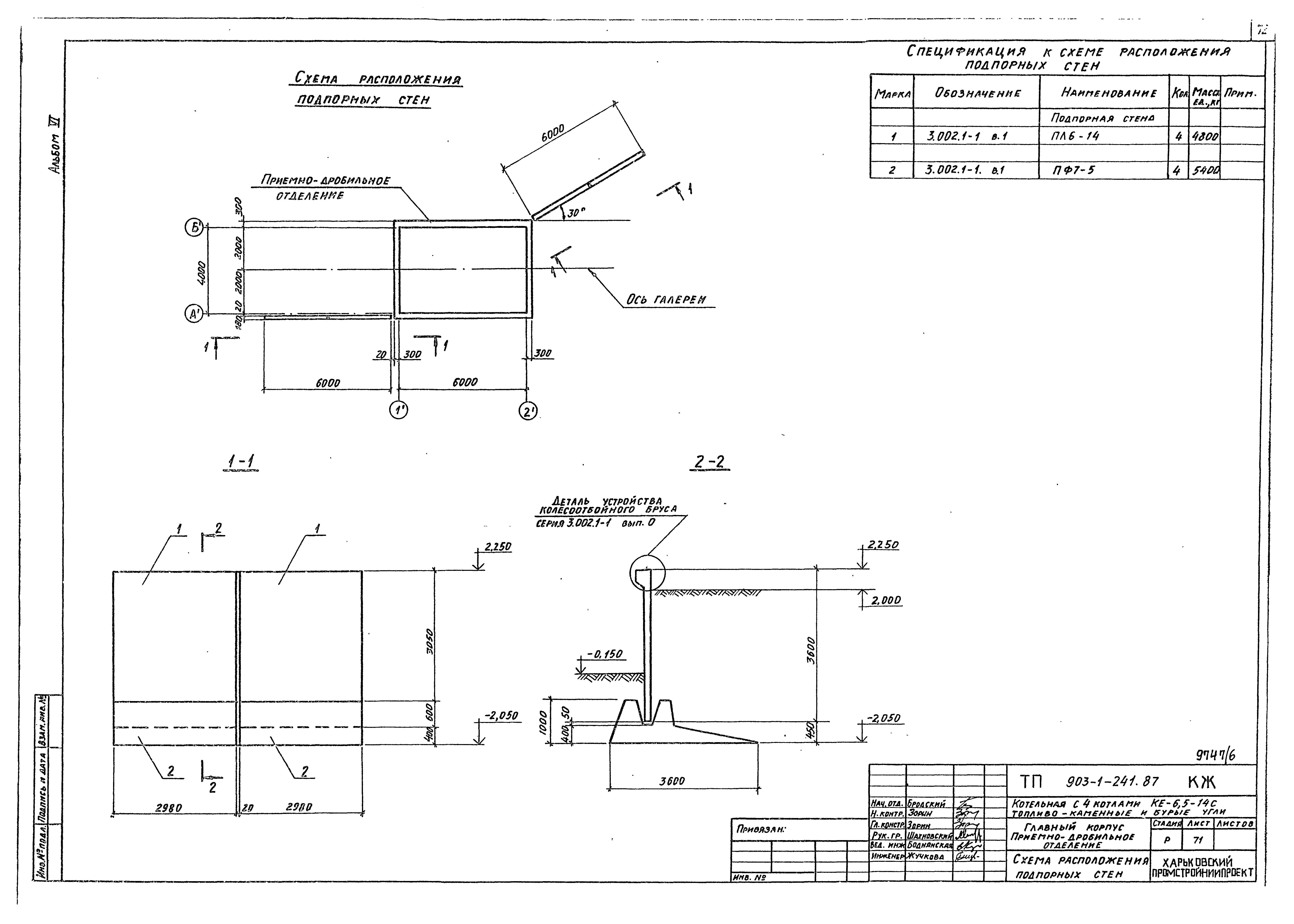
   Схема расположения подпорных стенок
Главный корпус. Галерея топливоподачи
   Схема расположения фундаментов и стоек
   Спецификация к схеме расположения конструктивных элементов
   Схема расположения плит перекрытия и стеновых панелей
   Участок монолитный Ум1. Опалубка
   Участок монолитный Ум1. Армирование
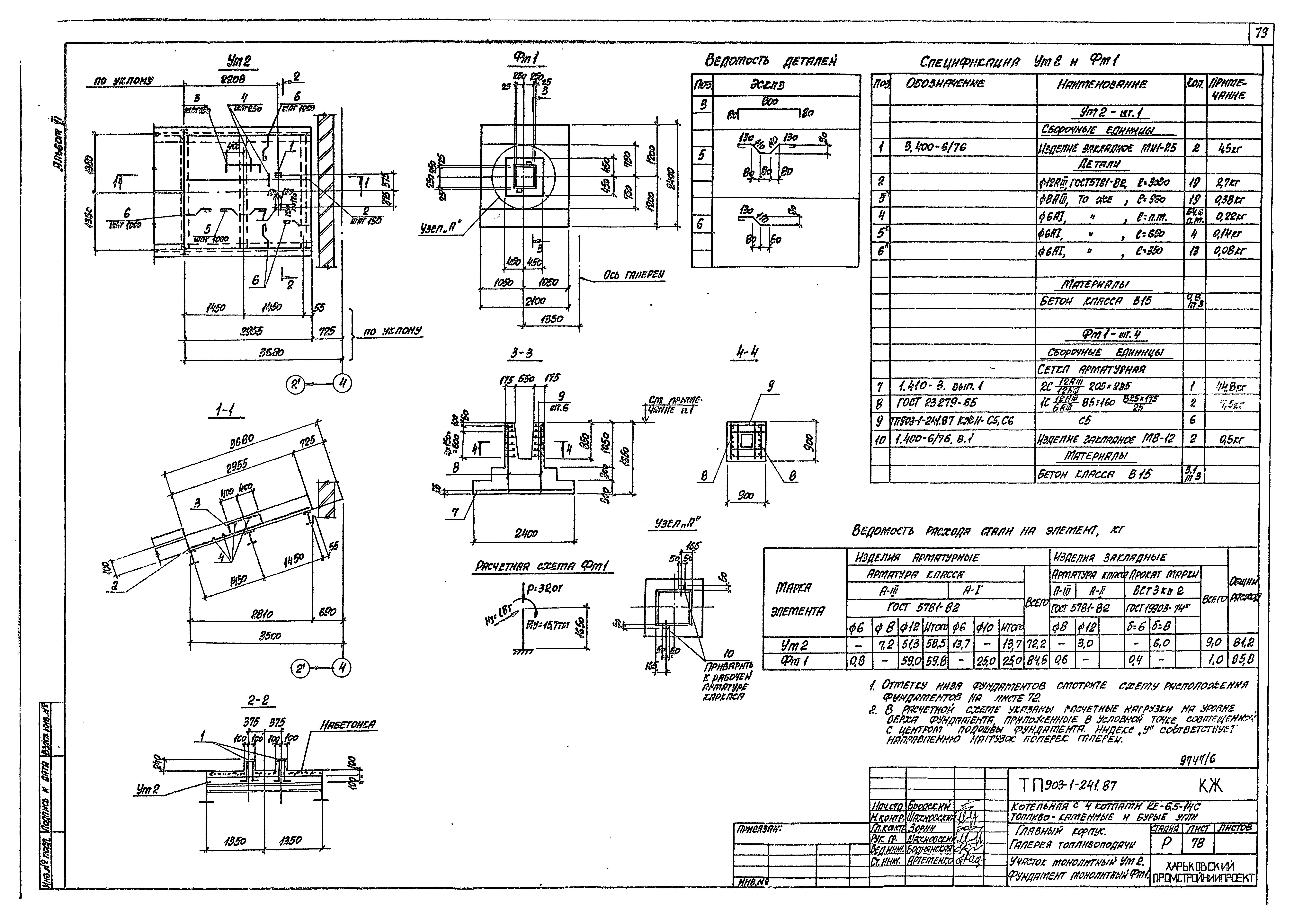
   Участок монолитный Ум2. Фундамент монолитный Фм1
Главный корпус. Баки-аккумуляторы
   Схема расположения фундаментов
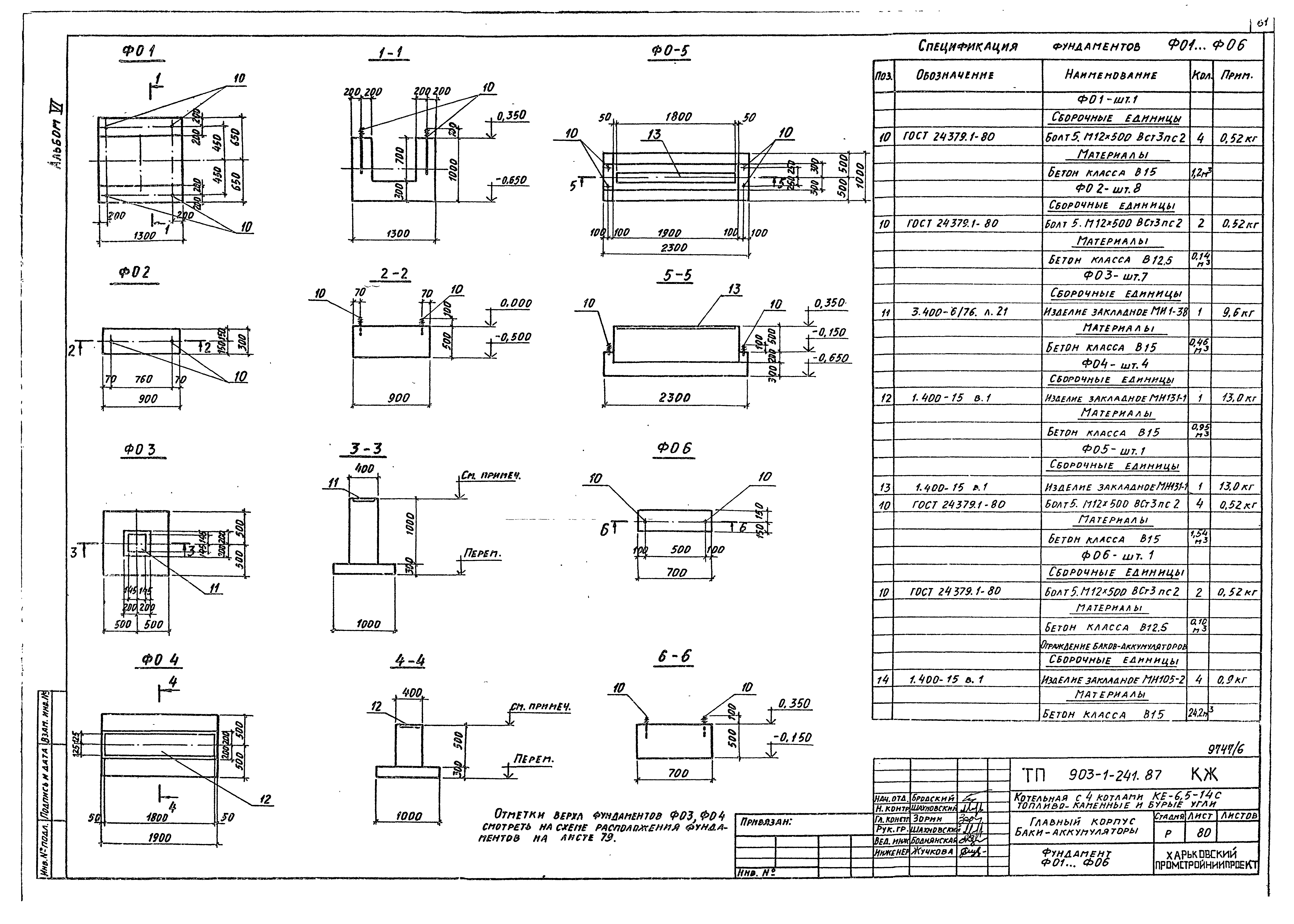
   Фундамент Фо1…Фо6
   Канал Клм1
Главный корпус. Продувочный колодец
   Схема расположения конструктивных элементов
   Схема армирования
Главный корпус. Бункер мокрого хранения соли
   Схема расположения конструктивных элементов
   Схема расположения плит покрытия
   Плита днища Пдм1, Пдм2. Пояс монолитный Пм1. Армирование
Главный корпус. Газоходы
   Схема расположения конструктивных элементов
   Сечения 1-1…3-3. Элемент плана №1
   Участок монолитный Ум1…Ум3
Разработан: Харьковский Промстройниипроект
Утверждён:09.06.1987 Госстрой СССР (Государственный комитет Совета Министров СССР по делам строительства) (USSR Gosstroy АЧ-58)
Расположен в:Техническая документация Строительство Справочные документы Типовые строительные конструкции, изделия и узлы Общероссийский строительный каталог Промышленные предприятия, здания и сооружения Здания и сооружения санитарно-технические Теплоснабжение Котельные установки Закрытые системы теплоснабжения Топливо - каменные и бурые угли
Заменяет собой:
Чем заменён:
Типовой проект 903-1-241.87Типовой проект 903-1-241.87Типовой проект 903-1-241.87Типовой проект 903-1-241.87Типовой проект 903-1-241.87Типовой проект 903-1-241.87Типовой проект 903-1-241.87Типовой проект 903-1-241.87Типовой проект 903-1-241.87Типовой проект 903-1-241.87Типовой проект 903-1-241.87Типовой проект 903-1-241.87Типовой проект 903-1-241.87Типовой проект 903-1-241.87Типовой проект 903-1-241.87Типовой проект 903-1-241.87Типовой проект 903-1-241.87Типовой проект 903-1-241.87Типовой проект 903-1-241.87Типовой проект 903-1-241.87Типовой проект 903-1-241.87Типовой проект 903-1-241.87Типовой проект 903-1-241.87Типовой проект 903-1-241.87Типовой проект 903-1-241.87Типовой проект 903-1-241.87Типовой проект 903-1-241.87Типовой проект 903-1-241.87Типовой проект 903-1-241.87Типовой проект 903-1-241.87Типовой проект 903-1-241.87Типовой проект 903-1-241.87Типовой проект 903-1-241.87Типовой проект 903-1-241.87Типовой проект 903-1-241.87Типовой проект 903-1-241.87Типовой проект 903-1-241.87Типовой проект 903-1-241.87Типовой проект 903-1-241.87Типовой проект 903-1-241.87Типовой проект 903-1-241.87Типовой проект 903-1-241.87Типовой проект 903-1-241.87Типовой проект 903-1-241.87Типовой проект 903-1-241.87Типовой проект 903-1-241.87Типовой проект 903-1-241.87Типовой проект 903-1-241.87Типовой проект 903-1-241.87Типовой проект 903-1-241.87Типовой проект 903-1-241.87Типовой проект 903-1-241.87Типовой проект 903-1-241.87Типовой проект 903-1-241.87Типовой проект 903-1-241.87Типовой проект 903-1-241.87Типовой проект 903-1-241.87Типовой проект 903-1-241.87Типовой проект 903-1-241.87Типовой проект 903-1-241.87Типовой проект 903-1-241.87Типовой проект 903-1-241.87Типовой проект 903-1-241.87Типовой проект 903-1-241.87Типовой проект 903-1-241.87Типовой проект 903-1-241.87Типовой проект 903-1-241.87Типовой проект 903-1-241.87Типовой проект 903-1-241.87Типовой проект 903-1-241.87Типовой проект 903-1-241.87Типовой проект 903-1-241.87Типовой проект 903-1-241.87Типовой проект 903-1-241.87Типовой проект 903-1-241.87Типовой проект 903-1-241.87Типовой проект 903-1-241.87Типовой проект 903-1-241.87Типовой проект 903-1-241.87Типовой проект 903-1-241.87Типовой проект 903-1-241.87Типовой проект 903-1-241.87Типовой проект 903-1-241.87Типовой проект 903-1-241.87Типовой проект 903-1-241.87Типовой проект 903-1-241.87Типовой проект 903-1-241.87Типовой проект 903-1-241.87Типовой проект 903-1-241.87Типовой проект 903-1-241.87Типовой проект 903-1-241.87

© 2013 Ёшкин Кот :-) Карта сайта