Информационная система
«Ёшкин Кот»

Скачать базу одним архивом
Скачать обновления
История создания базы
Карта сайта

Скачать Серия Б1.020.1-7 Выпуск 6-1. Узлы сопряжений элементов каркаса

Дата актуализации: 10.08.2017

Серия Б1.020.1-7

Выпуск 6-1. Узлы сопряжений элементов каркаса

Обозначение: Серия Б1.020.1-7
Обозначение англ: Series Б1.020.1-7
Статус:не определен законодательством
Название рус.:Выпуск 6-1. Узлы сопряжений элементов каркаса
Дата добавления в базу:01.09.2013
Дата актуализации:05.05.2017
Дата введения:28.04.1999
Оглавление:Б1.020.1-7 6-1 ОД Общие данные
Б1.020.1-7 6-1 01 Заделка колонн. Узлы 1 - 3, 1 - 4
Б1.020.1-7 6-1 02 Стык колонн. Узлы 2 - 3, 2 - 4
Б1.020.1-7 6-1 03 Диафрагмы. Узлы 5 - 3, 5 - 4
Б1.020.1-7 6-1 04 Диафрагмы. Узлы 6, 28 - 3, 28 - 4, 29
Б1.020.1-7 6-1 05 Лестницы. Узел 39 - 3
Б1.020.1-7 6-1 06 Лестницы. Узел 39 - 4
Б1.020.1-7 6-1 07 Лестницы. Узлы 48, 49, 50, 51, 52, 53
Б1.020.1-7 6-1 08 Перекрытие. Узлы 90 - 3, 90 - 4, 91
Б1.020.1-7 6-1 09 Перекрытие. Узлы 92 - 3, 92 - 4, 93 - 3, 93 - 4
Б1.020.1-7 6-1 10 Сопряжение ригелей с колоннами. Узлы 94 - 3, 94 - 4, 95 - 3, 95 - 4
Б1.020.1-7 6-1 11 Сопряжение диафрагм с перекрытием. Узлы 96 - 3, 96 - 4, 97
Б1.020.1-7 6-1 12 Перекрытие. Узлы 98 - 3, 98 - 4, 99 - 3, 99 - 4, 100 - 3, 100 - 4, 101
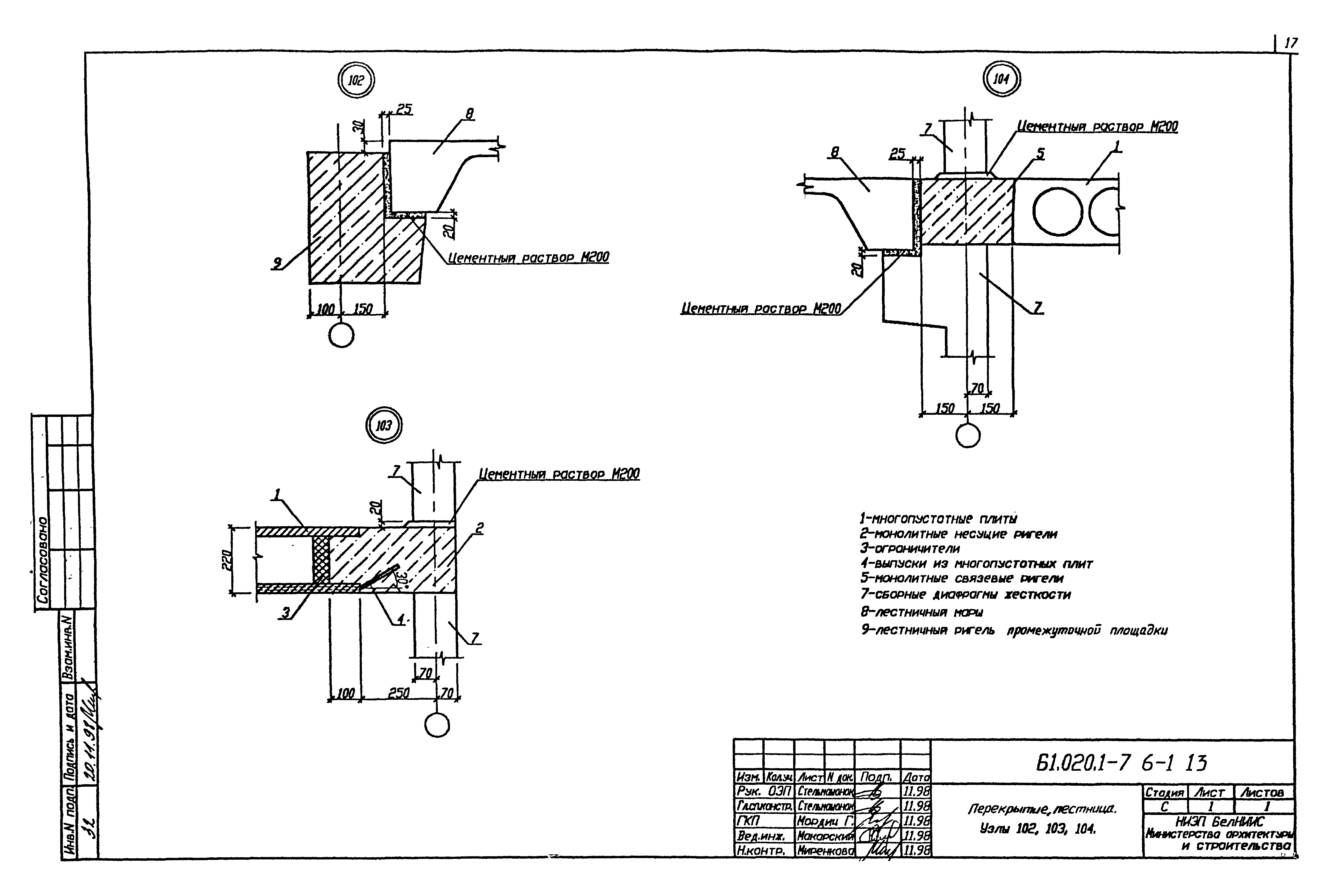
Б1.020.1-7 6-1 13 Перекрытие, лестница. Узлы 102, 103, 104
Б1.020.1-7 6-1 14 Перекрытие, лестница. Узлы 105, 106, 107
Б1.020.1-7 6-1 15 Перекрытие, лестница. Узлы 108, 109
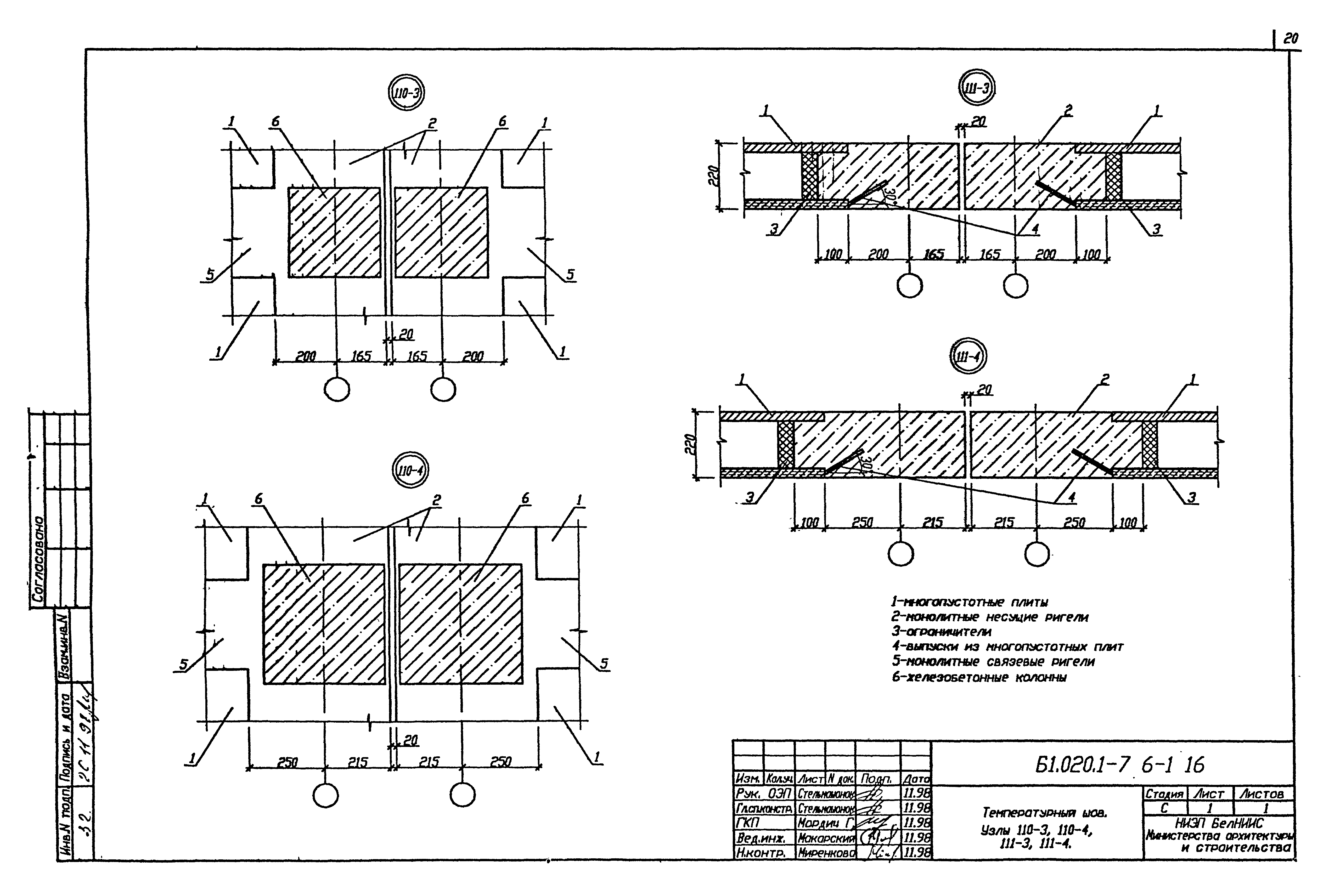
Б1.020.1-7 6-1 16 Температурный шов. Узлы 110 - 3, 110 - 4, 111 - 3, 111 - 4
Б1.020.1-7 6-1 17 Перекрытие. Узлы 112 - 3, 112 - 4, 113
Б1.020.1-7 6-1 18 Изделия соединительные ИМ1, МС-50, КР1, КР2
Б1.020.1-7 6-1 19 Спецификация
Разработан: НИЭП ГП БелНИИС
Утверждён:31.03.1999 Министерство архитектуры и строительства Республики Беларусь (79)
Расположен в:Техническая документация Строительство Справочные документы Типовые строительные конструкции, изделия и узлы Разработанные другими министерствами, ведомствами и организациями
Серия Б1.020.1-7Серия Б1.020.1-7Серия Б1.020.1-7Серия Б1.020.1-7Серия Б1.020.1-7Серия Б1.020.1-7Серия Б1.020.1-7Серия Б1.020.1-7Серия Б1.020.1-7Серия Б1.020.1-7Серия Б1.020.1-7Серия Б1.020.1-7Серия Б1.020.1-7Серия Б1.020.1-7Серия Б1.020.1-7Серия Б1.020.1-7Серия Б1.020.1-7Серия Б1.020.1-7Серия Б1.020.1-7Серия Б1.020.1-7Серия Б1.020.1-7Серия Б1.020.1-7Серия Б1.020.1-7Серия Б1.020.1-7Серия Б1.020.1-7

© 2013 Ёшкин Кот :-) Карта сайта