Скачать Серия ИИ24-6 Железобетонные плиты для перекрытий типа 2, с опиранием на ригели прямоугольного сечения (армированные сталью классов А-V, Ат-V, Ат-VI и прядями класса П-7)Дата актуализации: 10.08.2017 Серия ИИ24-6
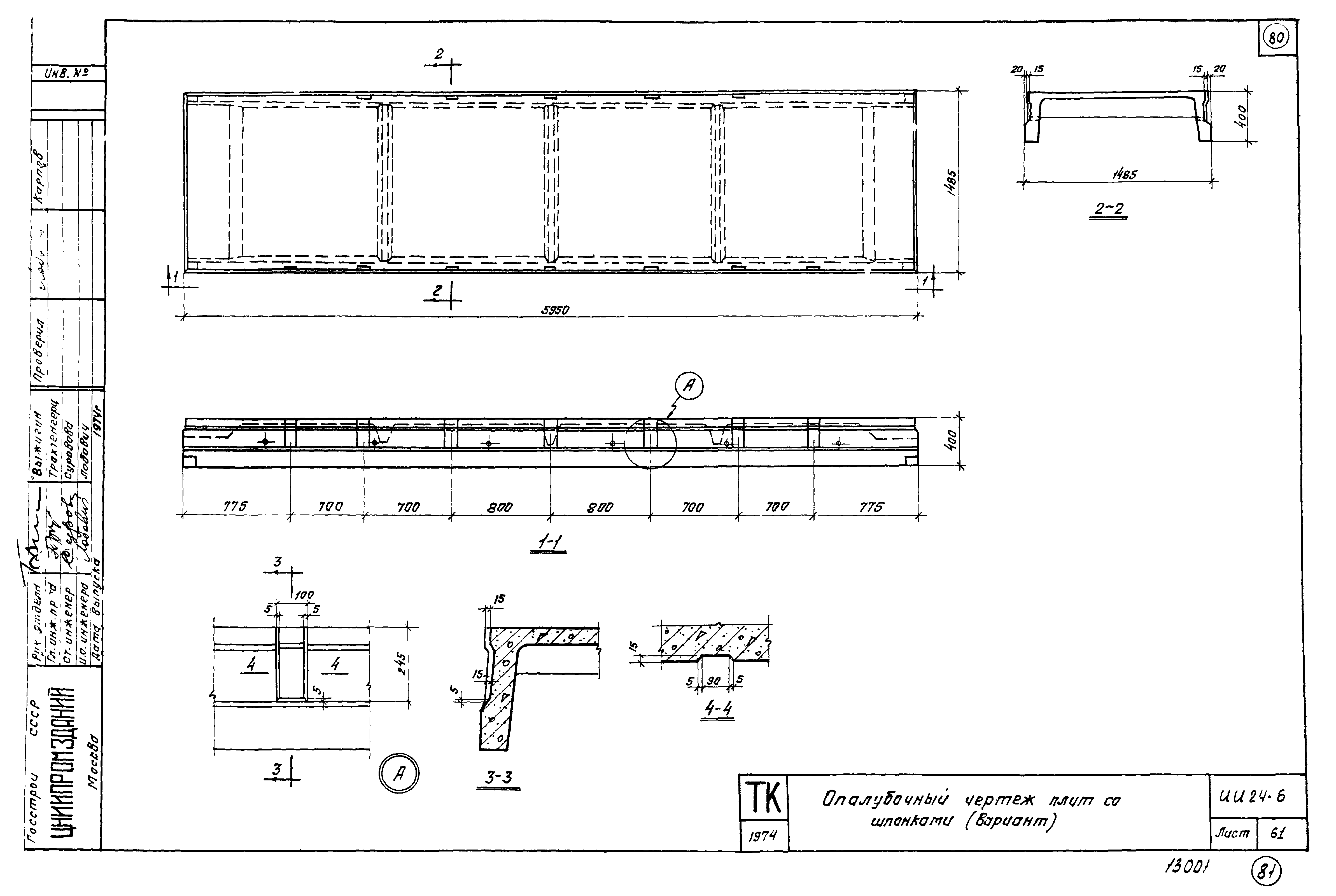
Железобетонные плиты для перекрытий типа 2, с опиранием на ригели прямоугольного сечения (армированные сталью классов А-V, Ат-V, Ат-VI и прядями класса П-7)Обозначение: | Серия ИИ24-6 | Обозначение англ: | Series ИИ24-6 | Статус: | заменен | Название рус.: | Железобетонные плиты для перекрытий типа 2, с опиранием на ригели прямоугольного сечения (армированные сталью классов А-V, Ат-V, Ат-VI и прядями класса П-7) | Дата добавления в базу: | 01.09.2013 | Дата актуализации: | 05.05.2017 | Дата введения: | 01.02.1983 | Оглавление: | Пояснительная записка Показатели на одну плиту Рядовая плита и рядовая плита у температурного шва. Опалубочный чертеж Межколонная плита. Опалубочный чертеж Межколонная плита с отверстием. Опалубочный чертеж Межколонная плита у температурного шва. Опалубочный чертеж Спецификация марок закладных деталей на одну плиту Рядовая плита и рядовая плита у температурного шва. Армирование Межколонная плита. Армирование Межколонная плита с отверстием. Армирование Межколонная плита с отверстием. Деталь плана. Армирование Межколонная плита у температурного шва. Армирование Узлы 1 - 17 Расположение напрягаемой арматуры всех классов Спецификации марок арматурных изделий на одну плиту Каркасы КР1 - КР15 Сетки С1 - С22 Закладные детали М1 - М11. Составная позиция СП-1 Поз. 80, 83, 85, 88, 89, 92, 100 - 104, 106 - 110. Спецификация стали на одно арматурное изделие и на одну заготовку закладной детали Перечень позиций на одну плиту Спецификация арматурных изделий и закладных деталей на альбом Выборка стали на одну плиту Пример образования отверстий в плитах перекрытия Пример образования отверстий в плитах перекрытия. Детали плана 1 и 2. Сетки Опалубочный чертеж плит со шпонками (Вариант) | Разработан: | ЦНИИпромзданий НИИСК НИИЖБ
| Утверждён: | 11.07.1974 Госстрой СССР (Государственный комитет Совета Министров СССР по делам строительства) (USSR Gosstroy 146)
| Расположен в: |
| Чем заменён: | |
                                                                               
|