Информационная система
«Ёшкин Кот»

Скачать базу одним архивом
Скачать обновления
История создания базы
Карта сайта

Скачать Типовой проект 902-3-35.84 Альбом II. Технологическая и электротехническая части. Задания заводу-изготовителю

Дата актуализации: 10.08.2017

Типовой проект 902-3-35.84

Альбом II. Технологическая и электротехническая части. Задания заводу-изготовителю

Обозначение: Типовой проект 902-3-35.84
Обозначение англ: 902-3-35.84
Статус:не определен законодательством
Название рус.:Альбом II. Технологическая и электротехническая части. Задания заводу-изготовителю
Дата добавления в базу:01.09.2013
Дата актуализации:05.05.2017
Дата введения:27.04.1984
Оглавление:Содержание альбома
Технологическая часть
   Общие данные
   Технологические схемы
   Схема генплана. Схема движения воды. Контактный резервуар. Пример устройства новой площадки
   Насосная станция. План
   Насосная станция. Разрез 1-1
   Аэротенк-отстойник производительностью 4 куб. м/сутки. План. Разрез 1-1
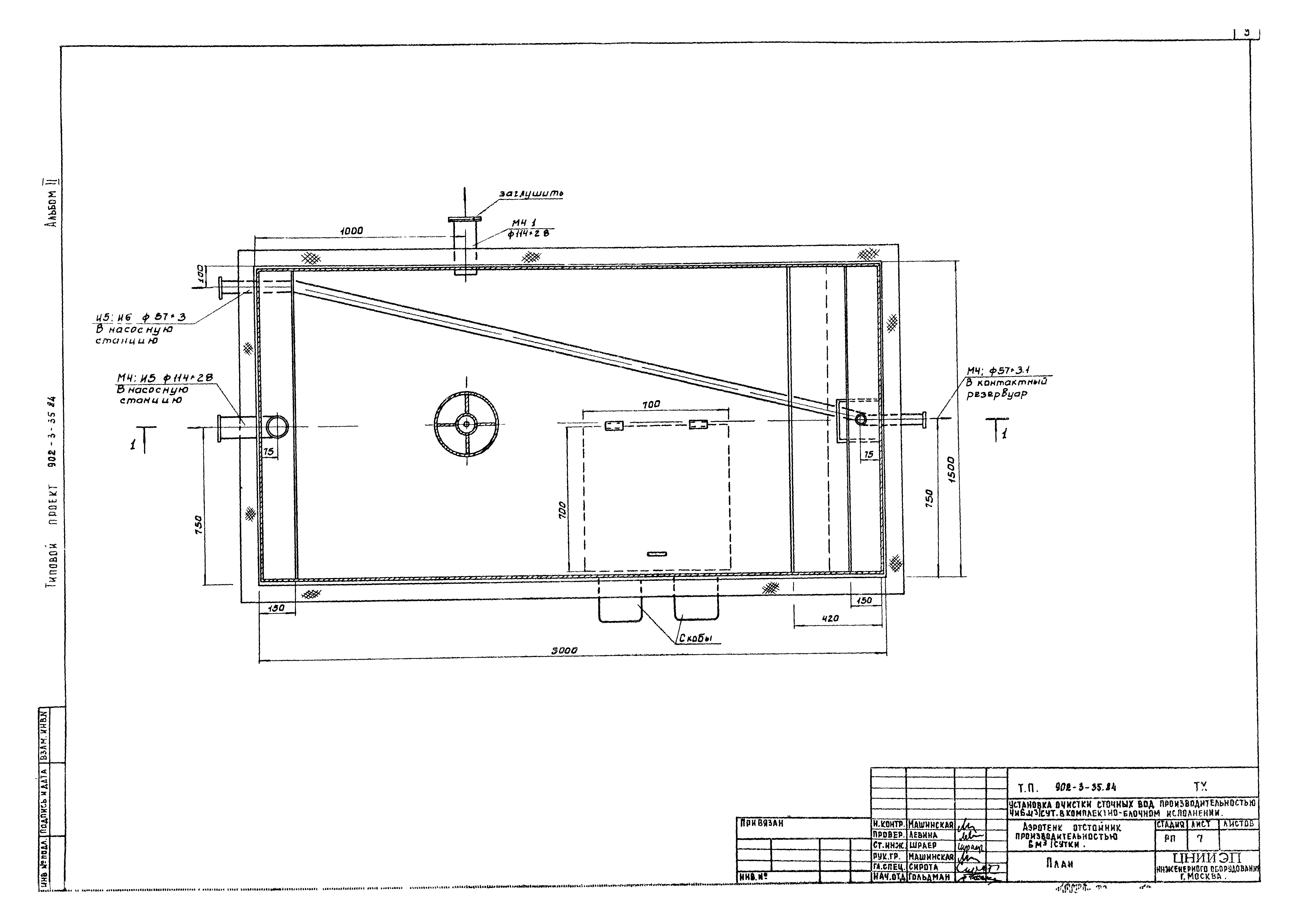
   Аэротенк-отстойник производительностью 6 куб. м/сутки. План
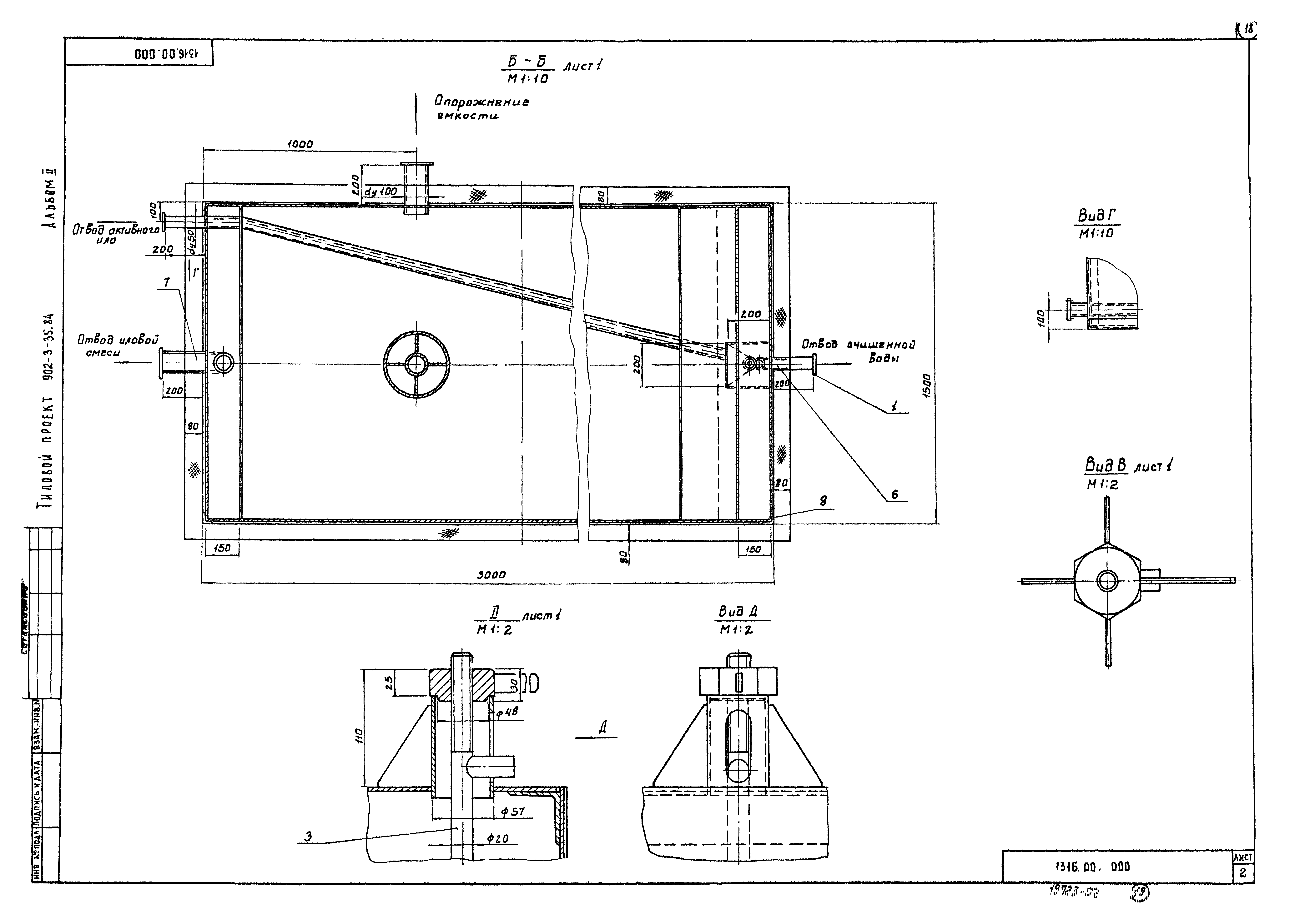
   Аэротенк-отстойник производительностью 6 куб. м/сутки. Разрез 1-1
   Бачок для дезинфектанта
Электротехническая часть
   Общие данные. Кабельный журнал. Схема подключения
Задания заводу-изготовителю
   Насосная станция производительностью 4,0 и 6,0 куб. м/сутки. Эскизный чертеж общего вида
   Аэротенк-отстойник производительностью 4 куб. м/сутки. Эскизный чертеж общего вида
   Аэротенк-отстойник производительностью 6 куб. м/сутки. Эскизный чертеж общего вида
Разработан: ЦНИИЭП иженерного оборудования
Утверждён:24.01.1984 Госгражданстрой (Gosgrazhdanstroy 23)
Расположен в:Техническая документация Строительство Справочные документы Типовые строительные конструкции, изделия и узлы Общероссийский строительный каталог Промышленные предприятия, здания и сооружения Здания и сооружения санитарно-технические Канализация Сооружения биологической (биохимической) очистки Станции биологической очистки сточных вод
Типовой проект 902-3-35.84Типовой проект 902-3-35.84Типовой проект 902-3-35.84Типовой проект 902-3-35.84Типовой проект 902-3-35.84Типовой проект 902-3-35.84Типовой проект 902-3-35.84Типовой проект 902-3-35.84Типовой проект 902-3-35.84Типовой проект 902-3-35.84Типовой проект 902-3-35.84Типовой проект 902-3-35.84Типовой проект 902-3-35.84Типовой проект 902-3-35.84Типовой проект 902-3-35.84Типовой проект 902-3-35.84Типовой проект 902-3-35.84Типовой проект 902-3-35.84Типовой проект 902-3-35.84Типовой проект 902-3-35.84

© 2013 Ёшкин Кот :-) Карта сайта