Информационная система
«Ёшкин Кот»

Скачать базу одним архивом
Скачать обновления
История создания базы
Карта сайта

Скачать Типовой проект 813-2-18.86 Альбом II. Архитектурные решения. Конструкции железобетонные

Дата актуализации: 10.08.2017

Типовой проект 813-2-18.86

Альбом II. Архитектурные решения. Конструкции железобетонные

Обозначение: Типовой проект 813-2-18.86
Обозначение англ: 813-2-18.86
Статус:действует
Название рус.:Альбом II. Архитектурные решения. Конструкции железобетонные
Дата добавления в базу:01.09.2013
Дата актуализации:05.05.2017
Дата введения:14.11.1985
Оглавление:Чертежи основного комплекта марки АР
   Общие данные
   План на отм. 0.000, разрезы 1-1 - 3-3. Фрагмент 1
   Фасады. Схемы расположения элементов заполнения оконных проемов
   План полов, план кровли. Фрагмент 2
   Схемы расположения элементов щитовых перегородок и перекрытия 1 и 2
   Спецификация к узлам заполнения дверных проемов и ворот
   Схемы расположения стеновых панелей 1 - 2
   Схемы расположения стеновых панелей 3 - 5
   Схемы расположения стеновых панелей 6 - 8
   Спецификации к схемам расположения стеновых панелей
   Схема расположения внутренних трехслойных перегородок в осях 8 - 10. Сечения 1-1 - 8-8
   Схема расположения внутренних трехслойных перегородок в осях 8 - 10. Сечения 9-9 - 12-12. Спецификация
   Схема расположения элементов кровли. Спецификация
   Схема расположения защитных и разборных стенок 1 - 4
   Схема расположения защитных и разборных стенок 5 - 8
   Схема расположения защитных и разборных стенок 9 - 12. Спецификации к схемам 1 - 12
   Схема расположения защитных и разборных стенок. Узлы 1 - 9
Чертежи основного комплекта марки КЖ
   Общие данные
   Схема расположения фундаментов
   Схема расположения бетонного цоколя
   Схема расположения бетонного цоколя. Узлы I - VI
   Схема расположения фундаментов. Фундаменты Фм1 - Фм4
   Схема расположения фундаментов. Фундаменты Фм5 - Фм7
   Схема расположения фундаментов. Фундаменты Фм8 - Фм10
   Схема расположения фундаментов. Фундаменты Фм11 - Фм14
   Схема расположения фундаментов. Фундаменты Фм15 - Фм19
   Схема расположения фундаментов. Спецификация к фундаментам. Ведомость расхода стали
   Схема нагрузок на фундаменты
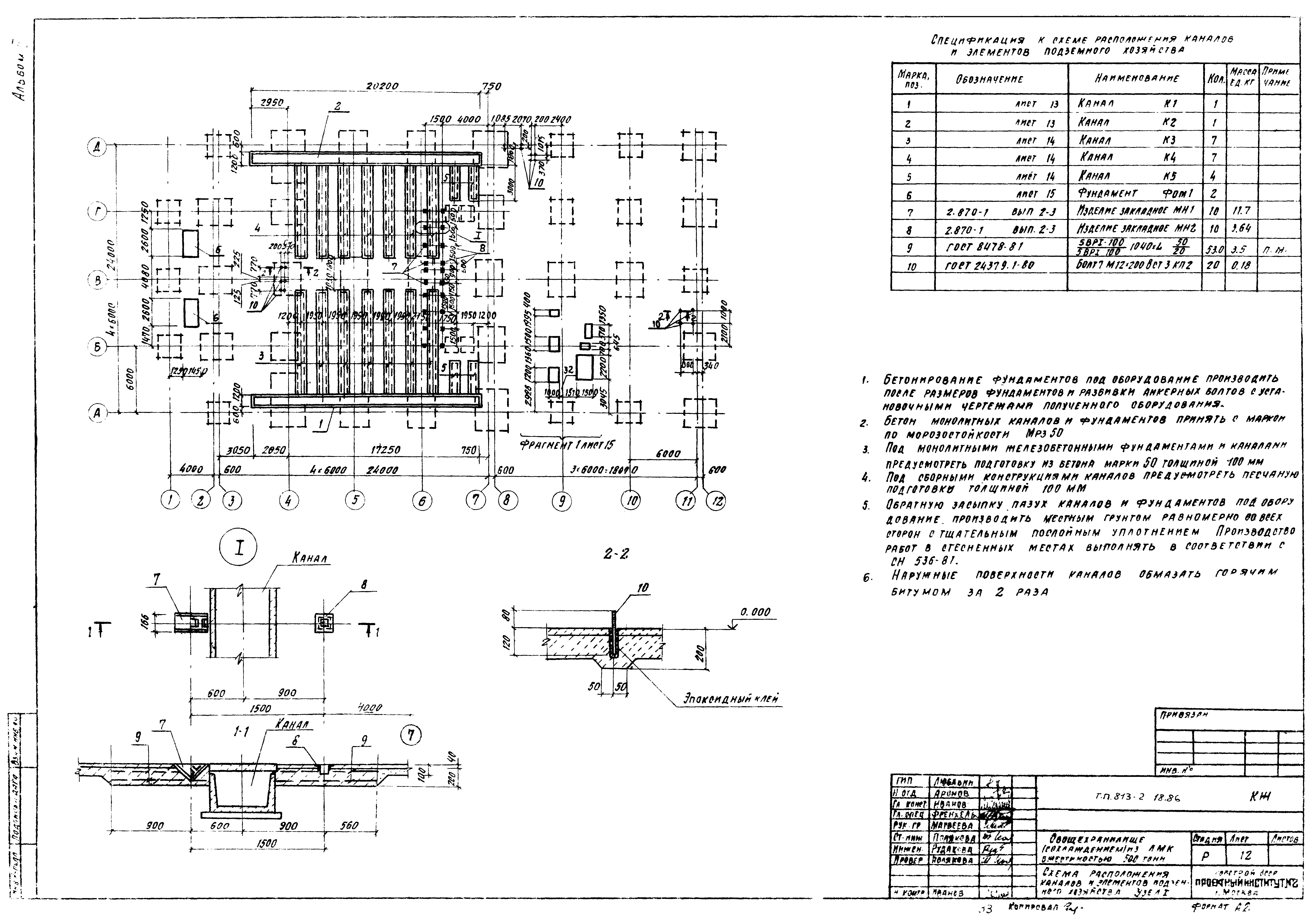
   Схема расположения каналов и элементов подземного хозяйства
   Схема расположения каналов К1, К2
   Схема расположения каналов К3, К4, К5
   Схема расположения каналов и элементов подземного хозяйства. Фрагмент 1, Фом1. Спецификация. Выборка стали
Разработан: Гипронисельпром Минплодоовощхоза СССР
Проектный институт №2
ЦНИИпроектстальконструкция Госстроя
Утверждён:27.09.1985 Минплодоовощхоз СССР (2)
Расположен в:Техническая документация Строительство Справочные документы Типовые строительные конструкции, изделия и узлы Общероссийский строительный каталог Сельскохозяйственные предприятия, здания и сооружения Предприятия, здания и сооружения для хранения зерна, семян, картофеля, овощей, фруктов и другой сельскохозяйственной продукции Овощехранилища
Типовой проект 813-2-18.86Типовой проект 813-2-18.86Типовой проект 813-2-18.86Типовой проект 813-2-18.86Типовой проект 813-2-18.86Типовой проект 813-2-18.86Типовой проект 813-2-18.86Типовой проект 813-2-18.86Типовой проект 813-2-18.86Типовой проект 813-2-18.86Типовой проект 813-2-18.86Типовой проект 813-2-18.86Типовой проект 813-2-18.86Типовой проект 813-2-18.86Типовой проект 813-2-18.86Типовой проект 813-2-18.86Типовой проект 813-2-18.86Типовой проект 813-2-18.86Типовой проект 813-2-18.86Типовой проект 813-2-18.86Типовой проект 813-2-18.86Типовой проект 813-2-18.86Типовой проект 813-2-18.86Типовой проект 813-2-18.86Типовой проект 813-2-18.86Типовой проект 813-2-18.86Типовой проект 813-2-18.86Типовой проект 813-2-18.86Типовой проект 813-2-18.86Типовой проект 813-2-18.86Типовой проект 813-2-18.86Типовой проект 813-2-18.86Типовой проект 813-2-18.86Типовой проект 813-2-18.86Типовой проект 813-2-18.86Типовой проект 813-2-18.86

© 2013 Ёшкин Кот :-) Карта сайта