Скачать Типовой проект 813-2-18.86 Альбом I. Общая пояснительная записка. Схема генплана. Технология производства. Автоматизация технологических процессов. Силовое электрооборудование, электрическое освещение. Связь и сигнализация. Отопление, вентиляция и кондиционирование воздуха. Внутренние водопровод и канализацияДата актуализации: 10.08.2017 Типовой проект 813-2-18.86
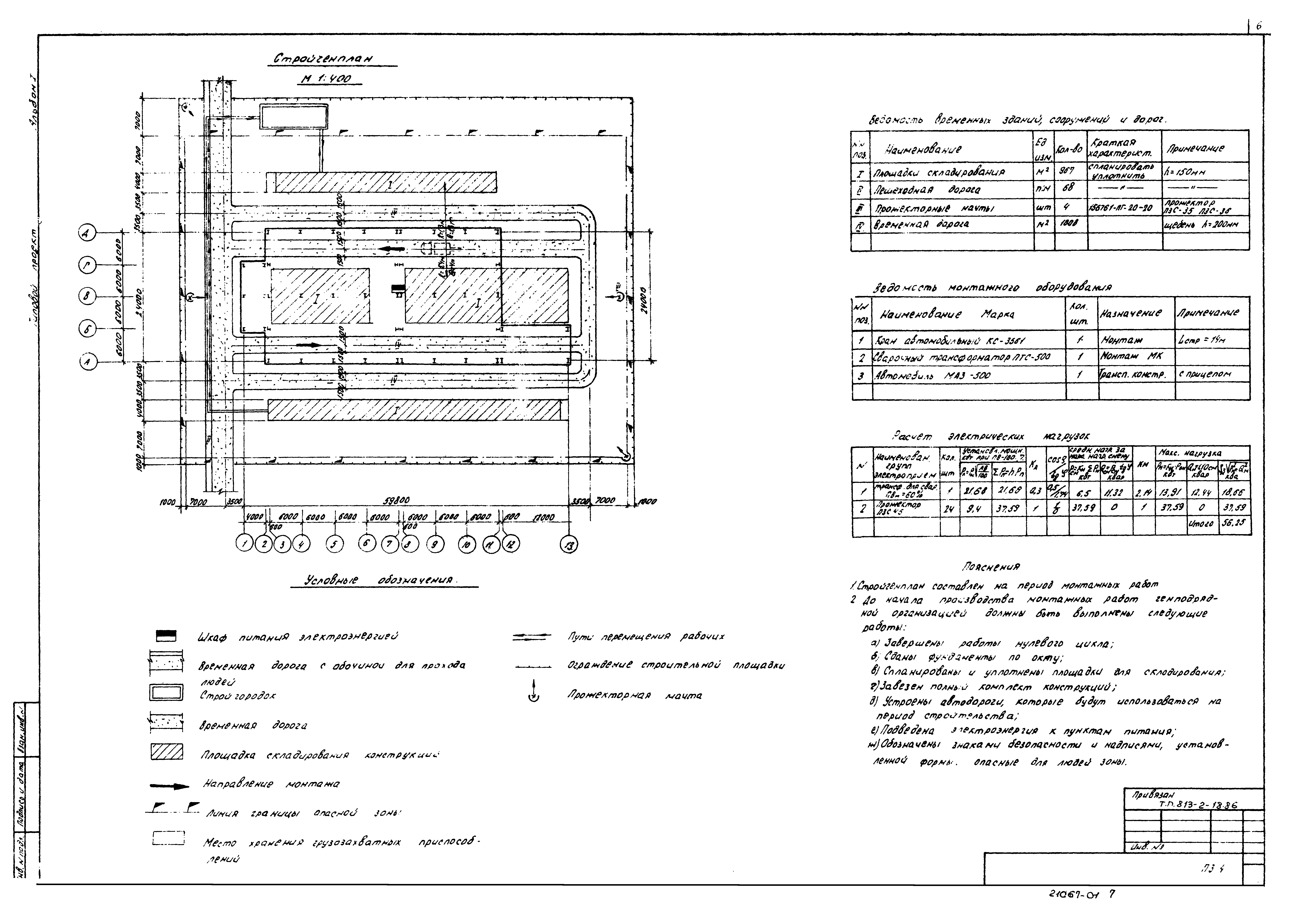
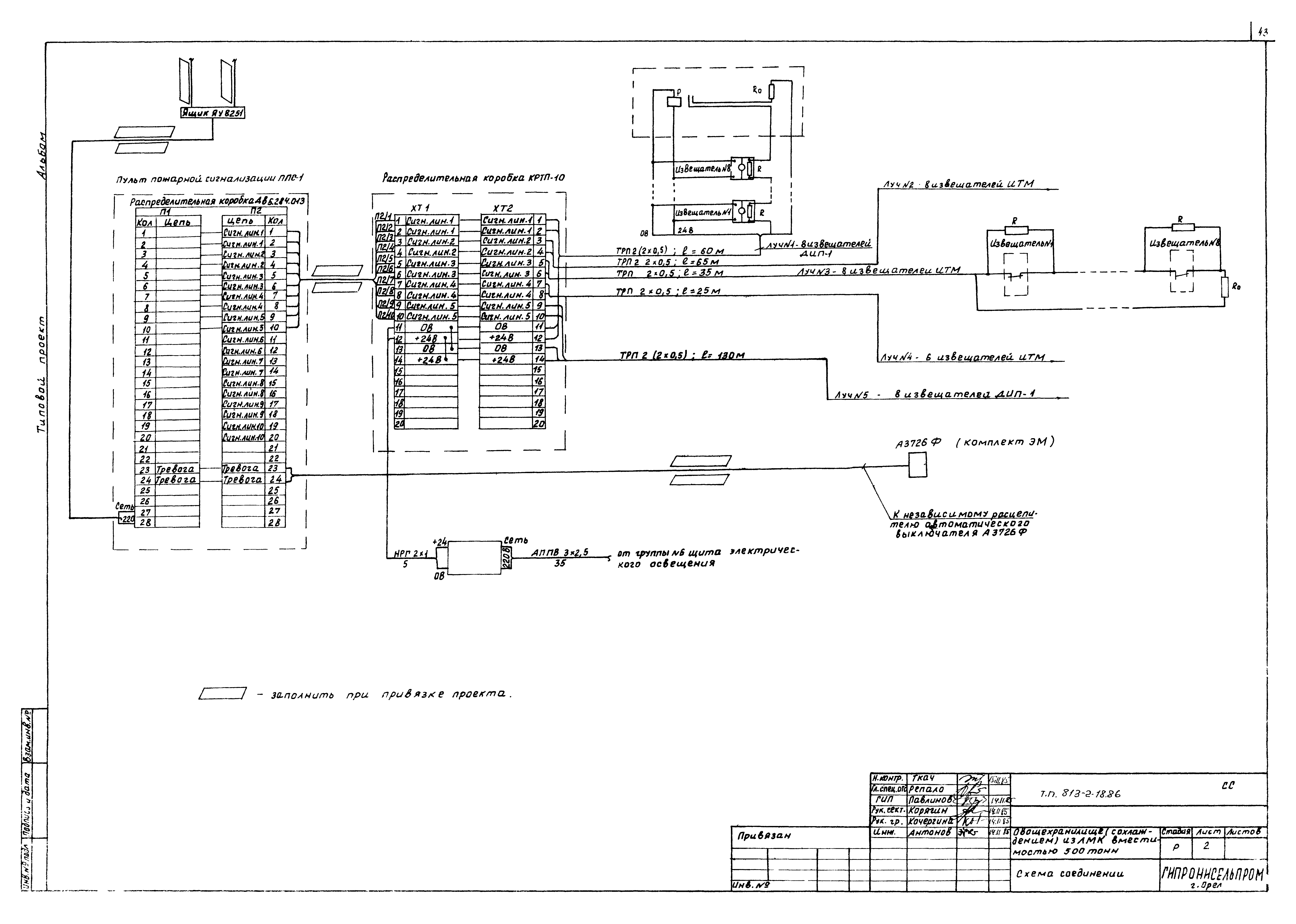
Альбом I. Общая пояснительная записка. Схема генплана. Технология производства. Автоматизация технологических процессов. Силовое электрооборудование, электрическое освещение. Связь и сигнализация. Отопление, вентиляция и кондиционирование воздуха. Внутренние водопровод и канализацияОбозначение: | Типовой проект 813-2-18.86 | Обозначение англ: | 813-2-18.86 | Статус: | действует | Название рус.: | Альбом I. Общая пояснительная записка. Схема генплана. Технология производства. Автоматизация технологических процессов. Силовое электрооборудование, электрическое освещение. Связь и сигнализация. Отопление, вентиляция и кондиционирование воздуха. Внутренние водопровод и канализация | Дата добавления в базу: | 01.09.2013 | Дата актуализации: | 05.05.2017 | Оглавление: | Пояснительная записка Схема генплана Чертежи основного комплекта марки ТХ Общие данные Технологическая схема Технологическая компоновка на отм. 0.000. Разрезы 1-1 Чертежи основного комплекта марки Х Общие данные План на отм. 0.000. Разрез 1-1 Монтажная схема разводки трубопроводов. Разрез 2-2 Чертежи основного комплекта марки ХН Содержание Конструкция теплоизоляционная для трубопроводов Ф18х1,6 Конструкция теплоизоляционная для трубопроводов Ф57х3,5 Чертежи основного комплекта марки АТХ Общие данные Вентсистема П1 (П2). Схема автоматизации Тепловой пункт. Схема автоматизации Управление электропитанием и оттайкой холодильной машины М1 (М2). Схемы электрические Вентсистема У1 (У2). Схемы электрические Вентсистема П1 (П2). Схема соединений внешних проводок Холодильная машина М1 (М2). Схема соединений внешних проводок Тепловой ввод. Схема соединений внешних проводок План расположения Опросный лист №1 Опросный лист №2 Чертежи основного комплекта марки ЭМ Общие данные План. Фрагменты плана Принципиальная однолинейная схема (1ШР, 2ШР) Принципиальная однолинейная схема (3ШР) Принципиальная однолинейная схема (4ШР, ШУ-1, ШУ-2) Молниезащита Чертежи основного комплекта марки ЭО Общие данные План. Фрагмент плана Чертежи основного комплекта марки СС Общие данные Схемы соединений План сетей телефонизации, радиофикации, пожарной сигнализации и сигнализации безопасности Чертежи основного комплекта марки ОВ Общие данные План на отм. 0.000 нанесением систем отопления и вентиляции Разрез 1-1. Схемы систем А1, А2, П3, В1, В2 Схемы систем П1, П2, В3, В4, В5, У1, У2 Схемы системы отопления. Схемы теплоснабжения установки П3 Установка системы П1 Установка системы П3, В1 (В2) Установка систем У1, У2 Тепловой пункт. План на отм. 0.000. Разрез 1-1, 2-2. Схема узла управления Чертежи основного комплекта марки ОВН Содержание Редукционная вставка Подставка под калорифер Сетка Переход 160х250 Переход для воздуховодов Конструкция теплоизоляционная Вентилятор осевой реверсивный Чертежи основного комплекта марки ВК Общие данные План на отм. 0.000. Фрагмент 1 Схемы систем ВО, Т3, К13 Схемы систем К1, К3. Водомерные узлы 1, 2 | Разработан: | Гипронисельпром Минплодоовощхоза СССР Проектный институт №2 ЦНИИпроектстальконструкция Госстроя
| Утверждён: | 27.09.1985 Минплодоовощхоз СССР (2)
| Расположен в: |
|
                                                                 
|