Информационная система
«Ёшкин Кот»

Скачать базу одним архивом
Скачать обновления
История создания базы
Карта сайта

Скачать Типовой проект 503-4-61.88 Альбом 2. Архитектурные решения

Дата актуализации: 10.08.2017

Типовой проект 503-4-61.88

Альбом 2. Архитектурные решения

Обозначение: Типовой проект 503-4-61.88
Обозначение англ: 503-4-61.88
Статус:не определен законодательством
Название рус.:Альбом 2. Архитектурные решения
Дата добавления в базу:01.09.2013
Дата актуализации:05.05.2017
Дата введения:15.12.1988
Оглавление:Содержание альбома
Общие данные
План на отм. 0.000
Фрагмент 1. Схема производственного здания
Фрагмент 2. Схема производственного здания
Фрагменты 3, 4
Разрезы 1-1…3-3
Разрезы 4-4…7-7
Фасады А - Ж, 1 - 11, 11 - 1, Ж - А
План кровли
План полов на отм. 0.000. Экспликация полов
Схема расположения закладных деталей под перегородки на отм. 0.000 в осях 1 - 3, Ж - А, 9 - 11, Ж - Е, 10 - 11, Д - Г
Схема расположения закладных деталей под перегородки на отм. 0.000 в осях Д - Г, 3 - 0
Схема расположения закладных деталей цоколя
Схемы расположения стеновых панелей в осях А - Ж, Ж - А
Схемы расположения стеновых панелей в осях 11 - 3, 1 - 9, 3 - 1, 9 - 1
Схемы расположения оконных блоков в осях 9 - 3, 11 - 9, 1 - 3, 3 - 9, 9 - 11
Схемы расположения оконных блоков в осях 3 - 9, 1 - 3, 9 - 11
Схемы расположения оконных блоков и рам для воздухозаборов в осях А - Ж, Ж - А
Схемы расположения консольных перегородок в осях Ж - Е, 3 - 4, Д - Г, В - Г
Схема расположения перегородок в осях А - Е, 1 - 3, А - Г, 4 - 8, Г - Д, 10 - 11, Е - Ж, 9 - 11
Схемы расположения перегородок в осях Г - А, 3 - 9, 9 - 11, Ж - Е, 11 - 10, Д - Г. Разрезы 1-1…7-7
Схемы расположения перегородок в осях 1 - 3, Ж - А. Разрезы 8-8…12-12
Панели ПС-1, ПС1-1, ПС-3
Узлы 1…3
Узлы 4…8
Узлы 9…14
Узлы 15…23
Узлы 24…29
Узел 30. Рамы для воздухозаборов РВ1, РВ2, РВ3
Узлы 31…38
Узлы 39…43
Узлы 44…47
Узлы 48, 49
Узлы 50…55
Узлы 56…61
Узлы 62…67
Узлы 68…72
Узлы 73…77
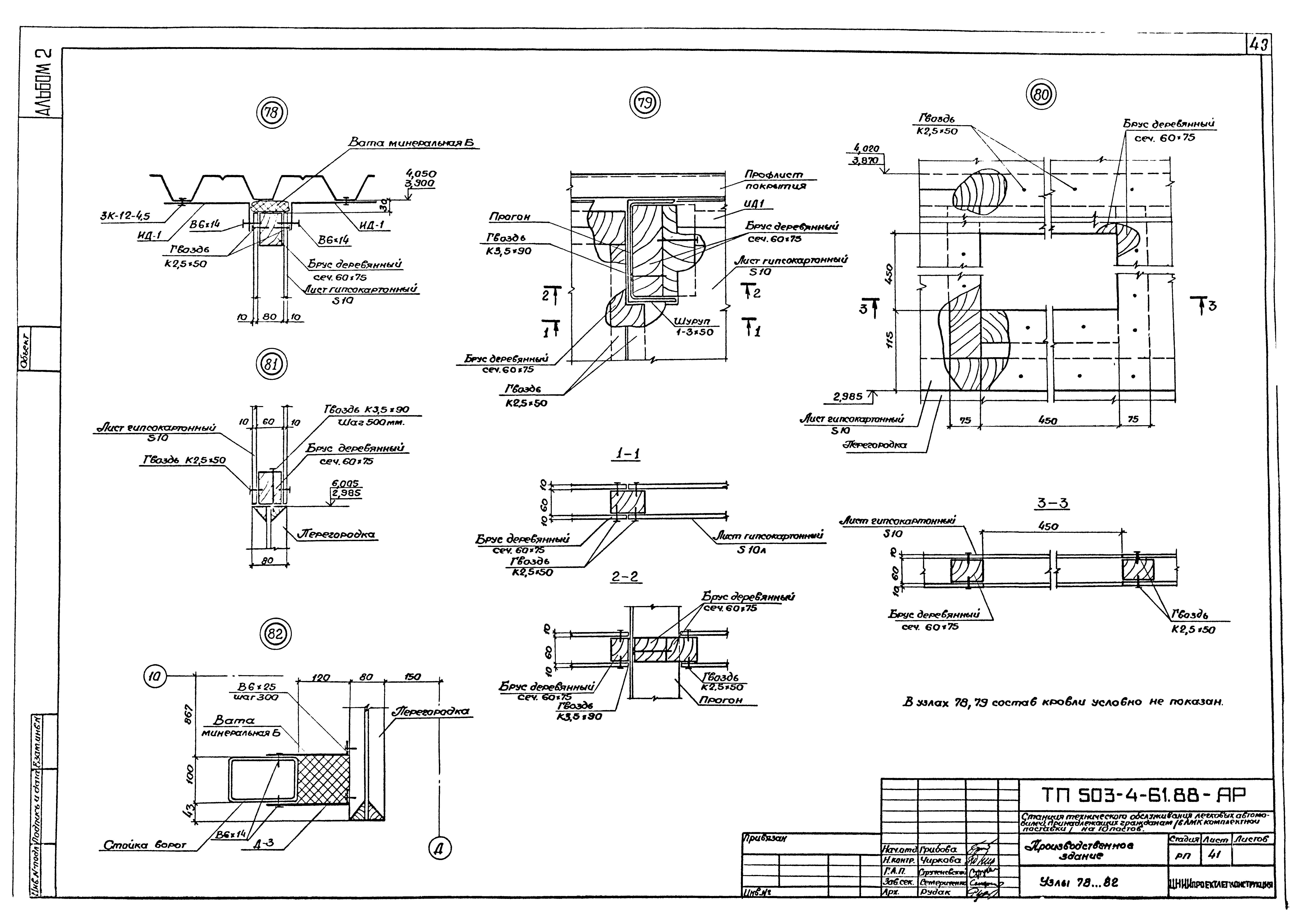
Узлы 78…82
Узлы 83…86
Разработан: Гипроавтотранс
Утверждён:15.12.1988 Минавтопром СССР (USSR Minavtoprom 29)
Расположен в:Техническая документация Строительство Справочные документы Типовые строительные конструкции, изделия и узлы Общероссийский строительный каталог Промышленные предприятия, здания и сооружения Предприятия, здания и сооружения транспорта Транспорт автомобильный Корпуса производственные, станции технического обслуживания и ремонта грузовых и легковых автомобилей и автобусов
Типовой проект 503-4-61.88Типовой проект 503-4-61.88Типовой проект 503-4-61.88Типовой проект 503-4-61.88Типовой проект 503-4-61.88Типовой проект 503-4-61.88Типовой проект 503-4-61.88Типовой проект 503-4-61.88Типовой проект 503-4-61.88Типовой проект 503-4-61.88Типовой проект 503-4-61.88Типовой проект 503-4-61.88Типовой проект 503-4-61.88Типовой проект 503-4-61.88Типовой проект 503-4-61.88Типовой проект 503-4-61.88Типовой проект 503-4-61.88Типовой проект 503-4-61.88Типовой проект 503-4-61.88Типовой проект 503-4-61.88Типовой проект 503-4-61.88Типовой проект 503-4-61.88Типовой проект 503-4-61.88Типовой проект 503-4-61.88Типовой проект 503-4-61.88Типовой проект 503-4-61.88Типовой проект 503-4-61.88Типовой проект 503-4-61.88Типовой проект 503-4-61.88Типовой проект 503-4-61.88Типовой проект 503-4-61.88Типовой проект 503-4-61.88Типовой проект 503-4-61.88Типовой проект 503-4-61.88Типовой проект 503-4-61.88Типовой проект 503-4-61.88Типовой проект 503-4-61.88Типовой проект 503-4-61.88Типовой проект 503-4-61.88Типовой проект 503-4-61.88Типовой проект 503-4-61.88Типовой проект 503-4-61.88Типовой проект 503-4-61.88Типовой проект 503-4-61.88Типовой проект 503-4-61.88

© 2013 Ёшкин Кот :-) Карта сайта