Информационная система
«Ёшкин Кот»

Скачать базу одним архивом
Скачать обновления
История создания базы
Карта сайта

Скачать Типовой проект 503-2-10.84 Альбом II. Архитектурно-строительная часть

Дата актуализации: 10.08.2017

Типовой проект 503-2-10.84

Альбом II. Архитектурно-строительная часть

Обозначение: Типовой проект 503-2-10.84
Обозначение англ: 503-2-10.84
Статус:действует
Название рус.:Альбом II. Архитектурно-строительная часть
Дата добавления в базу:01.09.2013
Дата актуализации:05.05.2017
Оглавление:Содержание альбома 2
Общие данные
План подпольных каналов и маркировочная схема перекрытия подпольных каналов
План
Ведомости и спецификации перемычек, спецификации элементов заполнения проемов и гардеробного оборудования
Разрезы 1-1, 2-2. План и конструкция полов
Фасады
Маркировочная схема и сечения фундаментов
Маркировочные схемы раскладки бетонных блоков
Маркировочная схема плит покрытия
Сечения покрытия 1-1 - 7-7, балки Б2, Б3 и закладных изделий МС1 - МС5
План кровли и детали
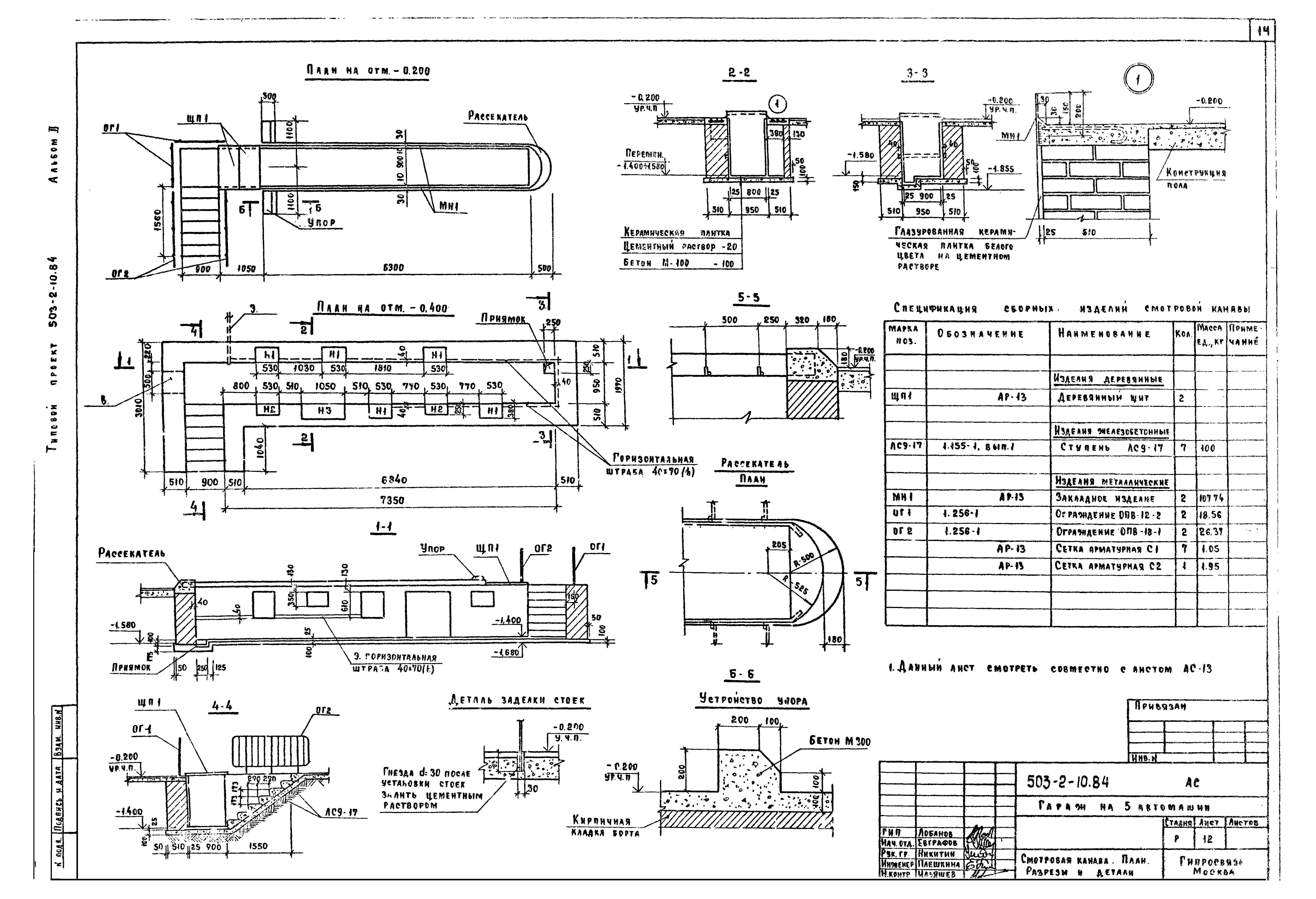
Смотровая канава. План, разрезы и детали
Смотровая канава. Конструкция ниш Н1 - Н3, щита ЩП1, закладной детали МН1 и сеток С1 и С2
Разработан: Гипросвязь
Утверждён:02.08.1983 Министерство связи СССР
Расположен в:Техническая документация Строительство Справочные документы Типовые строительные конструкции, изделия и узлы Общероссийский строительный каталог Промышленные предприятия, здания и сооружения Предприятия, здания и сооружения транспорта Транспорт автомобильный Предприятия автотранспортные, гаражи и стоянки для легковых автомобилей, автобусов и мотоциклов
Типовой проект 503-2-10.84Типовой проект 503-2-10.84Типовой проект 503-2-10.84Типовой проект 503-2-10.84Типовой проект 503-2-10.84Типовой проект 503-2-10.84Типовой проект 503-2-10.84Типовой проект 503-2-10.84Типовой проект 503-2-10.84Типовой проект 503-2-10.84Типовой проект 503-2-10.84Типовой проект 503-2-10.84Типовой проект 503-2-10.84Типовой проект 503-2-10.84Типовой проект 503-2-10.84Типовой проект 503-2-10.84Типовой проект 503-2-10.84

© 2013 Ёшкин Кот :-) Карта сайта