Информационная система
«Ёшкин Кот»

Скачать базу одним архивом
Скачать обновления
История создания базы
Карта сайта

Скачать Типовой проект 501-3-10 Альбом II. Выпуск 2. Архитектурно-строительные решения. Кирпичный вариант

Дата актуализации: 10.08.2017

Типовой проект 501-3-10

Альбом II. Выпуск 2. Архитектурно-строительные решения. Кирпичный вариант

Обозначение: Типовой проект 501-3-10
Обозначение англ: 501-3-10
Статус:действует
Название рус.:Альбом II. Выпуск 2. Архитектурно-строительные решения. Кирпичный вариант
Дата добавления в базу:01.09.2013
Дата актуализации:05.05.2017
Оглавление:Содержание альбома
Чертежи основного комплекта марки АР
   Общие данные
   План на отм. 0.000. План оконных проемов на отм. 6.000. Фрагмент плана 1
   Разрезы 1-1 - 5-5
   Фасады 1 - 5; 5 - 1; А - Г; Г - А. Фрагмент фасада 1
   Спецификация оконных проемов. Спецификация стекла. Схемы заполнения оконных проемов. Узлы 1, 2
   Планы полов на отм. 0.000; план полов на отм. 5.800. План кровли. Экспликация полов. Узел 3
   Фрагмент плана 2. Узлы 4 - 9. Спецификация оборудования
   План венткамеры на отм. 5.800. Разрезы 6-6; 7-7. Виды А, Б, В. Узлы 10, 11, 12
   Планы отверстий в перегородках на отм. 0.000; 5.800. Таблица отверстий
Чертежи основного комплекта марки КЖ
   Общие данные
   Маркировочная схема фундаментов. Сечения 1-1 - 4-4 и 21-21. Спецификация
   Фундаменты. Сечения 5-5 - 12-12
   Фундаменты. Сечения 13-13 - 17-17
   Фундаменты ФМ-1, ФМ-2. Сечения 18-18 - 20-20
   Маркировочная схема балок покрытия, колонн и рамы ворот. Балка Б-1. Сетка С-1, С-2. Анкера М-1, М-2
   Маркировочная схема плит покрытия
   Плиты покрытия П-8, П-10, П-12
   Окаймляющее армирование отверстий в плитах П-8 и П-12
   Окаймляющее армирование отверстий в плите П-10. Спецификации
   Маркировочная схема плит перекрытия на отм. 5.800. Сечения
   План венткамеры на отм. 5.800. Сечения 1-1 - 6-6. Узлы 1, 2
   Маркировочная схема подземного хозяйства
   Грязеотстойник. План. Разрезы 1-1 - 2-2
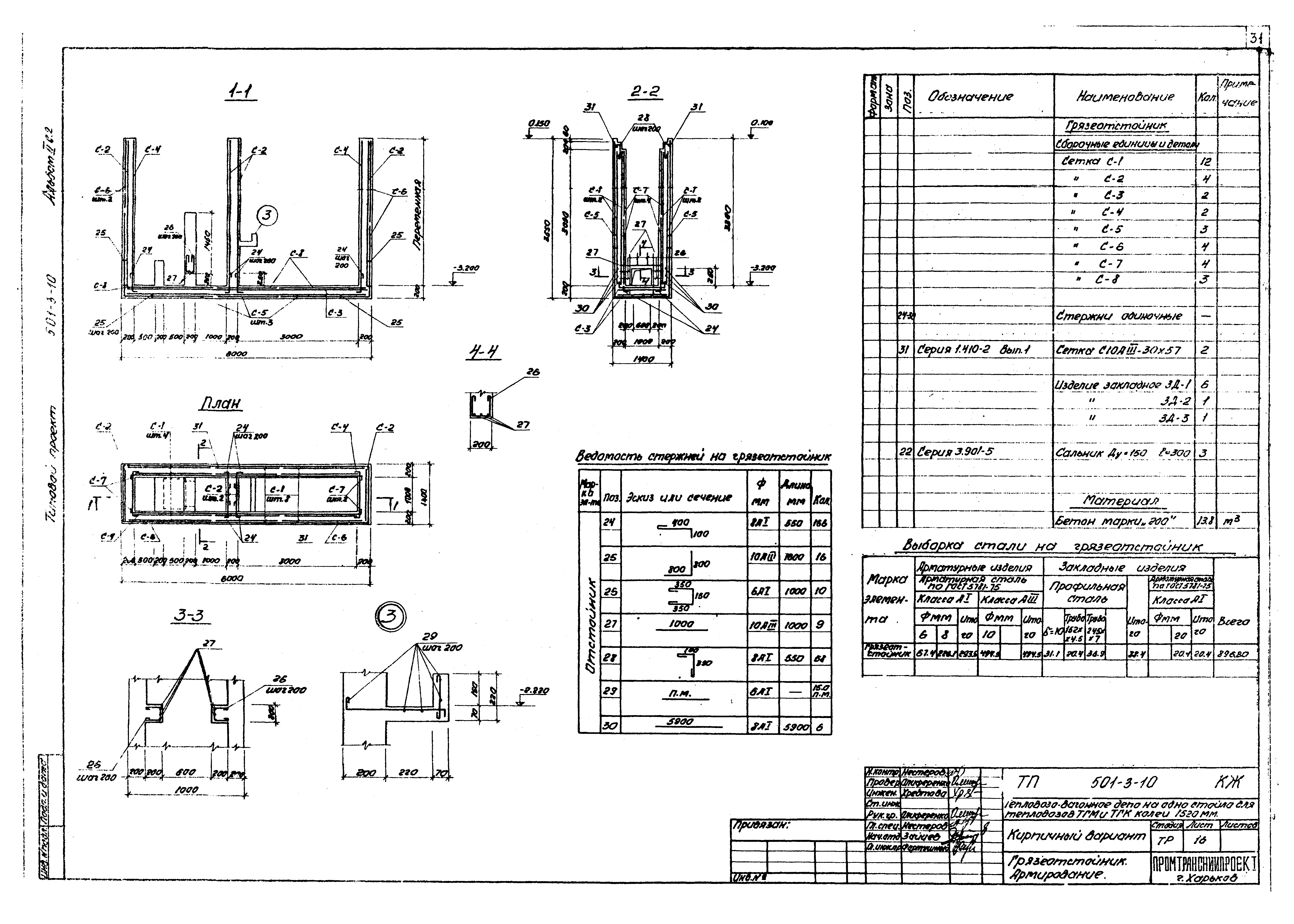
   Грязеотстойник. Армирование
   Грязеотстойник. Закладные детали ЗД-1 - ЗД-3. Узлы 1 - 2. Щиты Щ-1 - Щ-3. Сетки С-1 - С-2
   Грязеотстойник. Сетки С-3 - С-8
   Канализационный колодец ККЗ-1. Маслосборный колодец
Чертежи основного комплекта марки КМ
   Общие данные
   Техническая спецификация стали
   Пути под подвесной кран на отм. 7.900 и монорельс на отм. 2.600
   План балок площадки на отм. 5.700
   Наружная металлическая лестница. Внутренняя металлическая лестница. Узлы. Спецификация
   План расположения кронштейнов и креплений трубопроводов. Вид по А. Сечения 1-1 - 10-10. Спецификация
   План съемного щита на отм. 0.000. Площадка на отм. 2.450
   Рамы Р-1 - Р-7
   Фильтр ВФ-1
Разработан: Промтрансниипроект
Утверждён:12.03.1981 Госстрой СССР (Государственный комитет Совета Министров СССР по делам строительства) (USSR Gosstroy 14)
Расположен в:Техническая документация Строительство Справочные документы Типовые строительные конструкции, изделия и узлы Общероссийский строительный каталог Промышленные предприятия, здания и сооружения Предприятия, здания и сооружения транспорта Транспорт промпредприятий железнодорожный
Типовой проект 501-3-10Типовой проект 501-3-10Типовой проект 501-3-10Типовой проект 501-3-10Типовой проект 501-3-10Типовой проект 501-3-10Типовой проект 501-3-10Типовой проект 501-3-10Типовой проект 501-3-10Типовой проект 501-3-10Типовой проект 501-3-10Типовой проект 501-3-10Типовой проект 501-3-10Типовой проект 501-3-10Типовой проект 501-3-10Типовой проект 501-3-10Типовой проект 501-3-10Типовой проект 501-3-10Типовой проект 501-3-10Типовой проект 501-3-10Типовой проект 501-3-10Типовой проект 501-3-10Типовой проект 501-3-10Типовой проект 501-3-10Типовой проект 501-3-10Типовой проект 501-3-10Типовой проект 501-3-10Типовой проект 501-3-10Типовой проект 501-3-10Типовой проект 501-3-10Типовой проект 501-3-10Типовой проект 501-3-10Типовой проект 501-3-10Типовой проект 501-3-10Типовой проект 501-3-10Типовой проект 501-3-10Типовой проект 501-3-10Типовой проект 501-3-10Типовой проект 501-3-10Типовой проект 501-3-10Типовой проект 501-3-10Типовой проект 501-3-10Типовой проект 501-3-10Типовой проект 501-3-10Типовой проект 501-3-10

© 2013 Ёшкин Кот :-) Карта сайта